6 SEWERAGE
AND SEWAGE TREATMENT IMPLICATIONS
6.1 Legislation,
Standards and Guidelines
6.3 Methodology
and Design Criteria
6.5 Proposed
Development Sewerage Network
6.6 Construction, Operation and Maintenance
Responsibilities
Figures
Figure
6.1 Existing, Planned and Proposed
Sewerage Network Overall Plan
Figure
6.2 Existing, Planned and Proposed
Sewerage Network
(Sheet 1 of 9)
Figure
6.3 Existing, Planned and Proposed
Sewerage Network
(Sheet 2 of 9)
Figure
6.4 Existing, Planned and Proposed
Sewerage Network
(Sheet 3 of 9)
Figure
6.5 Existing, Planned and Proposed
Sewerage Network
(Sheet 4 of 9)
Figure
6.6 Existing, Planned and Proposed
Sewerage Network
(Sheet 5 of 9)
Figure
6.7 Existing, Planned and Proposed
Sewerage Network
(Sheet 6 of 9)
Figure
6.8 Existing, Planned and Proposed
Sewerage Network
(Sheet 7 of 9)
Figure
6.9 Existing, Planned and Proposed
Sewerage Network
(Sheet 8 of 9)
Figure
6.10 Existing, Planned and Proposed
Sewerage Network
(Sheet 9 of 9)
Figure
6.11 Planned Sewerage Network Manhole
Details
Figure 6.12 Western Portion of TCE Development
Appendix 6.1 Sewage
Flow Estimation
Appendix 6.2 InfoWorks
Model User Manual
Appendix 6.3 MTRCL’s Requirements on Proposed Sewerage Works
Appendix 6.4 Responsibility
Matrix
6.1 Legislation, Standards and Guidelines
6.1.1 Introduction
6.1.1.1 Apart from the legislative requirements under the WPCO, the following guidelines shall be referenced to for sewerage and sewage treatment implications of the Project:
·
EPD Report No.
EPD/TP 1/05 Guidelines for Estimating Sewage Flows (GESF) for Sewerage
Infrastructure Planning Version 1.0
·
DSD Sewerage Manual Part 1 (Key Planning Issues and
Gravity Collection System) and Part 2 (Pumping Stations and Rising Mains)
6.2.1 Introduction
6.2.1.1 The proposed Tung Chung New Town Extension (TCNTE) project falls within the North Lantau/ Airport Sewerage Catchment. The existing and planned sewerage infrastructure within and in the vicinity of the Study Area are briefly described in the following sections. Refer to Appendix 2.1 for the preliminary layout plan of Tung Chung East (TCE) and Tung Chung West (TCW) developments.
6.2.2
Existing Sewage Treatment Works
6.2.2.1 Siu Ho Wan Sewage Treatment Works (SHWSTW) was a preliminary sewage treatment works when it was commissioned in 1996. It was subsequently upgraded under the Project PWP Item 4224DS “Outlying Islands Sewerage Stage 1 Phase 1C - Upgrading of Siu Ho Wan Sewage Treatment Plant” to chemically enhanced primary treatment (CEPT). The SHWSTW has a design Average Dry Weather Flow (ADWF) capacity of 180,000 m3/day according to information given by DSD.
6.2.2.2 An ultra-violet (UV) disinfection system was implemented in 2006 to receive the CEPT effluent and further improve the effluent quality. It consists of 2 screen inlet channels (1 duty and 1 standby) and 3 UV channels, and has an ADWF capacity of 90,000 m3/day and peak flow capacity of 1,875 l/s, which is based on the situation where all 3 UV channels are operating in parallel. Two spare screen channels and one spare UV channel have been reserved for future expansion. An effluent pumping station was also provided downstream of the UV disinfection system to ensure the effluent is discharged to the outfall during high tide condition and in case of insufficient hydraulic head. It has a peak flow capacity of 2,500 l/s and 2 spare channels are reserved for future expansion.
6.2.2.3 Currently SHWSTW receives sewage from Hong Kong International Airport (HKIA), Tung Chung, Disneyland and Penny’s Bay, Sunny Bay, Discovery Bay and Siu Ho Wan. The treated effluent is discharged into the marine waters of North Western Water Control Zone via a DN1840 submarine outfall.
6.2.3
Existing and Planned Sewerage Network
6.2.3.1 The existing and planned sewerage network of Tung Chung is shown in Figure 6.1 to Figure 6.11. Currently, sewage from the west of Tung Chung is collected by Chung Mun Road Sewage Pumping Station (CMRSPS) and Chung Yan Road Sewage Pumping Station (CYRSPS), and is transferred to Tung Chung Sewage Pumping Station (TCSPS). TCSPS collects sewage from CYRSPS and Tung Chung Town Centre. It then conveys the sewage to SHWSTW via a DN1200 sewage rising main along Cheung Tung Road parallel with the North Lantau Highway.
6.2.3.2 CMRSPS was constructed under the Contract No. NL6/95 “Tung Chung Development Phase IIB – Main Works – Sewage Pumping Stations No. 1 and No. 2” and commenced its operation in 2000. It is located near the junction of Chung Mun Road and Yu Tung Road, and has the design peak flow capacity of 143 l/s. Currently CMRSPS collects sewage from adjacent schools and village houses. The sewage from CMRSPS is pumped into a DN350 rising main along Yu Tung Road and discharged into a DN375 sewer at the road junction with Chung Yan Road, and finally discharged into CYRSPS.
6.2.3.3 CYRSPS was also constructed under the Contract No. NL6/95 “Tung Chung Development Phase IIB – Main Works – Sewage Pumping Stations No. 1 and No. 2” and commenced its operation in 2000. It is located at the southbound of Chung Yan Road and collects sewage from the adjacent areas including Yat Tung Estate and other village houses, as well as that discharged from CMRSPS. It has a design peak flow capacity of 780 l/s. Discharge from CYRSPS flows through the DN700 rising main followed by a DN500 sewer directly to TCSPS.
6.2.3.4 TCSPS was constructed under Contract No. NL3/93 “North Lantau Sewage Treatment Works and Pumping Station.” It is located at Cheung Tung Road, and collects sewage from Tung Chung Town Centre and HKIA, as well as that discharged from CYRSPS. The existing capacity of the installed pump set at TCSPS is 1,840 l/s (with 2 duty pumps and 1 standby pump of each capacity 920 l/s). The sewage passes into a DN1200 rising main that runs along Cheung Tung Road, which is a service road that runs parallel to North Lantau Highway, and is then discharged to SHWSTW. A super-oxygenation facility with design ADWF capacity of around 45,000 m3/day was installed at the dry well in 2010 for the control of sewage septicity and odour of TCSPS by introducing a large amount of dissolved oxygen to the sewage. Space has been reserved within the TCSPS for additional coarse screens and pump sets. Additional pump sets to double the existing pumping capacity would provide for the designed maximum handling capacity of 3,680 l/s. It is noted that EPD has agreed to reserve 43,500 m3/day (ADWF) at TCSPS for the total sewage discharge from the expanded HKIA after completion of the 3RS project.
6.2.3.5 The existing DN1200 rising main between TCSPS and SHWSTW is about 6,169m long, and was commissioned in 1997 to convey sewage from TCSPS to SHWSTW along Cheung Tung Road parallel with North Lantau Highway.
6.2.3.6 The abovementioned existing rising main is currently the only means for conveying sewage from Tung Chung to SHWSTW and it is impractical to shut down the sewage rising main or divert sewage flow to facilitate inspection or maintenance. To enhance the operational reliability of the sewerage system, construction of additional sewage rising main(s), associated connection works at TCSPS and SHWSTW and also rehabilitation of the existing sewage rising main between TCSPS and SHWSTW will be undertaken by Agreement No. CE 6/2012(DS) “Construction of Additional Sewage Rising Mains and Rehabilitation of the Existing Sewage Rising Main between Tung Chung and Siu Ho Wan – Investigation, Design and Construction”. Under the latest report dated February 2015, it is proposed to construct a new DN1200 rising main with the existing DN1200 rising main after rehabilitation to be served as standby pipe for further maintenance operation. DSD has agreed to incorporate the sewage flow generated from TCNTE into their study under Agreement No. CE 6/2012(DS). As advised by DSD in April 2015, the proposed new rising main is scheduled for commissioning in June 2023, while rehabilitation of the existing rising main is scheduled for completion by end 2025.
6.2.3.7 Another planned development, Area 56, is also located southwest of TCE development and will be constructed by Hong Kong Housing Authority under separate project with a temporary sewage pumping station to temporarily discharge sewage derived from Area 56 to an existing sewer at Yi Tung Road. It was planned that the completed sewerage system of TCNTE will convey the sewage derived from Area 56, therefore it is assumed that Area 56 resides within the TCE sewerage catchment.
6.3 Methodology and Design Criteria
6.3.1 Objectives and Procedures
6.3.1.1 The following approach is adopted in carrying out this sewerage assessment:
·
Identify the scope of the development;
·
Determine
the sewage generation of the development;
·
Identify
the existing and planned sewerage systems within and in the vicinity of the
proposed development boundary;
·
Examine
the impact arising from new sewage generation from the proposed development on
the existing sewage conveyance, pumping stations and treatment systems; and
·
Identify
new and upgrading sewerage works.
6.3.1.2 The assessment has been carried out in accordance with the guidelines set out in EPD Report No. EPD/TP1/05 Guidelines for Estimating Sewage Flows (GESF) for Sewerage Infrastructure Planning Version 1.0 and DSD’s Sewerage Manual.
6.3.2
Development Parameters
6.3.2.1 This sewerage impact assessment is based on the estimated population proposed in the RODP which is shown in Table 6.1 below. With an existing planned residential population of 124,000 in Tung Chung, an additional population of approximately 144,400 residents is proposed under TCNTE. The projected total residential population of Tung Chung would be approximately 268,400.
Table 6.1 Planned Population
|
Type |
Tung Chung East |
Tung Chung West |
|
Residential Population |
118,900 |
25,500 |
|
Employee (Commercial and GIC) |
45,277 |
2,954 |
|
School (Student) |
13,390 |
1,530 |
6.3.3
Unit Flow Factors – Domestic Flows
6.3.3.1 Unit flow factor (UFF) used for domestic sewage flow estimation of residential population in the Study Area and North Lantau are shown in Table 6.2.
Table 6.2 Unit Flow Factors
for Domestic Flows
|
Type |
Unit Flow Factor |
|
Public Rental |
0.190 |
|
Private R1 |
0.190 |
|
Private R2 |
0.270 |
|
Private R3 |
0.370 |
|
Private R4 |
0.370 |
|
Traditional Village |
0.150 |
|
Modern Village |
0.270 |
|
Institutional and special class |
0.190 |
|
Temporary and non-domestic |
0.150 |
|
Mobile residents |
0.190 |
|
General Residential – Permanent
housing in North Lantau (for catchment wide planning) |
0.230 |
6.3.4
Unit Flow Factors – Commercial and Institutional
Flows
6.3.4.1 The unit flow factors for commercial and institutional flows due to commercial and employed population are shown in Table 6.3.
6.3.4.2 The total unit flow generated from an employee in a particular trade is the sum of the unit flow factor of the employee and the unit flow factor of commercial activities of a particular trade under consideration.
Table
6.3 Unit Flow
Factors for Commercial and Institutional Flows
|
Type |
Unit Flow Factor |
|
Commercial
Employee |
0.080 |
|
Commercial
activities |
|
|
(a) Specific
trades: |
|
|
J2 |
0.250 |
|
J3 |
0.100 |
|
J4 |
0.200 |
|
J5 |
- |
|
J6 |
- |
|
J7 |
- |
|
J8 |
- |
|
J9 |
0.150 |
|
J10 |
1.500 |
|
J11 |
0.200 |
|
J12 |
- |
|
(b) General –
territorial average |
0.200 |
|
School student |
0.040 |
6.3.5
Unit Flow Factors – Industrial Flows
6.3.5.1 The unit flow factors for industrial flows due to manufacturing employees are shown in Table 6.4.
6.3.5.2 The total unit flow generated from an employee in a particular trade is the sum of the flows due to the employee and the unit flow factor for a particular trade under consideration.
Table
6.4 Unit Flow
Factors for Industrial Flows
|
Type |
Unit Flow Factor
(m³/employee/day) |
|
Industrial Employee |
0.080 |
|
Industrial activities |
|
|
(a)
J1 Manufacturing – Lantau Island (except Mui Wo) |
0.450 |
6.3.6
Peaking Factors
6.3.6.1 Peaking factors cater for seasonal/diurnal fluctuation and normal amount of infiltration and inflow. The peaking factors adopted in this study are shown in Table 6.5.
Table
6.5 Peaking
Factors for Various Population Ranges
|
Population Range |
Peaking Factor (including stormwater allowance) for
facility with existing upstream sewerage |
Peaking Factor (excluding stormwater allowance) for
facility with new upstream sewerage |
|
Sewers |
||
|
< 1,000 |
8 |
6 |
|
1,000 – 5,000 |
6 |
5 |
|
5,000 – 10,000 |
5 |
4 |
|
10,000 – 50,000 |
4 |
3 |
|
> 50,000 |
Max (7.3/N0.15
, 2.4) |
Max (6/N0.175
, 1.6) |
|
Sewage Treatment Works, Preliminary Treatment Works
and Pumping Stations |
||
|
< 10,000 |
4 |
3 |
|
10,000 – 25,000 |
3.5 |
2.5 |
|
25,000 – 50,000 |
3 |
2 |
|
> 50,000 |
Max (3.9/N0.065
, 2.4) |
Max (2.6/N0.065
, 1.6) |
Notes:
N = Contributing population in thousands.
![]()
6.4.1.1 The estimated sewage flows generated by TCE and TCW developments are summarised in Table 6.6. Detailed calculations are enclosed in Appendix 6.1.
Table 6.6 Sewage Flow
Estimation from Tung Chung East and Tung Chung West Developments
|
Proposed Development |
ADWF (m³/day) |
|
Tung Chung East |
43,070 |
|
Tung Chung West |
7,010 |
6.4.1.2 In order to assess potential impacts to the sewerage network, the future sewage flows in the catchment of the sewage pumping stations (SPSs) and SHWSTW have been estimated based on the population forecast in the proposed development scheme as well as the 2009-based Territorial Population and Employment Data Matrix (TPEDM) within the catchment areas. Sewage projections from the interfacing 3RS project at HKIA have been obtained from the Hong Kong Airport Authority.
6.4.1.3 A comparison of the 2009-based and 2011-based TPEDMs population forecasts for residential, employment and schools reveals that the 2011-based TPEDM is generally lower than that of the 2009-based TPEDM. Therefore this study takes the more conservative approach to estimate the overall sewage flows using the 2009-based TPEDM.
6.4.1.4
A year-by-year flow build-up assessment has
been conducted from Year 2011 to Year 2031, with TCNTE ultimate scenario
occurring in Year 2031. The projected sewage flows at each SPS and SHWSTW are estimated and compared with the respective design capacities,
and are summarized in Table 6.7 and Table 6.8 with calculations provided
in Appendix
6.1.
6.4.1.5
The western
portion of TCE development will undergo early population intake from Year 2023
to Year 2026, while the eastern portion of TCE development will undergo later
population intake from Year 2027 to Year 2030. Separate
sewerage schemes for interim stage (for population intake from Year 2023 to
2026) and ultimate stage (for population intake from Year 2027 to 2030) are proposed.
Refer to Section 6.5 for more detail.
Table 6.7 Summary of Estimated
Sewage Flows at Existing SPSs in Year 2031
|
Catchment [1] |
ADWF (m3/day) |
Peaking
Factor |
Peak Flow (l/s) |
Design Capacity (Existing Capacity) (l/s, Peak Flow) [2] |
|
|
CMR SPS
|
Existing catchment (PDZs 246,266) + Portion of TCW Development [3] |
5,487 |
3.50 |
222 |
143 |
|
CYR SPS |
Existing catchment (PDZs 246,266,282,396) |
14,260 |
3.01 |
497 |
780 |
|
TC SPS
(Interim
Stage – Year 2023 to 2026) |
Existing catchment (PDZs 245,246,247,266,282,396) + TCW Development + TCE
Development Interim Stage (western portion) |
83,082 |
2.69 |
2,584 |
3,680 (1,840) |
|
TC SPS
(Ultimate Stage – Year 2027 to 2030) |
Existing catchment (PDZs 245,246,247,266,282,396) + TCW Development |
75,047 |
2.71 |
2,350 |
3,680 (1,840) |
Notes:
1. Refer to 2009-based TPEDM for Planning Data Zone (PDZ)
boundaries
2. The design capacities of existing SPSs are given by DSD
3. For purposes of this
assessment, only TCW development areas in the vicinity of CMRSPS would
contribute to its catchment; refer to Table 6.11 for description of these areas
Table 6.8 Summary of
Estimated Sewage Flow at Existing STW in Year 2031
|
Catchment [1] |
ADWF (m3/day) |
Design Capacity (Existing Capacity) (m3/day, ADWF)
[2] |
|
|
SHW STW
|
Existing catchment (PDZs
239,241,245,246,247,265,266,282,327,395,396,398) + TCW Development + TCE
Development Ultimate Stage (entire development) |
144,585 |
180,000 (90,000) |
Notes:
1. Refer to 2009-based TPEDM for Planning Data Zone (PDZ)
boundaries
2. The design capacity of existing STW is given by DSD
6.5
Proposed Development Sewerage Network
6.5.1.1
As a
conservative design approach, this study examines a
proposed sewerage network that is independent from the existing sewerage
network so as to avoid impacts to existing gravity sewers. Figure 6.1 to Figure 6.11 shows the sewerage layout proposed
under this study.
6.5.1.2
The hydraulic calculations of the proposed sewerage
system are presented in Appendix 6.1.
Hydraulic assessment using mathematical simulation software “InfoWorks
ICM” has been conducted and the results are presented in Appendix 6.2.
6.5.2
Tung Chung
East Development
Interim Stage – Year 2023 to Year 2026
6.5.2.1
The western
portion of TCE development will undergo early population intake from Year 2023
to Year 2026, while the eastern portion of TCE development will undergo later
population intake from Year 2027 to Year 2030. In order to serve the early
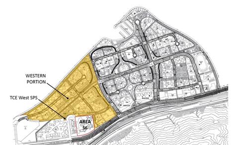
population intake at the western portion, an interim stage sewerage scheme is
proposed. Figure 6.12 below indicates
the western portion of TCE development planned for early population intake.

Figure 6.12 Western
Portion of TCE Development
6.5.2.2
A new sewerage
system will be provided to serve the western portion of TCE development, and a
new sewage pumping station (SPS) is proposed and designated “TCE West SPS.” All sewers and rising mains will be laid along existing and
proposed roads or within drainage reserves. Table 6.9 summarizes the estimated pumping
capacity required at TCE West SPS during the
interim stage, which includes the provision of ultimate sewage flow derived
from Area 56.
Table 6.9 Estimated
Sewage Flow for Proposed Sewage Pumping Station during Interim Stage
|
SPS |
Area Served |
ADWF (m3/day) |
Peaking Factor |
Peak Flow (l/s) |
|
TCE West SPS (Interim Stage) |
New
development areas in the western portion of Tung
Chung East and Area 56 |
12,891 |
3.00 |
448 |
6.5.2.3 For the interim stage twin DN450 rising mains are proposed to divert flow from TCE West SPS along Ying Tung Road and Man Tung Road, crossing above the MTR Tung Chung Line tunnel. They will then pass along an existing drainage reserve and below the Airport Express Line (AEL) and North Lantau Highway. In order to avoid disturbance to the AEL, North Lantau Highway and existing utilities, the twin rising mains are proposed to be installed within an existing pressure sewer subway tunnel that crosses below AEL and North Lantau Highway. After the tunnel, the rising mains will discharge to a proposed inlet pressure breaking chamber (manhole) within the TCSPS site compound and discharge to the inlet screen channel inside the TCSPS main building via twin gravity sewers. Refer to Figure 6.6 for details of the proposed connection.
Ultimate Stage – Year 2027 to Year 2030
6.5.2.4
To accommodate the planned population intake in the
eastern portion of TCE development from Year 2027 to Year 2030, an ultimate
stage sewerage scheme is proposed. A new sewerage
system will be provided within the eastern portion of TCE development, and
another sewage pumping station (SPS) is proposed and designated “TCE East SPS.” Sewage flow from TCE West SPS will be diverted by
new twin DN450 rising mains and gravity sewers to the TCE East SPS. All sewers
and rising mains will be laid along existing and proposed roads or within
drainage reserves. Table 6.10 summarizes the estimated pumping capacities
required at each SPS during the ultimate stage.
Table 6.10 Estimated
Sewage Flows for Proposed Sewage Pumping Stations during Ultimate Stage
|
SPS |
Area Served |
ADWF (m3/day) |
Peaking Factor |
Peak Flow (l/s) |
|
TCE West SPS (Ultimate Stage) |
New
development areas in the western portion of Tung
Chung East and Area 56 |
12,891 |
3.00 |
448 |
|
TCE East SPS (Ultimate Stage) |
All new development areas in Tung Chung East and Area 56 |
45,732 |
2.79 |
1,479 |
6.5.2.5
The proposed
TCE East SPS, which
will serve the entire TCE development, will transfer the sewage flow via
proposed twin DN600 rising mains along Road P1 (Tung Chung – Tai Ho Section) and then
along the footpath at the rear of the existing seawall at existing MTRCL Siu Ho
Wan Depot. The rising mains will then cross below the MTR
Tung Chung Line (TCL) tunnel and Airport Express Line (AEL) and North Lantau
Highway, then along an existing drainage reserve and maintenance access road
with discharge to SHWSTW. The crossing of twin rising mains below MTR TCL and
AEL and the North Lantau Highway may be carried out by pipe jacking with
jacking pit located within the MTRCL Siu Ho Wan Depot and receiving pit within
existing drainage reserve area tentatively. The pipe jacking arrangement will
be designed not to conflict with existing utilities. Precautionary and
monitoring measures such as restricted working hours, horizontal pilot drilling
and ground movement monitoring will be implemented. DSD has agreed that a combined
vortex chamber will be constructed under Agreement No. CE 6/2012(DS) with
service connections to accept the twin DN600 rising mains from TCE East SPS in
future. CEDD plans to entrust to DSD the construction of the section of twin
DN600 rising mains within the SHWSTW site compound. Refer to Figure 6.2 for details of the proposed
connection.
6.5.2.6
During the course of this Study,
liaison with MTRCL has been conducted and the design and construction of the
proposed sewerage system
will be in strict compliance with the general Railway Protection requirements
and the requirement imposed by MTRCL as per the letter enclosed in Appendix
6.3. It is also noted that North Lantau Highway is a traffic sensitive
route and is classified as Red Route. The traffic impact assessment and daytime
ban requirements will be fulfilled according to HyD's Guidance Notes No. RD/GN/021. To comply with MTRCL's and HyD's requirements, it is expected
that night time construction works and trenchless construction method (such as
pipe jacking) will be required. Particular attention should be paid in
developing the detailed alignment, level and construction method of the
proposed crossing in order to minimize impacts to traffic and MTRCL
infrastructure. Restricted working hours and a construction noise permit will
impose additional constraints on the construction works, and particular efforts
will be made to plan the construction programme and specifications accordingly.
6.5.3
Tung Chung
West Development
6.5.3.1
The Tung Chung
Stream runs inside the Tung Chung Valley with two tributaries (termed “East
Stream” and “West Stream”). The downstream section of the East Stream is an
engineered drainage channel. The East and West Streams combine within the TCW
development area and discharge to Tung Chung Bay.
6.5.3.2
A new public sewerage system will be provided to
serve the TCW development as well as to provide a village sewerage
system for the
existing unsewered village areas of Shek Mun Kap, Mok Ka, Nim Yuen, Lam Che,
Ngau Au, Shek Lau Po, Ma Wan Chung and Wong Nai Uk. New sewers will be laid
along existing and proposed roads, footways or drainage reserves.
6.5.3.3
To overcome the constraint posed by the presence of
the East and West Streams, three new sewage pumping stations are proposed, two serving
those developments west of the West Stream (designated “TCV West SPS” and “TCV
North SPS”) and the third serving all of TCW development (designated “TCV East SPS”).
6.5.3.4
The TCV West SPS will deliver flow from proposed
development areas TCV-3 and TCV-4 as well as existing villages of Mok Ka, Lam
Che and Nim Yuen to the TCV East SPS via twin DN200 rising mains. Refer to Figure 6.8 to Figure 6.10 for the location of proposed
developments in TCW.
6.5.3.5
The TCV North SPS will deliver flow from proposed
development area TCV-8 and the existing village of Ngau Au to the TCV East SPS
via twin DN200 rising mains.
6.5.3.6
Sewage arising from proposed development areas
TCW-1, TCW-2, TCW-3, TCV-1, COM-1, COM-2, COM-3 and existing villages Ma Wan
Chung and Wong Nai Uk will be discharged by proposed sewers laid along existing and proposed roads
to Chung Mun Road Sewage Pumping Station (CMRSPS). The CMRSPS will be upgraded such
that new stand-alone inlet chamber, screens, wet well and pump sets are
provided to serve the proposed developments and two existing villages. Refer to
Figure 6.9 for details of the proposed
connection. The Upgraded CMRSPS will maximize the utilization
of existing supporting infrastructure such as access road and power supply
(upgrading may be required subject to detailed design), etc. so as to minimize the
overall pumping station footprint. The Upgraded CMRSPS will discharge directly to TCV
East SPS via new twin DN250 rising mains laid along Chung Mun Road.
6.5.3.7
The TCV East SPS will serve the entire TCW development
including flows from Upgraded CMRSPS, TCV West SPS, TCV North SPS and existing
villages including Shek Mun Kap, Mok Ka, Nim Yuen, Lam Che, Ngau Au, Shek Lau
Po, Ma Wan Chung and Wong Nai Uk. The TCV East SPS will deliver flow with
direct discharge to the TCSPS via new twin DN450 rising mains laid along Chung
Mun Road and Yu Tung Road, thus bypassing the
Chung Yan Road SPS. Table 6.11 summarizes the estimated pumping capacities required at the TCV West
SPS, TCV North SPS, TCV East SPS, and Upgraded CMRSPS.
6.5.3.8
For noise
control at proposed SPSs, relevant noise impact assessment and
mitigation measures are presented in Section
4.6.
Table 6.11 Estimated
Sewage Flows for Proposed Sewage Pumping Stations serving Tung Chung West
Development
|
SPS |
Area Served |
ADWF (m3/day) |
Peaking Factor |
Peak Flow (l/s) |
|
TCV West SPS |
New
development areas TCV-3, TCV-4 and
existing villages Mok Ka, Lam Che and Nim Yuen |
551 |
4.00 |
26 |
|
TCV North SPS |
New
development area TCV-8 and existing village Ngau Au |
278 |
6.00 |
19 |
|
TCV East SPS |
All new development areas in TCW and existing villages Mok Ka, Lam Che, Nim Yuen, Shek Mun Kap,
Ngau Au, Shek Lau Po, Ma Wan Chung and Wong Nai Uk |
8,864 |
3.00 |
308 |
|
Upgraded CMRSPS |
New development areas TCW-1, TCW-2, TCW-3, TCV-1, COM-1, COM-2, COM-3
and existing villages Ma
Wan Chung and Wong Nai Uk |
3,119 |
3.50 |
126 |
6.5.4
Enhancements
and Additional Provisions
6.5.4.1
Due to the key
concerns of the ecological sensitivity of the Tung Chung Stream and the Tung Chung Bay, the
following provisions are proposed to enhance the sewerage network reliability
and minimize environmental impacts due to system failure or in case of
emergency situations.
6.5.4.2
Twin rising
mains would be provided for proposed discharge from all proposed SPSs and the Upgraded
CMRSPS. It is proposed to use both mains as duty from economical and
operational points of view. Should one of the duty mains be suspended from operation for maintenance, the
remaining one would be arranged
to deliver more flow at a higher velocity (exceeding
3m/s) during that period. Twin
gravity sewers would also be provided at the downstream of the inlet break
chamber for all proposed SPSs and the Upgraded CMRSPS.
6.5.4.3
It is proposed
to adopt high density polyethylene (HDPE) pipe for proposed gravity sewers and
rising mains. As gravity sewers will not be pressurized, they carry no
risk of bursting. Further protection on proposed rising mains with concrete
surround will be provided to prevent the rising mains from bursting. With the above proposed measures, bursting discharge is not
expected and thus no adverse
impact on water quality or ecology due to sewer bursting discharge is
anticipated.
Additional
Provisions for Tung Chung West Development
6.5.4.4
Taking into
account the ecological sensitivity of the Tung Chung Stream, the occurrence of a
possible emergency event at the SPSs in
TCW (including TCV West SPS, TCV North
SPS, TCV East SPS and Upgraded CMRSPS)
has been considered due to the following risks:
pump failure; rising main failure; and power failure.
6.5.4.5
To mitigate
the risks of pump, rising main and/or power failure, several mitigation
measures are proposed to cater for the emergency situations including a) 100%
standby pumping capacity within each SPS, with spare pump up to 50% pumping capacity stockpiled in each SPS
for any emergency use; b) twin rising mains; c) dual-feed
power supply; d) emergency
storage facilities up to 6-hours ADWF capacity; and e) emergency
communication mechanism amongst relevant government departments.
6.5.4.6
Considering
the possible emergency situations and respective risks, as well as the
practicality of construction, the above mitigation measures are considered the most
appropriate and practical measures to deal with the emergency situations of the proposed
SPSs in TCW development.
Therefore, based on these
provisions emergency discharge is not expected, and thus no adverse
impact on water quality or ecology due to emergency discharge from the proposed
SPSs in TCW development is anticipated.
Additional Provisions for Tung Chung East
Development
6.5.4.7
The occurrence
of any single emergency event at TCE East SPS and TCE West SPS has been
considered due to the following risks: pump failure; rising main failure; and power
failure.
6.5.4.8
To mitigate
the risks of pump, rising main and/or power failure, several mitigation
measures are proposed to cater for the emergency situations including a) 100%
standby pumping capacity within each SPS, with spare pump up to 50% pumping capacity stockpiled in each SPS
for any emergency use; b) twin rising mains; c) dual-feed power
supply; d) emergency
storage facilities up to 6-hours ADWF capacity; and e) emergency
communication mechanism amongst relevant government departments.
6.5.4.9
Considering
the possible emergency situations and respective risks, as well as the
practicality of construction, the above mitigation measures are considered the most
appropriate and practical measures to deal with the emergency situations of the
proposed SPSs in TCE development.
Therefore, based on these
provisions emergency discharge from the
proposed SPSs in TCE is not expected, and thus no adverse impact on water quality or ecology due to
emergency discharge from the proposed SPSs in TCE
development is anticipated.
6.6
Construction, Operation
and Maintenance Responsibilities
6.6.1.1
Refer to Appendix 6.4 which sets out the requirements for
the construction works, operation and maintenance responsibilities for the
various proposed sewerage facilities.
6.7.1 Introduction
6.7.1.1
The
year-by-year sewage flow build-up at the sewage catchments of CMRSPS, CYRSPS, TCSPS
and SHWSTW have been estimated and are presented in Appendix 6.1. The
potential impacts on existing sewerage infrastructure and proposed mitigation
measures are described in this section.
6.7.2 Chung Mun Road Sewage Pumping Station (CMRSPS)
6.7.2.1
The existing
pumping capacity of CMRSPS is inadequate to serve the increased sewage flows
from new development areas TCW-1, TCW-2, TCW-3, TCV-1, COM-1, COM-2, COM-3 and
existing villages Ma Wan Chung and Wong Nai Uk starting in Year 2023. To avoid impact on the operation of the
existing CMRSPS, it is proposed to provide new inlet chamber, screens, wet well
and stand-alone pump sets to serve the additional sewage flows.
6.7.2.2
An existing
25m x 15m area of land immediately north of CMRSPS has been reserved for the
CMRSPS upgrading works. The Upgraded
CMRSPS will maximize the utilization of existing supporting infrastructure such
as access road and power supply (upgrading may be required subject to detailed
design), etc. so as to minimize the overall pumping station footprint.
6.7.2.3
As the sewage
flow from portions of TCW development will be pumped by separate stand-alone
pump sets at the Upgraded CMRSPS with discharge to the TCV East SPS, there will
be no net increase in flow and thus no impact to the existing CMRSPS.
6.7.2.4
With the
provision of mitigation measures presented in Sections 6.5.4.5 to 6.5.4.7 to cater for the emergency
situations, emergency discharge from Upgraded
CMRSPS is not expected and thus no adverse impact on water quality or ecology
due to the emergency discharge is anticipated.
6.7.3 Chung Yan Road Sewage Pumping Station (CYRSPS)
6.7.3.1
All sewage
flow from proposed TCW development will be pumped by the TCV East SPS with
direct discharge to TCSPS, thus bypassing the CYRSPS. Therefore there will be
no net increase in flow and thus no impact to the CYRSPS.
6.7.4 Tung Chung Sewage Pumping Station (TCSPS) and Rising Main (Interim Stage)
6.7.4.1
It is proposed
to discharge the sewage arising from all proposed development in TCW as well as
the western portion of TCE development to the TCSPS during interim stage from
Year 2023 to Year 2026. It is noted that the flow build-up to TCSPS includes
estimated flow based
on the EIA assessment findings of the Hong Kong International Airport Three
Runway System project.
6.7.4.2
As shown in the year-by-year flow
build-up in Appendix 6.1, it is estimated that
the existing pumping capacity of TCSPS (i.e. 1,840 l/s delivered by 2 duty
pumps) would be exceeded in Year 2023 after the first population intake of
TCNTE and the commissioning of the 3RS project at HKIA. To
mitigate this impact, EPD has arranged with DSD to fit out the TCSPS to its
designed maximum handling capacity (3,680 l/s) by Year 2023.
6.7.4.3
The TCSPS (Interim Stage) will discharge the
proposed flows to SHWSTW, including those from TCE West SPS, TCV West SPS, TCV
North SPS, TCV East SPS, and Upgraded CMRSPS with stand-alone pump sets.
6.7.4.4 Consent has been obtained from EPD to discharge the following sewage flow arising from the proposed TCNTE development to the public sewerage system:
a) discharge not more than 7,010 m3/day of sewage flow arising from the TCW development to the TCSPS;
b) discharge not more than 10,230 m3/day of sewage flow arising from the TCE development to the TCSPS up to Year 2026 or a later date agreed by EPD.
6.7.5
Tung Chung Sewage Pumping Station (TCSPS) and
Rising Main (Ultimate Stage)
6.7.5.1
From Year 2026, sewage from TCE West SPS will be
diverted toward TCE East SPS for direct connection to SHWSTW, thus no more sewage
from TCE development shall be discharged to TCSPS. As such, the ultimate capacity at TCSPS of
3,680 l/s after completion of fitting out works is sufficient to serve the
additional sewage flow derived from TCW development. EPD has arranged with DSD
to fit out the TCSPS to its designed maximum handling capacity (3,680 l/s) by
Year 2023.
6.7.5.2
The TCSPS (Ultimate Stage) will discharge the
proposed flows to SHWSTW including those from TCV West SPS, TCV North SPS, TCV
East SPS, and Upgraded CMRSPS.
6.7.5.3
The redirection of all the sewage flow
arising from the TCE development away from the TCSPS for direct discharge to
SHWSTW is scheduled for completion by Year 2026.
6.7.6 Siu Ho Wan Sewage Treatment Works (SHWSTW)
6.7.6.1
As shown in the year-by-year flow
build-up in Appendix 6.1, it is estimated that
the projected flow (ADWF) in year 2031 at SHWSTW will reach 144,585 m3/day.
While SHWSTW has a designed maximum handling capacity of 180,000 m3/day,
some of its treatment units have not been fully fitted out to the designed
maximum handling capacity. EPD has arranged with DSD to fit out the
remainder of the treatment units at SHWSTW to its designed maximum handling capacity
(180,000 m3/day) by 2024 in order to cope with the projected sewage flows
within its catchment.
6.7.6.2
As
both the planned DN1200 rising main under Agreement No. CE 6/2012(DS) and the proposed twin rising mains
under this Project will discharge to SHWSTW, a combined vortex chamber
arrangement to accommodate the proposed twin DN600 rising mains from TCE East
SPS in future has been explored. A preliminary arrangement amongst all
the inlet rising mains is shown in Figure 6.2. Further details will be studied and
agreed with DSD during detailed design stage. CEDD plans to entrust to DSD the
construction of the section of proposed twin rising mains under TCNTE within
SHWSTW in order to advance the construction of this section of rising mains.
6.7.6.3
Consent has been obtained from EPD to
increase the total sewage flow arising from the TCE development to the SHWSTW from
10,230 m3/day to not more than 43,070 m3/day after Year
2026.
6.7.7 Existing Sewers and Rising Mains
6.7.7.1
A new separate sewerage system will be provided to
serve TCW and TCE developments. All sewage from proposed developments will
discharge directly to proposed sewers, proposed and/or upgraded SPSs and to
SHWSTW without discharging to existing sewers and rising mains other than TCSPS
rising main as described above.
Therefore, the TCNTE development induces no impact to existing sewers
and rising mains.
6.7.7.2
Agreement No. CE 6/2012(DS) proposes a new DN1200
rising main and rehabilitation of the existing DN1200 rising main between
TCSPS and SHWSTW. DSD has agreed to incorporate the sewage flow generated from TCNTE
estimated under this study into their study under Agreement No. CE 6/2012(DS)
such that there will be sufficient capacity in the new and rehabilitated rising
mains to cater for the sewage flow generated by TCNTE. Therefore,
there is no adverse impact to the new and rehabilitated rising mains.
6.7.7.3
As gravity sewers will not be pressurized, they
carry no risk of bursting. All proposed rising mains will be encased in
concrete surround, it is expected that there will be no bursting of rising
mains, and therefore there will be no impact to water quality or ecology due to
sewer bursting discharge.
6.7.8 Septicity and Odour Assessment
6.7.8.1 Qualitative study has been carried out to investigate the effect of sewerage and sewage characteristics on the potential to cause the sewage to turn septic and therefore lead to odour emission and corrosive damage in both sewage collection network and infrastructure at SHWSTW.
6.7.8.2 Septicity is caused under the anaerobic condition in the sewerage system after the dissolved oxygen is depleted by aerobic biological activity. Anaerobic activity can then lead to the production of hydrogen sulphide (H2S) and potential to create odour nuisance. The desertion rate of H2S increases with the concentration of organic substances in the sewage and generally with decreasing pH value, which can give rise to corrosion of the concrete infrastructure and metal components of the sewerage system.
6.7.8.3
The
key parameters for formation of septicity is dependent upon the sewage
strength, flow rate characteristics, length of the sewerage system, oxygen
level and temperature. Under this study,
the proposed sewerage system is a separate system and mainly receives
residential and commercial sewage and the system arrangement of the catchment
is mainly relied on pumping with five new Sewage Pumping Stations (SPS) and
upgrade of one existing SPS (refer to Figure 6.4, Figure 6.5 and Figure 6.9) plus some of the rising mains
involved are considerably long
as shown in Table 6.12.
Based on this conceptual design of sewerage arrangement, the septic
issue in the sewage collection network is anticipated due to the following main
reasons:
a) The sewage in the proposed sewerage system is mainly domestic sewage with no dilution, which has a relatively high organic content favouring the septic issue;
b) Long rising mains with the longest length of about 4km, which causes long sewage retention time (i.e. 2 to 2.5 hours at night time with minimum flow rates) with low oxygen content in the sewerage system; this condition favours anaerobic degradation of organic matter consequently turning sewage into septic;
c) High variation of flow pattern resulting in long hydraulic detention time in the mains and pump wells in particular during night time period;
d) Relatively high temperature in hot summer period.
Table
6.12 Approximate Length of Rising Mains Serving SPSs
|
Sewage Pumping Station |
ADWF
(m3/day) |
Approximate Length of Rising
Main (m) |
|
TCV North SPS |
278 |
200 |
|
TCV West SPS |
551 |
200 |
|
TCV East SPS |
8,864 |
2,500 |
|
Upgraded CMRSPS |
3,119 |
300 |
|
TCE West SPS |
12,891 |
1,500 |
|
TCE East SPS |
45,732 |
4,000 |
6.7.8.4
All
parameters mentioned above favour the generation of septic condition, therefore
septicity control will be necessary in this sewage collection network. Based on the preliminary qualitative
septicity assessment, addition of chemicals such as nitrate salts or sodium
chlorite to the sewage is considered as one of the
feasible septicity mitigation measures at
all proposed sewage pumping
stations in TCNTE, while further design details will be carried out at future
detailed design stage to determine the need and extent of septicity mitigation
measure, and to optimize the design so as to avoid septicity before resorting
to the use of chemicals for mitigation. The most effective way for automatic
septicity control is to monitor the dissolved sulphide level in the sewerage
system at locations approved by DSD. Potential odour nuisance and significant
corrosion of sewerage system are anticipated when the sulphide level in sewage
is above 2mg/L. This value can be potentially used to trigger the mitigation
measure to control the septicity and H2S emission to
acceptable levels.
6.7.8.5
Odour
emission from the pump wells/ sumps will be anticipated. For the odour control, all pumping stations
should be enclosed in building with sufficient ventilation in order to maintain
negative pressure preventing foul air escape from the building. It is suggested that ventilation rate for the
man and non-man access should be able to achieve at least 10 and 5 air changes per
hour respectively. Wet well can be air sealed, the ventilated foul air should
be treated by a deodourization system before discharging into the atmosphere.
Relevant Odour Impact Assessment and corresponding mitigation measures are further presented in Section 3.5.