Agreement No. CE 57/2001

 

Environmental and Traffic Impact Assessment

Study for

Fill Bank at Tseung Kwan O Area 137

 

Environmental Impact Assessment Report

 

 

 
 

 

 

 

 

 

 

 

 

 

 

 

 

 

 

 

 

 

 

 

 

 

 

 

 

Project Consultancy Team:

 

CH2M HILL (China) Limited

in association with

MVA Hong Kong Limited

ACL Asia Limited

        

 

 

 

Reference      :

 

EN-R014F-2ADD.02

 

Client             :

 

Civil Engineering Department

 

Date                :

 

March 2002

 
 

 

 

 

 

 

 

 

 

 


 



 

 

 

 

 

 

 

 

 

 

 

 

 

 

 

 

TABLE OF CONTENTS

 

1.         Introduction

1.1       Background

1.2       Urgent Demand on Public Filling Facilities

1.3       Project Design and Technical Assessments

1.4       Objectives of the EIA Study

1.5       Public Inputs

1.6       Structures of the EIA Report

2.         Site Selection History and Design Alternatives Consideration

2.2       Site Selection History

2.3       Design Alternatives Consideration

3.         Project Description

3.1       The Subject Site and its Environs

3.2       Project Design

3.3       Do-Nothing Scenario

4.         Air Quality Impact Assessment

4.1       Introduction

4.2       Assessment Criteria

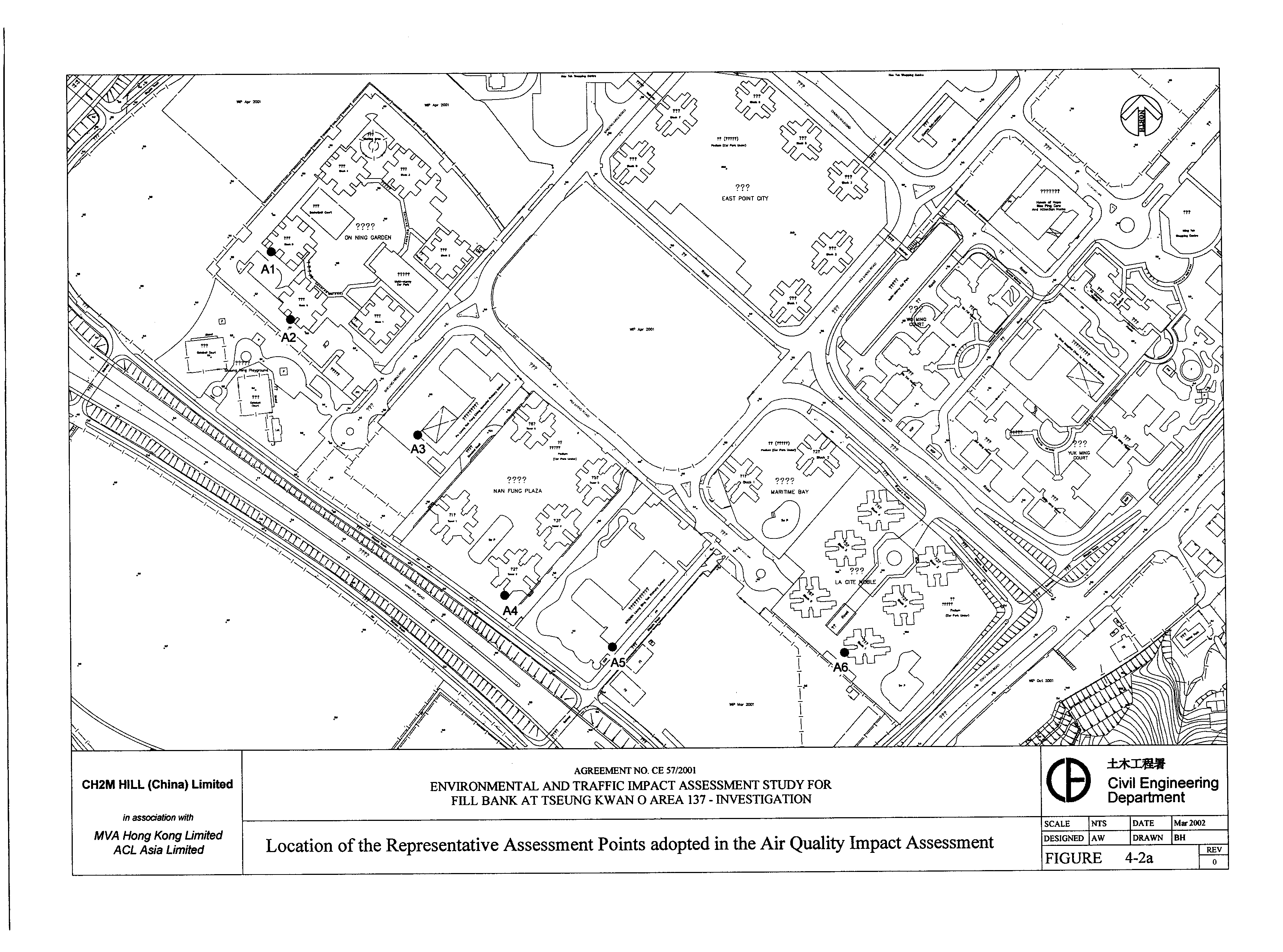
4.3       Study Area and Air Sensitive Receivers

4.4       Baseline Air Quality

4.5       Establishment Phase

4.6       Operational Phase

4.7       Decommissioning Phase

4.8       Environmental Monitoring & Audit (EM&A) Requirements

4.9       Assessment Conclusions

5.         Noise Impact Assessment

5.1       Introduction

5.2       Relevant Legislation and Standards

5.3       Study Area and Noise Sensitive Receivers

5.4       Establishment Phase

5.5       Operational Phase

5.6       Decommissioning Phase

5.7       Environmental Monitoring and Audit Requirements

5.8       Conclusion

6.         Water Quality Impact Assessment

6.1       Introduction

6.2       Relevant Legislation and Guidelines

6.3       Existing Water Quality and Sensitive Receivers

6.4       Environmental Impact Identification and Evaluation

6.5       Mitigation Measures

6.6       Residual Impact

6.7       Cumulative Environmental Impacts

6.8       Environmental Monitoring and Audit

6.9       Conclusions

7.         lANDFILL gaS hazard ASSESSMENT

7.1       Introduction

7.2       Environmental Legislation, Policies, Plans, Standards and Criteria

7.3       Nature of Landfill Gas and its Concern

7.4       SENT Landfill

7.5       Landfill Gas and Groundwater/ Leachate Monitoring

7.6       Qualitative Risk Assessment

7.7       Recommended Protection Measures

7.8       Precautionary and Protection Measures

7.9       Conclusion

8.         Landscape and Visual Impact Assessment

8.1       Introduction

8.2       Project Description - Fill Bank at Tseung Kwan O - Area 137

8.3       Standards and Legislation

8.4       Landscape and Visual Impact Assessment Methodology

8.5       Baseline Study - Landscape

8.6       Baseline Study - Tree Survey Methodology

8.7       Baseline Study - Visual

8.8       Review of Planning and Development Control Framework

8.9       Impact Assessment  - Landscape (unmitigated)

8.10      Impact Assessment - Visual (unmitigated)

8.11      Impact Assessment - Tree Survey

8.12      Mitigation Measures

8.13      Residual Impacts

8.14      Conclusion

9.         Summary of Environmental outcomes

9.1       Introduction

9.2       Environmental Benefits

10.       EM&A Requirements and Implementation Schedule of Environmental Mitigation Measures

10.1      Introduction

10.2      EM&A Requirements

10.3      Implementation Schedule of Environmental Mitigation Measures

11.       Overall conclusion

11.1      Introduction

11.2      Key Environmental Issues

11.3      Air Quality Impact

11.4      Noise Impact Assessment

11.5      Water Quality Impact Assessment

11.6      Landfill GAs Hazard Assessment

11.7      Landscape and Visual Impact Assessment

11.8      Other Environmental Factors

11.9      Overall Conclusion


LIST OF FIGURES

 

Figure 1‑1       Location of the existing Public Filling Facilities

Figure 1‑2       Location of the Subject Site

Figure 2‑1       Locations of the reclamation project sites that would be receiving public fill commencing from 2003 through 2005

Figure 2‑2       Location of Tan Kwai Tsuen Borrow Area and Quarry considered before in the initial site search process for the fill banks

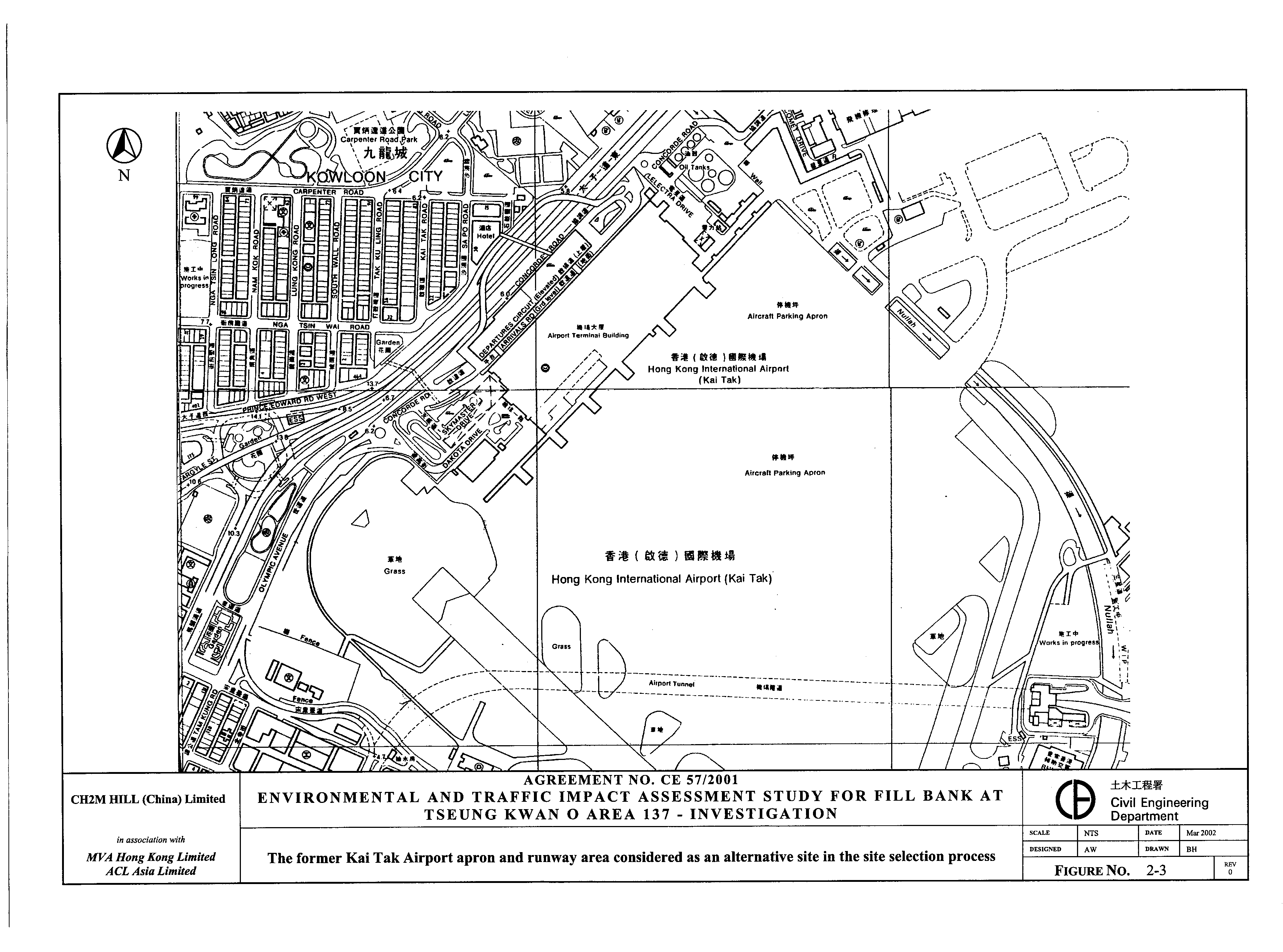
Figure 2‑3       The former Kai Tak Airport apron and runway area considered as an alternative site in the site selection process

Figure 3‑1       Area situated within 300m or 500m radius of the site boundary and representative uses along Wan Po Road

Figure 3‑2       Fill Bank Preliminary Development Programme

Figure 3‑3       General layout of the existing reclaimed land at TKO Area 137

Figure 3‑4       Preliminary design of the fill bank

Figure 3‑5       Representative fill bank profile (southern site portion)

Figure 3‑6       North-south cross section of the fill bank (north and southern site portion)

Figure 3‑7       North-south cross section of the fill bank (southern site portion)

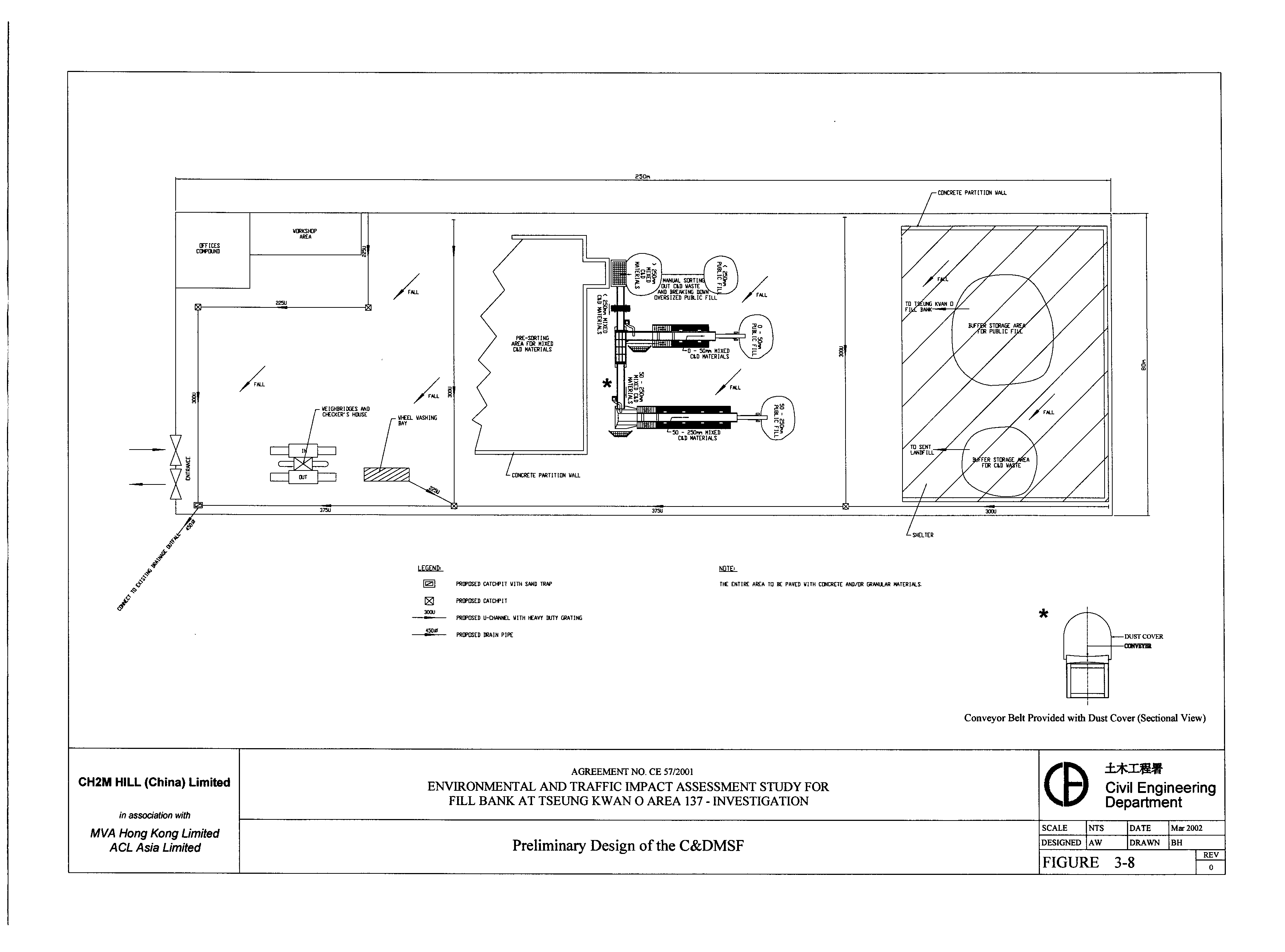
Figure 3‑8       Preliminary design of the C&DMSF

Figure 3‑9       Preliminary design of the barging point onsite

Figure 4‑1       The 500 Study Area for Air Quality Impact Assessment and Air Sensitive Receivers along Wan Po Road

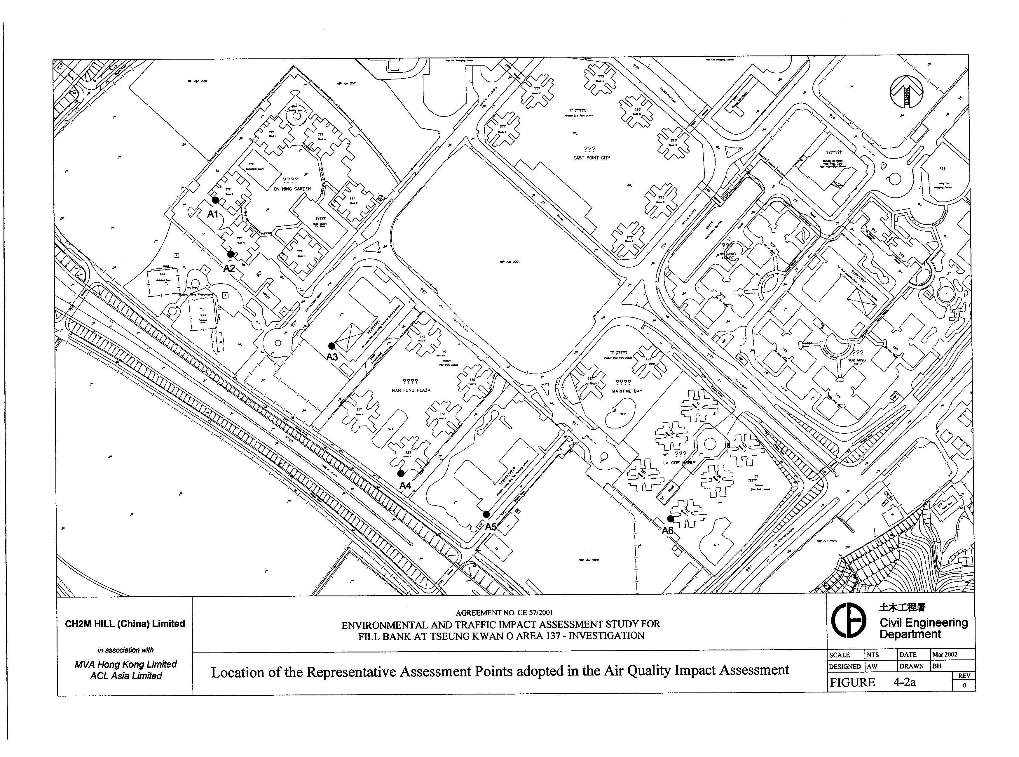
Figure 4‑2        Location of the Representative Assessment Points adopted in the Air Quality Impact Assessment (a, b, c, d)

Figure 4‑3       Mitigated maximum hourly average TSP concentrations predicted at 1.5m above ground under Scenario 2, Operational Phase Dust Emission Impact Assessment

Figure 4‑4       Mitigated daily average TSP concentrations predicted at 1.5m above ground under Scenario 2, Operational Phase Dust Emission Impact Assessment

Figure 4‑5       Labels of Road Carriageways, Vehicular Emission Impact Assessment

Figure 4‑6       Location of existing and assumed Diesel Fuel Consuming Stacks modelled in the air quality impact assessment

Figure 4‑7       Cumulative Maximum 1-hour NO2 Concentrations predicted at worst-affected height (1.5m above ground), Vehicular Emission Impact Assessment (a, b, c, d, e, f)

Figure 4‑8       Cumulative Maximum 24-hour NO2 Concentrations predicted at worst-affected height (1.5m above ground), Vehicular Emission Impact Assessment  (a, b, c, d, e, f)

Figure 4‑9       Cumulative Maximum 24-hour RSP Concentrations predicted at worst-affected height (1.5m above ground), Vehicular Emission Impact Assessment  (a, b, c, d, e, f)

Figure 4‑10     Mitigated maximum hourly average TSP concentrations predicted at 1.5m above ground, Decommissioning Phase Dust Emission Impact Assessment

Figure 4‑11     Mitigated daily average TSP concentrations predicted at 1.5m above ground, Decommissioning Phase Dust Emission Impact Assessment

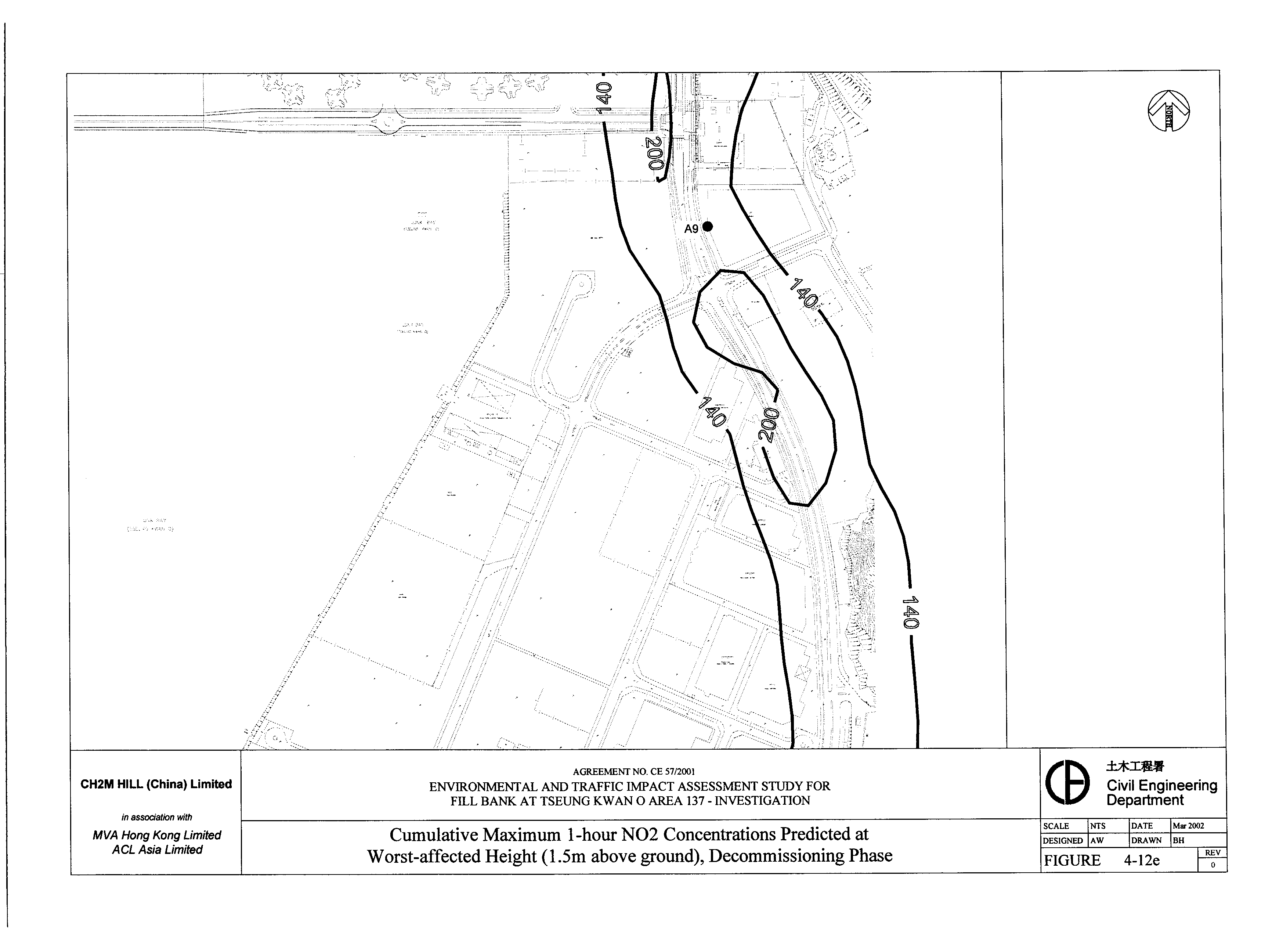
Figure 4‑12     Cumulative Maximum 1-hour NO2 Concentrations predicted at worst-affected height (1.5m above ground), Decommissioning Phase (a, b, c, d, e, f)

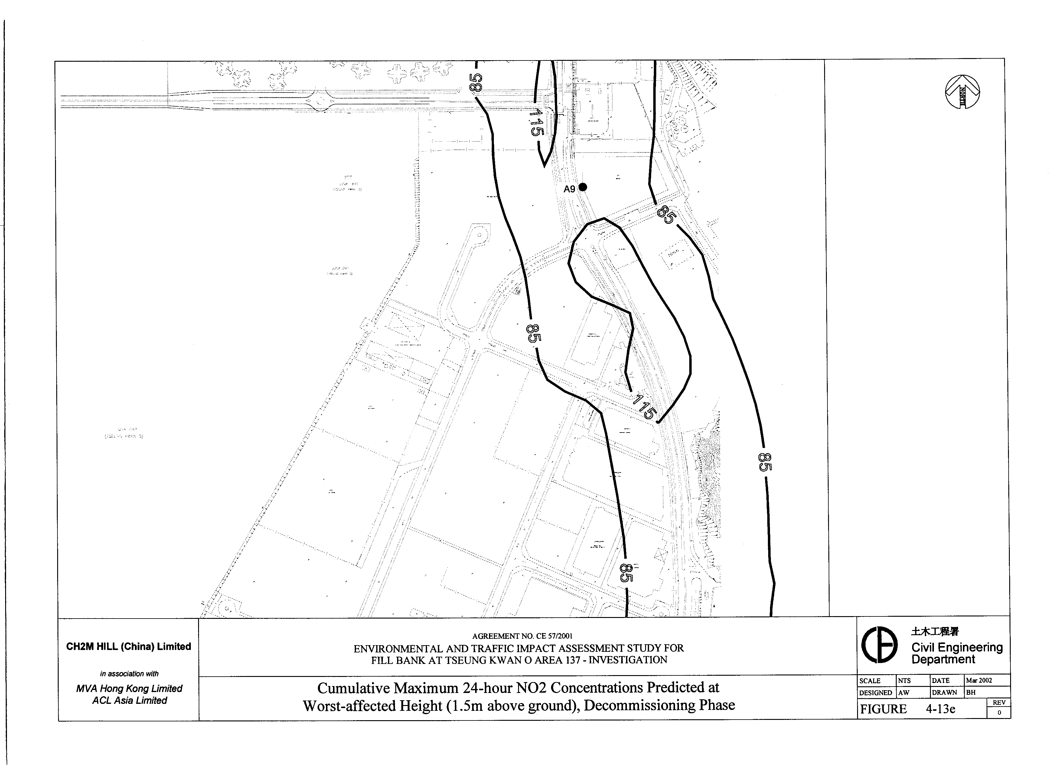
Figure 4‑13     Cumulative Maximum 24-hour NO2 Concentrations predicted at worst-affected height (1.5m above ground), Decommissioning Phase (a, b, c, d, e, f)

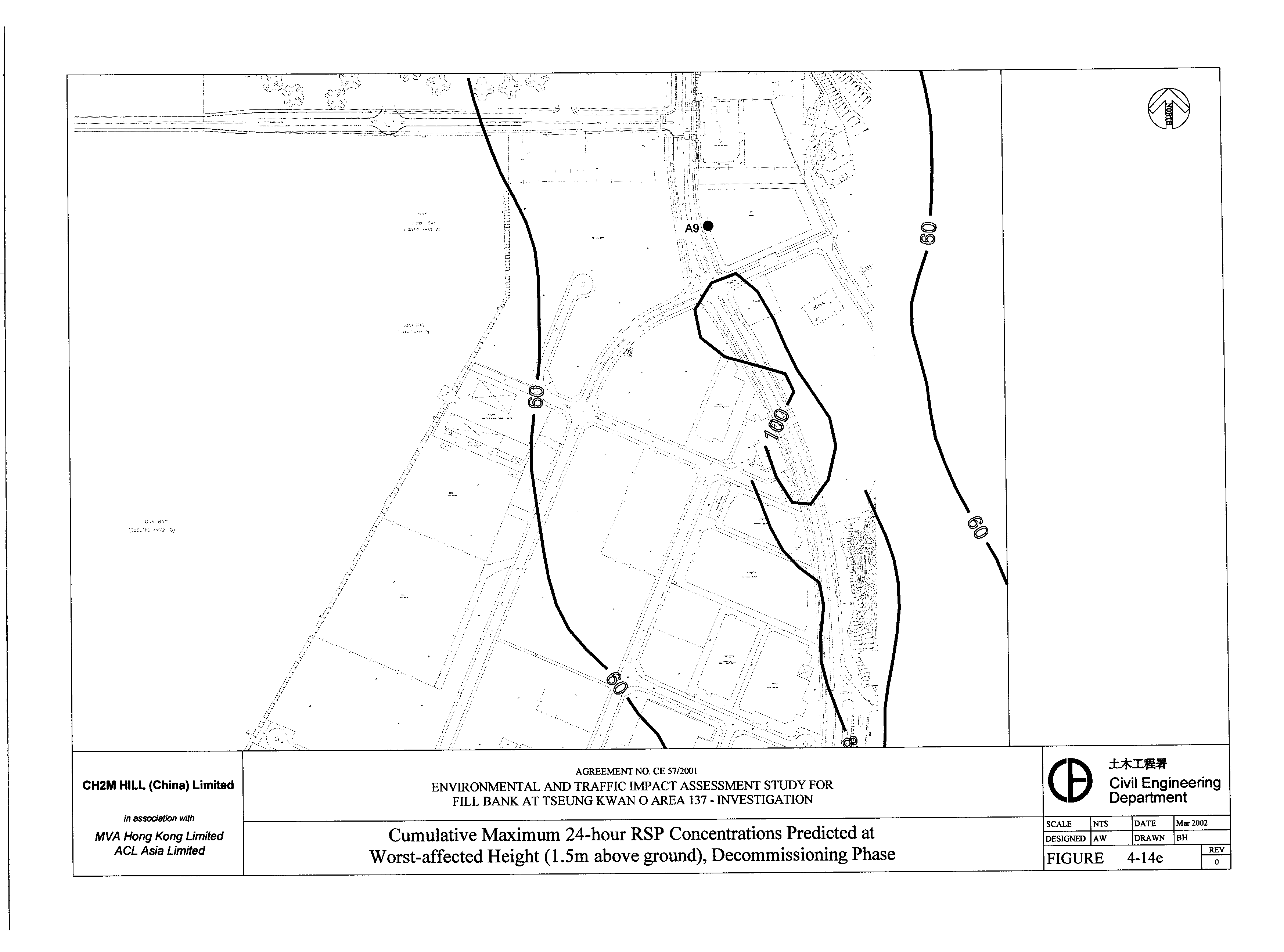
Figure 4‑14     Cumulative Maximum 24-hour RSP Concentrations predicted at worst-affected height (1.5m above ground), Decommissioning Phase (a, b, c, d, e, f)

Figure 5‑1       The 300 Study Area for Noise Impact Assessment and Noise Sensitive Receivers along Wan Po Road

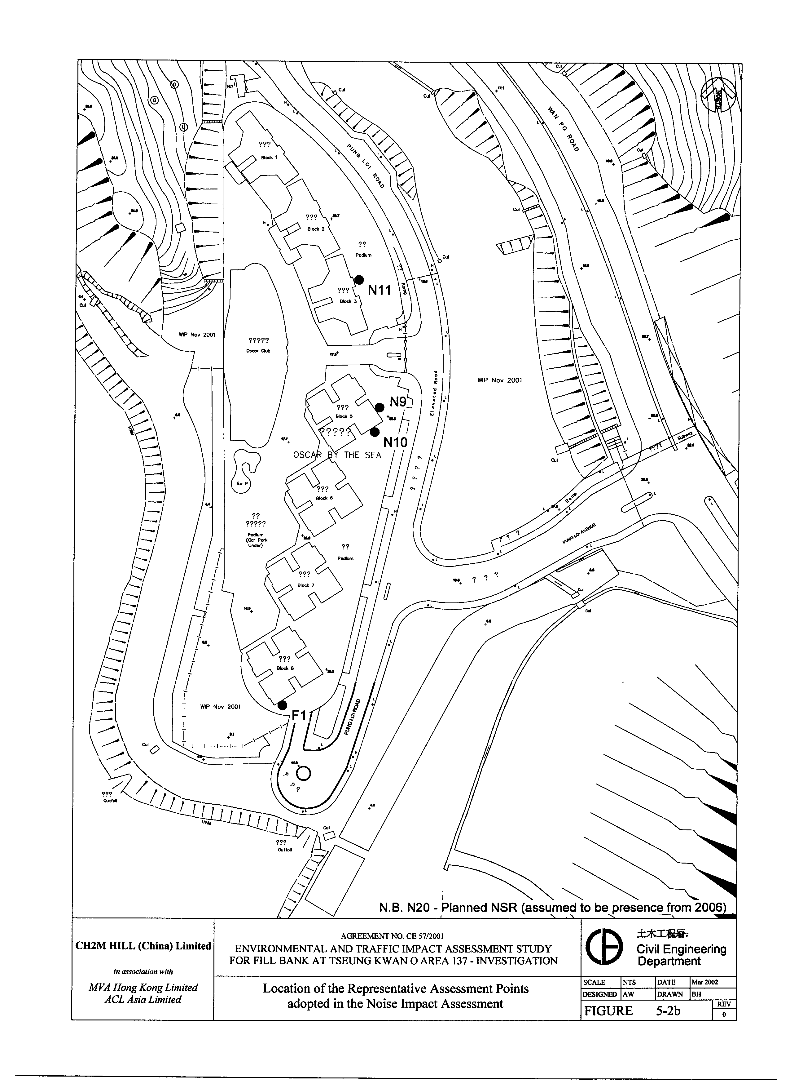
Figure 5‑2       Location of the Representative Assessment Points adopted in the Noise Impact Assessment (a, b, c, d)

Figure 6‑1       Location of the Eastern Buffer Water Control Zone and Junk Bay Water Control Zone

Figure 6‑2       Location of the Water Monitoring Stations

Figure 6‑3       Location of Tung Lung Chau Fish Culture Zone and nearby WSD saltwater intakes

Figure 6‑4       Alignment of the temporary stormwater drainage system

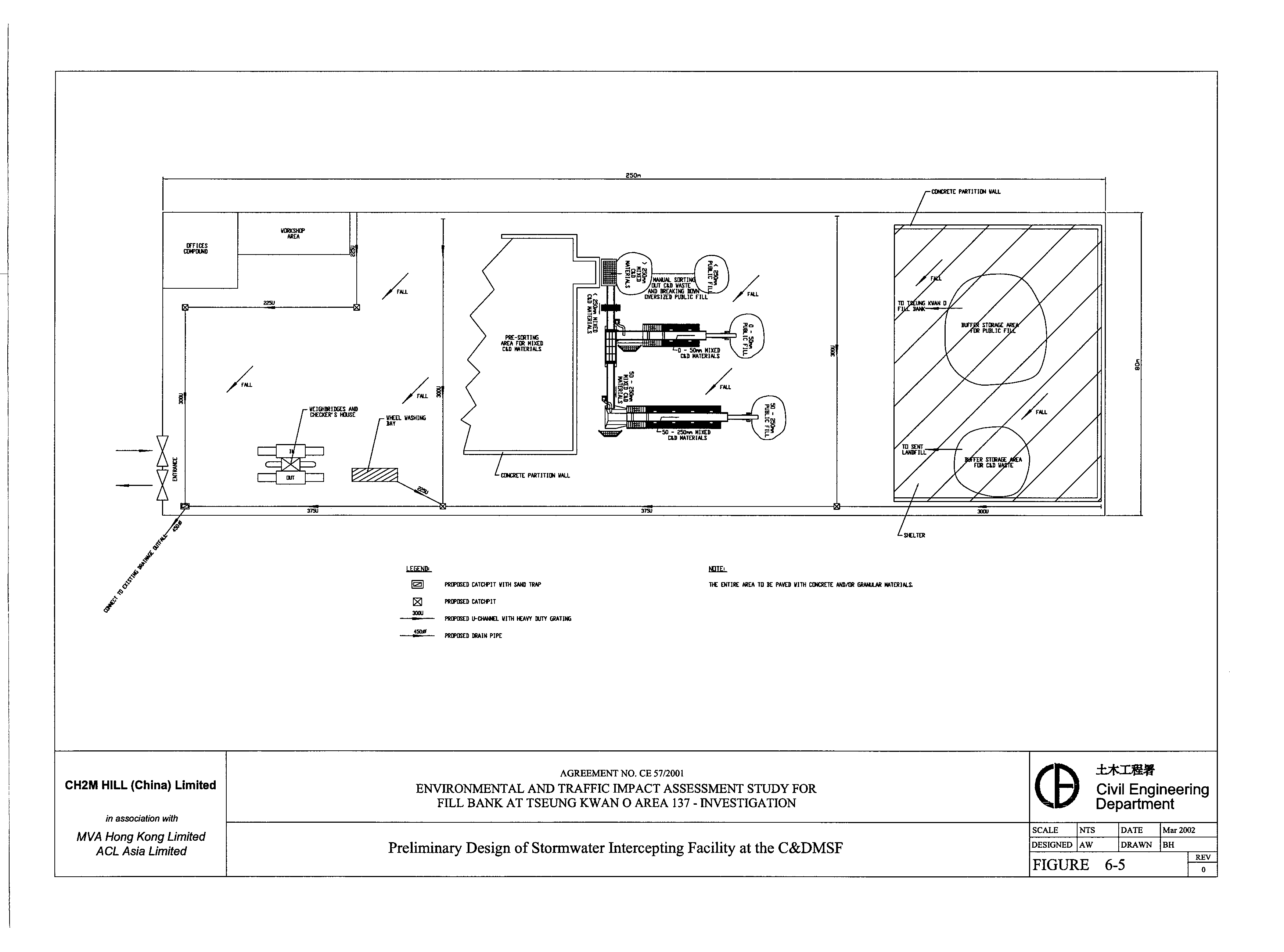
Figure 6‑5       Preliminary design of stormwater intercepting facility at the C&DMSF

Figure 6‑6       Use of backhoe fixed on a well designed flat-top pontoon

Figure 6‑7       Use of hopper barges with mobile crane

Figure 6‑8       Use of derrick barges with built-in crane

Figure 7‑1       Portion of the Site situated within the 250m consultation zone of SENT landfill

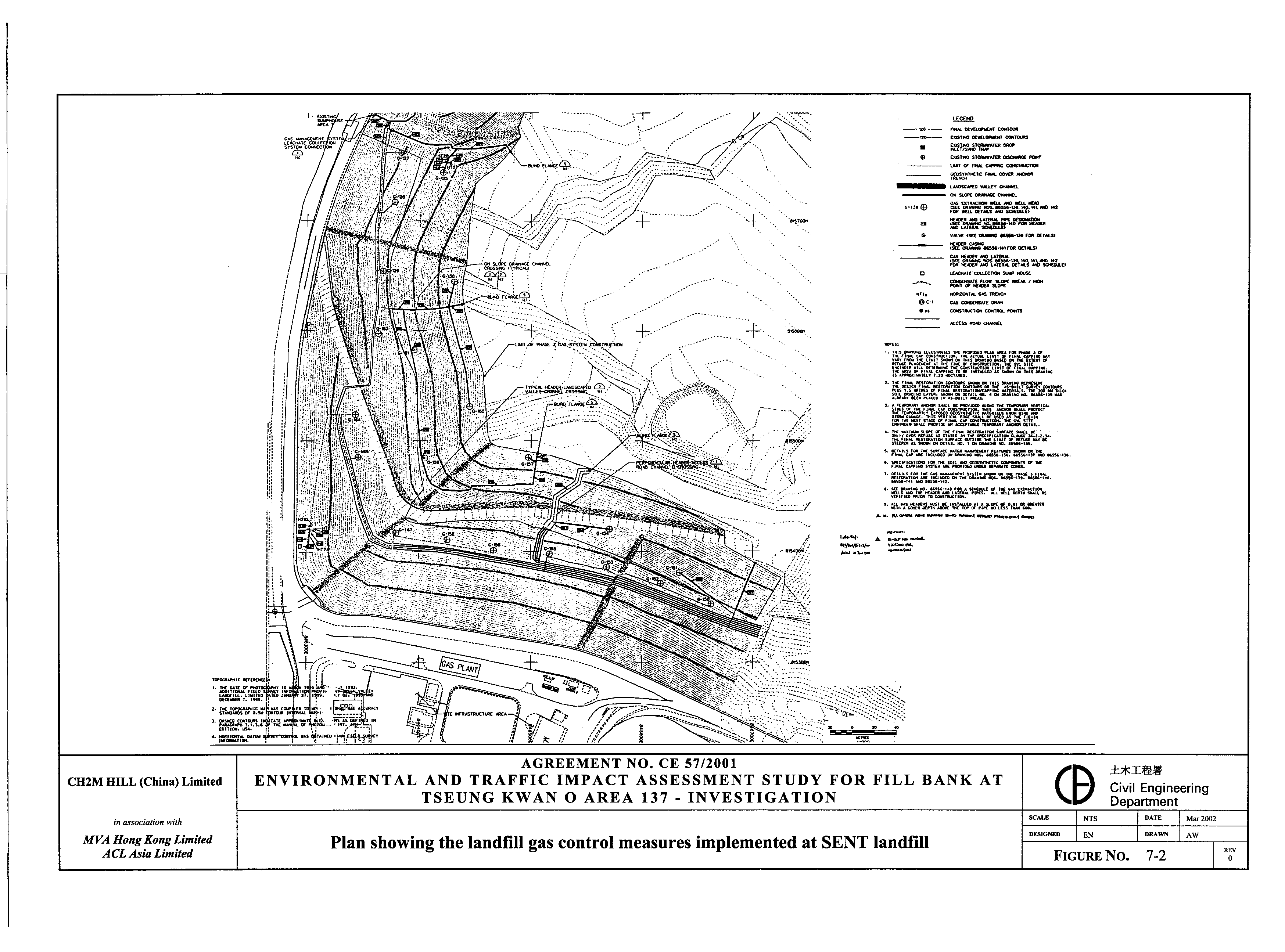
Figure 7‑2       Plan showing the landfill gas control measures implemented at SENT landfill

Figure 7‑3       Location of landfill gas and leachate monitoring wells at or near the south-western boundary of the SENT landfill

Figure 8‑1       Location Plan

Figure 8‑2       Landscape Character Areas

Figure 8‑3       Landscape Character Photographs (a, b, c, d, e, f, g)

Figure 8‑4       Landscape Resources

Figure 8‑5       Locations of Visual Envelop, VSRs, PVSRs, Photomontages

Figure 8‑6       Planning and Development Plan

Figure 8‑7       Visual Impact Assessment

Figure 8‑8       Mitigation Measures (a,b)

Figure 8‑9       Photomontage View from Clearwater Bay Country Club (a,b)

Figure 8‑10     Photomontage View from Area 86 (a,b)

Figure 8‑11     Photomontage View from Siu Sai Wan (a,b)

 

 

 


LIST OF TABLES

 

Table 2‑1     Forecast Data on Public Fill Generation, Public Filling Capacity, and Shortfall in Public Fill Receiving Capacity from Years 2002 to 2004

Table 2‑2     Reclamation sites currently planned to receive public fill

Table 2‑3     Distance Separation between TKO Area 137 and nearby sensitive receivers in comparison with that of the old airport site

Table 2‑4     Key Factors considered in the Site Selection Process

Table 3‑1     Fill Bank Traffic Distribution by Time

Table 4‑1     Hong Kong Air Quality Objectives (AQOs)

Table 4‑2     Air Sensitive Receivers located within the 500m Study Area and along Wan Po Road

Table 4‑3     Long-term Average (1996 to 2000) Air Quality Data obtained at EPD’s Air Quality Monitoring Stations at Sham Shui Po, Central/ Western and Kwun Tong

Table 4‑4     Summary on Scenarios considered in the Dust Emission Impact Assessment

Table 4‑5     Maximum 1-hour TSP Concentration predicted at the RAPs (Scenario 1(a) and 2(a))

Table 4‑6     24-hour Average TSP Concentrations predicted at the RAPs (Scenario 1(a) and 2(a))

Table 4‑7     Maximum 1-hour TSP Concentrations predicted at the RAPs (Scenario 1(b) and 2(b))

Table 4‑8     2002 Vehicular Emission Factors

Table 4‑9     Year 2004 A.M. Peak Hour Traffic Flows

Table 4‑10   Year 2004 Fill Bank Peak Hour Traffic Flows

Table 4‑11   Year 2004 P.M. Peak Hour Traffic Flows

Table 4‑12   Maximum 1-hour NO2 and Average Daily NO2 and RSP at the RAPs (2004 Fill Bank Peak Hour, Vehicular Emission Impact Assessment)

Table 4‑13   Maximum 1-hour NO2 and Average Daily NO2 and RSP at the RAPs (2004 A.M. Peak Hour; Vehicular Emission Impact Assessment)

Table 4‑14   Maximum 1-hour NO2 and Average Daily NO2 and RSP at the RAPs (2004 P.M. Peak Hour; Vehicular Emission Impact Assessment)

Table 4‑15   Fossil Fuel Consuming Stacks in the Study Area

Table 4‑16   Predicted Maximum 1-hour NO2 and Average Daily NO2 at the RAPs (2004 Fill Bank Peak Hour; with Aerial Industrial Emissions)

Table 4‑17   Maximum 1-hour NO2 and Average Daily NO2  at the RAPs (2004 A.M. Peak Hour; with Aerial Industrial Emissions)

Table 4‑18   Maximum 1-hour NO2 and Average Daily NO2  at the RAPs (2004 P.M. Peak Hour; with Aerial Industrial Emissions)

Table 4‑19   Maximum 1-hour TSP Concentrations predicted at the RAPs (Decommissioning Phase) (based on averaged dust emission rates calculated from daily truckloads)

Table 4‑20   24-hour Average TSP Concentrations predicted at the RAPs (Decommissioning Phase)

Table 4‑21   Maximum 1-hour TSP Concentrations predicted at the RAPs (Decommissioning Phase)

Table 4‑22   2005 Vehicular Emission Factors

Table 4‑23   Maximum 1-hour NO2 and Average Daily NO2 and RSP at the RAPs (2007 Fill Bank Peak Hour, Vehicular Emission Impact Assessment)

Table 4‑24   Maximum 1-hour NO2 and Average Daily NO2 and RSP at the RAPs (2007 A.M. Peak Hour; Vehicular Emission Impact Assessment)

Table 4‑25   Maximum 1-hour NO2 and Average Daily NO2 and RSP at the RAPs (2007 P.M. Peak Hour; Vehicular Emission Impact Assessment)

Table 4‑26   Predicted Maximum 1-hour NO2 and Average Daily NO2 at the RAPs (2007 Fill Bank Peak Hour; with Aerial Industrial Emissions)

Table 4‑27   Maximum 1-hour NO2 and Average Daily NO2  at the RAPs (2007 A.M. Peak Hour; with Aerial Industrial Emissions)

Table 4‑28   Maximum 1-hour NO2 and Average Daily NO2  at the RAPs (2007 P.M. Peak Hour; with Aerial Industrial Emissions)

Table 5‑1     Representative Assessment Points selected for Noise Impact Assessment

Table 5‑2     Noise Limits for Daytime Construction Activities

Table 5‑3     Area Sensitivity Ratings of NSRs

Table 5‑4     Representative Inventory on PME used during the Operational Phase

Table 5‑5     Representative Inventory of PME used in the Contract CV/97/01

Table 5‑6     Representative Inventory on PME used during the Decommissioning Phase

Table 5‑7     Noise Levels predicted at the RAPs F1 and F2

Table 5‑8     Operational Phase Traffic Noise Assessment Scenarios

Table 5‑9     Noise Levels predicted at the RAPs F1, F2 and F3 during the decommissioning phase of the fill bank

Table 6‑1     Water Quality Monitoring Data (averaged values) obtained in 2000 at EPD’s Monitoring Stations in the Eastern Buffer and Junk Bay Water Control Zone

Table 7‑1     Classification of Risk Category

Table 7‑2     Summary of General Categorisations of Risk

Table 7‑3     Source-Pathway-Target Analysis

Table 7‑4     Specifications of LFG Monitoring Equipment Requirement

Table 7‑5     Action Plan - LFG Monitoring During the Construction Stage

Table 8‑1     Existing Landscape Character Areas (Refer to Figure 8‑2)

Table 8‑2     Existing Landscape Resources (Refer to Figure 8‑4)

Table 8‑3     Summary of Visually Sensitive Receivers

Table 8‑4     Review of Existing Planning and Development Control Framework (Refer to Figure 8‑6)

Table 8‑5     Impact Assessment of Landscape Character Areas

Table 8‑6     Impact Assessment of Landscape Resources

Table 8‑7     Significance of Visual Impact anticipated to be received by VSR.

Table 8‑8     Landscape Works Responsibilities

Table 8‑9     Residual Visual Impact

Table 9‑1     Environmental Sensitive Areas and Population Protected


 

LIST OF APPENDICES

 

Appendix 1-1     WBTC No. 4/98 and WBTC No. 5/99

Appendix 1-2     Project Profile

Appendix 1-3     EIA Study Brief No. ESB-083/2001

Appendix 4-1     Indicative alignment of the main haul roads modelled and Worksheets showing Calculation of Dust Emission Rates, Operational Phase Dust Emission Impact Assessment

Appendix 4-2     Typical FDM Result File, Maximum 1-hour TSP modelling, Operation Phase Dust Emission Impact Assessment, Scenario 1 and 2

Appendix 4-3     Typical CALINE4 result files, Operational Phase Vehicular Emission Impact Assessment

Appendix 4-4     Typical ISCST3 modelling result file, Industrial Emission Modelling for Operational and Decommissioning Phase Vehicular Emission Impact Assessment

Appendix 4-5     Worksheets showing Calculation of Dust Emission Rates, Decommissioning Phase Dust Emission Impact Assessment

Appendix 4-6     Typical FDM Result File, Mitigated Maximum 1-hour TSP modelling, Decommissioning Phase Dust Emission Impact Assessment

Appendix 4-7     Typical CALINE4 Result Files, Decommissioning Phase Vehicular Emission Impact Assessment

Appendix 5-1     Spreadsheets showing breakdown of calculations, Operational Phase Fixed Noise Impact Assessment

Appendix 5-2     Worst-Case 2004 Traffic Forecast, Operational Phase Traffic Noise Impact Assessment

Appendix 5-3     Letter from Transport Department showing endorsement of the Traffic Forecast

Appendix 5-4     Existing direct at-source traffic noise mitigation measures implemented on Wan Po Road – Operational Phase Traffic Noise Impact Assessment

Appendix 5-5     Detailed Traffic Noise Modelling Results, Operational Phase Traffic Noise Impact Assessment

Appendix 5-6     Sample Calculations at 5 Assessment Points, Operational Phase Traffic Noise Impact Assessment

Appendix 5-7     Further mitigated noise levels in the presence of the existing 4m high noise barrier along road edge future noise barrier along the Central Divider

Appendix 5-8     Spreadsheets showing breakdown of calculations, Decommissioning Phase Fixed Noise Impact Assessment

Appendix 6-1     Statement of Water Quality Objectives (Eastern Buffer Water Control Zone)

Appendix 6-2     Statement of Water Quality Objectives (Junk Bay Water Control Zone)

Appendix 6-3     Standard Sand Trap Design (CED Drawing No. GC 1034)

Appendix 7-1     Landfill Gas Monitoring Data obtained at the southern edge of SENT landfill near the Fill Bank Site

Appendix 7-2     Leachate Monitoring Data obtained at the southern edge of SENT landfill near the Fill Bank Site

Appendix 10-1   Implementation Schedule of recommended Environmental Mitigation Measures

 

 

 

 

 

 

 

 

 

 


1.               Introduction

1.1            Background

1.1.1        Construction and Demolition Material (C&D Material) is generated from civil engineering projects, roadworks, new building construction, demolition works, and building renovation.  The major portion of C&D Material consists of excavated earth, asphalt, building debris, broken rock and concrete.  These are inert material (i.e. do not decompose), do not cause bad smell, and are collectively referred to as “public fill”.  Public fill is reusable in reclamation and earth filling projects.  In 2000, the construction industry in the territory generated about 7.7 million cubic metres of Construction and Demolition (C&D) Material.  Of which, 6.1 million cubic metres of public fill was reused in reclamation projects.

1.1.2        It is the government policy to make beneficial use of public fill generated by the construction industry.  The beneficial use of public fill in reclamation and earth filling projects reduce the demand on general fill and help to conserve natural resources and avoid environmental impact from earth borrowing activities and marine sand extraction.  Relevant Technical Circulars (TC) have been issued by Works Bureau (WB) to promulgate the policy and as measures to maximise the reuse of public fill and minimise the incidences of illegal dumping. The WBTC No. 4/98 Use of Public Fill in Reclamation and Earth Filling Projects and WBTC No. 5/99 Trip-ticket System for Disposal of Construction and Demolition Material are presented in Appendix 1-1 for reference. 

1.1.3        The Public Fill Committee (PFC) is responsible for co-ordinating the provision and operation of public filling facilities, which include public filling areas, public filling barging points and public fill stockpiling areas.  The public filling facilities are operated to receive public fill from construction and demolition sites of Government/ Public Corporations’ contracts and private sectors.

1.1.4        At the planning stage of a Government public works contract, under the requirement of WBTC No. 5/99, the project officer is required to seek confirmation from the PFC through its Secretary as to whether public filling facilities would be available for the disposal of public fill generated.  The Secretariat of the Committee is provided by the Port Works Division of Civil Engineering Department (CED).  The PFC would designate the public filling facilities, if available, for the contract.  CED implements and manages public filling facilities and dumping licences in the territory. 

 

1.2            Urgent Demand on Public Filling Facilities

1.2.1        The reuse of public fill relies on programmes of reclamation and earth filling projects.  However, it is impracticable to perfectly match programmes of reclamation and earth filling works with public fill generated from the Construction Industry.  The consultancy study “Review of the Public Filling Strategy and Programme” commissioned by Civil Engineering Department (CED) completed in 1998 recommended that fill banks shall be established in the territory for temporary storage of public fill when the demand is low such that they can be effectively delivered for reuse when the demand is high.

1.2.2        The public filling capacity provided by the existing Category A reclamation projects including the public filling areas in Tseung Kwan O, Pak Shek Kok, Tung Chung Development Phase 3A, Jordan Road Reclamation Phase III and Tuen Mun Area 38 Reclamation Stage 2 will all be exhausted by October 2002.  Figure 1-1 shows the locations of these public filling areas and the existing short-term barging points around the territory. 

1.2.3        CED identified that the new reclamation projects such as North Tsing Yi reclamation and Reclamation for Yam O Public Transport Interchange planned to commence in 2002 through 2004 will not be able to absorb all public fill generated during the coming years.  It was also identified not practicable to further advance programme of other reclamation projects, taking into account the relevant statutory procedures, programme and contract requirements. 

1.2.4        It was identified that from late 2002 to 2005 there will be a significant shortfall in public filling capacity.  In April 2001, the Government put forward the proposal of establishing temporary fill banks for storage of public fill so that the material can be transported to reclamation (and earth filling) project sites for reuse as they commence.  The Government will also take all practical steps to ensure that the reclamation projects starting before 2005 will proceed under the planned programmes.

1.2.5        Area 137 at Tseung Kwan O (TKO), which has served as a public filling area, has been identified to be a suitable site for establishment of a temporary fill bank from late 2002 to end of 2004 after a site search process.  The fill bank will be able to accommodate a total quantity of approximately 6 million cubic metres (Mm3) of public fill.  Figure 1-2 shows the location of the subject site.

 

1.3            Project Design and Technical Assessments

1.3.1        The proposed fill bank at TKO Area 137 is planned and designed by in-house staff of Civil Engineering Department (CED).  Establishment, operation and decommissioning of the fill bank will be carried out by a contractor under the supervision of CED.

1.3.2        CH2M HILL (China) Limited (CH2M), in association with MVA Hong Kong Limited (MVA) and ACL Asia Limited (ACLA), has been commissioned by CED on 23 November 2001 to undertake an Environmental and Traffic Impact Assessment Study for the proposed fill bank at TKO Area 137. 

1.3.3        The proposed fill bank at TKO Area 137 is a designated project by virtue of C.11 in Section C Reclamation, Hydraulic and Marine Facilities, Dredging and Dumping in Schedule 2, Part I of the EIA Ordinance.  C.11 specifies that a public dumping area of not less than 2 hectare in size is a designated project.  A project profile prepared and submitted by CED to Director of Environmental Protection (DEP) was displaced to the public for inspection from 18 August 2001 to 31 August 2001. DEP then issued an Environmental Impact Assessment (EIA) Study Brief (No. ESB-083/2001) for carrying out of the EIA study.  The Project Profile and EIA Study Brief are given in Appendices 1-2 and 1-3, respectively. 

1.3.4        This EIA report is prepared in accordance with the requirements of the EIA Study Brief as well as the requirements laid down in the Technical Memorandum on EIA Process (EIAO-TM).  An Environmental Permit will only be issued by DEP for the establishment, operation and decommissioning of the project after gaining approval of the EIA Report from the Authority.

1.4            Objectives of the EIA Study

1.4.1        The main objective of this EIA study is to provide information on the nature and extent of the potential environmental impacts arising from the establishment, operation and decommissioning of the proposed fill bank development and related activities taking place concurrently.  This information will contribute to decisions by DEP on:

(i)            the overall acceptability of any adverse environmental consequences that are likely to arise as a result of the Project;

(ii)           the conditions and requirements for the detailed design, establishment, operation and decommissioning of the Project to mitigate against adverse environmental consequences wherever practicable; and

(iii)         the acceptability of residual impacts after implementation of the proposed mitigation measures.

1.4.2        The specific objectives of the EIA study for the fill bank at Tseung Kwan O Area 137 are as stated in Section 2.1 of the EIA Study Brief and consist of:

(i)               to describe the Project and associated works together with the requirements for carrying out the Project;

(ii)             to identify and describe the elements of the community and environment likely to be affected by the Project and/or likely to cause adverse impacts to the Project, including both the natural and man-made environment;

(iii)            to consider alternatives with a view to avoiding or minimizing the potential environmental impacts, to compare the environmental benefits and dis-benefits of each of the different options, to provide reasons for selecting the preferred option and to describe the part environmental factors played in the selection;

(iv)            to identify and quantify emission sources and determine the significance of impacts on sensitive receivers and potential affected uses;

(v)             to identify any potential water quality impacts on sensitive receivers during the establishment, operation and decommissioning stages;

(vi)            to identify and quantify any potential landscape and visual impacts and to propose measures to mitigate these impacts;

(vii)          to propose the provision of infrastructure or mitigation measures so as to minimize pollution, environmental disturbance and nuisance during establishment, operation and decommissioning of the Project;

(viii)         to investigate the feasibility, effectiveness and implications of the proposed mitigation measures;

(ix)            to identify, predict and evaluate the residual environmental impacts (i.e. after practicable mitigation) and the cumulative effects expected to arise during establishment, operation and decommissioning of the Project in relation to the sensitive receivers and potential affected uses;

(x)             to identify, assess and specify methods, measures and standards to be included in the detailed design, establishment, operation and decommissioning of the Project which are necessary to mitigate these environmental impacts and reduce them to acceptable levels;

(xi)            to investigate the extent of side-effects of the proposed mitigation measures that may lead to other forms of impacts;

(xii)           to identify constraints associated with the mitigation measures recommended in the EIA study, as well as provision of any necessary modification; and

(xiii)         to design and specify environmental monitoring and audit requirements, if required, to ensure effective implementation of the recommended environmental protection and pollution control measures.

 

1.5            Public Inputs

1.5.1        DEP has not received any inputs/ comments formally under the EIAO Process when the Project Profile was displaced to the public from 18 August 2001 to 31 August 2001.  Nevertheless, in view of the potential concern of the Sai Kung District Council members, a meeting was held between the Project Proponent and the Council on 7 September 2001 and subsequently on 9 April 2002.  The key environmental issues of interest raised by some members that are related to the EIA study are summarised below and reference to the relevant Sections of the EIA study are highlighted for ease of reference:


*    The Project Proponent should consider the orgins of the public fill material and the locations of the future reclamation sites in the selection of the best location for the proposed fill bank to prevent duplication of transportation trips in short time period – these factors have been considered in the site selection process and are presented in Section 2 of the report;

*    The Project Proponent should consider other possible site (e.g. the ex-Kai Tak Airport) in the selection of an appropriate location for establishment of the temporary fill bank – the site selection history is presented in Section 2 of the report.  The ex-Kai Tak Airport was not identified to be available from October 2002 to 2004 for the fill bank operation and subsequent decommissioning from 2005 to 2007 due to the planned developments under the South East Kowloon Development Scheme;

*    The Project Proponent should consider the use of barges in delivery of public fill to minimise the impact on the local traffic - In view of the key concern on potential traffic, traffic noise and vehicular emission impact, CED has planned to establish a barging facility at TKO Area 137.  Through the existing trip-ticket system, truckloads generated from Government/ Public Corporations’ contracts, except those generated within Tseung Kwan O, will be diverted away from Wan Po Road. This will be achieved through designating the planned public filling barging point at South East Kowloon (SEK) ex-Kai Tak Airport as the public fill tipping location.  As these contracts in Kowloon and part of the New Territories will account for half of the supply of public fill, this control measure will reduce the number of truckloads using Wan Po Road from an average of about 2,000 truckloads per day to an average of 1,000 truckloads per day.  This truckload volume would be below the average of about 1,200 truckloads per day encountered in the operation of the existing public filling area at TKO Area 137.

*    Potential air quality, noise, water quality and visual impact arising from the operation of the fill bank – these issues are addressed under Section 4, 5, 6 and 8 of this EIA report.  Summary of the assessment findings can be found in Section 11;

*    Strict control shall be in place to prevent any pollution problems during the transportation of fill material  - environmental control measures in respect of air quality, noise and water quality have been recommended and are presented in details in the relevant sections of the EIA report.  In brief, on the air quality side, only trucks with a valid dumping licence are allowed to use the proposed fill bank.  It is required under the Air Pollution Control (Construction Dust) Regulation that trucks carrying dusty materials should be properly covered when they leave construction sites. Through the dumping licence requirements, CED will also require the truck drivers using the fill bank to have their dusty load covered with suitable impervious sheeting.  Otherwise, the truck drivers would be refused from using the fill bank.  During the decommissioning phase, the truck drivers will also be required to have their public fill load covered by suitable impervious sheeting before leaving the fill bank site.  Potential vehicular emission and traffic noise have been minimised by the provision of the planned Kai Tai barging point to share the truckloads on Wan Po Road.  Water quality control measures have been recommended to prevent potential water quality impact arising from the transportation of public fill by barges;

*    The fill material shall not contain asbestos or radioactive containing materials – The fill bank are designed for temporary storage of inert public fill and will not accept chemical wastes such as asbestos containing materials and radioactive wastes. Asbestos has been commonly used in the past by households for various purposes, including as fire protection material or insulation material for heat, sound, or electricity.  It is a requirement under the existing legislation that in all demolition works, asbestos containing materials have to be identified by a Registered Asbestos Consultant and removed by a Registered Asbestos Contractor before demolition works are permitted to take place.  The import, export, possession and handling of radioactive substance and irradiating apparatus in Hong Kong are governed by the Radiation Ordinance (Cap. 303) and are subject to licensing control. Small quantities of low-level radioactive waste are generated from the industry, medical and educational institutions in Hong Kong.  Such waste mainly comprises of smoke detector parts, rayon mantles for kerosene lanterns, luminous watch dials and hands, lightning protection conductor heads, and weakened radiation sources from hospitals and educational institutions.  Disposal of radioactive waste is subject to stringent control.  The wastes are properly packaged in containers of specified standard according to the requirements of the International Atomic Energy Agency and their storage at specified locations are subject to   stringent control and monitoring.  With these measures, the fill bank operation will unlikely generate any potential hazard associated with asbestos and radioactive containing materials.

*    Height and associated visual impact of the fill bank should be considered – these have been considered in the fill bank design and have been assessed in details in Section 8 Landscape and Visual Impact Assessment.

 

1.6            Structures of the EIA Report

1.6.1        This section describes the background, project needs, and objectives of the EIA study.  The site selection history, key environmental factors and design alternatives considered are reported in Section 2.  Section 3 describes the project, including the programme and key activities in the establishment, operation and decommissioning phases of the fill bank.  Sections 4 to 8 focus on each of the key environmental aspects, and present the assessment criteria, approach/ methodologies, findings, and where necessary, mitigation measures recommended.  Section 9 presents a summary on environmental outcomes.  The overall conclusion of the EIA study is presented in Section 11.

1.6.2        The content in Sections 1 through 11 are listed below:

    Section 1 Introduction – presents the background and explains the urgency of the project, the EIA and TIA study team members, objectives of the EIA Study, public inputs provided during the Project Profile inspection stage, and structures of the EIA report;

*    Section 2 Site Selection History and Design Alternatives Consideration – describes and compares the environmental impacts, environmental benefits and dis-benefits of the alternatives in respect of project sitting, design, establishment, operation and decommissioning methods with an aim to avoid, or minimise, the potential environmental impacts arising from the project;

 *   Section 3 Project Description – describes the site and its environs, project design in respect of fill bank heights, project timetable and phasing, key activities involved in the establishment, operation and decommissioning phases, and the “do-nothing” scenario;

 *   Section 4 Air Quality Impact Assessment – presents an impact assessment on air quality associated with the establishment, operation and decommissioning of the fill bank.  Potential dust impact and vehicular emission impacts were studied in details;

 *   Section 5 Noise Impact Assessment – presents an impact assessment on noise impact associated with the establishment, operation and decommissioning of the fill bank.  Construction noise, fixed noise and traffic noise impacts were studied in details;

 *   Section 6 Water Quality Impact Assessment – assesses the potential impact on the nearby water sensitive receivers during the establishment, operation and decommissioning of the fill bank.  The major sources of impact and mitigation measures required were identified;

 *   Section 7 Landfill Gas Hazard Assessment - assesses the potential hazard on the fill bank site from landfill gas/ leachate migration in the operation of the nearby SENT landfill;

 *   Section 8 Landscape and Visual Impact Assessment – assesses the potential landscape and visual impact arising from the fill bank and propose practicable mitigation measures accordingly;


*    Section 9 Summary of Environmental Outcomes – presents a summary on the environmental outcomes associated with the project;

*    Section 10 Environmental Monitoring and Audit and Implementation Schedule of Environmental Mitigation Measures – presents a summary on the key environmental monitoring and audit requirements recommended as detailed in the EM&A Manual, and present the Implementation Schedule of the recommended environmental mitigation measures;

 *   Section 11 Overall Conclusion – presents the assessment conclusion for each of the key environmental issues.

 


2.               Site Selection History and Design Alternatives Consideration

2.1.1        This section presents the site selection history and design alternatives considered with a target to avoid or minimise the potential environmental impacts arising from the proposed fill bank project in accordance with the requirements specified under Section 3.4 of the EIA Study Brief.

 

2.2            Site Selection History

Forecast on Shortfall of Public Filling Capacity

2.2.1        Table 2-1 presents a broad estimate on quantities of public fill generated in 2002 to 2004, and compares them with the overall available public filling capacities during the same years.  Efforts have been made to maximise the use of public fill in the committed reclamation projects.  The difference between the two set of figures give an estimate on the shortfall of public fill receiving capacity in the territory from late-2002 to 2004.

Table 21          Forecast Data on Public Fill Generation, Public Filling Capacity, and Shortfall in Public Fill Receiving Capacity from Years 2002 to 2004

Year

2002

2003

2004

Forecast on Public Fill generation (Mm3)

6.2

6.5

6.8

Forecast on Public Filling Capacity (Mm3)

4.4

1.6

2.0

Forecast on Shortfall in Public Fill Receiving Capacity (Mm3)

1.8

4.9

4.8

Total Shortfall in Public Receiving Capacity from 2002 to 2004 (Mm3)

11.5

 

2.2.2        It is expected that from 2003, there will be a number of reclamation projects ready for implementation and other long term measures being investigated, such as recycling and export, that might absorb the public fill temporarily stored at the proposed fill bank, as well as those generated direct from the construction and demolition industry during these years.  These planned reclamation projects include Penny’s Bay Reclamation Stage 2, South East Kowloon Development, Development in Tung Chung and Tai Ho Phase 3, Wanchai Development Phase II, Sham Tseng Development, etc.  The latest programme for accepting public fill in these reclamation project sites are summarised in Table 2-2 below.  Locations of these reclamation sites are illustrated in Figure 2-1.


Table 22          Reclamation sites currently planned to receive public fill

commencing from 2003 through 2005

Projects

Latest Programme for Public Fill Intake (Approx.)

 

 

Penny’s Bay Reclamation Stage 2

Mid-2003 to Mid- 2007

South East Kowloon Development

July 2004 to Dec. 2010

Development in Tung Chung and Tai Ho Phase 3

Jan. 2005 to Dec. 2010

Wanchai Development Phase II

Early 2004 to End 2007

Central Reclamation Phase III

Feb. 2003 to June 2005

Sham Tseng Development

Aug. 2005 to July 2007

 

Site Selection

2.2.3        The sites for setting up the fill banks must be available from October 2002 to about 2007 to allow sufficient time for temporary stockpiling and subsequent removal of the stockpiled public fill, and of substantial size to allow the stockpiling of public fill that cannot be immediately reused in reclamation (or earth filling) projects generated from late 2002 through 2005. 

Initial Consideration

2.2.4        Based on the findings of the consultancy study “Review of the Public Filling Strategy and Programme” completed in 1998, establishment of a fill bank at Tan Kwai Tsuen Borrow Area and Tan Kwai Tsuen Quarry was first considered in the initial site search process.  Tan Kwai Tsuen Borrow Area and Tan Kwai Tsuen Quarry occupy an area of about 30.4 ha and 32.4 ha, respectively. Figure 2-2 shows the location of these sites.  Access to the sites would need to make use of either the local Hung Shun Road and Tan Kwai Tsuen Road from Castle Peak Road (Hung Shui Kiu section) followed by local access roads.  There are numerous indigenous villages with at grade village houses abutting the local roads in this area. The site is located away from the coast and will not allow access by barges.  There were identified problems associated with access to the site after further consideration of this section option which may not be surmountable.

 

Further Consideration

2.2.5        Truckload records on the public filling facilities operated in the territory in recent years provided the best available data for projection of likely geographical distribution for public fill arising from the construction industries.  The data suggests that Kowloon districts, Northeast New Territories, Tseung Kwan O and Sai Kung will account for about 70% of the public fill generated in Kowloon and New Territories.  It is therefore necessary to provide a public filling outlet in the Eastern region of the territory.

2.2.6        From a review of the location of the planned reclamation sites commencing from 2003 through 2005, location-wise, it is considered appropriate to set up a fill bank in both the Eastern and Western regions of the territory for temporary storage of public fill.  The candidate sites for establishing the fill banks must be:

    Of sufficient areas to accommodate the public fill that cannot be immediately reused in reclamation (or earth filling) projects generated from October 2002 to 2005.  Stockpiling of 6Mm3 fill material will require a site area up to 100 ha, taking into consideration of the slope stability, safety, environmental and engineering factors;

*    Strategically located to facilitate and encourage access by the public fill delivery truck drivers. The possible uses of both land-based and marine-based access routes are preferable to allow the truckloads be shared among the road carriageways leading to the fill banks and the public filling barging points.  Selecting a site near the coast is also preferable to make possible the effective delivery of stockpiled public fill to reclamation sites by barges without double handling by trucks during the decommissioning of the fill banks;

    Sufficient buffer shall be provided between the fill bank sites and the nearby sensitive receivers as far as practicable to avoid direct environmental impact due to dust and noise emissions and visual intrusion from the material stockpiling;

    The site must be available from October 2002 to 2007 to allow sufficient time for public fill intake and subsequent decommissioning of the fill bank. 

2.2.7        On the eastern side of the territory, sites with an area of about 100 hectares and that are available from 2002 to 2007 were identified to be rare.  The only available site was identified to be the subject site at Area 137 in Tseung Kwan O (TKO), which has an area of approximately 104 hectares.

2.2.8        An alternative site that meets the site area requirement for establishing the fill bank is the former Kai Tak Airport apron and runway which has a total area of 280 hectares.  Figure 2-3 shows the location of the former Kai Tak airport and its surrounding environs.

2.2.9        However, in terms of programme, the old airport site cannot be made available for establishment of the fill bank for operation and subsequent decommissioning in 2002 to 2007. Construction activities for longer-term development at the old airport under the South East Kowloon Development Scheme have long been planned.  Contaminated land remediation works have been taking place on this land, and after then, demolition of existing buildings and construction of new roads and drains will occupy the site from 2003.  Even the runway area has already been allocated for the temporary stockpiling of excavated fill material generated from Contract No. CV/2000/06 “Formation and Associated Infrastructure Works for Development at Choi Wan Road and Jordan Valley”, and would also be used for temporary storage of excavated material generated from “Development at Anderson Road” from September 2002 based on the latest programme. 

2.2.10     Comparing the likely environmental performance of the two alternative sites – TKO Area 137 and the old airport site, it was also considered that TKO Area 137 would have a better performance when used as a fill bank, given its remote location from most nearby sensitive receivers.  With the great distance separation for most sensitive receivers, direct noise and dust impact and visual intrusion associated with stockpiling activities for establishing the fill bank at TKO Area 137 would not be the concerns.  For the few sensitive receivers such as air sensitive receivers located within the TKO Industrial Estate (TKOIE), it was expected that the potential impact could be mitigated with practicable control measures. 

2.2.11     Table 2-3 presents a comparison of distance separation between TKO Area 137 (measured from its site boundary) and the nearby representative sensitive receivers against the old airport site’s situation.   


Table 23          Distance Separation between TKO Area 137 and nearby sensitive receivers in comparison with that of the old airport site

Sensitive Receiver

Distance from TKO Area 137, m (approx.)

Sensitive Receiver

Distance from former Kai Tak airport apron, m (approx.)

Oscar by the Sea

3220

37-39A, Sa Po Road

60

La Cité Noble

4020

Regal Kai Tak Hotel

75

Nan Fung Plaza

4140

Po Shing Court

85

On Ning Garden

4320

South Mansion

75

TVB Broadcast and Production Centre

100*

24-26, Kai Tak Road

75

Nearest planned residential developments and school in Area 86

1757

Nearest existing school

80

* As stated in Para. 10.2.4 in the Project Profile, in view of the proximity of the adjacent TVB Broadcast and Production Centre, a buffer zone of 100m would be allowed between the edge of the stockpile and the boundary of the production centre.

 

2.2.12     Both site options could pose potential environmental impact, if unmitigated, on the nearby air/ noise sensitive receivers in terms of traffic noise and vehicular emission impact generated from the vehicles using the fill bank.  Although both site options would allow the establishment of barging facilities to minimise the volume of cross district public fill delivery traffic, it is anticipated that this measure will be more effective for the TKO Area 137 site.  It is because the former Kai Tai Airport site is more centrally located in the territory than TKO Area 137 and hence be relatively more accessible to most public fill delivery trucks.  For access to Tseung Kwan O, a toll is payable for trucks using the Tseung Kwan O Tunnel which may likely discourage its use. 

2.2.13     Taking into account, as illustrated above, the requirements on site area, site availability, and location of the site in terms of accessibility, distance separation from nearby sensitive receivers, and surmoutability of the potential traffic noise and vehicular emission impact associated with land-based transportation of public fill, the newly reclaimed land at TKO Area 137 was selected by the Government for the establishment of a fill bank.  To ensure that the establishment, operation and decommissioning of the fill bank at TKO Area 137 will not pose any unacceptable traffic and environmental impact on the nearby sensitive receivers, the current EIA and TIA study was commissioned for assessing the impact and to identify required control/ mitigation measures.

2.2.14     The Government is considering the establishment of another fill bank at the western side of the territory in order to provide sufficient room for temporary stockpiling of the public fill material generated from years 2002 to 2005.  The available site currently under consideration is Area 38 in Tuen Mun.

2.2.15     Table 2-4 summarises the key related factors considered in the site selection history of the fill bank.

 


Table 24          Key Factors considered in the Site Selection Process

Establishment of Project Need:

·                  Large quantity of C&D Material is generated from the territory each year;

·                  A major portion of the C&D Material known as public fill is inert material and can be reused beneficially in reclamation/ earth filling projects;

·                  It was identified that between October 2002 and 2005 there will be a significant shortfall in public filling capacity (estimated to be approximately 11.5Mm3 up to end 2004);

·                  If fill banks are not established for the temporary storage of the public fill, the reusable material would have to be disposal of to landfills, thus occupying valuable and limited space at the strategic landfills reserved for disposal of municipal waste;

·                  The reuse of public fill in reclamation projects will reduce demand on general fill and contribute to conserve natural resources and environmental protection by avoiding unnecessary earth borrowing activities and marine sand extraction;

·                  Fill bank establishment represents the Government actions taken as part of the overall strategies in the management of C&D material in parallel with municipal waste in the territories.

 

Comparison of the Site Candidates:

Key Parameters/ Site Candidates

 

Tan Kwai Tsuen Borrow Area and Quarry

Former Kai Tak Airport Apron and Runway

TKO Area 137

Site Availability (from October 2002 to 2007)

P

O

P

Site Area (Minimum requirement is about 100 hectares*)

O

P

P

Site Accessibility (alternative marine access is present)

O

P

P

Proximity and accessibility to planned reclamation project sites

O

P

P

Sufficient buffer distance allowed between the site and the nearby sensitive receivers

O

O

P

Surmountability of environmental impact associated with onsite activities during establishment, operation and decommissioning of the fill bank

P

P

PPP

Surmountability of environmental impact associated with land-based public fill transportation

P

PP

PPP

Selected Site for Establishment of the Public Fill Bank

TKO Area 137

* Assuming that a similar fill bank is also established in the western side of the territory to receive public fill;

P - meet demand (no. of ticks represents level of preference);

O - cannot meet demand.


2.3            Design Alternatives Consideration

Introduction

2.3.1        Section 3.4 of the EIA Study Brief states that the project proponent shall indicate in the EIA report that he has considered different alternatives and means in respect of design, establishment, operation and decommissioning methods in addition to appropriate site selection.  These considerations in the design process are demonstrated in this section.

 

Key Environmental Factors Consideration

2.3.2        The key environmental factors related to the design, establishment, operation and decommissioning of the fill bank which have been identified in the design process include:

(i)               Air Quality Impact – the key interest is to minimise, as far as practicable, vehicular emission associated with land-based transportation of C&D Material by trucks via Wan Po Road as well as dust impact arising from the establishment, operation and decommissioning of the fill bank;

(ii)             Noise Impact – the key interest is on minimising traffic noise associated with land-based transportation of C&D Material by trucks via Wan Po Road;

(iii)            Water Quality Impact – the key interest is on minimising potential impact on Tung Lung Chau fish culture and other nearby sensitive receivers.  The design factors include the provision of sufficient buffer between the stockpiling area and the sea front, and provision of proper and sufficient drainage and water pollutants abatement systems.  Locating the planned C&D Material Sorting Facility (C&DMSF) at sufficient distance away from the waterfront, together with provision of water pollutants suppression system for the operation the C&DMSF and the public filling barging points are also important consideration.

(iv)           Waste Management – The dumping licence issued to lorry owners requires the public fill to be free from contaminants such as household refuse, plastic, etc. However, from the past experience of CED in the operation of public filling areas, it is anticipated that small quantity of degradable material would still be identified in the C&D material delivered to the fill bank.  The degradable material, referred to as C&D waste and sorted out onsite at the C&DMSF has to be disposed of to landfill.  The key interest is to minimise the traffic noise and air emissions associated with the regular transportation of C&D waste from the fill bank to a landfill for disposal;

(v)             Landscape and Visual Impact – the key interest is to adopt a design of the fill bank such that the stockpiling height is minimised as far as practicable, as well as retaining sufficient space along the perimeter of the site to allow provision of landscape and visual mitigation measures.  The stockpiling process in respect of allowing early and effective colour/ camouflage treatment to the sides of the fill bank to minimise visual impact is also important;

(vi)            Landfill Gas Hazard – the design focus is to avoid potential landfill gas accumulation and installation of underground facilities (i.e. pipelines) that may facilitate landfill gas migration;

2.3.3        Potential impact on ecology was avoided through proper site selection.  As TKO Area 137 was formed by reclamation, there are no recognised sites of conservation importance and important ecological habitats.  Besides, a buffer distance of at least 10m will be provided along the eastern boundary to separate the site from the western boundary of the Clear Water Bay Country Park.

2.3.4        As TKO Area 137 is a reclaimed land, there is no cultural heritage concern onsite.  Junk Island House Ruin on Fat Tong Chau is located to the north of the project site.  While there will not be any works associated with the establishment, operation and decommissioning of fill bank at Fat Tong Chau, a 2.4m high site fencing will be erected and maintained along the northern site boundary abutting Fat Tong Chau to avoid any accidental disturbance of the cultural heritage site by the workers.

2.3.5        Considerations on the key environmental factors identified above are further described below. 

 

Air Quality and Noise Impact

2.3.6        Direct air quality and noise impact from dust and noise emissions associated with stockpiling activities, loading/ unloading from/to trucks and barges, and truck movement on unpaved haul roads are minimised by locating the fill bank at a remote area away from most air/ noise sensitive receivers as far as practicable.  The boundary of the fill bank is situated at more than 3km from the nearest existing residential development (Oscar By the Sea).  Planned residential uses such as the Comprehensive Development Area (CDA) in Area 86 is also situated at more than 1.6 km from the boundary of the fill bank.  Potential vehicular and traffic noise impact associated with land-based transport of public fill for air/ noise sensitive receivers located along Wan Po Road would be minimised by establishment marine-based transport facility.

2.3.7        Potential air quality impact on TVB Broadcast and Production Centre and industrial undertakings located within TKO Industrial Estate situated to the north of the fill bank is minimised through providing at least a 100m wide buffer zone between the edge of the fill bank stockpiling area and the boundary of the Broadcast and Production Centre.  In accordance with the recommendations on minimum buffer distance given in the “Hong Kong Planning Standards and Guidelines Chapter 9 Environment”, the provision of a 100 buffer distance between dusty uses and air sensitive receivers should be sufficient.  To further minimise potential dust impact from the establishment, operation and decommissioning of the fill bank, sufficient dust control/ mitigation measures will be implemented (details will be described in the Air Quality Assessment Section in the EIA report).

2.3.8        By locating the proposed fill bank at the coast and the provision of barging facilities onsite at TKO Area 137, marine-based transport of public fill to the site is also made possible in addition to direct land-based transport.  The environmental benefits in relation to air quality and noise aspects are as follows: 

    Land-based truck traffic to TKO and associated vehicular emission and traffic noise impact can be substantially minimised – by allowing the continuous operation of the two barging facilities at Sai Ying Pun and Quarry Bay on the Hong Kong Island, and provision of an additional barging facility in the Kowloon region (at the former Kai Tak airport runway), amount of cross district public fill traffic can be minimised;

    Maximised use of marine-based transportation of public fill for reuse during the decommissioning phase – During the decommissioning period from 2004 to 2007, it was estimated that about 90% of the stockpiled material could be delivered offsite by barges, leaving only 10% to be handled by land-based truck traffic i.e. the potential traffic noise and air emission impact can be further minimised during the decommissioning phase.  Use of marine based transportation of fill material can also avoid double handling of fill material by trucks by allowing the direct bottom placement of public fill by appropriately designed barges at reclamation sites under control;

    Allow direct transportation of the stockpiled fill material for reclamation projects planned on outlying islands - the presence of marine access will also allow the direct transportation of public fill to areas that are not accessible by trucks.  This will avoid the need to transport the fill material to a barging point in other districts first (and generate traffic noise and emission impact) before subsequent delivery by barges.

2.3.9        Marine-based transportation of public fill to TKO Area 137, and mechanism to minimise land-based transportation of public fill by trucks will be considered in details in the EIA study. 

 

Water Quality Impact

2.3.10     To avoid potential water quality impact from the establishment, operation and decommissioning of the fill bank, the following design considerations were considered:

(i)               Maximise the distance separation of potential water pollution sources including the stockpiles and C&DMSF from the waterfront as far as practicable to allow the buffer zone to act as an infiltration ground;

(ii)             Use of existing and new drainage channels to be constructed at the perimeter of the site to retain water pollutants in surface runoff through provision and maintenance of silt traps and oil traps.

2.3.11     Practicable location for establishing the onsite C&DMSF has to take into consideration the area reserved for the stockpiling of fill material. Potential water quality impact arising from the operation of the barging facilities and C&DMSF can be alleviated through implementation of standard water pollution control measures in the same way as other similar facilities.

 

Waste Management

2.3.12     Potential secondary environmental impact associated with the transportation of C&D waste from the C&DMSF to the landfill is minimised through selecting the TKO Area 137 site for establishing the fill bank.  The site is located right next to SENT landfill.  Trucks travelling distance for handling of C&D wastes can be minimised and potential air quality and noise impact from the truck traffic on most sensitive receivers can be avoided.

 

Landscape and Visual Impact

2.3.13     The zone of visual influence will be largely contained to the north and east by Fat Tong Chau (Junk Island) and the headland of Clearwater Bay Peninsula.  However, the works will be visible to residential developments in TKO to the north through the gap between Fat Tong Chau and the Peninsula, and will also be visible from Clear Water Bay Country Club and Tai Miu Wan (Joss House bay) to the east through the gap between the Clearwater Bay Peninsula and Tit Cham Chau. The Zone of Visual Influence will extend more widely to the west and south, as the works will be visible along the coast of Hong Kong Island from Heng Fa Chuen and Lei Yue Mun Gap in the west, to Shek O in the south. 

2.3.14     The potential Visually Sensitive Receivers (VSRs) of interest are identified to include:

    Existing and planned residential developments along the north-east coast of Hong Kong island, particularly at Siu Sai Wan which is closest to Area 137 – the closest developments include Island Resort and Fullview Garden;

    Planned residential developments in Tseung Kwan O at Area 86 (Dream City) and Area 85;

    Planned TVB Broadcast and Production Centre; and

    Clearwater Bay Country Club;

    Hillwalkers in Clearwater Bay Country park, in particular along the High Junk Peak Country Trail and Shek O Country Park; and

    Leisure boat traffic in Lam Tong Hoi Hap (Tathong Channel)

2.3.15     Significant visual impact from the operation of the fill bank was avoided by limiting the maximum height of the fill bank to about +35.2mPD, which is less than the maximum height of the nearby local terrain i.e. 603mPD at the western end of Clear Water Bay Country Park and about 100mPD at Fat Tong Chau.

 

Landfill Gas Hazard

2.3.16     Underground utilities such as drainage and sewerage systems are avoided in the design of the fill bank. Facilities such as the contractor’s and resident supervising staff’s site offices that may be relatively more sensitive to landfill gas migration due to their enclosed nature are planned to be located outside the 250m consultation zone of the SENT landfill as far as practicable.  For those facilities which inevitably have to be located within the consultation zone (e.g. the site entrance office), practicable landfill gas protection measures will be provided.  The site entrance office can be supported by raised platform to avoid accumulation of landfill gas.


3.               Project Description

3.1            The Subject Site and its Environs

3.1.1        Area 137 is located at the southern side of Tseung Kwan O.  The site will occupy an area of approximately 104 hectares upon completion of the on-going reclamation works at the northern side of the site by end of 2003.  The reclamation site has served as a public filling area since January 1997 to receive public fill generated from the construction industry.  Location of the site is shown in Figure 1-2. 

3.1.2        Existing landuses in TKO located within 3 km of the site are all of industrial nature.  TKO Industrial Estate, Fat Tong Chau (Junk Island) and SENT landfill are located to the north of the site.  To the east of the site is the hillside along the eastern boundary of Clear Water Bay Country Park.  TVB Broadcast and Production Centre is located adjacent to the northern boundary of the site.

3.1.3        Existing residential developments and schools are all located at further distances from the site.  The nearest existing residential development, Oscar By The Sea (OBS), is located at some 3.2km from the boundary of the site.  Planned residential developments in Area 85 and Area 86 are also located at more than 1.5km and 2.0km from the site, respectively.  The first phase of these planned developments are not anticipated to have population intake until 2006 according to information provided by Planning Department.

3.1.4        Tseung Kwan O Tunnel is the existing strategic route linking TKO with the Kowloon districts.  To the east of the TKO Tunnel lies the TKO Tunnel Road and Wan Po Road which is the most direct access to the site at TKO Area 137.  Po Lam Road is the other connection between TKO and Kowloon.  However, it is a less direct route and lower standard route than Tseung Kwan O Tunnel.  Po Lam Road is a single carriageway of three lanes along most of its length, with various sections of four lanes, in particular at junction approaches.  Hang Hau Road provides a convenient access from Tseung Kwan O to Sai Kung and Clear Water Bay.  It is a local distributor with one lane in each direction.

3.1.5        Figure 3-1 shows the area situated within 300m or 500m radius of the site boundary as well as some representative uses along Wan Po Road.

3.1.6        The major committed transport infrastructure in TKO is the MTR Tseung Kwan O Extension, which is scheduled to be operational in September 2002.  The MTR provides an alternative mode of transport to/ from the Kowloon districts and within TKO for the TKO population.  The Government has also planned the Cross Bay Link and Western Coast Road which will become an alternative major access route to/ from the area.

 


3.2            Project Design

Establishment, Operation and Decommissioning Programme

3.2.1        Figure 3-2 presents a preliminary programme for the establishment, operation and decommissioning phases of the fill bank. 

3.2.2        Mobilisation and establishment works are planned to commence in early October 2002 to prepare for intake of public fill.  Public fill intake would commence in mid October 2002 for stockpiling activities (Phase 1) to commence at the southern side of the site.  The remaining works of the Contract CV/97/01 “TKO Port Development at Area 137 Stage 2 – Construction of Seawalls and Reclamation” would be completed by end of 2003 for stockpiling activities (Phase 2) to also proceed at the northern side of the site from January 2004. 

3.2.3        TKO Area 137 has been planned for longer-term industrial uses commencing from mid/late 2007 under the latest programme.  To allow sufficient time for removal of stockpiled material for long term development in TKO Area 137, decommissioning of the fill bank is planned to start early in January 2004 beginning on the northern side of the site.  Early removal of the public fill would also be beneficial in providing a steady and reliable supply of sorted fill material to meet required quality to meet the programme of those reclamation projects that have commenced from 2004.  A minimum area of approximately 55 hectares of land at the northern side of the site would be cleared by September 2005 to allow infrastructure works to commence to prepare for the future industrial uses from mid/ late 2007 in TKO Area 137 planned under the latest programme.

 

Establishment Phase

3.2.4        The establishment phase will involve minor activities as the reclamation site/ public filling area has been established for similar activities.  Existing site offices have been established at the northern tip of the site, wheel washing facilities are installed at the site exits, and temporary trapezoidal drainage channels have been installed at the perimeter of the reclaimed land within which surcharge mounds are stockpiled to enhance the soil consolidation process on the reclaimed land.  The works during the establishment phase will mainly involve site clearance activities, fabrication of machinery for the Construction and Demolition Material Sorting Facility (C&DMSF) and steel structures for the barging point, and realignment of the existing trapezoidal drainage channels to fit the fill bank design as the stockpiling works proceed for controlling potential water quality impact during the public fill stockpiling activities which will commence from the southern side of the site. 

 

Operational Phase

Fill Bank Design

3.2.5        Figure 3-3 presents a general layout of the existing reclaimed land.  Figure 3-4 presents the preliminary design of the fill bank showing the stockpiling area, representative fill bank profile when it is fully completed, location of the barging facility and C&DMSF and alignment of the temporary stormwater drainage system to be constructed/ modified from the existing trapezoidal drainage channels along the perimeter of the site. Figure 3-5 presents a representative profile of the fill bank when it is about half completed occupying the southern part of the site.  Figure 3-6 and Figure 3-7 show the corresponding north-south cross section of the fill bank when it is fully and half completed, respectively.  Figure 3-8 and Figure 3-9 present the preliminary design of the C&DMSF and barging facility, respectively. 

3.2.6        To accommodate a total quantity of 6 Mm3 public fill, the fill bank would need to be filled up to a maximum height of approximately +35mPD (i.e. about 30m above ground). The fill bank will be constructed platform-by-platform, with compaction and application of adequate load on required areas.  The lateral pressure induced and the slope stability and other engineering factors have been carefully considered by CED in the detailed design of the fill bank profile and the implementation will be closely monitored by CED. Measures including the provision of temporary intercepting drains, hydroseeding, coloured geo-textile matting and/or water spraying would be applied for slope protection and reduction of dust emissions.  The layout of the temporary intercepting drains at the stockpiling area could be altered from time to time to suit the stockpiling sequence to effectively divert stormwater collected to the trapezoidal channels provided along the perimeter of the fill bank.

3.2.7        In view of the proximity of the adjacent TVB Broadcast and Production Centre, a buffer zone of 100m would be allowed between the edge of the stockpile and the boundary of the production centre.  Within this buffer zone, no dusty material would be stockpiled and no loading/ unloading and similar activities should be allowed.  In addition, the slope surface of the stockpile facing the production centre will be protected to minimise any dust impact.  A buffer will also be provided between the stockpiling area and the coastline along the eastern and southern side of the site, and between the stockpiling area and the slope along the eastern boundary of the Clear Water Bay Country Park. 

3.2.8        Capacity of the fill bank would be available in phases.  The fill bank will receive public fill at the southern part of the site commencing from mid October 2002.  From October 2002 to December 2003 the available public fill stockpiling capacity will be limited to about 2Mm3 at the southern part of the site.  Upon the completion of the ongoing reclamation works in end of 2003, the northern portion of the site will also be made available for stockpiling of an additional quantity of 4Mm3 public fill. 

3.2.9        The C&DMSF will occupy a site area of about 2 hectares on the eastern side of the site. A minimum buffer distance of 20m will be maintained between the C&DMSF and the waterfront.  Oversized C&D materials received at the fill bank by trucks or barges will be broken down into specified size range.  Imported materials that do not require sorting (i.e. the materials are already sorted at the origins) could be directly delivered to the stockpiling area after checking.  Oversized material will be broken down into specified size ranges.  Limited quantity of C&D waste separated from the public fill will be delivered offsite to the nearby SENT landfill on a daily basis for disposal.

 

Fill Bank Operating Hours

3.2.10     The proposed fill bank will be open to the public from 8:00 a.m. to 9:00 p.m. daily except during the Chinese New Year holidays, which is the same the operation hours of the public filling area operated at TKO Area 137. This will provide a convenient outlet of public fill for the construction industry and is considered as an important measure to minimise the disposal of reusable fill material to landfill or illegal dumping.  The barging point and the C&DMSF will be closed from 7:00p.m. to 8:00 a.m. daily and will prevent potential visual impact on sensitive receivers from glare. 

 

Truckload Distribution by Time

3.2.11     Based on the truckload records in the operation of the public filling area at TKO Area 137 provided by CED, the truckload distribution by time for the operating hours in the operation from January to December 2001 has been reviewed by the traffic consultant.  As this distribution has demonstrated consistency with records from past years, it is expected that the daily vehicle arrival pattern at the proposed fill bank at the same site will be largely similar in the future operation of the proposed fill bank. 

 


Table 31          Fill Bank Traffic Distribution by Time

Time (hr)

Percentage of Daily Truckloads

0800 to 0900

6

0900 to 1000

10

1000 to 1100

12

1100 to 1200

16

1300 to 1400

9

1400 to 1500

12

1500 to 1600

11

1600 to 1700

10

1700 to 1800

8

1800 to 1900

4

1900 to 2000

2

2000 to 2100

< 0.5

Total

100

 

From these data, it is expected that the vehicle flows before 9:00a.m. and after 6:00 p.m. in the operation of the fill bank would be low.  These data is consistent with the anticipated working practice of the construction industry. 

 

Truckloads Estimation

3.2.12     In year 2000, the public filling facilities operated in the territory receiving public fill were located in Tseung Kwan O, Tuen Mun, Pak Shek Kok, Quarry Bay, Sai Ying Pun, Tung Chung and Mui Wo.  The total truckloads of public fill received at these facilities were 944,962 during the year.  Of which, the barging points at Quarry Bay and Sai Ying Pun and the public filling area at Tuen Mun accounted for a total of 266,469 truckloads.  The remaining 678,493 truckloads were mainly handled by Pak Shek Kok and TKO Area 137.  With the closure of Pak Shek Kok in mid 2002, it is reasonable to assume that this number of truckloads would need to make use of the proposed fill bank at TKO Area 137 as the public fill outlet from 2002 to 2004.  Taking 360 operating days per year, the average daily truckloads are calculated to be 1,885 vehicles/day. A similar review indicated that the total truckloads in 2001 were 1,011,826.  Of which, the Sai Ying Pun barging point, Quarry Bay barging point and Tuen Mun public filling area received 319,789 truckloads.  The remaining truckloads were 692,037. Therefore, based on the 2001 data, the average daily truckloads using the proposed fill bank at TKO Area 137 can be estimated to be 1,923 vehicles/day.

3.2.13     With the above data, it is considered conservative to assume that there will be an average of about 2,000 truckloads per day using the proposed fill bank from 2002 to 2004. 

 

Public Fill Intake by Barges

3.2.14     Results from a joint survey undertaken by CED and EPD between September 1999 and January 2000 revealed that inert C&D material generated from Government/ Public Corporations’ contracts generally constitute about half of the total inert C&D material produced.  The findings are in line with that of the survey conducted as part of the CED’s study “Review of the Public Filling Strategy and Programme” (Mouchel, 1998).

 


3.2.15     To minimise the potential traffic and environmental impact associated with the public fill delivery trucks going in and out of the proposed fill bank using Wan Po Road, a barging facility will be established onsite to allow public fill intake by barges as an alternative route to land-based transportation of public fill via Wan Po Road.  Through the trip-ticket system, truckloads generated from Government/ Public Corporations’ contracts, except those generated within Tseung Kwan O which are expected to be limited, will be diverted away from Wan Po Road.  This will be achieved through designating the planned public filling barging point at South East Kowloon (SEK) ex-Kai Tak Airport as the public fill tipping location.  As these contracts in Kowloon and part of the New Territories will account for half of the supply of public fill, this control measure will reduce the number of truckloads using Wan Po Road from an average of about 2,000 truckloads per day to an average of 1,000 truckloads per day.  This truckload volume would be below the average of about 1,200 truckloads per day encountered in the operation of the existing public filling area at TKO Area 137.

3.2.16     As presented in Section 3 and Section 4, taking into account possible daily fluctuation in truckloads due to, for example, expedition of certain site formation works after wet season, in the assessment of potential air quality and noise impact associated with the public fill delivery trucks using the fill bank, a maximum daily truckload of 1,500 vehicles/day, or a maximum hourly truckloads of 240 per hour during the fill bank peak, has been adopted in the study as a conservative approach.   

 

Decommissioning Phase

3.2.17     Activities carried out during the decommissioning phase will be the reverse of the operational phase.  Stockpiled materials will be removed commencing from the northern side of the fill bank to the southern end for delivery to reclamation sites mainly by barges for reuse.  To minimise the potential cumulative environmental impact arising from the public fill delivery traffic, all public fill removed from the fill bank will be by barges during the period when decommissioning overlap with the operational phase (i.e. from January 2004 to December 2004).

3.2.18     During the overlapping period of the operation and decommissioning phases (from about January 2004 to December 2004), to avoid double handling, incoming trucks containing public fill that meets the specified technical requirements and quality will be directed to the barging point for transportation to reclamation sites without sorting/ stockpiling.  Therefore, depending on the public fill demand at the reclamation sites in 2004 and the incoming rate of C&D material, public fill storage at the fill bank may gradually build up and reach the maximum capacity of 6 Mm3 under the worst-case situation in December 2004.  The fill bank will not receive further fill material by trucks or barges commencing from January 2005.

3.2.19     Between January 2005 to December 2007, use of barges in delivery of stockpiled public fill will also be maximised but a land-based route will be retained to allow the effective delivery of fill material to land-based project sites (e.g. earth filling project sites) and to nearby construction sites in the area where public fill are demanded.  This will avoid double handling of the material by barges and trucks offsite.  At least 90% of stockpiled public fill is going to be transported off the site by barges, leaving only 10% of material to be transported by trucks.  The maximum public fill delivery truckloads of the fill bank will be controlled to 200 vehicles/day and 30 vehicles/hour during the decommissioning phase through agreeing the public fill dispatch rate by trucks with the users of the public fill.

 


3.3            Do-Nothing Scenario 

3.3.1        All existing public filling areas operated in Tseung Kwan O, Pak Shek Kok, Tung Chung Development Phase 3A, Jordan Road Reclamation phase III and Tuen Mun Area 38 Reclamation Stage 2 (except for the ongoing reclamation works in TKO Area 137 which may receive further public fill) would be exhausted by October 2002.  The new reclamation projects planned in 2002 through 2003 will not be able to absorb all public fill and it is expected that there will be a significant shortfall in the public fill receiving capacity.  Without the proposed fill bank at TKO Area 137 (i.e. the Do-Nothing Scenario), the large quantity of reusable public fill generated by the construction industry may need to be disposed of to landfills.  As one of the three strategic landfills in Hong Kong, it is inevitable that additional truck traffic would be generated on Wan Po Road in the delivery of the C&D material to the landfill.  More important environmental concerns would be associated with the handling and disposal of biodegradable, non-inert municipal waste under the scenario of very much reduced lifespan of the three landfills when the expensive landfill spaces were extensively used for the disposal of inert C&D material.

 


4.               Air Quality Impact Assessment

4.1            Introduction

4.1.1        This section presents an air quality impact assessment for the establishment, operation and decommissioning phases of the proposed temporary fill bank at TKO Area 137.

4.1.2        Preparation of the site for the fill bank operation will not require major construction activities.  Existing site offices have been established at the northern tip of the site, and temporary drainage channels have been installed at the perimeter of the newly reclaimed land under CED’s Contract “CV/97/01 Tseung Kwan O Port Development at Area 137 Stage 2 – Construction of Seawalls and Reclamation”.  Site clearance activities, erection of the Construction and Demolition Material Sorting Facility (C&DMSF), site offices, site fencing, etc. will only require some minor earthmoving and excavation activities.  The establishment phase is planned to commence in early October 2002.

4.1.3        Operational phase of the fill bank will involve transportation of public fill to the fill bank by trucks and barges; loading and unloading activities; sorting of C&D material, crushing and sorting of over-sized materials at the C&DMSF; stockpiling of public fill at the fill bank.  Significant dust emission could be generated from these onsite activities, if unmitigated.  Besides, potential offsite air quality impact on Air Sensitive Receivers (ASRs) along Wan Po Road could result from vehicular emissions associated with the public fill delivery trucks.  The operation phase is planned to take place from mid October 2002 to December 2004.  A total quantity of approximately 6 million cubic metres of public fill will be stockpiled.

4.1.4        Decommissioning of the fill bank will involve removal of the stockpiled material from the fill bank for transportation to reclamation sites as they commence.  Dust would be generated from excavation activities, handling and loading of public fill to barges and trucks.  The decommissioning phase is planned to take place from January 2004 to December 2007.  In 2004, the decommissioning phase will overlap with the operational phase but removal of any stockpiled public fill will all by means of barges.

4.1.5        The assessment covers an area within 500m radius of the project site as for most local scale EIA studies, but have also been extended to include other ASRs located along Wan Po Road in accordance with the requirements of the EIA Study Brief (Section 3.5.1.2 refers).  Figure 4-1 shows the area covered within 500m radius of the project site and ASRs along Wan Po Road. 

 

4.2            Assessment Criteria

4.2.1        The principal legislation regulating air quality in Hong Kong is the Air Pollution Control Ordinance (APCO) (Cap. 311).  Air Quality Objectives (AQOs) are set for the whole territory which specify statutory concentration limits for various criteria pollutants and the maximum numbers of times allowed to exceed over a specified period of time.  The AQOs for Carbon Monoxide (CO), Nitrogen Dioxide (NO2), Total Suspended Particulates (TSP) and Respirable Suspended Particulates (RSP), which are relevant to the assessments, are summarised in Table 4-1.


Table 41          Hong Kong Air Quality Objectives (AQOs)

Pollutant

Pollutants Concentration (mg/m3)

 

Averaging Time

 

1 hour (i)

8 hours (ii)

24 hours (ii)

1 year (iii)

CO

30,000

10,000

N.A.

N.A.

NO2

300

N.A.

150

80

TSP

N.A.

N.A.

260

80

RSP

N.A.

N.A.

180

55

   (i)         Not to be exceeded more than 3 times per year;

   (ii)        Not to be exceeded more than once per year;

   (iii)       Arithmetic means;

   N.B.     Concentrations measured at 298 K and 101.325 kPa (one atmospheric pressure).

 

4.2.2        In addition to the AQOs, EPD requires under Annex 4 in the Technical Memorandum on EIA Process (EIAO-TM) issued under the EIA Ordinance an hourly TSP limit of 500mg/m3 for construction dust impact assessment.

4.2.3        The Air Pollution Control (Construction Dust) Regulation came into effect since 16 June 1997.  Stockpiling of dusty materials; loading, unloading or transfer of dusty materials; transfer of dusty materials using a belt conveyor system; use of vehicles; debris handling, excavation or earth moving, and site clearance, etc. are classified as “Regulatory Work” under the Regulation.    A Schedule, which specifies dust control requirements for a variety of construction activities, is included in the Regulation.  The contractor carrying out a Regulatory Work is required under the Regulation to ensure that the dust control measures required under the Regulation are being implemented.

 

4.3            Study Area and Air Sensitive Receivers

4.3.1        TKO Area 137 located at the southern end of Wan Po Road is a topographically flat site.  Located along Wan Po Road include industrial uses (e.g. SENT landfill and TKO Industrial Estate, etc.) in the southern side and residential developments (e.g. Nan Fung Plaza, On Ning Garden, etc.)  in the northern side of the road. 

4.3.2        Representative ASRs situated within the study area and along Wan Po Road have been identified according to the criteria set out in Annex 12 of EIAO-TM through site inspection and review of relevant landuse plans and programme of property development in the study area obtained through liaison with Planning Department.  Under the EIAO-TM, domestic premises, hotel, hostel, hospital, clinic, nursery, temporary housing accommodation, school, education institution, office, factory, shop, shopping centre, place of public worship, library, court of law, supports stadium or performing arts centre are classified as ASRs.

4.3.3        The ASRs of interest during the establishment, operation and/or decommissioning phases of the fill bank are summarised in Table 4-2.  Distance of the ASRs from the boundary of the fill bank is also shown in Table 4-2.  It can be noted from these figures that most of the ASRs are located at substantial distances away from the fill bank.  For planned developments, the ASRs of interest were identified by a comparison of the programme for establishment, operation and decommissioning of the fill bank against the latest information on the implementation programme of the planned developments. 

4.3.4        A number of Representative Assessment Points (RAPs – A1 through A18) have been selected to represent the identified ASRs.   With dust emissions from the fill bank site and emissions of criteria pollutants from public fill delivery trucks as the key study focus, the rationale of the assessments was to select the worst affected RAPs located nearest to the fill bank site or along Wan Po Road.  Compliance of the AQOs at these RAP located closest to the emission sources (i.e. the fill bank/ Wan Po Road) will reveal that the potential air quality impact at ASRs situated at further distance away from the sources will also be within acceptable levels.  Locations of the RAPs are shown in Figure 4-2.

Table 42          Air Sensitive Receivers located within the 500m Study Area and along Wan Po Road

RAP

Location of ASR

Distance from boundary of

P Represents Presence of ASRs

 

 

fill bank* (Approximate)

Establish-ment

Operation

Decommiss-ioning

ASR located outside 500m radius of the fill bank site but along Wan Po Road

A1, A2

On Ning Garden

4.3 km

P

P

P

A3

Fung Ching Memorial Primary School

4.2 km

P

P

P

A4

Nan Fung Plaza

4.2 km

P

P

P

A5

Leung Sing Tak Primary School

4.1 km

P

P

P

A6

La Cité Noble and Maritime Bay

4.0 km

P

P

P

A7, A8

Oscar By the Sea in Area 51

3.2 km

P

P

P

A9

Wong’s Circuits (PTH) Ltd.**

1.4 km

P

P

P

A15

Two Planned Schools in Area 50***

3.3 km

 

 

P

A16

Planned School & Residential Development in Area 85***

2.0 km

 

 

P

A17, A18

Planned Residential Development and RTHK Site in Area 86***

1.5 km

 

 

P

ASR located within 500m radius of the fill bank site

A10

Yang Hing Industrial Building

437m

P

P

P

A11 to A13

 

 

Planned TVB Broadcast and Production Centre

100m****

P

P

P

HAECO Component Overhaul Building

272m

P

P

P

A14

Exhibition Services & Logistics Centre

493m

P

P

P

*   Shortest distance between the ASR and the fill bank boundary;

** Selected RAP location which also represents other existing/ planned industrial uses along Wan Po Road at more than 500m from the fill bank boundary;

*** Initial Phase of residential and school developments at Area 86 and Area 85 would not be completed until 2006 according to information provided by Planning Department;

**** As stated in Para. 10.2.4 in the Project Profile, in view of the proximity of the adjacent TVB Broadcast and Production Centre, a buffer zone of 100m would be allowed between the edge of the stockpile and the boundary of the production centre.

 

 


4.4            Baseline Air Quality

4.4.1        Existing emission sources affecting the air quality within the study area are expected to be primarily open road traffic emissions from major road carriageways.  Other emission sources are located at the southern side of Wan Po Road which include SENT landfill, industrial undertakings at TKO Industrial Estate (TKOIE), and reclamation works at TKO Area 137 which would be completed by end of 2003.

4.4.2        Hong Kong Science and Technology Parks Corporation (HKSTPC) has advised that the maximum allowable daily diesel consumption within the TKOIE is 56.6m3/day.  Currently, Hong Kong Aero Engine Services Co. Ltd. (HAECO) located at the southern side of the estate is the only diesel fuel user within the estate.  HAECO is allowed a maximum of 4m3 of fossil fuel (0.5% sulphur content) per day.  Existing and future industrial uses are encouraged by HKSTPC to use cleaner fuel (e.g. town gas) instead of diesel fuel in their daily operation as far as practicable.

4.4.3        Quantitative assessment of air quality impact requires consideration of the background air pollutant contribution.  Environmental Protection Department (EPD) operates a network of Air Quality Monitoring Stations around the territory for urban areas, industrial areas and rural/ new development areas but none of these existing stations is located within the study area.  Air quality data monitored at EPD’s monitoring station in Junk Bay were available up to year 1992 only when the area was not yet fully developed into a new town. 

4.4.4        With the rapid development of the TKO District in recent years, it is considered that the air quality in the study area would be similar to other urbanised areas in the territory.  Table 4-3 presents the long-term (5-year) averages of the most recent monitored air quality data obtained by EPD at a number of urban areas, including Sham Shui Po, Central/ Western, and Kwun Tong.  Air quality measured in Kwun Tong district would more represents a mixed residential/ industrial area.  The air quality data obtained in Junk Bay in 1992 are also presented in the table for comparison.  Based on the background air quality estimation approach presented in EPD’s “Guidelines on Assessment the “TOTAL” Air Quality Impacts”, it is considered that the average of these long-term air quality monitoring data obtained at urban areas can give a sufficiently conservative estimation of the background air quality in the study area.

4.4.5        As a prudent approach to the study, in addition to the “monitoring-based” background air quality data, secondary contributions of air pollutant emissions from the key pollution sources - including background vehicular emissions and aerial industrial emissions from the TKOIE covering a vast area along the full length (approximately 4950m) of Wan Po Road have been incorporated in the air quality model so that the potential cumulative air quality impact could be conservatively quantified for comparison with the AQOs.

 


Table 43          Long-term Average (1996 to 2000) Air Quality Data obtained at EPD’s Air Quality Monitoring Stations at Sham Shui Po, Central/ Western and Kwun Tong

Air Pollutant

Long-term (years 1996 to 2000) Average Air Pollutant Concentrations (mg/m3)

Average Air Pollutant

Con. (mg/m3) – assumed

Average pollutant Con. obtained in

 

Kwun Tong

Sham Shui Po

Central/ Western

background conc. in the study area

Junk Bay in 1992 (for comparison)

SO2

17

18

17

17

11

NO2

71

65

53

63

24

CO

N/A

N/A

N/A

1110*

N/A

TSP

88

89

80

86

77

RSP

54

55

52

54

44

* As CO was not monitored at Kwun Tong, Sham Shui Po and Central/ Western, the long-term average concentration monitored at Mong Kok was adopted to represent the background CO concentration in the study area.

 

4.5            Establishment Phase

4.5.1        Establishment phase of the fill bank is planned to commence in early October 2002. It will involve primarily site clearance, setting up of the C&DMSF, barging facility, site offices and installation of planned environmental control measures, including:

    Erection of site hoarding of at least 2.4m high (from ground level) along the northern side of the site boundary except at the site entrance/exit location;

    Installation of vehicle wheel washing facilities including a high pressure water jet provided at designated vehicle exit points;

*    Paving the designated main haul roads with concrete, bituminous materials, hardcores or metal plates

4.5.2        For the fill bank operation, the C&DMSF to be established will also be enclosed in a shelter and equipped with proper dust filtration system (e.g. bag filters).  The C&DMSF shall be designed to facilitate the loading of fill material from public fill delivery trucks and with minimised drop height.  Buffer storage areas at the C&DMSF shall be enclosed at least on three sides. 

4.5.3        Transportation of limited construction equipment, fabrication of machinery for the C&DMSF and barging facility, and installation of the environmental control measures listed above are not expected to give rise to any significant air quality impact.  Site clearance and construction of the stormwater system will only involve limited earthmoving and excavation activities.  Construction of temporary stormwater drainage was estimated by CED to generate a total quantity of about 12,000m3 excavated material. It is anticipated that potential dust impact can be effectively suppressed through implementation of the dust control measures required under the Air Pollution Control (Construction Dust) Regulation.    Working areas where excavation or earthmoving operation are carried out shall be sprayed with water or a dust suppression chemical.  Any stockpiling of excavated material shall be covered by impervious sheeting or sprayed with water or a dust suppression chemical.

4.5.4        As presented below, the quantitative dust impact assessment carried out for the operation/ decommissioning phase demonstrated that with the implementation of the dust control measures required under the Regulation, the mitigated dust impact can be mitigated to acceptable levels. As the scale of dusty activities involved in the establishment stage is much less than the operational/decommissioning phase, when the standard construction dust control/ mitigation measures are in place, unacceptable air quality impact is not expected during the establishment phase of the fill bank.

 

4.6            Operational Phase

Introduction

4.6.1        During the operational phase of the fill bank which will take place from mid October 2002 to end of 2004, the key air pollutants of interest include dust emissions from the onsite activities, as well as vehicular emissions from the vehicles using the fill bank travelling along Wan Po Road.

4.6.2        As a proactive approach to minimise potential vehicular emission impact arising from the vehicles using the proposed fill bank, CED has planned to establish a barging facility at the existing berthing face in the northern end of TKO Area 137 to allow public fill to be transported to the site from a planned public filling barging point at the runway of the ex-Kai Tak Airport.  By assigning the truckloads generated from Government/ Public Corporation’s contracts in the Kowloon and part of the New Territories Districts to the planned barging point at Kai Tak through the existing trip-ticket system, this will allow the truckloads using the fill bank be shared by the Kai Tak barging point.  As discussed in Section 3, with this measure, volume of public fill delivery trucks travelling on Wan Po Road to the fill bank will be reduced from an average of 2,000 vehicles/day to an average of 1,000 vehicles/day.

4.6.3        In order to cater for possible daily fluctuation in truckloads, the air quality impact assessment has accounted for a maximum daily truckload of 1,500 vehicles/day, or 240 vehicles/hour during the fill bank peak hour as the worst-case scenario.  Based on the past records on truckloads in the operation of the public filling facilities in the territory, it is considered that applying a 50% margin to the average volume of truckloads travelling in and out the fill bank on Wan Po Road would represent a conservative approach to the assessment.

 

Control Measures for Mitigating Fugitive Dust Emissions

4.6.4        Any works that involve the stockpiling of dusty materials are regulated under the Air Pollution Control (Construction Dust) Regulation as regulatory work.  In accordance with the requirements of the Air Pollution Control (Construction Dust) Regulation, sufficient dust control/ mitigation measures shall be implemented to ensure full protection of the nearby ASRs.  The dust control measures that are considered to be particularly relevant to the operation (and decommissioning) of the fill bank are summarised below.

4.6.5        It is expected that dust emission from truck movement on haul roads would be the major source of potential dust impact during the operational phase of the fill bank, as other emission sources such as material handling at the stockpiling area, barging point and C&DMSF are located at much further distance away from the ASRs. 

 

Site Haul Road

4.6.6        Public fill delivery trucks entering/ leaving TKO Area 137 shall be required to follow the planned main haul route that is covered with concrete, bituminous materials, hardcores or metal plates.  The main haul route provided for regular transport of public fill from the barging point to the C&DMSF shall also be constructed with similar material to minimise dust emissions.  The buffer distance between the designated haul roads and the nearest ASRs shall be maximised.  Figure 4A in Appendix 4-1 shows the indicative alignment of the main truck haul roads during the operational phase of the fill bank.  Water lorries and/or road sweepers shall be provided and used in dust suppression.  Truck speed shall be controlled to within 10km/hr.  Truck drivers using the fill bank should be checked to have a valid dumping licence.


Loading/ unloading of Public Fill

4.6.7        All dusty fill material shall be sprayed with water or a dust suppression chemical prior to loading, unloading or transfer (transfer of fill material between trucks, barges, C&DMSF and the stockpiles) so as to maintain the fill material wet, except for situations where the moisture content of the dusty material is a matter of concern.  Frequent water (at least three times per day) of the worksites with active dusty operations is recommended.  The frequency shall be increased when the weather is dry.

4.6.8        Loading of public fill delivered by barges to the site shall be sprayed with water at the material landing point to minimize dust emission.  The public fill is expected to be dampen when the material is first loaded from trucks to the barges at the public filling barging point.  Therefore, any mist spraying applied should only dampen the dusty material and overwatering should be avoided. 

4.6.9        The machinery of the C&DMSF shall be fully enclosed and provided with proper dust filtration system to alleviate dust emission.  The C&DMSF shall also be designed to facilitate the loading of fill material from public fill delivery trucks with minimized drop height.  At the C&DMSF, temporary storage of dusty material shall be sprayed with water and the storage area shall be at least enclosed on three sides.  Storage time of pre-sorted and sorted materials and waste should be minimised.  Over-sized material subject to crushing shall also be sprayed with water before being crushed to minimize dust emission.       

 

Site Entrance/ Exit

4.6.10     Vehicle washing facilities including high pressure water jet installed at the existing exit shall be maintained and operated by designated staff to ensure that these dust control measures are being used.  Before leaving the fill bank site, every vehicle shall be washed to remove any dusty materials from its body and wheels.

4.6.11     It is a requirement under the Air Pollution Control (Construction Dust) Regulation that trucks carrying dusty materials should be properly covered when they leave construction sites. Through the dumping licence requirements, CED will also require the truck drivers using the fill bank to have their dusty load covered with suitable impervious sheeting.  Otherwise, the truck drivers would be refused from using the fill bank.  Through this administrative approach, potential dust impact from the truckloads will be controlled.  After the trucks enter to the fill bank site, the dusty load shall be sprayed with water once the impervious sheeting covering the load is removed. 

 

Stockpiling of Public Fill

4.6.12     A buffer zone of at least 100m shall be maintained between the edge of the public fill stockpiling area and the nearest ASRs at the TKO Industrial Estate.  Within the buffer zone, no dusty material shall be stockpiled and no loading/ unloading and similar activities should be allowed.  Stockpiling activities at the fill bank shall be administrated by the contractor with care in proper manner to minimise dust emissions from loading/ unloading activities and wind erosion. 


4.6.13     Public fill at the stockpiling area should be handled with care in proper manner that would not result in segregation, deterioration, erosion or instability of the material, especially for the stockpiling surface facing to the north of the site. 

4.6.14     The portions of site and stockpiling height allocated and allowed by the project engineers for stockpiling of public fill shall be followed in the daily operation of the fill bank.  Temporary slope surfaces shall be covered with tarpaulin sheet or other impermeable sheeting, sprayed with water or a dust suppression chemical, or protected by other methods approved by CED.  The amount of mist spraying should be just enough to dampen the material surface without over-watering, which could result in unnecessary surface water runoff.  Final slope surfaces, especially those facing to the north of the site, shall be treated by compaction, followed by hydroseeding, vegetation planting or sealing with shotconcrete, latex, vinyl, bitumen, or other suitable surface stabiliser approved by CED to prevent the washing away of stockpiled material.

 

Transfer of Fill Material with Belt Conveyor System

4.6.15     Belt conveyor systems used for transfer of fill material at the C&DMSF shall be enclosed on top and 2 sides as illustrated in Figure 3-8.  Every transfer point between any two conveyors shall be totally enclosed. 

4.6.16     An effective belt scraper or equivalent device shall be installed at the head pulley of every belt conveyor to dislodge fine particles that may adhere to the belt surface, and to reduce carrying back of fine particles on the return belt.  The belt scraper or equivalent device shall be equipped with bottom plates or other similar means to prevent falling of material from the return belt.  Every stockpiling belt conveyor shall be provided with a mechanism to adjust its level such that the vertical distance between the belt conveyor and the material landing point is maintained at no more than 1m.  Dusty material loaded from a belt conveyor outlet to stockpiles, storage bins, trucks, barges and other open areas shall be sprayed with water or a dust suppression chemical.

 

General Site Management

4.6.17     Appropriate working methods should be devised and arranged to minimise dust emissions and to ensure any installed air pollution control system and measures are operated and/or implemented in accordance with their design merits.  In the event of malfunctioning of any control system or equipment, the relevant dusty activities shall stop until the relevant control system or equipment are restored to proper functioning.

4.6.18     Frequent mist spraying should be applied on dusty areas.  The frequency of spraying required will depend upon local meteorological conditions such as rainfall, temperature, wind speed and humidity.  The amount of mist spraying should be just enough to dampen the material without over-watering, which could result in unnecessary surface water runoff.

 

Dust Emission Impact Assessment

Major Dust Emission Sources from the Fill Bank Operation

4.6.19     Major source of dust emissions associated with the operation of fill bank was identified to be truck movement on haul roads within the site.  Other dust emission sources onsite in the operation of the fill bank will include material handling, wind erosion and crushing activities at the C&DMSF.  Among these sources, truck movement on haul roads is identified to be the major source of dust impact.  The mitigated dust emission rates of these key dusty activities were established based on the typical emission factors reported in the Compilation of Air Pollutant Emission Factors (AP-42) 5th Edition published by U.S. Environmental Protection Agency (USEPA).

*    Truck Movement of Haul Roads – Truck movement on designated haul roads and within the stockpiling area was identified to be the major source of dust emissions, though the effect has been minimised through provision of an alternative marine-based transportation route of public fill (see Section 4.6.2).  Emission rates have been calculated by making reference to Section 13.2.2 of USEPA AP-42 taking into account the parameters including worst-case number of truckloads, mean vehicle weight, surface material silt content, surface material moisture content and vehicle speed.

    Fill Material Handling – Public fill will be delivered to TKO Area 137 by barges and trucks.  Dust emissions will be generated from loading/ unloading activities, including the unloading of over-sized material from trucks to the inlet of the C&DMSF, unloading of fill material from barges, loading of fill material to trucks for stockpiling.  Emission rates associated with the material handling have been calculated by making reference to Section 13.2.4 of USEPA AP-42 taking into account factors including the number of loading/ unloading operation, maximum numbers of truckload, mean wind speed, material moisture content.

    Wind Erosion from Fill Material Stockpile – Dust emissions from the public fill stockpiling area has been estimated based on the maximum stockpiling area available at the fill bank by making reference to Section 11.9 of the USEPA AP-42.

    Oversized Material Crushing and Sorting/ Screening at the C&DMSF – Dust emissions from crushing of over-sized material and sorting/ screening at the C&DMSF have been estimated by making reference to Section 11.19.2 of the USEPA AP-42 with consideration of C&D material handling rate. 

4.6.20     Spreadsheets presenting the calculation of dust emission rates for each of these activities are given in Appendix 4-1.  References for the input parameters are also shown in the spreadsheets.

 

Other Major Dust Emission Sources

4.6.21     As described in Section 3, stockpiling of public fill will commence from the southern side of the site when the northern part of the site is occupied by the existing contract “Tseung Kwan O Port Development at Area 137 Stage 2 – Construction of Seawalls and Reclamation”.  Potential cumulative dust impact could arise from material handling associated with the on-going reclamation activities. The contractor carrying out the current reclamation works is required to provide sufficient air quality control measures.   

4.6.22     SENT landfill is situated to the north-east of Area 137.  Potential cumulative dust impact could be generated from concurrent operation of the SENT landfill.  Major dust contribution from SENT is expected to arise from trucks movement on the designated haul routes.  Truckload data associated with the operation of the SENT landfill have been obtained from EPD for estimation of dust emission rates.  These key dust emission sources associated with the operation of the SENT landfill have been incorporated into the same air quality model for evaluation of cumulative dust impact.  Calculation of the dust emission rates associated with the SENT landfill operation is presented in Appendix 4-1.

4.6.23     TKO Area 137 has been planned for longer-term industrial uses commencing from mid/ late 2007.  To make the site available for roads and other servicing construction, as shown in the programme presented in Section 3, decommissioning of the fill bank would commence from January 2004.  Early removal of the public fill will also allow a steady and reliable supply of processed public fill of required quality and specification for reclamation projects that have commenced in 2004. During the operation-decommissioning overlapping period, to avoid double handling, incoming trucks containing public fill that meets the specified technical requirements and quality will be directed to the barging point for transportation by barges to reclamation sties without sorting/ stockpiling at the fill bank.  Depending on the demand on public fill and quality of the material delivered by the incoming trucks, sorted material may also be removed from the fill bank for delivery to reclamation by barges.  During the operation-decommissioning overlapping period, all public fill removed from the fill bank will only be delivered by barges and no trucks will be used to avoid generation of additional traffic.  This requirement will be implemented by CED through entering relevant clauses into the Technical Specification of the Contract Document for the contractor to follow.  The Contractor will also be under supervision of CED.

 

Assessment Scenarios 1 and 2

4.6.24     Two worst-case assessment scenarios were identified for the dust emission impact assessment, as follows:

    Scenario 1 (from mid October 2002 to Dec. 2003) - assessed the dust impact from fill bank portion established at the southern side of the site in the presence of concurrent activities under the reclamation works at the north carried out under CED’s Contract “CV/97/01 Tseung Kwan O Port Deveopment at Area 137 Stage 2 – Construction of Seawalls and Reclamation”, and operation of the SENT landfill;

    Scenario 2 (from approx. January 2004 to December 2004) - assessed the dust impact from the fill bank operation when the fill bank operation proceed to the northern side of the site, with consideration of potential cumulative dust impact from concurrent decommissioning of the fill bank and operation of SENT landfill.  Transportation of stockpiled material off the fill bank will be by means of barges.

 

Operating Hours

4.6.25     To provide a convenient outlet for public fill to meet the need of the construction industry, operating hours of the fill bank is planned from 8:00 a.m. to 9:00 p.m. daily, which is similar to the existing public filling area at TKO Area 137.  Therefore, in the air quality model for both Scenarios 1 and 2, dusty construction activities were assumed to take place continuously throughout the operating hours to simulate the worst-case scenarios.  Based on the truckload records of the existing public filling area, incoming truck numbers and activities level at the fill bank are expected to be low before 9:00 a.m. and after 6:00p.m.  

4.6.26     In additional to the two concurrent work activities Scenarios 1 and 2, for the prediction of the maximum one-hour and daily average particulate concentrations for comparison with 1-hour TSP criteria and 24-hour TSP AQOs, dust emission rates have been calculated for 2 further scenarios based on different dust emission levels:

(a)             Dust emissions from movements of public fill delivery trucks (the worst-case estimate of 1,500 vehicles/day) from Wan Po Road, as well as dust emission from movements of trucks within the site in transportation of public fill received by barges to the C&DMSF and the stockpiling area.  The modelled maximum 1-hour TSP and 24-hour average TSP concentrations for the daily averaged situation were compared with the 1-hour and 24-hour TSP criteria, respectively; and

(b)             Dust emissions from movements of public fill delivery trucks (the worst-case estimate of 240 vehicles/hour during the fill bank peak) from Wan Po Road, as well as dust emission from movements of trucks within the site in transportation of public fill received by barges to the C&DMSF and the stockpiling area.  The modelled maximum 1-hour TSP concentrations for the fill bank peak hour were compared with the 1-hour TSP criteria.

4.6.27     The scenarios considered give a combination of assessment situations.  These are summarised in Table 4-4 below.  Maximum 1-hour and 24-hour average TSP concentrations were calculated from the air quality model for scenarios 1(a) and 2(a); and maximum 1-hour average TSP concentrations were calculated from the model for scenario 1(b) and 2(b).

Table 44          Summary on Scenarios considered in the Dust Emission Impact Assessment

 

Scenario (a) – average dust emission rate calculated based on 1,500 vehicles/day

Scenario (b) – maximum 1-hour dust emission rate calculated based on 240 vehicles/hour at the fill bank peak

Scenario 1 – with concurrent reclamation activities in the northern part of the site

Scenario 1(a)

Scenario 1(b)

Scenario 2 – with concurrent activities for decommissioning of the fill bank

Scenario 2(a)

Scenario 2(b)

 

Dust Emission Modelling

4.6.28     Potential dust impact associated with the operation of the fill bank at the ASRs has been assessed using the air quality model Fugitive Dust Model (FDM). The model was particularly developed to model fugitive dust emissions and is well accepted by HKEPD and USEPA for this purpose.  The model was developed based on the widely used Gaussian plume formulae for estimation of pollutant concentrations but has been adapted to incorporate a gradient-transfer deposition algorithm which accounts for the settling out of dust particles, and to include the wind dependent factor on dust emission rates.  The model was designed to predict fugitive dust dispersion from point, line, area and volume sources.

4.6.29     The following relevant meteorological data of the year 2000 were obtained from Hong Kong Observatory and used in the air quality modelling study. Parameters used include:

    Hourly wind direction and speed, air temperature together with atmospheric Pasquill stability class obtained at Tseung Kwan O Automatic Weather Station;

    Daily morning and maximum mixing heights based on the radiosonde ascent at King’s Park; and

    Hourly total sky cover, cloud amount and cloud based height of the 1st - 4th layers observed at the Hong Kong International Airport in Chep Lap Kok.

4.6.30     The fill bank will only be in operation from 8:00 a.m. to 9:00 p.m. daily.  In the air quality model, it was therefore assumed that dusty construction activities would be restricted to that time period.  For prediction of the 1-hour and daily average TSP concentrations for comparison with the AQOs, the hourly meteorological conditions for the full operating hours 0800 to 2100 were considered.

 


Air Sensitive Receivers

4.6.31     To capture the worst-case situations, representative air sensitive receivers located in close proximity to the worksite at different directions were selected.  Figure 4-2c shows the locations of the selected RAPs A10 to A14.  The ASRs represented by these RAPs are described in Table 4-2. As these ASRs are located nearest to the fill bank, it is expected that should the TSP concentrations at these worst affected RAPs be controlled to within acceptable levels, dust impact on other ASRs located at further distance away from the project site will also be within acceptable levels.  TSP concentrations were predicted at the RAPs at 1.5m, 6.5m, 10.5m, 18.5m and 22.5m above ground.

4.6.32     Maximum 1-hour and daily average TSP concentrations were predicted at the RAPs based on the maximum daily truckloads of 1,500 vehicles/day for comparison with the 1-hour TSP concentration of 500mg/m3 recommended by EPD and the 24-hours TSP AQO.  For the fill bank peak hour, the maximum 1-hour TSP concentrations at the RAPs were also predicted based on the maximum hourly truckloads of 240 vehicles/hour at 11:00a.m. to 12:00.

 

Assessment Results

4.6.33     The mitigated 1-hour TSP concentrations and the 24-hour average TSP concentrations, including the background TSP concentration, predicted from the dust emission rates calculated based on the daily truckload of 1,500 vehicles/day (i.e. Scenario 1(a) and 2(a)) are presented in Table 4-5 and Table 4-6.  Table 4-7 presents the mitigated maximum 1-hour TSP concentrations modelled based on the maximum truckload of 240 veh/hr at the fill bank peak hour (i.e. Scenario 1(b) and 2(b)) including the background TSP concentration.  As expected, the maximum 1-hour TSP concentrations during the fill bank peak hour would be higher than that predicted based on the averaged daily situation. Typical FDM result files are presented in Appendix 4-2 for reference. 

4.6.34     Figure 4-3 presents the worst-case maximum 1-hour TSP levels at 1.5m above ground in the vicinity of the site predicted by the air quality model for the peak hour situation under Scenario 2, which is slightly higher than the concentrations predicted for Scenario 1.  Figure 4-4 presents the 24-hour TSP concentrations predicted accordingly.  The background TSP concentration has been incorporated into the contours.

4.6.35     The modelling results revealed that with the implementation of the recommended dust mitigation measures that are required under the Air Pollution Control (Construction Dust) Regulation, the mitigated dust levels at the ASRs would fully comply with the 1-hour and 24-hour TSP criteria. The higher 1-hour TSP concentrations predicted during the fill bank peak hour indicated that the extent of dust control should be particularly increased during the fill bank peak hour when dust emission from truck movement is expected to be higher.


Table 45          Maximum 1-hour TSP Concentration predicted at the RAPs (Scenario 1(a) and 2(a))

 

Predicted Maximum 1-hour TSP conc. (mg/m3) at various heights above ground

RAP

1.5m

6.5m

10.5m

18.5m

22.5m

 

S1

S2

S1

S2

S1

S2

S1

S2

S1

S2

A10

305

305

246

246

210

210

188

191

181

185

A11

328

328

254

254

211

211

190

194

184

188

A12

303

303

267

273

255

260

232

237

223

227

A13

226

250

219

243

214

236

201

220

195

212

A14

157

168

152

162

147

156

139

146

135

141

S1 – Scenario 1; S2 – Scenario 2.

 

Table 46          24-hour Average TSP Concentrations predicted at the RAPs (Scenario 1(a) and 2(a))

 

Predicted Maximum 24-hour TSP conc. (mg/m3) at various heights above ground

RAP

1.5m

6.5m

10.5m

18.5m

22.5m

 

S1

S2

S1

S2

S1

S2

S1

S2

S1

S2

A10

147

148

130

131

124

125

119

121

117

119

A11

150

151

132

133

125

127

120

123

118

121

A12

152

154

140

145

137

141

132

136

129

133

A13

130

141

127

138

125

135

121

130

120

128

A14

102

104

101

103

100

103

100

102

99

101

S1 – Scenario 1; S2 – Scenario 2.

 

Table 47          Maximum 1-hour TSP Concentrations predicted at the RAPs (Scenario 1(b) and 2(b))

 

Predicted Maximum 1-hour TSP conc. (mg/m3) at various heights above ground

RAP

1.5m

6.5m

10.5m

18.5m

22.5m

 

S1

S2

S1

S2

S1

S2

S1

S2

S1

S2

A10

432

432

335

335

277

277

206

209

195

199

A11

470

470

350

350

279

279

205

210

196

201

A12

437

437

332

332

278

284

244

249

231

236

A13

314

314

257

257

224

246

207

226

200

217

A14

178

188

170

179

164

172

152

159

147

153

S1 – Scenario 1; S2 – Scenario 2.

 

 


Vehicular Emission Impact Assessment

Introduction

4.6.36     This section assesses the potential air quality impact arising from the fill bank in respect of vehicular emissions generated from public fill delivery trucks on ASRs along Wan Po Road.  The key criteria pollutants of interest include nitrogen dioxide (NO2) and Respirable Suspended Particulate (RSP).  Carbon Monoxide (CO) is less critical given the relatively lower emission factor and much higher acceptable value of AQO.

4.6.37     As discussed in Section 3, CED has planned to establish a barging facility at TKO Area 137 to allow public fill to be transported to the site from the temporary Kai Tak barging point.  With this measure, volume of public fill delivery trucks travelling on Wan Po Road to the fill bank will be reduced from an average of 2,000 vehicles/day to an average of 1,000 vehicles/day.  Besides, in order to cater for possible daily fluctuation in truckloads, the vehicular emission impact assessment has accounted for a maximum daily truckload of 1,500 vehicles/day, or 240 vehicles/hour during the fill bank peak hour as the worst-case scenario.

4.6.38     Potential cumulative air quality impact due to concurrent emissions from the background traffic and aerial industrial sources have been considered in the study.  

4.6.39     The assessment results will confirm whether the potential air quality impact from the fill bank operation will be within acceptable levels in the presence of other existing air pollutant emissions.  The Air Quality Objectives established in Hong Kong were used as the assessment criteria.    

 

Assessment Methodology

Air Quality Modelling

4.6.40     Potential vehicular emission from open road traffic has been assessed with the air quality model CALINE4.  The model is a line source model developed by the California Department of Transport.  It was developed based on the Gaussian diffusion formulae and a mixing zone concept in predicting dispersion of pollutants emitted from road carriageways. Based on Section 3.7 in EPD’s “Guidelines on Choice of Models and Model Parameters”, Discrete Parcel Method (DPM) of CALINE4 has been used to compute NO2 concentrations in the assessment. In the model, it was assumed that the NO2 reactions take place with parcels. The reaction rates were assumed to be governed by the initial concentrations of NO, NO, and O3.  An O3 level of 64mg/m3, i.e. ~0.03ppm (taken from Air Quality 1999, Kwun Tong monitoring station, maximum daily hourly value) has been used.

 

Emission Factors

4.6.41     The fill bank is planned to be in operation from mid October 2002 to end of 2004. As a conservative approach to the study, year 2002 fleet average emission factors for vehicular pollutants provided by DEP have been used with worst-case representative 2004 traffic forecast data in the modelling study.  Table 4-8 presents the 2002 vehicular emission factors of NOx and RSP for passenger cars, buses and heavy diesel vehicles.


Table 48          2002 Vehicular Emission Factors

Vehicle Type

Emission Factor (mg/km)

 

NOx

RSP

Passenger Car (Petrol) (PC)

1.06

0.03

Light Goods Vehicle (LGV)

1.58

0.31

Heavy Goods Vehicle (HGV)

6.52

1.11

Buses, Public Light Bus and Non-franchised Bus (modelled as Franchised Bus Double Deck (FBDD))

10.95

1.23

The following assumptions were adopted throughout the study:

i.       NOx is a mixture of NO and NO2; and

ii.      The proportion of RSP in the vehicular emission is assumed to be 100% of the particulate matter which is, in general, less than 10 mm in the aerodynamic diameter.

 

Meteorological Conditions

4.6.42     Pasquill Stability Class D with a wind speed of 1m/s has been adopted in the CALINE4 modelling to simulate the worst-case meteorological conditions.  The ambient temperature was assumed to be 25.5 degree Celsius.  The average mixing height was taken as 500m according to monitoring data obtained from King’s Park.  Wind direction standard deviation of 18 degree was assumed.  The aerodynamic roughness coefficient was set at 175cm.

 

Traffic Forecast

4.6.43     Truckload records gained from the operation of the public filling area at TKO Area 137 showed that volume of public fill delivery trucks is expected to be low before 9:00 a.m. and after 6:00 p.m. in the daily operation of the fill bank.  The truck arrival distribution pattern presented in Table 3-1 illustrates that the fill bank operation peak hour is at 11:00 to 12:00 hour. 

4.6.44     Taking into account the traffic generated by the nearby landuses, worst-case representative traffic forecast for the year 2004 was prepared by the Project Traffic Consultant.  Table 4-9 through Table 4-11 present the representative 2004 A.M., fill bank peak hour and P.M. peak hour traffic volumes, percentage of passenger cars, light good vehicles, and heavy good vehicles as well as buses/coaches, and the estimated number of vehicles using the fill bank during these time periods. The overlapping of the decommissioning phase and the operational phase will not affect the traffic forecast, as all public fill removed from the fill bank during the overlapping period will be transported by barges.  The road sections (labelled A through AA) considered in the vehicular emission assessments are illustrated in Figure 4-5. 


Table 49          Year 2004 A.M. Peak Hour Traffic Flows

Label

Traffic Volume (veh/hr)*

Public Fill Delivery Trucks (Veh/hr)

% of Passenger Car

% of LGV

% of HGV**

% of Buses, Coaches, and PLB

A

2345

40

60%

7%

14%

18%

B

3125

40

57%

6%

13%

23%

C

690

0

63%

7%

5%

25%

D

965

0

70%

8%

3%

18%

E

1630

45

64%

7%

19%

10%

F

1030

40

57%

8%

26%

9%

G

900

0

64%

5%

11%

19%

H

1215

5

61%

9%

11%

19%

I

705

5

51%

8%

9%

31%

J

2000

5

66%

6%

6%

22%

K

215

5

48%

4%

11%

37%

L

490

0

55%

16%

9%

20%

M

1080

5

71%

7%

6%

16%

N

655

45

25%

8%

42%

24%

O

750

40

62%

6%

27%

5%

P

1190

5

69%

11%

12%

8%

Q

780

5

63%

6%

11%

20%

R

1280

55

48%

5%

24%

22%

S

1365

55

62%

8%

22%

8%

T

1285

10

69%

11%

12%

8%

U

1060

5

64%

6%

10%

20%

V

135

85

7%

1%

89%

2%

W

155

85

14%

3%

81%

2%

X

625

5

72%

2%

6%

20%

Y

620

15

60%

11%

16%

13%

Z

280

0

43%

12%

26%

19%

AA

975

0

90%

6%

4%

1%

*Volume of public fill delivery trucks included in the traffic flows;

**Volume of public fill delivery trucks included in the % of HGV.


Table 410         Year 2004 Fill Bank Peak Hour Traffic Flows

Label

Traffic Volume (veh/hr)*

Public Fill Delivery Trucks (Veh/hr)

% of Passenger Car

% of LGV

% of HGV**

% of Buses, Coaches, and PLB

A

1540

110

41%

13%

38%

9%

B

1995

110

44%

13%

33%

10%

C

580

0

64%

17%

15%

4%

D

745

0

57%

19%

20%

4%

E

1000

130

35%

10%

52%

3%

F

710

110

23%

11%

64%

2%

G

740

0

50%

17%

13%

20%

H

785

20

45%

17%

22%

16%

I

645

10

50%

8%

11%

31%

J

1155

10

65%

6%

8%

22%

K

215

10

46%

3%

16%

35%

L

470

0

55%

16%

9%

20%

M

635

10

70%

7%

8%

15%

N

620

130

20%

13%

65%

2%

O

570

110

21%

13%

64%

3%

P

775

15

48%

14%

22%

16%

Q

560

15

44%

11%

31%

14%

R

1145

155

27%

16%

50%

7%

S

1130

155

25%

15%

57%

3%

T

860

25

48%

13%

20%

19%

U

745

5

45%

12%

33%

10%

V

275

240

2%

0%

97%

0%

W

290

240

5%

1%

94%

0%

X

525

25

35%

20%

32%

13%

Y

560

45

28%

18%

29%

25%

Z

140

0

38%

7%

54%

1%

AA

380

0

59%

4%

32%

5%

*Volume of public fill delivery trucks included in the traffic flows;

**Volume of public fill delivery trucks included in the % of HGV.


Table 411         Year 2004 P.M. Peak Hour Traffic Flows

Label

Traffic Volume (veh/hr)*

Public Fill Delivery Trucks (Veh/hr)

% of Passenger Car

% of LGV

% of HGV**

% of Buses, Coaches, and PLB

A

3000

55

56%

12%

12%

21%

B

2450

55

55%

7%

21%

17%

C

440

0

68%

12%

8%

13%

D

1390

0

61%

10%

8%

21%

E

1015

65

54%

8%

33%

4%

F

1165

55

42%

8%

45%

6%

G

800

0

60%

11%

11%

18%

H

1275

10

48%

16%

15%

21%

I

255

5

53%

6%

10%

32%

J

2130

5

54%

10%

8%

29%

K

175

5

52%

4%

10%

34%

L

75

0

52%

13%

12%

23%

M

700

5

72%

13%

3%

12%

N

745

65

40%

9%

48%

3%

O

670

55

23%

5%

66%

6%

P

790

5

60%

11%

18%

12%

Q

900

5

63%

10%

17%

10%

R

1775

80

47%

9%

36%

9%

S

1145

80

28%

6%

56%

10%

T

835

15

59%

10%

19%

11%

U

1110

5

63%

10%

16%

10%

V

230

125

10%

2%

85%

3%

W

145

125

2%

0%

96%

2%

X

1030

15

52%

8%

26%

13%

Y

475

25

34%

8%

42%

16%

Z

495

0

67%

11%

17%

5%

AA

270

0

90%

5%

4%

1%

*Volume of public fill delivery trucks included in the traffic flows;

**Volume of public fill delivery trucks included in the % of HGV.


Comparison with AQOs

4.6.45     Concentrations of maximum 1-hour NO2 and RSP at the RAPs (A1 through A12) were predicted from the model.  As there is no hourly AQO for RSP established for the territory, the modelled peak hour RSP concentrations were converted to daily average concentration for checking compliance with the daily criteria of 180mg/m3.  24-hour NO2 concentrations at the assessment points were also predicted using the same approach.  Assuming that the predicted maximum peak hour traffic flow would last for 10 hours and the wind would be blowing at the worst direction for 24 hours, a conversion factor of 0.4 has been applied to convert maximum 1-hour RSP and NO2 concentrations to maximum 24-hour average for comparison with the relevant Air Quality Objectives.

 

Assessment Results

4.6.46     Table 4-12 through Table 4-14 present the modelled maximum 1-hour NO2, 24-hour NO2 and 24-hour RSP concentrations, including the background pollutant concentrations, at the RAPs for open road vehicular emissions for the fill bank peak, A.M. and P.M. peak hour scenarios.  Typical CALINE4 result files are presented in Appendix 4-3.

4.6.47     The fill bank peak hour scenario represents the situation when the highest contribution to air pollutant emissions is generated from the fill bank.  It can be noted that all predicted air pollutant concentrations are well within the relevant AQOs.

 

 

 


Table 412         Maximum 1-hour NO2 and Average Daily NO2 and RSP at the RAPs (2004 Fill Bank Peak Hour, Vehicular Emission Impact Assessment)

RAP

NO2 and RSP Concentration (mg/m3)

 

1-hr NO2

24-hr NO2

24-hr RSP

 

1.5

3

5

10

15

20

1.5

3

5

10

15

20

1.5

3

5

10

15

20

A1

132

132

132

132

113

113

90

90

90

90

83

83

70

69

69

69

68

67

A2

132

132

132

132

132

113

90

90

90

90

90

83

71

71

71

70

69

68

A3

132

132

132

132

132

132

90

90

90

90

90

90

73

73

72

72

71

69

A4

169

169

169

169

150

150

106

106

106

106

98

98

84

83

83

80

77

74

A5

169

169

169

150

150

132

106

106

106

98

98

90

78

78

77

76

75

73

A6

132

132

132

132

132

113

90

90

90

90

90

83

71

71

71

69

67

66

A7

132

132

132

132

132

132

90

90

90

90

90

90

73

73

73

71

69

67

A8

113

113

113

113

113

113

83

83

83

83

83

83

69

69

69

68

67

66

A9

169

169

150

150

132

113

106

106

98

98

90

83

91

90

88

82

76

72

A10

150

150

150

132

113

113

98

98

98

90

83

83

73

73

72

68

65

63

A11

150

150

150

132

113

113

98

98

98

90

83

83

75

75

73

68

64

62

A12

188

188

169

150

132

113

113

113

106

98

90

83

84

83

80

73

69

66

AQO

300

150

180

        


Table 413         Maximum 1-hour NO2 and Average Daily NO2 and RSP at the RAPs (2004 A.M. Peak Hour; Vehicular Emission Impact Assessment)

RAP

NO2 and RSP Concentration (mg/m3)

 

1-hr NO2

24-hr NO2

24-hr RSP

 

1.5

3

5

10

15

20

1.5

3

5

10

15

20

1.5

3

5

10

15

20

A1

132

132

132

132

132

132

90

90

90

90

90

90

72

72

72

71

70

69

A2

132

132

132

132

132

132

90

90

90

90

90

90

73

73

73

72

71

70

A3

132

132

132

132

132

132

90

90

90

90

90

90

71

71

71

70

70

69

A4

169

169

169

169

150

150

106

106

106

106

98

98

78

78

77

76

74

72

A5

169

169

169

150

150

132

106

106

106

98

98

90

73

73

73

72

71

70

A6

132

132

132

132

132

113

90

90

90

90

90

83

68

68

67

66

65

65

A7

132

132

132

132

132

113

90

90

90

90

90

83

69

69

69

67

66

64

A8

113

113

113

113

113

113

83

83

83

83

83

83

66

66

65

65

64

63

A9

169

150

150

132

132

113

106

98

98

90

90

83

83

82

80

75

71

68

A10

150

150

132

132

113

113

98

98

90

90

83

83

66

65

65

63

61

60

A11

150

150

132

113

113

94

98

98

90

83

83

75

67

66

65

62

60

60

A12

169

169

150

132

132

113

106

106

98

90

90

83

71

71

69

66

64

62

AQO

300

150

180

 


Table 414         Maximum 1-hour NO2 and Average Daily NO2 and RSP at the RAPs (2004 P.M. Peak Hour; Vehicular Emission Impact Assessment)

RAP

NO2 and RSP Concentration (mg/m3)

 

1-hr NO2

24-hr NO2

24-hr RSP

 

1.5

3

5

10

15

20

1.5

3

5

10

15

20

1.5

3

5

10

15

20

A1

132

132

132

132

132

132

90

90

90

90

90

90

73

73

73

72

71

70

A2

132

132

132

132

132

132

90

90

90

90

90

90

74

74

74

73

72

71

A3

132

132

132

132

132

132

90

90

90

90

90

90

72

72

72

72

71

70

A4

169

169

169

169

150

150

106

106

106

106

98

98

83

83

82

80

77

75

A5

169

169

169

150

150

150

106

106

106

98

98

98

79

79

79

78

76

74

A6

132

132

132

132

132

113

90

90

90

90

90

83

71

71

71

70

68

66

A7

150

132

132

132

132

132

98

90

90

90

90

90

75

75

74

72

70

68

A8

132

132

132

132

113

113

90

90

90

90

83

83

71

71

71

70

68

67

A9

169

169

169

150

132

132

106

106

106

98

90

90

95

93

91

84

78

74

A10

150

150

132

132

113

113

98

98

90

90

83

83

68

68

67

64

63

63

A11

150

150

150

132

113

113

98

98

98

90

83

83

69

69

67

64

63

62

A12

169

169

169

150

132

113

106

106

106

98

90

83

76

75

73

69

66

64

AQO

300

150

180

        

 


Potential Cumulative Impact from Aerial Industrial Emissions

4.6.48     Industrial operations involving the burning of fossil fuel would result in anthropogenic emissions of NO2 (in addition to SO2 which is not a key concern for vehicular emission).  Existing fossil fuel consuming stacks were identified at TKO industrial estate, Area 85 and Area 78.  The characteristics of these fossil fuel consuming stacks are summarised in Table 4-15.

Table 415         Fossil Fuel Consuming Stacks in the Study Area

Stack Label

Stack Location

Efflux Velocity (m/s)

Stack Diameter (m)

Exit Temperature (K)

Stack Height (mPD)

NO2 emission rate (g/s)*

S1

Area 85

15.1

0.18

463

8.8

0.009

S2

Area 85

15.1

0.18

463

8.8

0.009

S3

Area 85

15.1

0.18

463

8.8

0.009

S4

Area 85

11.7

0.30

473

34.7

0.012

S5

Area 85

16.1

0.57

353

21.7

0.009

S6

Area 78

9.0

0.33

393

99.2

0.069

S7

Area 78

9.0

0.57

393

89.2

0.053

S8**

Area 87 (TKOIE)

16.4

12.5

325

45

10.2

F1 to F21***

Vacant sites in TKOIE

9.0

1.20

463

16.7

0.043

* NO2 emission rate calculated based on full load operation. 

** Based on the EIA Study previously conducted for HAECO;

*** Future fossil fuel consuming stacks assumed to be presence in the TKO Industrial Estate during the operational phase of the fill bank for worst-case impact assessment.  Calculation: Assuming even distribution of the remaining quota of 52.6m3/day by the 21 vacant sites at the TKOIE, this gives a fuel consumption rate of 2,505 litre/day per source.  Assuming 10 working hours, this gives a fuel consumption rate of 250.5 litre/hour.  Based on the emission factor of 0.0024kg/litre for NOx and assume a 26% conversion rate for NO2, the NO2 emission rate for the assumed chimneys at the TKOIE was calculated to be 0.043g/s for all hypothetical stacks.

 

4.6.49     The Hong Kong Science and Technology Parks Corporation (HKSTPC) (formerly Hong Kong Industrial Estates Corporation) has advised that the maximum allowable daily diesel consumption within the TKOIE is 56.6m3/day.  Hong Kong Aero Engine Services Co. Ltd. (HAECO) is currently the only diesel fuel user in the Industrial Estate.  HAECO is allowed to burn a maximum of 4m3 of fossil fuel (0.5% suphur content) per day according to HKSTPC.  HKSTPC encourages future industrial undertaking within the estate to use clean fuel (e.g. town gas) instead of diesel fuel in their operation.  As a conservative approach to the assessment, it was assumed that the remaining “quota” on daily fossil fuel consumption would be distributed evenly among future industrial sites on the vacant sites in the assessment.  This reflects a very conservative assessment approach as it is assumed that the remaining quota of 52.6m3/day of diesel fuel consumption would all be allowed to be used up in the coming few years which would be unlikely given HKSTPC’s policy of encouraging their talents to use cleaner fuel.

4.6.50     Except for HAECO, emission factor of NO2 for the “assumed” future fossil fuel consuming stacks in the TKOIE has been based on USEPA AP-42 Table 1-1 Criteria Pollutant Emission Factor for Uncontrolled Fuel Oil Consumption, (USEPA 1998).  As diesel fuel used in Hong Kong contains low nitrogen content, the emission factor of 0.0024kg/litre has been adopted in the study.  Figure 4-6 shows the location of the assumed fossil fuel consuming stacks inputted into the air quality model.  At HAECO, a conservative emission factor for the jet engine test has been adopted based on the relevant EIA study carried out previously for the operation.

4.6.51     Dispersion of NO2 emitted from the diesel fuel consuming stacks was modelled using the air quality dispersion model ISCST3 released by Trinity Consultants Incorporated.  For all modelled diesel fuel consuming stacks including HAECO, a conversion rate of 26% was assumed which was in line with the EIA study previously undertaken for HAECO.  The NO2 emission rates of the fossil fuel consuming stacks inputted into the model are summarised in Table 4-15.  The general load factor for daytime and nighttime operations recommended by EPD has been adopted in the study.  The relevant meteorological data of the year 2000 as described in Paragraph 4.6.29 has been adopted in the study. As the fill bank will only operate from 8:00 a.m. to 9:00 p.m., the meteorological conditions for the night-time hours when the fill bank will be closed were not considered for the modelling of the cumulative impact for maximum 1-hour NO2 to avoid over-estimation of the potential impact.  For the prediction of the cumulative 24-hour NO2 concentrations, the meteorological conditions for the night-time hours have also been considered in the ISCST modelling. The ISCST model is based on the principle of Gaussian dispersion and is widely acceptable to authorities worldwide including the United States Environmental Protection Agency (USEPA) and the Hong Kong Environmental Protection Department (EPD).  Appendix 4-4 presents a typical ISCST3 modelling result file.

4.6.52     Table 4-16 through 4-18 present the maximum 1-hour and 24-hour average NO2 concentrations, including the background NO2 concentration predicted at the RAPs resulting from cumulative air quality impact from vehicular emissions and aerial industrial emissions from the fossil fuel consuming stacks in the environs during the fill bank peak hour, A.M. peak hour and P.M. peak hour, respectively. 

4.6.53     Figure 4-7 through Figure 4-9 present the cumulative maximum 1-hour NO2, 24-hour NO2, and 24-hour RSP concentrations, including the background pollutant concentrations, due to vehicular emission and aerial industrial emission predicted at 1.5m above ground in form of pollutant contours for the fill bank peak hour scenario.

4.6.54     The assessment results revealed that under the worst-case situations with consideration of cumulative effect from other criteria pollutant emissions, the AQOs would be met during the operational phase of the fill bank i.e. vehicular emission from the truckloads travelling in and out of the fill bank on Wan Po Road will not pose unacceptable air quality impact.

 


Table 416         Predicted Maximum 1-hour NO2 and Average Daily NO2 at the RAPs (2004 Fill Bank Peak Hour; with Aerial Industrial Emissions)

RAP

NO2 Concentration (mg/m3)

 

1-hr NO2

24-hr NO2

 

1.5

3

5

10

15

20

1.5

3

5

10

15

20

A1

150

150

150

150

131

131

91

91

91

91

84

84

A2

150

150

150

150

150

131

91

91

91

91

91

84

A3

152

152

152

152

152

152

91

91

91

91

91

91

A4

190

190

190

190

171

172

106

106

106

106

99

99

A5

191

191

191

173

173

154

106

106

106

99

99

91

A6

150

150

150

150

150

132

91

91

91

91

91

84

A7

154

154

154

154

154

155

92

92

92

92

92

92

A8

134

134

134

134

134

135

84

84

84

84

84

84

A9

176

176

157

157

139

120

108

108

101

101

93

86

A10

163

163

163

144

126

126

100

100

100

92

85

85

A11

162

162

162

144

125

126

100

100

100

92

85

85

A12

195

195

177

158

140

121

115

115

107

100

92

85

AQO

300

150

 

 


Table 417         Maximum 1-hour NO2 and Average Daily NO2  at the RAPs (2004 A.M. Peak Hour; with Aerial Industrial Emissions)

RAP

NO2 Concentration (mg/m3)

 

1-hr NO2

24-hr NO2

 

1.5

3

5

10

15

20

1.5

3

5

10

15

20

A1

150

150

150

150

150

150

91

91

91

91

91

91

A2

150

150

150

150

150

150

91

91

91

91

91

91

A3

152

152

152

152

152

152

91

91

91

91

91

91

A4

190

190

190

190

171

172

106

106

106

106

99

99

A5

191

191

191

173

173

154

106

106

106

99

99

91

A6

150

150

150

150

150

132

91

91

91

91

91

84

A7

154

154

154

154

154

136

92

92

92

92

92

84

A8

134

134

134

134

134

135

84

84

84

84

84

84

A9

176

157

157

139

139

120

108

101

101

93

93

86

A10

163

163

144

144

126

126

100

100

92

92

85

85

A11

162

162

144

125

125

107

100

100

92

85

85

77

A12

177

177

158

139

140

121

107

107

100

92

92

85

AQO

300

150


Table 418         Maximum 1-hour NO2 and Average Daily NO2  at the RAPs (2004 P.M. Peak Hour; with Aerial Industrial Emissions)

RAP

NO2 Concentration (mg/m3)

 

1-hr NO2

24-hr NO2

 

1.5

3

5

10

15

20

1.5

3

5

10

15

20

A1

150

150

150

150

150

150

91

91

91

91

91

91

A2

150

150

150

150

150

150

91

91

91

91

91

91

A3

152

152

152

152

152

152

91

91

91

91

91

91

A4

190

190

190

190

171

172

106

106

106

106

99

99

A5

191

191

191

173

173

173

106

106

106

99

99

99

A6

150

150

150

150

150

132

91

91

91

91

91

84

A7

173

154

154

154

154

155

99

92

92

92

92

92

A8

153

153

153

153

134

135

92

92

92

92

84

84

A9

176

176

176

157

139

139

108

108

108

101

93

93

A10

163

163

144

144

126

126

100

100

92

92

85

85

A11

162

162

162

144

125

126

100

100

100

92

85

85

A12

177

177

177

158

140

121

107

107

107

100

92

85

AQO

300

150

 

        

 


4.7            Decommissioning Phase

Introduction

4.7.1        The activities carried out during the decommissioning phase will be the reverse of the operational phase.  Stockpiled material will be removed from the fill bank for delivery to reclamation sites and earth filling project sites for reuse.  Decommissioning of the fill bank is planned to commence in January 2004 to enable an area of about 55 hectares of land at the northern side of the site to be made available by September 2005 for road construction and servicing.  The area will be used as industrial uses from mid/ late 2007 under the latest programme.

4.7.2        There would be a period (from January 2004 to end of 2004) when decommissioning of the fill bank will overlap with the operation of the fill bank, for which the potential cumulative dust impact from excavation and handling of stockpiled material has been assessed in the preceding section.  To minimise the potential cumulative air quality impact from vehicular emission impact, delivery of public fill removed from the fill bank during the overlapping period of operation-decommissioning phase will be by means of barges only i.e. no trucks will be in use.  This will be implemented through entering relevant clauses into the technical specification of the contract document for the contractor to follow.  The contractor will also be working under the supervision of CED.

4.7.3        During the decommissioning of the fill bank from January 2005 to December 2007, use of barges for delivery of stockpiled material from the fill bank will also be maximised.  It was estimated that at least 90% of the stockpiled material will be delivered offsite by barges to reclamation project sites, leaving a maximum 10% of the material to be delivered by trucks.  Maximum truck flows will be controlled to a maximum of 200 vehicles/ day, or 30 vehicles/ hour.

 

Potential Dust Impact and Mitigation

4.7.4        Dust mitigation measures have been identified for implementation during the operational phase of the fill bank.  These mitigation measures are also applicable during the decommissioning phase of the project.  For excavation activities and removal of fill material, the material handled shall also be sprayed with water or a dust suppression chemical before and after the operation so as to maintain the entire surface wet.  The contractor shall implement these measures in accordance with the requirements of the Air Pollution Control (Construction Dust) Regulation.  In designing the barging point, the vertical distance between the barges and the unloading platform at the barging point shall be minimized to reduce dust generation.  The tipping hall at the barging point shall be enclosed on top and three sides.  All public fill delivery trucks carrying dusty load leaving the fill bank to Wan Po Road shall be required to be covered entirely by clean impervious sheeting in prior to ensure that the dusty materials do not leak from the vehicles. 

4.7.5        Movement of public fill delivery trucks during the operation of the fill bank was identified to be the major dust emission sources in the air quality modelling.  With the number of truckloads leaving the site from Wan Po Road controlled to a maximum of 200 vehicles/day, or 30 vehicles/hour through maximising the use of barges, it is expected that the potential dust impact will be further reduced when compared with the operational phase.

4.7.6        The mitigated dust levels at the nearby RAPs were predicted for the decommissioning phase following a similar approach as for the operational phase.  Table 4-19 and Table 4-20 presents the mitigated 1-hour and 24-hour TSP levels, including the background TSP concentrations predicted based on the averaged daily truckloads of 200 vehicles/day.  The mitigated maximum 1-hour dust levels calculated based on 30 vehicles/hr is presented in Table 4-21.  Appendix 4-5 presents the spreadsheets showing the calculation of emission factors.  Appendix 4-6 gives a typical FDM result file for the decommissioning phase mitigated scenario in prediction of maximum 1-hour TSP concentrations. 

4.7.7        Figure 4-10 and Figure 4-11 present the worst-case maximum 1-hour and 24-hour TSP levels, including background TSP levels, predicted by the air quality model at 1.5m above ground in the vicinity of the site. 

Table 419         Maximum 1-hour TSP Concentrations predicted at the RAPs (Decommissioning Phase) (based on averaged dust emission rates calculated from daily truckloads)

RAP

Predicted Maximum 1-hour TSP conc. (mg/m3) at various heights above ground

 

1.5m

6.5m

10.5m

18.5m

22.5m

A10

274

214

178

141

131

A11

299

222

179

142

131

A12

243

194

164

150

146

A13

172

156

145

130

126

A14

133

129

125

118

115

 

Table 420         24-hour Average TSP Concentrations predicted at the RAPs (Decommissioning Phase)

(based on averaged dust emission rates calculated from daily truckloads)

RAP

Predicted Maximum 24-hour TSP conc. (mg/m3) at various heights above ground

 

1.5m

6.5m

10.5m

18.5m

22.5m

A10

137

121

114

106

104

A11

143

123

115

106

104

A12

140

123

116

106

103

A13

111

107

105

102

101

A14

98

97

96

94

94

 

Table 421         Maximum 1-hour TSP Concentrations predicted at the RAPs (Decommissioning Phase)

(based on maximum dust emission rates calculated from truckloads at fill bank peak hour)

RAP

Predicted Maximum 1-hour TSP conc. (mg/m3) at various heights above ground

 

1.5m

6.5m

10.5m

18.5m

22.5m

A10

381

285

227

170

155

A11

423

300

229

171

154

A12

339

261

211

159

147

A13

225

195

174

141

130

A14

159

148

141

128

122

 


Potential Vehicular Emission Impact

4.7.8        During the decommissioning phase of the fill bank, a better control over the means of transportation in removal of stockpiled fill material for reuse is possible.  The truckloads will be controlled to a maximum of 200 vehicles/day or 30 vehicles/hr, which will be much lower than in the operational phase. 

4.7.9        By adopting the same methodology as the operational phase impact assessment, potential vehicular emission impact during the decommissioning phase was assessed quantitatively. 

4.7.10     The fill materials stockpiled in the fill bank during the operational phase will subsequently be removed during the decommissioning phase of the project. Similar to the operational phase vehicular emission impact assessment, 2005 vehicular emission factors for NOx and RSP were adopted in the modelling as a conservative approach.  As public fill delivery trucks will only be dispatched from the fill bank during the decommissioning phase from January 2005 to December 2007 and on a need basis, this assessment approach will give conservative assessment results.

Table 422         2005 Vehicular Emission Factors

Vehicle Type

Emission Factor (mg/km)

 

NOx

RSP

Passenger Car (Petrol) (PC)

0.85

0.03

Light Goods Vehicle (LGV)

1.44

0.19

Heavy Goods Vehicle (HGV)

5.45

0.89

Buses, Public Light Bus and Non-franchised Bus (modelled as Franchised Bus Double Deck (FBDD))

9.69

1.06

The following assumptions were adopted throughout the study :

i.       NOx is a mixture of NO and NO2; and

ii.      The proportion of RSP in the vehicular emission is assumed to be 100% of the particulate matter which is, in general, less than 10 mm in the aerodynamic diameter.

 

4.7.11     Table 4‑23 to Table 4‑25 present the maximum 1-hour NO2, daily average NO2 and daily average RSPs, including background pollutant concentrations, due to vehicular emissions under the 2007 Fill Bank Peak Hour, AM Peak Hour and PM Peak Hour scenarios, respectively, for the decommissioning phase of the fill bank.  The modelling results in Table 4‑26 to Table 4‑28 present the cumulative effect on NO2 concentrations, including background NO2 concentration, at the RAPs for the same scenarios when the aerial industrial emissions from the nearby fossil fuel consuming stacks as adopted in the operational phase vehicular emission assessment are incorporated into the results.  The modelling results demonstrated that, given the limited truckloads of the fill bank during the decommissioning phase, potential air quality impact from vehicular emission would unlikely be a concern. All relevant AQOs are satisfied. Appendix 4-7 presents a typical CALINE4 result file for the modelling.

4.7.12     Figure 4-12 through Figure 4-14 present the cumulative maximum 1-hour NO2, 24-hour NO2, and 24-hour RSP concentrations, including background pollutant concentrations, predicted at 1.5m above ground in form of pollutant contours for the P.M peak hour scenario when higher overall pollutant concentrations are predicted at most ASRs.

4.7.13     The assessment results confirmed that taking into account the concurrent aerial industrial emission, vehicular emission from the fill bank vehicles will not result in any significant air quality impact during the decommissioning phase. 

 


Table 423         Maximum 1-hour NO2 and Average Daily NO2 and RSP at the RAPs (2007 Fill Bank Peak Hour, Vehicular Emission Impact Assessment)

RAP

NO2 and RSP Concentration (mg/m3)

 

1-hr NO2

24-hr NO2

24-hr RSP

 

1.5

3

5

10

15

20

1.5

3

5

10

15

20

1.5

3

5

10

15

20

A1

132

132

132

113

113

113

90

90

90

83

83

83

66

66

66

66

65

64

A2

132

132

132

132

113

113

90

90

90

90

83

83

67

67

67

67

66

65

A3

132

132

132

132

132

113

90

90

90

90

90

83

66

66

66

66

65

65

A4

169

169

169

150

150

132

106

106

106

98

98

90

73

73

72

71

69

67

A5

150

150

150

150

132

132

98

98

98

98

90

90

69

69

69

68

67

66

A6

132

132

132

113

113

113

90

90

90

83

83

83

64

64

64

63

62

62

A7

132

132

132

132

113

113

90

90

90

90

83

83

66

66

65

64

63

62

A8

113

113

113

113

113

113

83

83

83

83

83

83

64

63

63

63

62

61

A9

132

132

132

132

113

113

90

90

90

90

83

83

74

74

73

70

67

64

A10

150

150

150

132

113

113

98

98

98

90

83

83

78

78

76

72

69

66

A11

132

132

132

113

113

94

90

90

90

83

83

75

61

60

60

59

59

59

A12

132

132

132

113

113

94

90

90

90

83

83

75

61

61

60

59

59

58

A15

150

150

150

132

113

113

98

98

98

90

83

83

63

63

62

61

60

59

A16

94

94

94

94

94

94

75

75

75

75

75

75

62

62

62

62

61

61

A17

150

132

132

132

113

113

98

90

90

90

83

83

76

76

75

71

67

64

A18

132

132

132

132

113

113

90

90

90

90

83

83

73

73

72

70

68

66

AQO

300

150

180

        


Table 424         Maximum 1-hour NO2 and Average Daily NO2 and RSP at the RAPs (2007 A.M. Peak Hour; Vehicular Emission Impact Assessment)

RAP

NO2 and RSP Concentration (mg/m3)

 

1-hr NO2

24-hr NO2

24-hr RSP

 

1.5

3

5

10

15

20

1.5

3

5

10

15

20

1.5

3

5

10

15

20

A1

132

132

132

132

132

132

90

90

90

90

90

90

71

71

70

70

69

68

A2

132

132

132

132

132

132

90

90

90

90

90

90

71

71

71

70

70

69

A3

132

132

132

132

132

132

90

90

90

90

90

90

69

69

69

69

68

67

A4

169

169

169

169

150

150

106

106

106

106

98

98

74

74

74

72

71

70

A5

169

169

150

150

150

132

106

106

98

98

98

90

71

71

70

70

69

68

A6

132

132

132

132

113

113

90

90

90

90

83

83

66

66

66

65

64

63

A7

132

132

132

132

132

113

90

90

90

90

90

83

67

67

67

66

64

63

A8

113

113

113

113

113

113

83

83

83

83

83

83

64

64

64

63

63

62

A9

150

150

132

132

132

132

98

98

90

90

90

90

76

75

74

71

68

65

A10

150

150

150

132

132

113

98

98

98

90

90

83

80

79

78

74

70

67

A11

132

132

132

113

113

94

90

90

90

83

83

75

60

60

60

60

59

59

A12

132

132

132

113

113

94

90

90

90

83

83

75

61

61

60

59

59

59

A15

150

150

150

132

113

113

98

98

98

90

83

83

63

63

62

61

60

59

A16

94

94

94

94

94

94

75

75

75

75

75

75

62

62

62

62

62

61

A17

150

150

150

132

113

113

98

98

98

90

83

83

78

77

76

72

68

65

A18

132

132

132

132

132

113

90

90

90

90

90

83

74

74

73

71

69

67

AQO

300

150

180

        

 


Table 425         Maximum 1-hour NO2 and Average Daily NO2 and RSP at the RAPs (2007 P.M. Peak Hour; Vehicular Emission Impact Assessment)

RAP

NO2 and RSP Concentration (mg/m3)

 

1-hr NO2

24-hr NO2

24-hr RSP

 

1.5

3

5

10

15

20

1.5

3

5

10

15

20

1.5

3

5

10

15

20

A1

132

132

132

132

132

113

90

90

90

90

90

83

69

69

69

69

68

67

A2

132

132

132

132

132

132

90

90

90

90

90

90

70

70

70

70

69

68

A3

132

132

132

132

132

132

90

90

90

90

90

90

69

69

69

68

68

67

A4

169

169

169

169

150

150

106

106

106

106

98

98

78

78

77

75

73

71

A5

169

169

169

150

150

132

106

106

106

98

98

90

74

74

74

73

72

70

A6

132

132

132

132

113

113

90

90

90

90

83

83

68

68

68

67

65

64

A7

132

132

132

132

132

113

90

90

90

90

90

83

70

70

70

68

67

65

A8

113

113

113

113

113

113

83

83

83

83

83

83

67

67

67

66

65

64

A9

150

150

150

132

132

132

98

98

98

90

90

90

81

81

80

76

71

68

A10

169

150

150

132

132

113

106

98

98

90

90

83

87

86

84

79

74

71

A11

132

132

132

113

113

94

90

90

90

83

83

75

61

61

61

61

61

61

A12

132

132

132

113

113

94

90

90

90

83

83

75

61

61

61

60

60

60

A15

150

150

150

132

113

113

98

98

98

90

83

83

64

64

63

62

61

60

A16

113

113

113

94

94

94

83

83

83

75

75

75

64

64

64

64

64

63

A17

150

150

150

132

113

113

98

98

98

90

83

83

84

84

82

77

72

67

A18

150

150

150

132

132

113

98

98

98

90

90

83

79

79

78

76

73

70

AQO

300

150

180

 


Table 426         Predicted Maximum 1-hour NO2 and Average Daily NO2 at the RAPs (2007 Fill Bank Peak Hour; with Aerial Industrial Emissions)

RAP

NO2 Concentration (mg/m3)

 

1-hr NO2

24-hr NO2

 

1.5

3

5

10

15

20

1.5

3

5

10

15

20

A1

150

150

150

131

131

131

91

91

91

84

84

84

A2

150

150

150

150

131

131

91

91

91

91

84

84

A3

152

152

152

152

152

134

91

91

91

91

91

84

A4

190

190

190

171

171

153

106

106

106

99

99

91

A5

172

172

172

173

154

154

99

99

99

99

91

91

A6

150

150

150

132

132

132

91

91

91

84

84

84

A7

154

154

154

154

136

136

92

92

92

92

84

84

A8

134

134

134

134

134

135

84

84

84

84

84

84

A9

139

139

139

139

120

120

93

93

93

93

86

86

A10

163

163

163

144

126

126

100

100

100

92

85

85

A11

144

144

144

125

125

107

92

92

92

85

85

77

A12

139

139

139

120

121

103

92

92

92

85

85

77

A15

168

168

168

149

130

131

99

99

99

92

84

84

A16

110

110

110

110

111

112

79

79

79

79

79

79

A17

174

155

155

154

144

151

102

94

94

95

88

88

A18

146

146

146

146

128

128

93

93

93

93

86

86

AQO

300

150

 


Table 427         Maximum 1-hour NO2 and Average Daily NO2  at the RAPs (2007 A.M. Peak Hour; with Aerial Industrial Emissions)

RAP

NO2 Concentration (mg/m3)

 

1-hr NO2

24-hr NO2

 

1.5

3

5

10

15

20

1.5

3

5

10

15

20

A1

150

150

150

150

150

150

91

91

91

91

91

91

A2

150

150

150

150

150

150

91

91

91

91

91

91

A3

152

152

152

152

152

152

91

91

91

91

91

91

A4

190

190

190

190

171

172

106

106

106

106

99

99

A5

191

191

172

173

173

154

106

106

99

99

99

91

A6

150

150

150

150

132

132

91

91

91

91

84

84

A7

154

154

154

154

154

136

92

92

92

92

92

84

A8

134

134

134

134

134

135

84

84

84

84

84

84

A9

157

157

139

139

139

139

101

101

93

93

93

93

A10

163

163

163

144

144

126

100

100

100

92

92

85

A11

144

144

144

125

125

107

92

92

92

85

85

77

A12

139

139

139

120

121

103

92

92

92

85

85

77

A15

168

168

168

149

130

131

99

99

99

92

84

84

A16

110

110

110

110

111

112

79

79

79

79

79

79

A17

174

174

174

154

144

151

102

102

102

95

88

88

A18

146

146

146

146

146

128

93

93

93

93

93

86

AQO

300

150


Table 428         Maximum 1-hour NO2 and Average Daily NO2  at the RAPs (2007 P.M. Peak Hour; with Aerial Industrial Emissions)

RAP

NO2 Concentration (mg/m3)

 

1-hr NO2

24-hr NO2

 

1.5

3

5

10

15

20

1.5

3

5

10

15

20

A1

150

150

150

150

150

131

91

91

91

91

91

84

A2

150

150

150

150

150

150

91

91

91

91

91

91

A3

152

152

152

152

152

152

91

91

91

91

91

91

A4

190

190

190

190

171

172

106

106

106

106

99

99

A5

191

191

191

173

173

154

106

106

106

99

99

91

A6

150

150

150

150

132

132

91

91

91

91

84

84

A7

154

154

154

154

154

136

92

92

92

92

92

84

A8

134

134

134

134

134

135

84

84

84

84

84

84

A9

157

157

157

139

139

139

101

101

101

93

93

93

A10

182

163

163

144

144

126

107

100

100

92

92

85

A11

144

144

144

125

125

107

92

92

92

85

85

77

A12

139

139

139

120

121

103

92

92

92

85

85

77

A15

168

168

168

149

130

131

99

99

99

92

84

84

A16

129

129

129

110

111

112

86

86

86

79

79

79

A17

174

174

174

154

144

151

102

102

102

95

88

88

A18

164

164

164

146

146

128

101

101

101

93

93

86

AQO

300

150

 


 

4.8            Environmental Monitoring & Audit (EM&A) Requirements

4.8.1        Air quality impact from dust emissions during the establishment phase of the fill bank will be limited and can be controlled by implementation of the dust control measures required under the Air Pollution Control (Construction Dust) Regulation. Relevant dust control measures have been recommended for the establishment, operation and decommissioning phases as shown in the preceding sections.  The dust control measures required for each phase are also summarised in the EM&A Manual.  The quantitative modelling of fugitive dust impact revealed that dust impact would be a concern during the operation and decommissioning phases, if unmitigated.  Implementation of dust mitigation measures required under the regulation would therefore be an important role of the appointed contractor in the implementation of the fill bank. 

4.8.2        The implementation and adequacy of the dust mitigation measures during the establishment, operation and decommissioning phases of the fill bank is recommended to be checked through an Environmental Monitoring and Audit (EM&A) Programme.  Details of the EM&A programme, including the setting up of a TSP monitoring station near the nearest ASR at the northern edge of the site, are presented in the EM&A Manual.

4.8.3        The vehicular emission impact assessment indicates that vehicular emission from the trucks will not be a concern during establishment, operation and decommissioning phases.  The carrying out of a related EM&A works is not considered necessary.

 

4.9            Assessment Conclusions

4.9.1        Potential dust emission impact would be significant during the operation and decommissioning phases of the fill bank, if unmitigated.  In accordance with the requirements of the Air Pollution Control (Construction Dust) Regulation, sufficient dust control measures are required to be implemented during the establishment, operation and decommissioning of the fill bank.  Implementation of these measures and their adequacy will be checked through an Environmental Monitoring and Audit programme.

4.9.2        The establishment phase of the fill bank will occupy a short duration and will involve limited construction activities.  It is not anticipated that any significant dust/ air quality impact would be resulted from this phase of work.  Nevertheless, the contractor will still be required under the contract to carry out all necessary dust control measures to avoid the generation of any potential air quality impact on the surrounding air sensitive receivers. 

4.9.3        Potential air quality impact from vehicular emissions associated with public fill delivery trucks during the operation and decommissioning of the fill bank was assessed quantitatively.  Potential cumulative impact from other major criteria pollutant emission sources was considered.  The assessment results obtained with a conservative assessment approach confirmed that the proposed fill bank development would not cause any unacceptable air quality impact on the surrounding air sensitive receivers.  The cumulative pollutant concentrations, including the background pollutant levels, were all predicted to be satisfying the relevant Air Quality Objectives. 

 

 


5.               Noise Impact Assessment

5.1            Introduction

5.1.1        This section presents an assessment of noise impact for the establishment, operation and decommissioning of the fill bank in accordance with the requirements specified in Section 3.5.2 of the EIA Study Brief.

5.1.2        The assessment covers an area within 300m radius of the project site as for most local scale EIA studies, but because of the possible public concern has also been extended to include Noise Sensitive Receivers (NSRs) located along Wan Po Road in accordance with the requirements given in Section 3.5.2.2 of the EIA Study Brief.  Figure 5-1 shows the area covered within 300m radius of the project site and other existing and planned/ committed NSRs along Wan Po Road that could be subjected to noise impact from work activities at the fill bank or vehicles using the fill bank.

 

Establishment Phase

5.1.3        Preparation of the site for the fill bank operation will not involve significant use of Powered Mechanical Equipment (PME) as only minor work activities will be involved. The period of works will be limited as shown in the tentative programme in Figure 3-2.  All construction works will be carried out during the non-restricted hours (i.e. 7:00 a.m. to 7:00 p.m. on weekdays other than general holidays).

 

Operational Phase

5.1.4        Operation of the fill bank (from mid October 2002 to December 2004) will involve the transportation of public fill to the fill bank by trucks and barges; loading and unloading activities; sorting of C&D material, rocks and over-sized materials at the C&DMSF; and stockpiling of fill material at the fill bank.  Potential fixed noise impact could be generated from the fill bank due to the use of Powered Mechanical Equipment (PME) onsite. Potential noise impact has been assessed quantitatively.  Noise control/ mitigation measures would be proposed should there be any identified noise concern.

5.1.5        The proposed fill bank at TKO Area 137, similar to the existing public filling area onsite, will be closed from 9:00 p.m. to 8:00 a.m. daily.  Therefore, potential traffic noise impact during the night-time period will not be a concern.

5.1.6        As discussed in Section 3, an average of 2,000 truckloads per day using the proposed fill bank is conservatively estimated from a review of the truckload records using the public filling facilities in the territory in recent years.  The fill bank peak operating hour (i.e. with maximum number of trucks generated per hour) is expected to occur during the non-peak hour of 11:00a.m. - 12:00 based on the records of typical truck arrival pattern gained from operation of the existing public filling area at TKO Area 137.

5.1.7        As a proactive approach to minimise potential traffic noise impact arising from the vehicles using the proposed fill bank, CED has planned to establish a barging facility at TKO Area 137 to allow public fill to be transported to the site from a planned public filling barging point at the runway of the ex-Kai Tak Airport.  By assigning the truckloads generated from Government/ Public Corporations’ contracts in the Kowloon Districts and part of the New Territories to the planned barging point at Kai Tak through the existing trip-ticket system, this will allow the truckloads using the fill bank be shared by the Kai Tak barging point.  As discussed in Section 3, the mitigated number of trucks travelling on Wan Po Road to the fill bank would be an average of 1,000 vehicles/day.

 

Decommissioning Phase

5.1.8        Decommissioning of the fill bank (from January 2004 to December 2007) will involve removal of stockpiled material for transportation to reclamation sites for reuse.  The activities would be the reverse of the operational phase.  Potential fixed noise impact could be generated from the use of PME onsite and has been assessed quantitatively.  Mitigation measures would be proposed should unacceptable noise impact be predicted.

5.1.9        It is planned to start the removal of stockpiled material from the fill bank from January 2004 before the completion of the operational phase in December 2004 so that sorted public fill material of required quality could be effectively transported to the reclamation project sites that would have commenced in 2004.  Early decommissioning of the fill bank is also required to enable an area of about 55 hectares of land at the northern side of the site to be make available by September 2005 for infrastructure works to commence to prepare for subsequent industrial uses in TKO Area 137 currently planned in mid/ late 2007.  During the operation-decommissioning overlapping period (i.e. throughout 2004), to avoid double handling, incoming trucks containing public fill that meets the specified technical requirements and quality will be directed to the barging point for transportation to reclamation sites without sorting/ stockpiling at the fill bank.  If the demand on public fill from reclamation projects is high, the stockpiled material at the fill bank will also be removed.  To avoid generation of additional traffic, all stockpiled public fill removed from the fill bank during the operation-decommissioning overlapping period will be transported away by barges. 

5.1.10     From January 2005 when fill bank will not receive further public fill, decommissioning of the fill bank will involve the use of both barges and trucks.  At least 90% of the stockpiled material will be transported off the site by barges, leaving only 10% of material to be transported by trucks.  The vehicle dispatch rate of the fill bank will be limited to 200 vehicles per day, and 30 vehicles per hour.

 

5.2            Relevant Legislation and Standards

5.2.1        The principal legislation regulating noise emissions in Hong Kong is the Noise Control Ordinance (NCO) (Cap. 400).  Various Technical Memoranda stipulating control approaches and criteria during the restricted hours have been issued under the NCO for noise generated from construction sites (e.g. noise generated from use of Powered Mechanical Equipment; noise from domestic premises and public places (e.g. noise generated from operation of musical or other instrument); and noise from places other than domestic premises, public places or construction sites (e.g. industrial noise), etc.

5.2.2        Traffic noise is not directly controlled under the NCO but there are noise standards for planning purposes established in the Technical Memorandum on EIA Process (EIAO-TM) under the EIA Ordinance.  The noise standards apply to designated projects in the EIAO Process.

 


5.3            Study Area and Noise Sensitive Receivers

5.3.1        TKO Area 137 is located at the southern end of Wan Po Road.  In the vicinity of the site are other industrial uses such as SENT landfill, TKO Industrial Estate, etc.  Residential landuses are located at much further distance away from the site.  The nearest existing NSR in Tseung Kwan O, Oscar By the Sea, is located at more than 3.2km from the subject site boundary. Both Island Resort and Fullview Garden in Siu Sai Wan are also situated at more than 1.8km from the site.  Other existing NSRs, including residential developments and schools, are located at a further distance away from TKO Area 137.  Planned residential developments and schools are located at TKO Area 85 and Area 86, which is more than 2.0km and 1.5km respectively to the north of the fill bank site boundary.  These planned future developments would not be occupied until 2006 and hence would not be affected during the establishment and operational phases of the fill bank.  Potential construction and fixed noise impact generated from the establishment, operation and decommissioning of the fill bank on these existing and planned NSRs has been assessed.

5.3.2        Operation of the fill bank at TKO Area 137 to provide an outlet for disposal of public fill will inevitably generate traffic associated with public fill delivery.  Potential traffic noise impact on the NSRs along Wan Po Road due to vehicles commuting to fill bank in the establishment, operation and decommissioning of the fill bank has been assessed.   

5.3.3        Domestic premises and schools are classified as NSRs under the EIAO-TM. Representative Assessment Points (RAPs) have been selected to represent the NSRs located nearest to the site and along Wan Po Road.  The NSRs of interest during the establishment, operation and/or decommissioning phases of the fill bank are summarised in Table 5‑1.  Distance of the NSRs from the boundary of the fill bank is also shown in Table 5‑1.  Figure 5-2 shows the location of the RAPs.

Table 51          Representative Assessment Points selected for Noise Impact Assessment

RAP

Noise Sensitive Receivers

Distance from boundary of Fill Bank (km) (Approx.)

P Represents Presence of NSRs

 

 

Establish-ment

Operation

Decommiss-ioning

N1-N3

On Ning Garden

4.3

P

P

P

N4-N6

Nan Fung Plaza

4.2

P

P

P

N7-N8

La Cite-Noble and Maritime Bay

4.0

P

P

P

N9-N11, F1

Oscar By the Sea in Area 51

3.2

P

P

P

N12-N13

Po Leung Kuk Fung Ching Memorial Primary School

4.2

P

P

P

N14-N15

Leung Sing Tak Primary School

4.1

P

P

P

 

Planned Residential Development in Area 85

2.0

 

 

P

F3*

Planned Residential Development in Area 86

1.5

 

 

P

 

Two Planned Schools in Area 50

3.3

 

 

P

 

Planned School in Area 86

1.5

 

 

P

F2

Island Resort

1.8

P

P

P

 

Fullview Garden

1.8

P

P

P

*  The initial phase of these planned landuses would be completed by 2006 according to information provided by PlanD.

 

5.4            Establishment Phase

Construction Noise Impact

Assessment Criteria

5.4.1        Construction noise is controlled under the Noise Control Ordinance (NCO) which prohibits the use of powered mechanical equipment (PME) during the restricted hours (7 p.m. to 7 a.m. on normal weekdays and any time on a public holiday, including Sunday).  The criteria and procedures for issuing such a permit are specified in the “Technical Memorandum on Noise From Construction Works Other than Percussive Piling” (TM1).

5.4.2        For construction works other than percussive piling, although TM1 do not provide control over daytime construction activities, noise limits are set out in Table 1B of Annex 5 of the EIAO TM which have been adopted as the assessment criteria in this study.  These noise standards are summarised in Table 5‑2 below:

Table 52          Noise Limits for Daytime Construction Activities

NSR

0700 to 1900 hours on any day not being a Sunday or general holiday Leq (30min.) dB (A)

All domestic premises including temporary housing accommodation

75

Educational institutions including kindergartens, nurseries.

70

65 (during examination)

N.B.    (i) The above standards apply to uses which rely on opened windows for ventilation;

(ii) The above standards shall be viewed as the maximum permissible noise levels assessed at 1m from the external facade.

 

5.4.3        Construction activities for the establishment of the fill bank are planned to be carried out during non-restricted hours.  However, if the Contractor finds that works during restricted hours are required, then he should apply for a Construction Noise Permit (CNP).  Despite any description or assessment made in this EIA Report on construction noise aspects, there is no guarantee that a CNP will be issued for the project construction. The Noise Control Authority will consider a well-justified CNP application, once filed, for construction works within restricted hours as guided by the relevant Technical Memoranda issued under the Noise Control Ordinance.  The Noise Control Authority will take into account of contemporary conditions/ situations of adjoining land uses and any previous complaints against construction activities at the site before making his decision in granting a CNP.  Nothing in this EIA Report shall bind the Noise Control Authority in making his decision.  If a CNP is to be issued, the Noise Control Authority shall include in it any condition he thinks fit.  Failure to comply with any such conditions will lead to cancellation of the CNP and prosecution action under the NCO.

5.4.4        With effect from 1 November 96, the use of specified powered mechanical equipment (SPME) for carrying out construction work other than percussive piling and/ or the carrying out of prescribed construction work (PCW) within a designated area are also brought under control. The relevant technical details are provided in the “Technical Memorandum on Noise from Construction Work in Designated Areas” (TM2).

5.4.5        Percussive piling is controlled similarly by a noise permit system and described in the NCO and the “Technical Memorandum On Noise From Percussive Piling” (TM3) which restrict the number of hours during which piling can be conducted.  No percussive piling may be carried out in the territory without a valid CNP issued by the Authority.  Besides, a CNP will only be granted for percussive piling which is scheduled during normal working hours between 7 a.m. to 7 p.m. from Monday to Saturday.  The carrying out percussive piling is prohibited at any time on Sundays and public holidays as well as during the weekday from 7 p.m. to 7 a.m. the next day.

 

Evaluation

5.4.6        The nearest existing NSR in Tseung Kwan O is located at more than 3.2km from the boundary of the site. Nearest NSRs on the Hong Kong Island are also located at more than 1.8km from the site boundary. Minor work activities will only be involved during the establishment phase of the fill bank.  The works will be carried out during the non-restricted hours (i.e. 7:00 a.m. to 7:00 p.m. on weekdays other than general holidays).

5.4.7        Mobilisation and establishment of the fill bank will commence in early October 2002 to prepare the site for public fill intake.  It will involve primarily site clearance, setting up of the C&DMSF, barging facility, site offices and installation of planned environmental control measures, including the erection of site hoarding of at least 2.4m high (from ground level) along the northern boundary of the site (except at site entrance/ exit location), installation of vehicle wheel washing facilities, paving of designated main haul roads, and where necessary, realignment of the existing surface drainage channel at the perimeter of the site.  These work activities would involve the use of limited PME and are not expected to generate significant noise levels.

5.4.8        Assuming the concurrent and continuous use of 2 excavators, 2 bulldozers and 2 dump trucks within a 30 minute period as a representative scenario, the cumulative unmitigated maximum sound power level is 123dB(A).  With correction for distance attention, façade effect, and noise shielding effect provided by the existing terrain and industrial undertakings at TKO Industrial Estate, the noise level predicted at the nearest existing NSR in TKO, Oscar By the Sea (RAP F1), would be Leq(30min.) 28dB(A). At Island Resort (RAP F2), consideration of distance attention and façade correction will give a predicted noise level of 44dB(A).  These predicted construction noise levels at the RAPs are well below the noise criteria of Leq(30min.) 75dB(A) (or background noise level), and is considered insignificant. Potential noise impact generated from the fill bank during the establishment phase is therefore confirmed not to be an issue.

 

5.5            Operational Phase

Operational Phase Fixed Noise Impact

5.5.1        This section presents a quantitative assessment of noise generated from the operation of PME used in the handling of public fill  at the fill bank.

Assessment Criteria

5.5.2        The Technical Memorandum for the Assessment of Noise from Places other than Domestic Premises, Public Places or Construction Sites (TM4) specifies the noise standards to be met at NSRs for noise generated from industrial activities and other sources.  In order to plan for a better environment, in accordance with the requirements under Table 1 in Annex 5 of the EIAO-TM, the maximum noise level arising from the noise sources, measured in terms of Leq(30 min) at the NSRs shall be 5 dB(A) below the Acceptable Noise Level (ANL) as specified in TM4.

5.5.3        In determining the ANL, the appropriate Area Sensitivity Rating (ASR) for a NSR has to be established first. Section 2.3.4 of TM4 specifies that the Area Sensitivity Rating depends upon the characteristics of the area in which the NSRs are located.  There are four types of areas described in the TM4 which are summarised in Table 5-3.


Table 53          Area Sensitivity Ratings of NSRs

Type of Area Containing NSR

Degree to which NSR is affected by Influencing Factors (Ifs)

 

Not Affected

Indirectly Affected

Directly Affected

(i)     Rural area, including country parks, or village type developments

A

B

B

(ii)    Low density residential area consisting of low-rise or isolated high-rise developments

A

B

C

(iii)  Urban area

B

C

C

(iv)  Area other than those above

B

B

C

 

5.5.4        The nearest NSRs consist of high-rise residential developments on the Hong Kong Island East and in Tseung Kwan O.  An ASR “B” was therefore adopted for the study.  It should be noted that fixed noise sources are controlled under section 13 of the NCO.  At the time of investigation, the Noise Control Authority will determine noise impact from concerned fixed noise sources on the basis of prevailing legislation and practices being in force, and taking account of contemporary conditions / situations of adjoining land uses. Nothing in this EIA Report shall bind the Noise Control Authority in the context of law enforcement against all the fixed noise sources being assessed.

5.5.5        As the fill bank will only operate within the daytime and evening period (from 0800 to 2100 hours), the ANL require to be met at the NSRs is Leq(30min.) 65dB(A).  Applying a 5dB(A) margin in accordance with the EIAO-TM requirements, the noise assessment criteria, “Acceptable Noise Level (ANL) – 5 dB(A)” criteria (ANL-5), adopted in the study is therefore Leq(30min.) 60dB(A) which applies to the daytime and evening periods.

 

Assessment Approach

5.5.6        The assessment on fixed plant noise impact was conducted by making reference to the standard acoustics principles and representative noise levels of PME presented in the Technical Memorandum on Noise from Construction Work other than Percussive Piling (TM1).  The assessment approach is summarised below:

(i)               Based on the work activities involved, identify the major noise sources associated with the operation of the fill bank;

(ii)              Estimate the Sound Power Level (SWL) associated with the use of PME in these activities based on the reported noise levels in TM1;

(iii)            Calculate the Corrected Noise Level (CNL) at selected representative RAPs based on consideration of distance attenuation, noise shielding effect, and façade correction;

(iv)            Compare the CNL with the relevant noise criteria and recommend noise mitigation measures, if necessary.

 


Identified Noise Sources and Calculations

5.5.7        Noise would be generated from the use of PME in stockpiling activities, material handling, loading and unloading activities at the barging point, and operation at the C&DMSF.  Exact details on the PME to be used in the operation of the fill bank would not be available before the appointment of the contractor in future.  Nevertheless, based on previous experience in similar activities, the Port Works Division of CED has developed a preliminary PME inventory for the purpose of quantitative assessments in the EIA study.  Table 5‑4 presents the representative preliminary PME inventory for the operational phase fixed noise impact assessment. 

Table 54          Representative Inventory on PME used during the Operational Phase

Equipment

Estimated number

Identification Code

SWL

Associated with the Operation of the C&DMSF

Hydraulic Excavator (25 tonnes)

2

CNP081

112

Hydraulic Excavator (25 tonnes with percussion breaker 1500 kg)

1

CNP028

122

Wheel Loading Shevel (1.6m3)

2

CNP081

112

Grab Lorry (Conventional type)

1

CNP141

112

Dump truck (Conventional type)

8

CNP067

117

Water Lorry(Conventional type)

1

CNP141

112

Vibratory scrapper*

1

NA

109

Stone Crusher*

1

NA

115

Associated with the Barging Point Operation and Stockpiling Activity

Barge**

8

CNP061

104

Tug Boat

4

CNP221

110

Dump truck

30

CNP067

117

Bulldozer

5

CNP030

115

Loader

4

CNP081

112

Roller

3

CNP186

108

Compactor

2

CNP050

105

Excavator

2

CNP081

112

Note:

* Based on SPL measured by the consultants for similar facilities currently operated onsite;

** CED has advised that at most 4 barges would be working on site concurrently.

 

5.5.8        In addition to the above noise sources, noise contribution from the movement of public fill delivery vehicles at the designated haul roads within the site has been quantified by making reference to the methodology recommended in the British Standard 5228 Part 1, Noise and Vibration Control on Construction and Open Sites, 1997 (BS 5228) in accordance with the EIAO-TM.

 


Cumulative Noise Impact from Concurrent Activities

5.5.9        The operation of the fill bank can be regarded as a 2-phase programme.  Phase 1 commences from mid October 2002 to December 2003 when the CED’s Contract CV/97/01 “Tseung Kwan O Port Development at Area 137 Stage 2 – Construction of Seawalls and Reclamation” is still occupying the northern portion of the site.  During this period, sorted public fill will only be stockpiled in the southern part of the site.  Potential cumulative noise impact would be generated from the concurrent use of PME in the operation of the fill bank and the Contract CV/97/01. Table 5‑5 presents a representative PME inventory provided by the Development Division of CED managing the reclamation works.  The potential cumulative noise impact has been assessed under Scenario 1. 

Table 55          Representative Inventory of PME used in the Contract CV/97/01

Equipment

Estimated Number

Identification Code

SWL, dB(A)

Hopper Barge*

4

CNP061

104

Grab Dredger*

2

CNP063

112

Derrick Lighter*

3

CNP061

104

Tug Boat (up to 900 HP) *

3

CNP221

110

Backacter (Caterpillar 307 or equivalent)

1

CNP030

115

Bulldozer (Caterpillar D8N or equivalent)

3

CNP030

115

Wheel Loader (Caterpillar 950G or equivalent)

2

CNP081

112

Roller (Operating weight not less than 10 tonnes)

3

CNP186

108

24-ton Dump Truck

10

CNP067

117

*These equipment would be in operation at the barging point located at the northern side of the site.

 

5.5.10     For the time period from January 2004 to December 2004, there will be overlapping of the operational and decommissioning phases.  Potential cumulative noise impact from the concurrent use of PME associated with the work activities have been assessed quantitatively under Scenario 2. As shown in Table 5‑6, PME used during the decommissioning phase is expected to be similar to that during the operational phase. 

Table 56          Representative Inventory on PME used during the Decommissioning Phase

Equipment

Estimated

Identification Code

SWL, dB(A)

Number

Barge*

11

CNP061

104

Tug Boat

2

CNP221

110

Dump truck

10

CNP067

117

Bulldozer

3

CNP030

115

Loader

8

CNP081

112

Roller

NA

CNP186

108

Compactor

NA

CNP050

105

Excavator

2

CNP081

112

* CED has advised that at most, 4 barges would be working on site concurrently.

 


Assessment Results

5.5.11     Table 5‑7 presents the noise level predicted at RAPs F1 (Oscar by the Sea) and F2 (Island Resort) for the assessment scenarios 1 and 2.  Breakdown of the calculations is presented in the spreadsheets given in Appendix 5-1 for reference.

Table 57          Noise Levels predicted at the RAPs F1 and F2

during the operational phase of the Fill Bank

Scenario

Predicted Leq(30min) level at F1 (Oscar by the Sea), dB(A)

Predicted Leq(30min.) level at F2 (Island Resort), dB(A)

 

Daytime*

Evening**

Daytime*

Evening**

Scenario 1 – with concurrent reclamation activities at the northern side of TKO Area 137

40

38

60

58

Scenario 2 –with concurrent decommissioning activities at the Fill Bank

40

39

60

58

ANL – 5dB(A) Criteria

60

* Daytime – during the operation of the fill bank from 0800 to 1900 hours;

** Evening – during the operation of the fill bank from 1900 to 2100 hours.

 

5.5.12     Given the vast distance separation between the fill bank and the nearby NSRs, the predicted noise levels are all well within the relevant noise assessment criteria for both assessment scenarios 1 and 2 for the operation of the fill bank during the daytime and evening periods. The assessment findings calculated based on a conservative approach has demonstrated that the nearby noise sensitive receivers will unlikely be subject to unacceptable fixed noise impact.

 

Good Site Practices and Noise Management

5.5.13     Notwithstanding the findings of the quantitative assessments, as a prudent approach, noise management measures are recommended to be implemented by the contractor as good site practices during the establishment, operation and decommissioning of the fill bank to minimise the noise generation from the fill bank on the surrounding environment.  These measures shall be implemented as far as practicable and shall include:

·        the Contractor, if any, shall comply with and observe the Noise Control Ordinance (NCO) and its current subsidiary regulations;

·        before the commencement of any work that may generate a significant noise impact during the establishment, operation, and decommissioning of the fill bank, the Contractor shall submit to the Engineer for approval the method of working, equipment and sound-reducing measures (e.g. use of silenced type of equipment, etc.) intended to be used at the site;

·        the Contractor shall devise and execute working methods that will minimise the noise impact on the surrounding environment; and shall provide experienced personnel with suitable training to ensure that these methods are implemented;

·        only well-maintained plants should be operated on-site;

·        plants should be serviced regularly during the establishment, operation and decommissioning phases of the fill bank;

·        machines that may be in intermittent use should be shut down or throttled down to a minimum between work periods;

·        silencer and mufflers on PME should be utilised and should be properly maintained during the establishment, operation and decommissioning phases of the fill bank;

·        noisy activities shall be scheduled to minimise exposure of nearby NSRs to high levels of construction noise.  For example, noisy activities can be scheduled for midday or at times coinciding with periods of high background noise (such as during peak traffic hours);

·        noisy equipment such as emergency generators shall always be sited as far away as possible from noise sensitive receivers; and

·        mobile plants should be sited as far away from NSRs as far as possible.

 

Operational Phase Noise from Truck to Fill Bank Along Wan Po Road

5.5.14     This section presents an assessment on the potential truckload noise impact on NSRs along Wan Po Road due to the public fill delivery trucks using the proposed fill bank.

 

Truckload Noise Mitigation Measures

5.5.15     As a proactive approach to mitigate the truckload noise impact, a marine based transportation route for public fill will be provided at TKO Area 137 to allow a planned barging point in the ex-Kai Tak Airport to share part of the truckloads using the fill bank travelling on Wan Po Road.  As discussed in Section 3, public fill delivery truckloads on Wan Po Road will be reduced to an average of 1,000 vehicles/day in the presence of the Kai Tak barging point.

 

Assessment Criteria

5.5.16     It is proposed to adopt traffic noise standards for planning purposes specified in Table 1 under Annex 5 of the EIAO-TM.  For domestic premises and education institutions, the road traffic noise standard is L10(1-hr) 70dB(A) and L10(1-hr) 65dB, respectively.  These noise limits are meant for the hour having the peak traffic flows, and apply to uses which rely on opened windows for ventilation.

5.5.17     In situations where the predicted noise levels at the NSRs are above the noise standard (i.e. L10(1-hr) 70dB(A) at residential units) but noise contribution attributed to the fill bank operation is less than 1.0dB(A), it can be concluded that the noise contribution attributed to the fill bank operation is insignificant.

 

Assessment Methodology

5.5.18     The commonly accepted method in the territory for the assessment of road traffic noise is based on the procedures given in the UK Department of Transport document “The Calculation of Road Traffic Noise”.  The road traffic noise is presented in terms of noise levels exceeded for 10% of the one-hour period for the hour having the peak traffic flow [L10(1-hr) dB(A)].  Prediction of the peak 1-hour traffic noise level shall be based on the maximum traffic projections representing the worst-case scenario up to the fill bank decommissioning. 

5.5.19     As the fill bank peak hour would occur at a non-peak hour (at 11:00a.m. -12:00), in addition to the A.M. and P.M. peak hour traffic flows, the background traffic forecast for the fill bank peak hour has been projected by the traffic consultants for a robust assessment.  The potential traffic noise impact attributed to the fill bank operation at TKO Area 137 has been assessed by prediction of the noise levels at the RAPs for the following scenarios summarised in Table 5-8.


Table 58          Operational Phase Traffic Noise Assessment Scenarios

Representative Scenarios

Traffic Noise Levels predicted at the RAPs

2004 A.M. peak hour

Without fill bank

With fill bank

Noise contribution from vehicles using the fill bank

2004 fill bank peak hour (11:00 to 12:00)

Without fill bank

With fill bank

Noise contribution from vehicles using the fill bank

2004 P.M. peak hour

Without fill bank

With fill bank

Noise contribution from vehicles using the fill bank

 

Without Fill Bank

5.5.20     Without the proposed fill bank, the consequence is that there will not be any available public filling facility in the region that could receive the 2,000 truckloads of public fill per day, and the reusable public fill may inevitably need to be disposed of to landfills. 

5.5.21     Amongst the three strategic landfills in Hong Kong, SENT landfill located adjacent to TKO Area 137 would be the most convenience location to the truck drivers for public fill disposal. West NT landfill and North East NT landfill are both at great distances from construction sites located in the Kowloon districts and south-eastern part of the territory.  Therefore, the worst-case situation under the “without fill bank” scenario is that there could be up to 2,000 truckloads of material per day diverted to SENT landfill.

5.5.22     Even if half of the public fill delivery truckloads (i.e. 1,000 vehicles/day) generated from Government/ Public Corporations’ contracts could be diverted through the Government trip-ticket system to the other fill bank planned in the south-western region of the territory i.e. reclaimed land at Tuen Mun Area 38 (though this is not a practicable measure as the Area 38 site will not have spare storage capacity to accommodate the public fill planned to be stored at TKO Area 137), there would still remain an average of 1,000 truckloads per day generated from private sectors’ construction sites.  The truck drivers from these private sector development sites would be free to choose their preferred disposal outlets, so that it is most likely that they will deliver the materials to the nearest and most cost-saving destinations for disposal. Even if half of the remaining drivers are willing to travel an extra distance of 40km (round trip) for taking their material to the fill bank at Tuen Mun due to their environmental awareness, there would still remain 500 trucks/day taking their material to SENT landfill.

5.5.23     For the assessment of traffic noise impact under the “without fill bank” scenario, it was conservatively assumed that there would only be 500 trucks/day taking their material to SENT landfill.   

 

With the Fill Bank

5.5.24     This scenario considered the mitigated situation of having 1,000 truckload per day diverted to the Kai Tak barging point, such that the vehicles using the fill bank at TKO Area 137 will be reduced to an average of 1,000 vehicles/day. 


5.5.25     In order to cater for possible daily fluctuation in truckloads, the traffic noise impact assessment for the “with fill bank” scenario has taken into consideration a maximum daily truckload of 1,500 vehicles/day, or 240 vehicles/hour during the fill bank peak hour.    Based on the past records on truckloads in the operation of the public filling facilities in the territory, it is considered that applying a 50% margin to the average volume of truckloads travelling in and out the fill bank on Wan Po Road would represent a conservative approach to the assessment.

 

Traffic Forecast

5.5.26     The fill bank would be in operation from mid October 2002 to December 2004. As presented in Section 3, the public fill storage capacity available from October 2002 to December 2003 would be about 2 Mm3 only.  The remaining storage capacity of 4Mm3 would only be available in 2004 upon the completion of the ongoing reclamation works in TKO Area 137.

5.5.27     Year 2004 traffic forecast for the A.M. peak hour, P.M. peak hour and fill bank peak hour under the “with fill bank” and “without fill bank” scenarios have been projected by the traffic consultants for the worst case representative assessments.  The traffic forecast for the “without fill bank” scenario has accounted for the expected daily flows (a minimum of 500 vehicles/day) going to SENT landfill via Wan Po Road.  The “with fill bank” scenario has considered a maximum daily truckload of 1,500 vehicles/day, or 240 vehicles/hour during the fill bank peak hour.  These data presented in Appendix 5-2 have been agreed by Transport Department for the EIA study.  Appendix 5-3 presents a letter from Transport Department indicating endorsement of the traffic forecast for the study.

 

Existing Traffic Noise Mitigation Measures

5.5.28     The key road carriageway of interest in respect of traffic noise is the existing Wan Po Road which is the only direct access to TKO Area 137.  Based on the findings in the studies Contract No. TK37/93 “Noise Impact Assessment (NIA) for the Provision of Road P1 in TKO New Town(1996) and Contract No. TK43/96 “Widening of Wan Po Road – EIA Study” (1997), the following existing noise mitigation measures implemented at source on Wan Po Road have been taken account of in the traffic noise modelling:

    A 4m high vertical noise barrier along the southbound verge of Wan Po Road – section between Po Shun Road roundabout and Chiu Shun Road roundabout;

    A 4m high vertical noise barrier along the southbound verge of 9.3m wide flyover lying above the Chiu Shun Road roundabout; and

    Low noise road surfacing along Wan Po Road – section between Po Shun Road roundabout and Chiu Shun Road roundabout; and section between Chiu Shun Road roundabout and local road (future Road D6) leading to Pak Shing Kok.

5.5.29     These existing direct at-source traffic noise mitigation measures illustrated in Appendix 5-4 have been taken into account in the traffic noise modelling.

 

Representative Assessment Points

5.5.30     Location of the representative assessment points (RAPs) selected for the traffic noise impact assessments are shown in Figure 5-2.

 


Assessment Results – Mitigated Scenario

5.5.31     Appendix 5-5 [column (ii)] presents the year 2004 A.M. peak hour, fill bank peak hour and P.M. peak hour traffic noise levels, L10(1-hr) predicted at the RAPs (under the left, middle and right sides of the table) under the “with fill bank” scenario.  The corresponding noise levels at the RAPs for the “without fill bank” scenario are shown under [column (i)] in the same Appendix.  [colume (iii)] presents the difference in noise levels for the “with fill bank” and “without fill bank” scenarios for the RAPs with predicted noise levels above the traffic noise standards.  Appendix 5-6 presents sample calculations and input parameters for 5 assessment points for reference.

5.5.32     The assessment results [column (ii)] for the “with fill bank” scenario revealed that under the worst-case mitigated situation, the traffic noise standards will be met at all classrooms and at most residential units under the A.M., P.M. peak hours and the fill bank peak hour.

5.5.33     Where the overall noise levels were predicted to be above the relevant traffic noise criteria at a few NSRs that are located in close proximity to Wan Po Road (represented by N6 at Nan Fung Plaza, and N9 through N11 at Oscar By The Sea), the exceedance was identified to be a result of the dominant background noise from the existing traffic on the existing Wan Po Road.  To these NSRs, the mitigated noise contribution attributable to the fill bank operation at TKO Area 137 was identified to be less than 1.0dB(A), which is considered insignificant.

5.5.34     As part of the planned “TKO Development Contract F – Grade Separated Interchange T1/P1/P2” Project, the existing 4m vertical noise barriers on Wan Po Road – section between Po Shun Road roundabout and Chiu Shun Road roundabout would be replaced by 5.5m inverted L-shaped barriers.  An additional 5.5m inverted L-shape noise barrier would also be erected along the central divider of the same Wan Po Road section.  Under the latest development programme provided by TDD, the new noise barrier along the central divider would be completed by March 2003.  Taking into account the noise shielding effect of central divider noise barrier along with the existing 4m-high noise barrier along the road edge, Appendix 5-7 shows the further reduced noise levels for reference.

 

5.6            Decommissioning Phase

Introduction

5.6.1        The activities carried out during the decommissioning phase will be the reverse of the operational phase.  Stockpiled material will be removed from the fill bank for delivery to reclamation (and earth filling) project sites for reuse.  Decommissioning of the fill bank is planned to commence in January 2004 to enable an area of about 55 hectares of land at the northern side of the site to be made available by September 2005 for road construction and servicing.  The area will be used as industrial uses from mid/ late 2007 under the latest programme.

5.6.2        There would be a period (from January 2004 to end of 2004) when decommissioning of the fill bank will overlap with the operation of the fill bank. The potential cumulative noise impact from fixed noise sources has been assessed to be within acceptable levels in the preceding section.  To minimise the potential cumulative traffic noise impact, it is not planned to have any delivery of fill material off the fill bank by trucks during this time period.

5.6.3        During the decommissioning of the fill bank from January 2005 to December 2007, barges will be extensively used for delivery of stockpiled material from the fill bank to reclamation sites.  It was estimated that about 90% of the stockpiled material will be delivered offsite by barges, leaving only 10% of the material to be delivered by trucks.  Maximum vehicle dispatches rate will be limited to a maximum of 200 vehicles/day, or 30 vehicles/hour.   

 


Fixed Noise Impact Assessment

5.6.4        This section presents an assessment of noise impact generated from the use of PME onsite during the decommissioning phase of the fill bank for the period from January 2005 to December 2007. 

5.6.5        The assessment criteria, ANL-5dB(A) criteria, are Leq(30min.) 60dB(A) for the daytime and evening periods as adopted in the operational phase impact assessment.  The assessment approach follows that presented in the preceding section on operational phase fixed noise impact assessment.  The RAPs selected for the assessment include F1 and F2 presented in the preceding section, as well as F3 which represents the planned residential towers in development phase 1 of Area 86 located nearest to the fill bank site.  Appendix 5-8 presents the spreadsheets showing the calculations.

5.6.6        Table 5‑9 presents the maximum noise levels predicted at the RAPs during the decommissioning phase.  The predicted maximum noise levels are well below the relevant noise assessment criteria established for daytime/evening period given the long buffer distance. Hence, no direct mitigation measure is required.  The assessment findings calculated based on a conservative approach has therefore demonstrated that the nearby noise sensitive receivers will unlikely be subject to unacceptable fixed noise impact during the decommissioning phase of the fill bank.

5.6.7        As a prudent approach in noise management, the good site practices and noise management measures recommended for implementation during the establishment and operational phases shall also be implemented during the decommissioning phase.

Table 59          Noise Levels predicted at the RAPs F1, F2 and F3 during the decommissioning phase of the fill bank

Scenario

Predicted Leq(30min.) level at F1, dB(A)

Predicted Leq(30min.) level at F2, dB(A)

Predicted Leq(30min.) level at F3, dB(A)

Decommissioning of the Fill Bank (scenario for Jan. 2005 to Dec. 2007)

34

53

44

ANL-5dB(A) Criteria

60

60

65

 

Evaluation of Decommissioning Phase Truckload Noise Impact Along Wan Po Road

5.6.8        Planning Department has advised that based on the latest available plan, there would be population intake and new school development at Area 85 and Area 86 from 2006.  These planned NSRs, as well as the existing NSRs, could be subjected to potential truckload noise impact from the fill bank operation, if unmitigated.

5.6.9        With the proposal of having at least 90% public fill to be delivered offsite by barges, truckloads generated from the fill bank will be controlled to a maximum of 200 vehicles/day, or a maximum of 30 vehicles/hour.  From the modelling results presented for the operational phase, it can be concluded that this limited, mitigated vehicle flows will unlikely generate any significant traffic noise contribution and impact on the NSRs.

 

5.7            Environmental Monitoring and Audit Requirements

5.7.1        To check that the appointed contractor will implement the noise management measures as good site practices as recommended in this EIA study, noise generation from the onsite activities is recommended to be audited as part of the EM&A programme during the establishment, operation and decommissioning of the fill bank.  Details of the EM&A programme are presented in the EM&A Manual.


5.8            Conclusion

5.8.1        All existing NSRs are located at more than 1.8km from the boundary of the proposed fill bank at TKO Area 137.  Planned NSRs that would be presence during the decommissioning phase from 2006 are also located at more than 1.5km from the site.

5.8.2        Construction noise impact during the establishment period of the fill bank, as well as fixed noise impact during the operation and decommissioning phases are not identified to be key concern.  Nevertheless, good site practices and noise management measures have been recommended for implementation during the establishment, operation and decommissioning phases of the fill bank as a prudent approach.

5.8.3        Truckload noise generated from public fill delivery vehicles using the fill bank during the operational phase has been identified to be a key interest in the study, and has been assessed in details quantitatively.  CED has planned to introduce a marine access route for delivery of public fill by barges during the operational (and decommissioning) phase of the fill bank.  By assigning the planned Kai Tak barging point as the designated public filling facility for truckloads generated from Government/ Public Corporations’ contracts, truckloads on Wan Po Road using the fill bank will be reduced from an average of 2,000 vehicles/day to an average of 1,000 vehicles/day. 

5.8.4        To account for possible daily truckloads variation, the traffic noise impact assessment has assessed a maximum truckload of 1,500 vehicles/day, or 240 vehicles/hour during the fill bank peak.  The assessment results revealed that the traffic noise standard of L10(1-hr) 70dB(A) and 65dB(A) as stipulated in the EIAO-TM for residential units and schools respectively would be met at most NSRs.  Where the overall noise levels were predicted to be above the relevant traffic noise criteria at a few NSRs that are located in close proximity to Wan Po Road, the exceedance was identified to be a result of the dominant background noise from the existing traffic on the existing Wan Po Road.  To these NSRs, the mitigated noise contribution attributable to the fill bank operation at TKO Area 137 was identified to be less than 1.0dB(A), which is considered insignificant.

5.8.5        During the decommissioning phase of the fill bank, barges will be extensively used for delivery of public fill offsite and the daily maximum traffic flows would be limited to a maximum of 200 vehicles/day, or 30 vehicles/hour.  This limited traffic flows generated from the fill bank will unlikely create any significant traffic noise impact on the NSRs along Wan Po Road.

 


6.               Water Quality Impact Assessment

6.1            Introduction

6.1.1        This section presents an assessment on water quality impact in the establishment, operation and decommissioning of the proposed fill bank at Area 137, Tseung Kwan O.  The assessment has been carried out in accordance with the requirements stated under Section 3.5.4 of the EIA Study Brief (No. ESB-083/2001).

6.1.2        The overall aim of the assessment is to evaluate the extent of the predicted impacts to water quality during the establishment, operation and decommissioning phases with reference to the relevant environmental standards and guidelines, and to identify suitable measures to control and mitigate any potential adverse impacts.  The need for any environmental monitoring and audit program has also been assessed and recommendations made where necessary.

 

6.2            Relevant Legislation and Guidelines

Water Pollution Control Ordinance

6.2.1        The Water Pollution Control Ordinance (WPCO) (Cap. 358) enacted in 1980 is the principal legislation controlling water quality in Hong Kong.  Under the WPCO, Hong Kong waters are classified into 10 Water Control Zones (WCZ). Water Quality Objectives (WQO) are specified for each WCZ.  The WQOs set limits for different parameters to be achieved for maintaining the water quality within the WCZs.

6.2.2        As shown in Figure 6-1, the northern and southern sides of the site fall within the Junk Bay WCZ and Eastern Buffer WCZ, respectively. 

6.2.3        The Eastern Buffer WCZ was declared in 1993.  Major development and population areas within this WCZ include Shau Kei Wan, Chai Wan and Siu Sai Wan.  A mariculture zone is located at north Tung Lung Chau.  Details on the WQOs for the Eastern Buffer WCZ are shown in Appendix 6-1.

6.2.4        The Junk Bay WCZ was declared in August 1989.  Major areas within this WCZ include Tseung Kwan O, Tseng Lan Shue, Tiu Keng Leng, Tseung Kwan O Industrial Estate and Hang Hau.  Details on the WQOs for the Junk Bay WCZ are shown in Appendix 6-2.

 

EIA Ordinance

6.2.5        The EIA Ordinance came into effect on 1 April 1998.  The purpose of establishing the EIA Ordinance is to safeguard the environment through the EIA Process.  An Environmental Permit, which specifies the environmental conditions, has to be issued by the Authority before the construction, operation and/or decommissioning of a Designated Project is permitted.

 


Technical Memoranda

6.2.6        The Technical Memorandum on EIA Process issued under Section 16 of the EIA Ordinance sets out the criteria for evaluating water pollution under Annex 6 of the memorandum.  Annex 14 gives guidelines for assessment of water pollution.

6.2.7        In addition to setting WQOs, the WPCO controls effluent discharge into WCZs through licensing requirements.  The Technical Memorandum on Standards for Effluents Discharged into Drainage and Sewerage Systems, Inland and Coastal waters (TM) issued under Section 21 of the WPCO defines acceptable discharge limits of effluent to different types of receiving waters.  Discharge into the WCZ requires licensing and must comply with the terms and conditions specified in the licence, except for domestic sewage discharged into public foul sewers and unpolluted water discharged into stormwater drains and river courses.  Effluent discharged from the fill bank site should comply with the TM standards for effluent discharged into the inshore waters of Junk Bay and Eastern Buffer WCZ as specified in Table 10a in the TM.  

 

Practice Notes

6.2.8        The Practice Note for Professional Persons (ProPECC PN 1/94) issued by EPD in 1994 provides environmental guidelines for handling and disposal of construction site discharges.  Practices outlined in the PN should be properly followed during the construction of the fill bank to minimize water quality impact due to construction site drainage.  The nature of the activities at the fill bank would mean that the measures recommended in the practice note would also be relevant to the activities during the operation and decommissioning phases of the fill bank.

 

6.3            Existing Water Quality and Sensitive Receivers

Water Quality Monitoring Data

Eastern Buffer Water Control Zone

6.3.1        EPD routinely carry out water quality monitoring around the territory.  Within the Easter Buffer WCZ, EPD has set up three water quality monitoring stations EM1, EM2 and EM3.  Locations of these Water Quality Monitoring Stations are as shown in Figure 6-2.

6.3.2        Water quality monitoring data obtained in recent years revealed that EM1, being closest to the sewage outfalls in Chai Wan and Tseung Kwan O, was more turbid and showed the highest E.coli, faecal coliforms, total nitrogen, total phosphorus and 5-day Biochemical Oxygen Demand (BOD5) than EM2 and EM3.  EM3 constantly shows highest level of dissolved oxygen, and the lowest level of total nitrogen, total phosphorus, E.coli and faecal coliforms.  The water quality at EM2 was intermediate between EM1 and EM3. In 2000, a reduction in E.coli was found at EM1.  The annual mean E.coli decreased by more than 70%.  Various forms of nitrogen and phosphorus mutrients at EM1 also decreased by around 20 to 30% in 2000.  Table 6‑1 presents a summary on water quality data for the stations EM1, EM2 and EM3 measured in 2000 for some key parameters which are the most recently published data.

6.3.3        The mean dissolved oxygen (DO) at all three monitoring stations continued its downward tread in 1999, reaching its lowest level in the past years.  Data in 1998 and 1999 showed that the DO measured at bottom water depth sometimes fell below the WQO value of 4mg/L during summer, resulting in non-compliance.  A significant decrease in nitrogen and phosphorus nutrients was observed in the Eastern Buffer WCZ.  Total nitrogen decreased by about 60%; whereas total phosphorus decreased by about 30%.

6.3.4        Results of the seasonal Kendall Test for long-term trends in water quality parameters measured in Eastern Buffer Water Quality Control Zone (1990 – 1999) revealed a decrease in SS levels at EM1 from 1990 to 1999 for middle, bottom and average water depth.

 

Junk Bay Water Control Zone

6.3.5        Within the Junk Bay WCZ, EPD routinely carried out water quality monitoring at two monitoring stations JM3 and JM4.  Locations of these Water Quality Monitoring Stations are also shown in Figure 6-2.

6.3.6        Water quality within the Junk Bay WCZ is influenced by the Victoria Harbour and Eastern Buffer WCZ where outfalls from the Tseung Kwan O and Chai Wan Sewage Treatment Works are the major pollution sources.  E. coli and suspended solid levels are generally higher in the outer part (JM4) of Junk Bay than in the inner bay (JM3).  Table 6‑1 presents a summary on water quality data for the stations JM3 and JM4 measured in 2000 for some key parameters which are the most recently published data.  In 2000, water quality monitored at both stations fully complied with all key WQOs, including dissolved oxygen, unionised ammonia and total inorganic nitrogen.

Table 61          Water Quality Monitoring Data (averaged values) obtained in 2000 at EPD’s Monitoring Stations in the Eastern Buffer and Junk Bay Water Control Zone

Water Quality Parameter

EM1

EM2

EM3

JM3

JM4

Temperature (°C)

22.0

22.0

21.8

22.2

22.0

Salinity (psu)

31.9

32.0

32.3

31.6

31.8

Dissolve Oxygen (mg/L)

5.4

5.8

6.3

5.3

5.6

pH

8.0

8.0

8.0

7.9

8.0

Turbidity (NTU)

8.6

8.6

8.5

7.8

8.7

Dissolved Oxygen

(% Saturation)

74

79

86

73

76

5-day Biochemical Oxygen Demand (mg/L)

0.9

0.7

0.7

0.8

0.8

Suspended Solids (mg/L)

3.9

3.8

3.3

2.9

4.5

Total Inorganic Nitrogen (mg/L)

0.25

0.20

0.14

0.27

0.24

Unionised Ammonia (mg/L)

0.005

0.004

0.002

0.005

0.005

E. coli (cuf/100mL)

2300

470

68

690

940

 


Sensitive Receivers

6.3.7        Tung Lung Chau Fish Culture Zone (FCZ) lies at about 1.6 km to the south east of the site (see Figure 6-3).  The FCZ has an area of approximately 80,000m2.  About 47 licensees occupy a licenced raft area of 12,358m2 since 28 February 2002.  Half of the total area is used for fish culture and species commonly reared there include Mangrove Snapper (Lutjanus argentimaculatus), Spotted Grouper (Epinephilus areolatus), Green Grouper (E. malabaricus), and Gold-lined Seabream (Rhabdosargus sarba).  The closest WSD saltwater intake within the Eastern Buffer WCZ is located at Siu Sai Wan at 2.3km from the site.  Another WSD saltwater intake is situated at Sai Wan Ho.  The nearest WSD saltwater intake in Junk Bay is located at Area 86 within the Junk Bay Water Control Zone.  Locations of the WSD saltwater intakes are also illustrated in Figure 6-3.  Seawater intakes are also located Heng Fa Chuen and Pamela Youde Nerthersole Eastern Hospital, Chai Wan.  There would also be some new MTRCL’s intakes at TKO. 

6.3.8        In view the land-based nature of the activities for the fill bank at TKO Area 137, and the significant distance separations between the site and these water sensitive receivers, adverse water quality impact on these water sensitive receivers from the fill bank would be unlikely when proper and standard water pollution control measures are implemented during the establishment, operation and decommissioning phases of the fill bank. 

 

Water Quality Criteria on Suspended Solid

6.3.9        For both the Junk Bay WCZ and Eastern Buffer WCZ, the WQOs require that discharges shall not cause the natural ambient level of SS to be raised by 30%, nor lead to accumulation of solids. 

6.3.10     Water Supplies Department (WSD) has specified a set of criteria for water quality at their seawater intakes for flushing purposes.  The target limit for SS is 10 mg/l.  A tolerable limit is also specified for SS which is 20mg/l. 

 

6.4            Environmental Impact Identification and Evaluation

Establishment Phase

6.4.1        The works in the establishment phase of the fill bank will involve primarily realignment of the existing stormwater drainage channels to fit the fill bank design; setting up of the barging point in the northern end of the site, establishing the C&D Material Sorting Facility (C&DMSF), site offices, wheel washing facilities at the site exits, and erection of site hoarding at appropriate locations.  Figures illustrating the preliminary design of the key on-site facilities at the fill bank are presented in Section 3.  As shown in Figure 3-4 and Figure 3-5, the stockpiling area and the C&DMSF will be bound by the existing or realigned temporary drainage channel at the perimeter of the site.  

6.4.2        The carrying out of these preparation works for the fill bank operation is not expected to involve large-scale excavation activities.  The total quantity of excavated material generated from the preparation works is estimated to be 12,000m3.  It is anticipated that a major portion of the excavated material would be generated from the construction of the new drainage channel sections, or realignment of existing sections. The excavated material will be stored within the fill material storage area such that transportation of the excavated material offsite will not be required. 

6.4.3        Given the small quantity of excavated material generated, and that the material will be stored at a sufficient buffer distance from the waterfront, the likelihood of potential water quality impact is considered to be low.  Notwithstanding this, the Contractor will be required to implement sufficient water pollution control measures to reduce stormwater and non-point source pollution taking into consideration the water quality control and mitigation measures recommended in the Practice Note for Professional Persons ProPECC PN 1/94.

6.4.4        It is planned to use the existing berthing face in the northern side of TKO Area 137 for setting up the barging facility. No dredging or piling activities will therefore be required during the establishment of the barging point.  Potential water quality impact associated with the construction works is thus minimised.

 

Operational Phase

6.4.5        Operation of the fill bank will involve handling, transfer and stockpiling of fill material at the fill bank.  Potential water quality impact from these land-based activities could be resulted from erosion of stockpiled material, accidental dropping of material, and non-point source discharge of surface runoff containing suspended particulate (SS).  The key concern would be activities carried out near the eastern and southern sides of Area 137 facing Tathong Channel.

6.4.6        Public fill material will be imported to the site by trucks and barges.  The fill material delivered by trucks will be delivered to the stockpiling area direct, or directed to the pre-sorting area of the C&DMSF when the public fill consist of some mixed C&D materials and/or over-sized material.

6.4.7        Fill material transported to the site by barges will be effectively uploaded to trucks from the berthing barge for subsequent delivery to the C&DMSF and the fill bank.  Transfer would be by means of backhoe fixed on an appropriately designed flat-top pontoon; use of hopper barges with mobile crane; and/or use of derrick barges and public fill will be unloaded by the built-in crane.  No temporary stockpiling will be allowed near the berthing face. For all three methods appropriate design and operational procedures will be specified to avoid dropping of fill material into the sea as described in the next Section on mitigation measures.

6.4.8        A buffer distance of at least 100m will be maintained between the boundary of the public fill stockpiling area and the seafront.  Existing trapezoidal drainage channels constructed at the perimeter of TKO Area 137 as part of the reclamation works, together with realigned sections of stormwater drainage channels provided for the fill bank operation (See Figure 6-4) shall be used and maintained.  The unpaved areas outside the channel will be covered with gravel and formed with slope so the stormwater will be intercepted by the channels instead of discharging to the sea directly.  The designated haul road for trucks shall be located on the fill bank side of the temporary stormwater control system to minimise non-point source pollution by allowing the polluted stormwater to be diverted to the channels. 

6.4.9        The C&DMSF will occupy an area of about 2 hectares (approximately 250m x 80m).  Crushing and sorting operations will be carried out inside an enclosed structure of the C&DMSF.  Buffer storage areas will be provided for pre-sorted C&D Material and sorted public fill and C&D waste. These storage areas shall be designed with sufficient water pollution control measures to minimise any adverse water quality impact during operation.

6.4.10     To reserve the central portion of site for public fill storage, it is inevitable that the C&DMSF will need to be located nearer to the seafront than the stockpiling area.  Nevertheless, proper design of the C&DMSF and the provision of a minimum buffer distance of 20m would enable any adverse water quality impact to be prevented.

 

Decommissioning Phase

6.4.11     In the decommissioning phase, at least 90% of the stockpiled public fill material will be delivered offsite by barges.  Water quality impact could occur from tipping activities due to accidental losses of public fill.  This shall be prevented by provision of sufficient water pollution control measures as in other public filling barging facilities operated by CED.

6.4.12     C&DMSF would need to be put into operation during the decommissioning phase for improving the quality and reducing the size of the public fill when deemed necessary before the material is re-transported for reuse in reclamation.  Activities would include the sorting out of any biodegradable material such as timber before the public fill of required quality is re-transported to the reclamation sites for reuse.

6.4.13     Potential water quality impact arising from removal of stockpiled public fill and the operation of the sorting facility during the decommissioning phase would be similar in nature to that in the operational phase and shall be controlled by sufficient water pollution control measures incorporated into the design of these facilities.

 

Other Common Sources of Water Quality Impact

6.4.14     During all three phases, wastewater generated from the temporary onsite facilities should be controlled to prevent direct discharge to marine water.  Sources of the wastewater may include sewage effluent generated from kitchens (if provided) and toilets.  Wastewater generated from planning servicing facilities may be polluted with oil and other petroleum products and would have the potential to discharge to surface waters if spillages are not contained.   

        

6.5            Mitigation Measures

6.5.1        Proper water pollution control measures are recommended in this section for implementation by the Contractor during the establishment, operation and decommissioning phases to minimise potential impacts associated with the implementation of the fill bank.  These measures are recommended to be included in the Contract Specification for the Contractor to follow the environmental requirements such that well designed site drainage system and pre-treatment facilities are provided onsite.  All effluent discharge from the site during the construction, operation and decommissioning phases shall meet the relevant discharge limits specified in the Technical Memorandum on Standards for Effluents Discharged into Drainage and Sewerage Systems, Inland and Coastal Waters.

6.5.2        Implementation of these measures will minimise adverse impact to the marine water quality from the land-based activities to acceptable levels. 

 

Provision of Stormwater Interception Facilities and Buffer Zone

6.5.3        Existing trapezoidal channels were already constructed along most lengths at the perimeter of the TKO Area 137 site for intercepting polluted runoff generated from the reclamation works and associated activities (e.g. stockpiling of surcharge mounds).  Galvanized drainage screens were installed as part of the drainage system.  The existing drainage channels should be used for the fill bank or realigned to fit the fill bank operation.  The existing/ realigned drainage channels should be equipped with sand/ de-silting traps.  During the stockpiling of public fill, temporary intercepting drains should be used at the stockpiling area to divert polluted stormwater to the intercepting channels.

6.5.4        Before complete realignment of the existing channel to fit the fill bank design, earth bunds and sand bag barriers shall be used at required locations to effectively divert stormwater to the existing/ realigned drainage channels.  The temporary drainage facilities provided shall allow polluted stormwater to be diverted to existing/ realigned intercepting channels before stockpiling of public fill should begin.  The intercepting channels shall be equipped with adequately designed sand/ silt removal facilities to allow the stormwater to be treated before discharge at the designated outfalls. Effluent discharge from the site during the establishment, operation and decommissioning phases shall meet the relevant discharge limits specified in the Technical Memorandum.  Typical design of sand trap (CED Drawing No. GC 1034) is as shown in Appendix 6-3 for reference.

6.5.5        To minimise potential water quality impact associated with runoff of polluted surface water, based on the current preliminary fill bank design, a buffer distance of about 100m would be provided between the edge of the public fill stockpiling area and the seafront.  Open channels and/or other effective drainage system shall be constructed at the perimeter of the site for intercepting and directing runoff to sand/ silt removal facilities prior to discharge.  The existing trapezoidal drainage channels lying along the perimeter of the site constructed under the Contract (CV/97/01) “Tseung Kwan O Port Development at Area 137 Stage 2 – Construction of Seawalls and Reclamation” shall be used or realigned to fit the fill bank design.

 

Excavated Material generated during Establishment

6.5.6        Excavated material generated from the establishment of the onsite facilities that are not required to be backfilled should be transported as soon as possible to the public fill storage area to avoid potential water quality impact especially during the rainy season. 

 

Proper Design and Operation of C&DMSF

6.5.7        A buffer distance of at least 20m should also be maintained between the boundary of the C&DMSF and the seafront.  Operation of the C&DMSF shall also be served by an effective stormwater intercepting system as shown in Figure 6-5.

6.5.8        Pre-sorted C&D material, and sorted public fill and C&D waste should be handled and stored properly within concrete partition wall or other equivalent structures that are at least enclosed on three sides.  Storage time of sorted materials at the buffer storage area should be minimised by transferring sorted public fill and C&D waste to the stockpiling area and SENT landfill respectively as soon as possible.  The materials stored at the buffer area shall be minimised before rainstorm and shall be properly covered when there is any chance for the material to be washed away. The sorting facility shall be provided with an associated drainage system especially in the vicinity of the storage areas for collection of runoff and removal of suspended solid before the stormwater is discharged to the sea at the designated outlets.  

 

Sorted Public Fill

6.5.9        Sorted public fill transported to the stockpiling area for storage should not contain unsuitable material such as peat, vegetation, timber, organic, soluble or perishable material, dangerous or toxic material, floatable materials (such as bottle, plastic bags, foam box), and materials susceptible to combustion. 

 

Surface Protection Measures for Slope

6.5.10     Public fill at the stockpiling area should be handled with care in proper manner that will not result in segregation, deterioration, erosion or instability of the material.  The designated positions for the unloading of fill material in the daily operation of the fill bank should be followed.  Temporary slope surfaces shall be covered as far as practicable and as soon as possible with tarpaulin sheets or other impermeable sheeting or protected by other methods approved by CED when rainstorms are likely, especially when a rainstorm is imminent or forecast.  Final slope surfaces shall be treated by compaction, followed by hydroseeding, vegetation planting or sealing with shotconcrete, latex, vinyl, bitumen, or other suitable surface stabiliser approved by CED to prevent the washing away of stockpiled material.

 


Maintenance of Sand/ Silt Removal Facilities

6.5.11     Adequately designed and constructed catchpits, sand and silt removal facilities and intercepting channels should be maintained, and the deposited silt and grit should be removed weekly and on a need basis especially during the onset of and after each rainstorm to ensure that these facilities are functioning properly at all times during the establishment, operation and decommissioning phases.

 

Wheel Washing Facilities

6.5.12     All vehicles and plant bodies should be cleaned before they leave the fill bank site to ensure that no earth, mud or debris is deposited by them on roads.  A wheel washing bay should be provided at the site exits and wash-water should have sand and silt settled out or removed before the water is being reused or discharged into storm drains.  The section of construction road between the wheel washing bay and the public road should be paved with concrete, bituminous materials or hardcores to reduce vehicle tracking of soil and to prevent site run-off from entering public road drains.

 

Wastewater from Site Facilities

6.5.13     Sewage from toilets and similar facilities should be discharged into a foul sewer, or chemical toilets should be provided.  Should the use of chemical toilets be necessary, these should be provided by a licensed contractor, who will be responsible for appropriate disposal and maintenance of these facilities.  Wastewater collected from canteen kitchens, including that from basins, sinks and floor drains, should be discharged into foul sewers via grease traps.  Drainage system provided at car parking areas shall be provided with oil interceptors in addition to sand/ silt removal facilities.

 

Use of Barges

6.5.14     All barges used in the transportation of fill material during the operation/ decommissioning stages should be of appropriate size such that adequate clearance is maintained between the vessels and the sea bed at all states of the tide to ensure that undue turbidity is not generated by turbulence from vessel movement or propeller wash. All vessels used for transportation of fill material should have tight fitting seals to their bottom openings to prevent leakage of material during transport.  For the transfer of public fill from the barges to TKO Area 137, relevant design and environmental control measures taking into account the equipment and transfer methods to be used shall be specified in the Technical Specification to avoid dropping of fill material into the sea during the transfers, including:

*    When backhoe fixed on an appropriately design flat-top pontoon is in use, the reach of the backhoe shall be controlled to within the flat-top pontoon of sufficient length to avoid accidental dropping of public fill into the sea;

*    When hopper barges with mobile crane is in use, guardrails or equivalent shall be fixed alongside the berthing faces to guide the movement of the crane to avoid accidental dropping of fill material into the sea;

*    When derrick barges with built-in crane are in use, the reach of the jig shall be controlled to within the length of the barge to avoid accidental dropping of public fill into the sea.

6.5.15     These recommended measures for transfer of public fill from barges to the fill bank are illustrated in Figure 6-6 through Figure 6-8.


6.5.16     Should other equivalent transfer methods and environmental protection measures be proposed by the future contractor, these shall be subject to approval of CED and DEP.  Besides, barges should not be filled to a level which may cause the overflow of material during loading or transportation. Barge effluents (e.g. muddy water) should be properly collected and treated prior to disposal. The work activities should not cause any visible foam, oil, grease, scum, litter or other objectionable matters to be present on the water in the vicinity of the barging point. 

6.5.17     Development Division of CED has advised that silt curtains and refuse containment booms are deployed in the ongoing reclamation activities in TKO Area 137.  These water pollution control measures will offer further protection in minimising potential water quality impact from dropping of materials during the transfers at the barging point. 

6.5.18     After the completion of the reclamation works in December 2003, CED will require the fill bank contractor to provide silt curtains at the outward side of the basin near the barging point throughout the operational phase when there is public fill intake by barges to the fill bank.  The total length of the silt curtains would be about 160 to 180m, and a gap of about 80m will be left open for access of barges.  The silt curtains shall be properly designed such that they can also function to confine floating refuse.  Throughout the operation and decommissioning phases of the fill bank, a waste collection vessel should be deployed to remove floating refuse on the sea near the fill bank for proper disposal.

 

Construction Site Drainage Guidelines

6.5.19     Other best management practices to reduce stormwater and non-point source pollution recommended under ProPECC PN 1/94 on Construction Site Drainage should be properly followed.              

 

6.6            Residual Impact

6.6.1        With the implementation of these mitigation measures, it is not anticipated that there will be any unacceptable residual marine water quality impact associated with the establishment, operation and decommissioning of the fill bank.  Water sensitive receivers including Tung Lung Chau FCZ and WSD saltwater intake shall therefore not be affected.   

 

6.7            Cumulative Environmental Impacts

6.7.1        The Contract (CV/97/01) “Tseung Kwan O Port Development at Area 137 Stage 2 – Construction of Seawalls and Reclamation” is planned to be completed by end of 2003.  Before the completion of the Contract CV/97/01, stockpiling of fill material will only take place in the southern part of the site.

6.7.2        Water pollution control measures as described above will be implemented by the Contractor during the establishment, operation and decommissioning phases of the fill bank.  It is not anticipated the land-based activities at the fill bank will pose any significant impact on marine water quality.

6.7.3        Silt curtains and refuse containment booms are being deployed to effectively reduce the spreading of material and to confine floating refuse respectively in the reclamation works.  Together with the land-based water pollution control measures, these control measures will further minimise the cumulative water quality impact.  The environmental performance of the water pollution control measures will be checked through the Environmental Monitoring and Audit Programme.  

 


6.8            Environmental Monitoring and Audit

6.8.1        The Environmental Monitoring and Audit (EM&A) Programme recommended for the establishment, operational and decommissioning phases of the fill bank is presented in the EM&A Manual.  Currently, CED is implementing a water quality monitoring programme as part of the Contract (CV/97/01) “Tseung Kwan O Port Development at Area 137 Stage 2 - Construction of Seawalls and Reclamation”.  For the duration when the ongoing reclamation works is taking place in parallel with activities at the fill bank, it is considered that the water quality monitoring data obtained for SS, turbidity and D.O. under CV/97/01 can be adopted in establishing the baseline water quality, and for impact monitoring during the establishment and operational phases of the fill bank.  Water monitoring results shall be obtained through CED and reviewed by the Environmental Team (ET) such that the implementation and environmental performance of the mitigation measures implemented can be checked.  Upon completion of the ongoing EM&A programme under the Stage 2 reclamation at TKO Area 137, the Environmental Team shall implement its own water quality monitoring for the fill bank project as described in the EM&A Manual fill bank project.   

 

6.9            Conclusions

6.9.1        Activities associated with the establishment, operation and decommissioning of the fill bank will be land-based.  Sources of water pollution and the potential for adverse impact to water quality have been identified and evaluated.  Water pollution control measures have been identified to mitigate the potential water quality impact.  With the implementation of these measures by the Contractor, potential impact on the nearby water sensitive receivers due to the fill bank project will be minimised to acceptable levels. Implementation of the recommended measures at TKO Area 137 in the establishment, operation and decommissioning of the fill bank will be checked by the EM&A Programme.

  


7.               lANDFILL gaS hazard ASSESSMENT

7.1            Introduction

7.1.1        Section 3.5.5 of the EIA Study Brief No. ESB-083/2001 requires an assessment of landfill gas (LFG) hazards arising from the strategic SENT Landfill on the proposed Fill Bank at Tseung Kwan O Area 137. As shown in Figure 7-1, a site area of about 21 ha at the north-eastern side of TKO Area 137 is lying within the 250m consultation zone (CZ) of the South East New Territories (SENT) landfill. The carrying out of a qualitative landfill gas hazard assessment is therefore required under the EIAO-TM. This assessment consists of two main components – a qualitative risk assessment and LFG precautionary/ protection design.

 

7.2            Environmental Legislation, Policies, Plans, Standards and Criteria

7.2.1        The LFG impact assessment has been carried out in accordance with the relevant criteria and guidelines laid down in Annex 7 Section 1.1 (f) and Annex 19 Section 3.3 of the EIA TM, respectively. A qualitative assessment approach has been conducted following the approach given in the Landfill Gas Hazard Assessment Guidance Note.  The guidelines set out in the Practice Note for Professional Persons (ProPECC PN3/96) also served as a useful reference.

 

7.3            Nature of Landfill Gas and its Concern

7.3.1        LFG is produced at landfills continuously from anaerobic degradation of putrescible organic matter in the buried waste.  LFG for municipal landfills commonly consists of 50-60% methane, 30-40% of carbon dioxide and trace amount of volatile organic compounds.

7.3.2        The LFG mixture has a density similar to that of air, although it varies according to the exact composition.  Upward movement of LFG is usually a result of excess pressure over the ambient rather than buoyancy.  Also, bulk gas movements may be caused by changes in atmospheric pressure or by the pumping effect of a rising water table, whereas sub-surface lateral diffusion through semi-porous strata, cracks and faults may be resulted predominately due to concentration gradients.  LFG migration would be a concern due to the following reasons: -

*    Methane is flammable and will burn when mixed with air at concentrations in the range of approximately 5-15% by volume.  If allowed to accumulate in voids of building structures, ignition of the gas can lead to an explosion capable of causing significant structural damage.

*    Both methane and carbon dioxide are asphyxiant. They are also odourless and colourless.  The long-term (8 hours) occupational exposure limit (OEL), specified in the Health and Safety Executive Guidance Note EH 40 for carbon dioxide is 0.5% by volume and the short-term (10 minutes) OEL is 1.5% by volume.

7.3.3        In view of these adverse effects associated with LFG, effort has to be made by EPD’s contractor in the operation of the SENT landfill to stop LFG migration by having the LFG actively extracted and flared to avoid migration and accumulation of the gas in undesirable locations of sensitive developments in the vicinity of landfills. Accumulation of LFG in confined spaces such as basement or underground utilities services has the potential to cause asphyxiation, fire or explosion.

 


7.4            SENT Landfill

History of the Landfill

7.4.1        The SENT Landfill is situated to the northeast of the proposed Fill Bank at Tseung Kwan O Area 137.  The SENT Landfill is located in Shek Miu Wan, Tseung Kwan O.  The total area of the landfill is about 100 ha. The landfill commenced operation in September 1994, and the operation life is about 13 years. SENT Landfill is one of the three strategic landfills currently in use in Hong Kong, and they are the key disposal sites for Hong Kong. These landfills have taken the benefit of advancement in landfill technology to respond to the more demanding environmental requirements and to provide the much needed capacity for waste disposal. The current waste intake is about 7,800 tonnes / 1,900 truckloads per day, receiving mainly municipal solid waste, with some construction and demolition waste, and special wastes. Based on the latest landform design, the landfill has a capacity of 43 million tonnes.

 

Restoration Works

7.4.2        Progressive restoration has been implemented for SENT Landfill. Any completed part of the landfill is covered with soil, and suitably landscaped with vegetation and amenity areas. The southern part of the landfill has been completed and restored. The restored areas will be suitable for passive recreational use. The landfill has an aftercare period of 30 years. The contractor will be responsible for the maintenance and remedial works of the landfill site 30 years after completion of operation.

 

Landfill Gas Management System

7.4.3        The landfill gas management system at SENT Landfill consists of active landfill extraction as well as flaring.

7.4.4        Gas extraction wells are present and located at different part of the landfill to actively extract landfill gas to the flaring plant onsite, and hence minimise the potential of significant landfill gas migration and accumulation. Landfill gas migration is also monitored both on-site and off-site as part of the integrated active and reactive system. Figure 7-2 presents a plan summarising the landfill gas management system at the landfill.

7.4.5        The landfill gas flaring system consists of two flaring stations, located on the south-western part of the SENT landfill. A collection pipework extract landfill gas from different parts of the landfill towards the flaring plant.

7.4.6        Gas emission monitoring system has been installed to detect off-site landfill gas migration to allow remedial actions be taken when unacceptable landfill gas levels be identified. The environmental standard in the restoration contract related to landfill gas in underground boreholes outside landfill boundary is 1% by volume.

 

Leachate Control Measures

7.4.7        The landfill has been designed and constructed, as a secure containment facility incorporating multi-layer composite liner system covering the entire surface area of the site. As the site is lined, leachate within the landfill can be collected and treated to ensure that there will be no untreated discharges from the landfill to the environment. The multi-layer composite liner system is made up of a layer of geocomposite groundwater drainage layer, 1.5 mm of textured High Density Polyethylene (HDPE) Secondary Liner, 6 mm of composite bentonite matting layer, 2 mm of textured HDPE primary liner, a layer of non-woven geotextile cushion, 500 mm granular leachate drainage layer, and woven geotextile filter.

7.4.8        Leachate is collected and discharged to the sewage treatment works located to the north of TKO Area 137 operated by SENT landfill.

 

7.5            Landfill Gas and Groundwater/ Leachate Monitoring

Landfill Gas Monitoring

7.5.1        As a part of the landfill gas management system, LFG monitoring wells of the current SENT Landfill have been installed at the perimeter of the landfill.  The LFG monitoring wells located at near the south-western boundary of the site can be found in Figure 7-3.  The landfill gas monitoring data between November 2000 and October 2001 for relevant boreholes were obtained from EPD and reviewed. These include monitoring locations at or near south-western boundary of the SENT Landfill, composed of Gas Probes (GP9-GP12, GP15 and GP16) and Piezometers (P2-P10). 

7.5.2        The gas monitoring results obtained at all wells indicate that LFG migration from the landfill site is very low.  Concentrations of methane, carbon dioxide, oxygen, water level and reduce water level monitored from November 2000 to October 2001 are presented in Appendix 7-1. The methane concentrations measured at all relevant monitoring wells from November 2000 to October 2001 were found to be below detection limit, except for one occasion at GP-9 on 22 October 2001, where a methane concentration of 0.6% was detected.  Substantial elevation in concentration of CO2 and decrease in O2 concentration, which could be resulted from oxidation of methane, were not observed. 

 

Groundwater/ Leachate Monitoring

7.5.3        Quarterly leachate monitoring records of groundwater quality for nine monitoring wells (MW1-5 through MW1-13) located at the south-western boundary of the SENT Landfill have been obtained from EPD and reviewed. Locations of these monitoring wells are shown in Figure 7-3.

7.5.4        The parameters monitored and tested include Chemical Oxygen Demand (COD), total phosphorus, nitrate, nitrite, ammonia, zinc, lead, nickel, cadmium, sulfate, pH, temperature and groundwater level. Monitoring records can be found in Appendix 7-2.

7.5.5        The monitoring results do not indicate any significant contamination of the groundwater. A review of the monitoring results obtained at MW1-5 to MW1-13 does not indicate any significant migration of leachate from the SENT landfill towards the proposed fill bank. The pollutant concentrations measured from all monitoring locations were found at generally low levels. Measured nitrogen and phosphorus levels were low. COD levels from December 2000 to June 2000 were also found at low levels, though relatively higher COD levels were measured in September 2001.

 

7.6            Qualitative Risk Assessment

Methodology

7.6.1        The assessment on potential LFG impact on the proposed fill bank was carried out following the “Source - Pathway - Target” model presented in the Landfill Gas Hazard Assessment Guidance Note.  The source (landfill) may be classified as “Minor”, “Medium” or “Major” based on the definition given in Section 3.9 of the Landfill Gas Hazard Assessment Guidance Note.

7.6.2        The pathway may be classified as “Very short/direct”, “Moderately short/Direct” or “Long/indirect” depending on the path length, permeability of the soils, spacing, tightness and direction of the fissures/joints, depth and thickness of the medium through which the gas can migrate, topography, and presence of any conduits, etc.

7.6.3        The targets may be classified as “Highly Sensitive”, “Medium sensitivity” or “Low Sensitivity”. Depending on the combination of various categories of the source, pathway and target, the associated risk on a target can be one of the categories as shown in Table 7-1. 

7.6.4        Table 7‑2 summarises the implication regarding each category of risk.

 

Potential Landfill Gas Migration Hazards

Source of Potential Impact  associated with the SENT landfill operation

7.6.5        The SENT Landfill commenced operation in September 1994.  It is one of the three strategic landfills that is currently in use in Hong Kong.  The strategic SENT landfill designed and operated for disposal of municipal waste is installed with an active landfill gas extraction system and 2 flaring stations. 

7.6.6        The wells where the landfill gas monitoring results were obtained are located within the southern boundary of the SENT landfill.  The monitoring data obtained between November 2000 and October 2001 revealed that the methane concentrations were found to be below detection limit except for one occasion only at GP-9, where a methane concentration of 0.6% was measured on 22 October 2001.  Besides, the CO2 concentrations measured at the wells under most situations were also low, though CO2 concentrations above 5% were measured at some occasions. 

7.6.7        Section 3.9 of the Guidance Noted stated that the source (landfill) would be classified as Medium for landfill site at which some form of gas control has been installed (e.g. lined site or one where vents or barriers have been retrospectively installed) but where there are only limited monitoring data to demonstrate its efficacy to prevent migration of gas, or Landfill site where comprehensive monitoring has demonstrated that there is no migration of gas beyond the landfill gas boundary but where the control of gas relies solely on active gas extraction system or any other single control system where is vulnerable to failure.  Taking into account the fact that the fill bank will only operate for a temporary period (from late 2002 to 2004) and will be fully decommissioned by 2007, this will further minimise the chance of encountering a failure of the gas controls. 

7.6.8        In accordance with Section 3.9, 3.10 and 3.11 of the Guidance Note, the SENT landfill would be classified as a “Medium” source in the study.

7.6.9        The SENT Landfill (S1) has been classified as a “Medium” source in this study.


Table 71          Classification of Risk Category

Source

Pathway

Target Sensitivity

Risk Category

Major

Very short/direct

High

Very High

Medium

High

Low

Medium

Moderately short/direct

High

High

Medium

Medium

Low

Low

Long/indirect

High

High

Medium

Medium

Low

Low

Medium

Very short/direct

High

High

Medium

Medium

Low

Low

Moderately short/direct

High

High

Medium

Medium

Low

Low

Long/indirect

High

Medium

Medium

Low

Low

Very Low

Minor

Very short/direct

High

High

Medium

Medium

Low

Low

Moderately short/direct

High

Medium

Medium

Low

Low

Very Low

Long/indirect

High

Medium

Medium

Low

Low

Very Low

 

Table 72          Summary of General Categorisations of Risk

Level of Risk

Implication

Very high (Undesirable)

The type of development being proposed is very undesirable and a less sensitive form of development should be considered.  At the very least, extensive engineering measures, alarm systems and emergency action plans are likely to be required.

High

Significant engineering measures will be required to protect the planned development.

Medium

Engineering measures will be required to protect the planned development.

Low

Some precautionary measures will be required to ensure that the planned development is safe.

Very low (Insignificant)

The risk is so low that no precautionary measures are required.

 

Pathways – between the SENT landfill and TKO Area 137

7.6.10     The north-eastern part of the proposed fill bank within the consultation zone is attached to the boundary of the SENT landfill. 

7.6.11     The SENT landfill is generally at a higher elevation when compared with the Subject Site at TKO Area 137 and is situated adjacent to the Subject Site. No utilities are expected to be directly linking TKO Area 137 and the landfill site. The soil/rock types are ranging from completely decomposed volcanic at the ground surface level to slightly decomposed volcanic down to about 3m depth.

7.6.12     Based on the close proximity between the proposed fill bank and the landfill, the pathway could be classified as “very short/ direct”.

 

Sensitivity of Targets – Fill Bank Establishment, Construction and Operation

7.6.13     Only part of the fill bank site (an area of about 21 ha) on the northeastern side is situated within the 250m consultation zone.  This area will be occupied by the stockpiling area of the fill bank, the site haul road, and buffer area (with a minimum width of 6m) that will be provided along the eastern boundary to separate the site from the adjacent Clearwater Bay Country Park.  Within the Consultation Zone, surface channels will also be provided for collection of surface run-off. An existing trapezoidal channel is lying along the eastern boundary of the site (see Figure 3-3).  Only minor work activities will be involved in the construction of new surface channel sections or realignment of existing channel sections. No underground drainage and sewerage systems including underground pipelines and chambers will be constructed within the Consultation Zone.

7.6.14     The operation and decommissioning of the fill bank mainly involves stockpiling of public fill on the reclaimed land at the site. Access to the fill bank by the general public is restricted during the establishment, operation and decommissioning phase.   

7.6.15     There exists only a few numbers of buildings within the subject site such as site offices. In order to minimise the potential risk of the landfill gas, the site offices will be located outside the consultation zone.

7.6.16     Nevertheless, an office with an inspection platform will inevitably have to be located at the site entrance, which is at the end of Wan Po Road. A container office will be used as the entrance and exit office. As a landfill gas migration preventive measures, the container will be supported by a raised hollow platform, or equivalent. This will allow passive ventilation and avoid accumulation of landfill gas, if any, beneath the container office.

7.6.17     The potential risk level has been assessed qualitatively by a “source-pathway-target” analysis as shown in Table 7-3.


Table 73          Source-Pathway-Target Analysis

Source

Pathway

Target Sensitivity

Risk Category

S1.  SENT Landfill

The SENT Landfill commenced operation in September 1994, and is one of the three strategic landfills that is currently in use in Hong Kong.    A LFG extraction and flaring plant has been built as part of landfill gas control system.  The landfill gas management system involves an active landfill extraction and is proven to be effective based on the comprehensive and long-term LFG monitoring carried out by EPD’s contractor and concurred by the LFG monitoring results obtained on-site.  The environmental standard (the maximum methane concentration) in the contract related to landfill gas in underground boreholes outside landfill boundary is 1% by volume. The landfill has been progressively restored. Any completed part of the landfill is covered with soil, and suitably landscaped with vegetation and amenity areas. The landfill will be under the management of EPD’s restoration contractor during the 30-year aftercare period.  The restoration contractor is responsible for the maintenance and remedial works of the landfill site during the aftercare period.

 (Medium Source)

P1. Intervening Soil

The north-eastern part of the proposed fill bank within the consultation zone is attached to the boundary of the SENT landfill.

(Very Short / Direct Pathway)

T1.     Entrance and Exit Office

An entrance and exit office with an inspection platform will be located at the site entrance, which is at the end of Wan Po Road. A container office will be used as the entrance and exit office. The container will be supported by a raised hollow platform. This will allow passive ventilation and avoid accumulation of landfill gas, if any, beneath the container office.

 

 (Low Sensitivity)

Low

 

7.7            Recommended Protection Measures

7.7.1        SENT landfill was identified to be a medium source.  Given the low sensitivity of the target, the risk on population at the entrance and exit office within the consultation zone is assessed to be “low”.  Personnel entering the office shall be fully informed of the risk associated with potential landfill gas exposure.

7.7.2        Concentration of methane, carbon dioxide and oxygen within the manholes shall also be checked and confirmed to be within a safe level before any workers shall be allowed to enter the enclosed space within the landfill site consultation zone.

7.7.3        An existing trapezoidal drainage channel is lying along the eastern boundary of the site.  The construction of new surface drainage channel or realignment of the existing one will not involve excavation activities to any significant depth.  Nevertheless, should there be any sign of leachate-contaminated groundwater being encountered, the SENT landfill operator should be informed so that this can be collected and transported back to the sewage treatment works of the SENT landfill for treatment by the SENT landfill operator, and the leachate control system/ measures at source can be reviewed.  During the establishment, operation and decommissioning phases of the fill bank, the workers should be instructed to adopt good hygiene practices to prevent direct exposure to any leachate or leachate-contaminated groundwater i.e. wash thoroughly after work, eat only in clean area after washing hands, and wear protective gear including gloves and appropriate clothing in excavation activities.

 


7.8            Precautionary and Protection Measures

7.8.1        During the establishment, operation and decommissioning phases of the Fill Bank, hazards may arise as a result of the flammability of landfill gas or its potentially asphyxiating properties. It is advisable to include appropriate specified clauses for incorporation in the contract documents for the project.  In general, the contractor should be aware of, and should inform supervisor and workers of the following:

*    Methane and carbon dioxide are always likely to be present in the soil voids;

*    Physical and chemical nature of landfill gas;

*    Methodologies for landfill gas detection;

*    Fire and explosion hazards associated with landfill gas;

*    Toxicity effects and health hazards associated with landfill gas;

*    Potential health effects from direct contact with leachate/ groundwater contaminated by leachate; and

*    Provide the contingency measures for leachate/ groundwater contamination.

7.8.2        Precautions should be clearly laid down and rigidly adhered for activities such as excavation, trenching and creation of confined or semi-confined spaces, if any, carried out within or near the consultation zone.

7.8.3        In addition to normal site safety procedures, gas detection equipment and appropriate breathing apparatus should be available and used when entering confined spaces or trenches deeper than 2 metres. A properly trained Safety Officer/ Supervisor should be present on site throughout the construction stage.  The Safety Officer/ Supervisor should be provided with an intrinsically safe portable instrument(s), appropriately calibrated and capable of measuring the gases in the ranges indicated as given in Table 7‑4.

Table 74          Specifications of LFG Monitoring Equipment Requirement

Gas

Range of Detection

Methane

0-100% LEL and 0-100% v/v

Carbon dioxide

0-100%

Oxygen

0-21%

 

7.8.4        Safety measures including the following should be addressed in the contract document:

1.           Proper warning of the potential hazards in the vicinity of excavations;

2.           Suitable training for workers who work in, or have responsibility for “at risk” areas;

3.           Preparation of an excavation procedure or code of practice;

4.           Prohibition of smoke and naked flames within any excavation or ground-level confined space;

5.           Proper control of welding, flame-cutting or other hot works from any trench, confined spaces or excavation area;

6.           Proper location for locations such as mobile offices, equipment stores, mess rooms;

7.           Provision of adequate fire extinguishing equipment, fire-resistant clothing and breathing apparatus;

8.           Preparation of a “method-of-working” statement covering all normal and emergency procedures for the establishment, operation and decommissioning phases of the fill bank;

7.8.5        In addition, appropriate LFG monitoring programmes should be formulated by the Safety Officer/ Supervisor or by any appropriately qualified person, where necessary.  Periodic/routine monitoring should be conducted during ground-works, in all excavations, and works in confined spaces, if any.  An action plan is suggested in Table 7‑5 and for inclusion in the works contract.

Table 75          Action Plan - LFG Monitoring During the Construction Stage

Parameter

Measurement

Action

Methane (CH4)

>10% LEL

Post “No Smoking” signs

Prohibit hot works

Ventilate to restore CH4 to below 10% LEL

>20% LEL

Stop works

Evacuate personnel /prohibit entry

Carbon Dioxide (CO2)

>0.5%

Ventilate to restore CO2 to less than 0.5%

>1.5%

Stop works

Evacuate personnel/ prohibit entry

Increase ventilation to restore to less than 0.5%

Oxygen (O2)

<19%

Ventilation trench/ void to restore O2 level to more than 19%

<18%

Stop works

Evacuate personnel/ prohibit entry

Increase ventilation to restore O2 to more than 19%

 


7.9            Conclusion

7.9.1        The proximity of the proposed fill bank to the SENT Landfill has given rise to the concern of the risk associated with migration of landfill gas from the SENT landfill.  A site area of about 21 ha at the north-eastern side of the site is situated within the consultation zone of the landfill.

7.9.2        A review of previous studies relating to the landfill and the recent gas monitoring data has indicated no significant off-site migration of LFG.  A LFG flaring plant involving two stations are in operation within landfill, and the landfill is equipped with an active gas extraction system. 

7.9.3        Leachate mitigation hazard is not identified to be a key concern.  Nevertheless, since the construction works will involve realignment of the existing surface drainage channels, the study has recommended that should there be any sign of leachate-contamination groundwater being encountered, the SENT landfill operator should be informed so that this can be collected and transported back to the sewage treatment works of SENT landfill for treatment.  During the establishment, operation and decommissioning phases of the fill bank, the workers should also be instructed to adopt the recommended good hygiene practices to prevent direct exposure to any leachate or leachate-contaminated groundwater.

7.9.4        A qualitative landfill gas risk assessment has been conducted.  Based on the nature of the proposed Fill Bank, surface channels will be used for collecting surface drainage run-off. As such, no underground drainage and sewerage systems including underground pipelines and chambers will be constructed within the SENT landfill Consultation Zone.  Site offices for the contractor and the resident supervising staff will also be located outside the SENT landfill consultation zone.  Nevertheless, an entrance and exit office with an inspection platform will be located at the site entrance, which is at the end of Wan Po Road. A container office will be used as the entrance and exit office. The container will be supported by a raised hollow platform. This will allow passive ventilation and avoid accumulation of landfill gas, if any, beneath the container office.

7.9.5        Members of the general public will have restricted access to the site.  The source-pathway-target model revealed that the LFG migration hazard and impact on the proposed establishment, operation and decommissioning of the fill bank is identified to be Low.  LFG protection and precautionary measures are recommended for incorporation into the future contract document for the establishment, operation and decommissioning of the fill bank.

 


8.               Landscape and Visual Impact Assessment

8.1            Introduction

8.1.1        The aim of this section of the report is to outline the landscape baseline conditions, planning and development control framework, and the visually sensitive receivers (VSRs). It identifies the impacts that would occur during the operation of the Fill Bank at Tseung Kwan O, Area 137; and its decommissioning phase, recommends mitigation measures and identifies residual effects apparent after mitigation. This section also outlines any cumulative impacts that could be attributed to the Project.

 

8.2            Project Description - Fill Bank at Tseung Kwan O - Area 137

8.2.1        The Description of the Project is outlined in Section 3 of the EIA.  For the purpose of the LVIA the following information is relevant.

8.2.2        The purpose of the Project is to establish and operate a fill bank at Tseung Kwan O Area 137 for temporary stockpiling of public fill to supplement the projected shortfall in the overall territory-wide public filling capacity.  Figure 8-1 shows the location of the site.  When surplus filling capacity is available in the territory, the stockpile in the Tseung Kwan O Area 137 will be removed and delivered, mainly by barges, to reclamation sites for reuse.

8.2.3        The project site is located in Tseung Kwan O Area 137 covering an area of approximately 104 hectares.  To east of the project site is Clear Water Bay Country Park and to its north are the SENT Landfill and the Tseung Kwan O Industrial Estate. 

8.2.4        The Project will involve the temporary storage of 6 million cubic metres of public fill delivered by trucks and barges.  In order to stockpile 6 million cubic metres of public fill, the material will have to be piled to a maximum height of approximately +30.2 mPD to +35.2mPD.  In the design of the fill bank, potential visual impact has been considered such that the distance between the TKO Industrial Estate and the portion of the fill bank with maximum height is maximised. 

8.2.5        C&D materials are a mixture of inert materials (e.g. Rocks and broken concrete) and wastes arising from construction activities. A construction and Demolition Material Sorting Facility (C&DMSF) will be established within the fill bank for sorting of mixed construction and demolition (C&D) materials and reducing over-sized materials contained in C&D materials. 

8.2.6        The facility will be for temporary stockpiling and the latest plan is to have the fill bank commencing operation in mid October 2002.  Subject to the public fill intake rate, it is anticipated that storage capacity at the fill bank would be used up in 2004.  Decommissioning of the site is planned to commence in early 2004 for delivery of the stockpiled public fill to reclamation sites that have already started in 2004. A minimum land of 55ha in the northern part of the site would be cleared by September 2005 to allow infrastructure works to commence to prepare for the future industrial uses planned at TKO Area 137.  The fill bank will be fully decommissioned by December 2007.

 


8.3            Standards and Legislation

8.3.1        The methodology for undertaking the landscape and visual impact assessment is in accordance with Annex 18 of the Technical Memorandum to the Environmental Impact Assessment Ordinance (EIAO). The assessment has been completed in accordance with Clause 3.13 of the Study Brief. The main factors influencing the assessment are given below.

8.3.2        The landscape and visual impacts are considered as follows:

·          landscape impact assessment shall assess the source and magnitude of developmental effects on the existing landscape elements, character and quality in the context of the site and its environs; and,

·          visual impact assessment shall assess the source and magnitude of effects caused by the proposed development on the existing views, visual amenity, character and quality of the visually sensitive receivers within the context of the site and its environs.

8.3.3        The significance thresholds for the landscape and visual impacts are assessed for the construction phase and operational phase both with and without mitigation measures.

8.3.4        In order to illustrate these landscape and visual impacts and to demonstrate the effectiveness of the proposed landscape and visual mitigation measures, photomontages at selected representative viewpoints have been prepared to illustrate:

·          existing conditions;

·          unmitigated impacts;

·          partially mitigated impacts after implementation of the proposed mitigation measures on day 1 of the operational phase; and,

·          residual impact during the operational phase.

8.3.5        These residual impacts are then evaluated in accordance with Annex 10 of the Technical Memorandum to the EIAO.

 

8.4            Landscape and Visual Impact Assessment Methodology

8.4.1        The assessment of the potential impacts of a proposed scheme comprises of:

·          baseline study

·          review of planning and development control framework

·          impact assessment (without mitigation measures)

·          mitigation measures

·          residual impacts (with mitigation measures).

 

Baseline Study - Landscape

8.4.2        For the Landscape Impact Assessment (LIA) the assessment area is taken to include all areas within 500m of the gazetted project limit.

8.4.3        A baseline survey of the existing landscape character and quality has been undertaken from site inspections and desktop surveys. Landscape elements considered include:

·          local topography;

·          woodland extent and type;

·          other vegetation types;

·          built form;

·          patterns of settlement;

·          land use;

·          scenic spots;

·          details of local materials, styles, streetscapes, etc.;

·          prominent watercourses; and,

·          cultural and religious identity.

8.4.4        Planned developments either within the study area or adjacent to it are also considered. The baseline survey will form the basis of the landscape context by describing broadly homogenous units of similar character. The individual landscape character areas (LCA) and resources are rated using low, medium or high depending not only on the quality of elements present but also their sensitivity to change and local or regional importance. The quality of the landscape is not only related to its visual amenity. The magnitude of change arising from the implementation of the scheme proposals is rated as negligible, small, intermediate or large.

 

Baseline Study - Visual

8.4.5        For the Visual Impact Assessment (VIA), the assessment area is taken to include the visual envelope, which includes all areas from which the scheme proposals can be seen. This area forms the view shed formed by natural / manmade features such as existing ridgelines, built development and for example areas of woodland / large trees.

8.4.6        The baseline survey of all views towards the proposals is undertaken by identifying:

·          The visual envelope as has been described above and may contain both open and partial views of the proposals. This must also include indirect effects such as offsite construction activities; and,

·          The visually sensitive receivers (VSRs) within the visual envelope whose views will be affected by the scheme. The potential receivers are considered as three groups:

a)        Views from residences - the most sensitive of receivers due to the high potential of intrusion on the visual amenity and quality of life,

b)       View from workplaces - less sensitive than above due to visual amenity being less important within the work environment, and;

c)        Views from public areas - including all areas apart from the above, e.g., public parks, recreation grounds, footpaths, roads, cultural sites, etc. Sensitivity of this group depends on the transitory nature of the receiver, e.g. sitting in a park or travelling on a highway. Also considered is the degree of view or glimpsed views.

8.4.7        However the assessment of sensitivity has also been based on the quality and extent of the existing view. Therefore a view from a residential property, which would normally be considered the most sensitive view, may be less so if, for example, it is degraded by existing development or partially screened by intervening visual obstacles such as existing vegetation.

8.4.8        The location and direction of its’ view relative to the scheme also influences the sensitivity of each group. Typical viewpoints from within each of the visually sensitive groups are identified and their views described. Both present and future visually sensitive receivers are considered.

8.4.9        The baseline survey will form the basis of the visual character and quality of the site. The assessment of the potential visual impacts will result from:

·          identification of the sources of visual impacts, and their magnitude, that would be generated during construction and operation of the scheme; and,

·          identification of the principal visual impacts primarily in consideration of the degree of change to the baseline conditions.

 

Baseline Study - Tree Survey Methodology

8.4.10     To minimise conflicts with existing vegetation, a ‘broad brush’ tree survey will be completed. This ‘broad brush’ methodology will be based on an agreed methodology, and will involve the identification of tree groups and of significant individual trees with fung shui importance. Approximate numbers of trees and the range of species and sizes in each tree group will be given, in addition to the proportion of species and sizes as a percentage of each group. The location, size and species of the significant individual trees with fung shui importance will also be given.

8.4.11     This will allow the fine tuning of the proposed detail design for the proposed scheme and ensure that any significant trees, will where possible, be protected during both the design and construction periods. The methodology and scope including the programme for the tree survey and felling application is subject to the approval of the relevant authorities primarily LCSD and AFCD.

 

Review of Planning and Development Control Framework

8.4.12     A review of the existing planning studies and documents will be undertaken as part of the assessment to gain an insight into the planned role of the site, its context and to help determine the projects fit into the wider existing and future landscape context. The review is taken from Tseung Kwan O Outline Zoning Plan Draft No. S/TKO/12.

 

Impact Assessment - Landscape

8.4.13     The assessment of the potential landscape impacts of the proposals will result from:

·          identification of the sources of impact, and their magnitude, that would be generated during construction and operation of the scheme; and,

·          identification of the principal landscape impacts, primarily in consideration of the degree of change to the baseline conditions. The impacts are considered systematically in terms of the landscape elements, the site and its context.

8.4.14     Factors affecting the magnitude of change for assessing landscape impacts:

·          compatibility of the project with the surrounding landscape;

·          duration of impacts under construction and operational phases;

·          scale of the development; and,

·          reversibility of change.

8.4.15     Factors affecting the sensitivity of for evaluation of landscape impacts:

·          quality of landscape characters / resources;

·          importance and rarity of special landscape elements;

·          ability of the landscape to accommodate change;

·          significance of the change in local and regional context, and;

·          maturity of the landscape.

8.4.16     The significance threshold for impacts to landscape character and resources is rated as significant, moderate, slight or negligible. The impacts may be beneficial or adverse.

 

Impact Assessment - Visual

8.4.17     The impact assessment will relate to the typical viewpoints within the visual receiver group, as identified previously, and their existing and potential views subsequent to the scheme development. The factors affecting the magnitude of change for assessing the visual impacts include the following:

·          compatibility of the project with the surrounding landscape forming the view;

·          duration of impacts under construction and operational phases;

·          scale of the development;

·          reversibility of change;

·          viewing distance; and,

·          potential blockage of the view.

8.4.18     Factors affecting the sensitivity of receivers for evaluation of visual impacts:

·          value and quality of existing views;

·          availability and amenity of alternative views;

·          type and estimated number of receiver population;

·          duration or frequency of view; and,

·          degree of visibility.

8.4.19     The views available to the identified VSRs are rated according to their sensitivity to change using low, medium or high. Whilst the magnitude of change arising from the implementation of the proposed scheme is rated as negligible, small, intermediate or large. The significance threshold for visual impact is rated in a similar fashion to the landscape impact, i.e. significant, moderate, slight and negligible. The impacts may be beneficial or adverse.

 

Impact Assessment - Impact Significance Threshold

8.4.20     The impact is a product of the magnitude of change, which the proposals will cause to the existing landscape and visual context, and it's ability to tolerate the change, i.e. its quality and sensitivity. The significance threshold is derived from the following matrix:

 

Magnitude of Change caused by Proposals

Large

Moderate Impact

Moderate / Significant Impact

Significant Impact

Intermediate

Slight / Moderate Impact

Moderate Impact

Moderate / Significant Impact

Small

Slight Impact

Slight / Moderate Impact

Moderate Impact

Negligible

Negligible

Negligible

Negligible

 

Low

Medium

High

 

Sensitivity of View to Change

 

8.4.21     The above matrix will apply in the assessment of the majority of situations, however, in certain cases a deviation from this may occur, e.g. the impact may be so major that a significant impact may occur to a view with a low sensitivity to change.

8.4.22     The significance threshold is considered as follows:

 

Negative / Beneficial Impacts

Significant: adverse/beneficial impact where the proposal would cause significant deterioration or improvement in existing landscape or visual quality

Moderate: adverse/beneficial impact where the proposal would cause a noticeable deterioration or improvement in existing landscape or visual quality

 

Slight: adverse/beneficial impact where the proposal would cause a barely perceptible deterioration or improvement in the existing landscape or visual quality

 

Negligible impact:

no discernible change in the existing landscape or visual quality.

 

 

Mitigation Measures

8.4.23     The identification of the landscape and visual impacts will highlight those sources of conflict requiring design solutions or modifications to reduce the impacts, and, if possible, blend the development and associated activities in with the surrounding landscape. These mitigation measures should take into account factors including:

·          woodland, tree and shrub planting of new or disturbed slopes, amenity strips and areas, central reservations and adjacent to any new structures;

·          consideration of the contouring of new slopes in order to blend them in with the existing topography;

·          earth mounding and screening, structural or vegetated;

·          highlighting unacceptable impacts and considering alternative scheme proposals;

·          treatment of structural forms;

·          hard landscape, furniture and other landscape; and,

·          significant landscape elements.

 

8.4.24     This will result in the formation of landscape mitigation proposals, which will alleviate the previously identified landscape and visual impacts as far as possible.

 

Residual Impacts

8.4.25     The residual impacts are those, which remain after the proposed mitigation measures have been successfully implemented. This is assessed both during the operation period and during the decommissioning period

8.4.26     As has been described above the level of impact is a product of the magnitude of change, which the proposals will cause to the landscape character, landscape resource or visual amenity, and their sensitivity to change. It is a comparison of the future landscape modified by the proposals with the landscape, which would have existed during this period if the proposed scheme had not been constructed. This assessment also considers the ability of the landscape character, landscape resource or visual amenity to tolerate change, i.e. its quality and sensitivity taking into account the beneficial effects of the proposed mitigation. The significance threshold is derived from the matrices described separately above for the landscape and visual impacts.

8.4.27     In accordance with Annex 10 of the EIAO TM an overall assessment is also made of the residual landscape and visual impacts attributable to the proposed scheme. The degree of residual impact is considered as follows:

 

Beneficial

Acceptable

Acceptable with mitigation

Unacceptable

Undetermined

The project will complement the landscape and visual character of its setting, will follow the relevant planning objectives and will improve overall and visual quality.

There will be no significant effects on the landscape and no significant visual effects caused by the appearance of the project, or no interference with key views.

There some adverse effects, but these can be eliminated, reduced or offset to a large extent by specific measures.

The adverse affects are considered too excessive and would not be reduced to an acceptable level by mitigation.

Significant adverse effects are likely but the extent to which they may occur or may be mitigated cannot be determined from the study. Further detailed study will be required for the specific effects in question.

 

8.5            Baseline Study - Landscape

8.5.1        The study area was categorised into Landscape Character Areas which are homogenous character areas determined by the presence and combination of landform, vegetation and landuses. The Landscape Character of the Study area can be separated into two very distinct groups.  Firstly, there are the highly natural, highly sensitive areas of the Country Park and the two, originally offshore, islands.  In between these high quality areas, straight edged reclamation has occurred with the formation of Area 137 and the Tseung Kwan O Industrial Estate.  These areas are of a low landscape quality and along with the SENT landfill form a distinct group of low quality landscape. 

 


Table 81          Existing Landscape Character Areas (Refer to Figure 8-2)

Landscape Character Area

Description

Sensitivity

Natural Areas (NA)

NA 1. Fat Tong Chau

(see Figure 8-3A)

Fat Tong Chau is located immediately to the west of Area 137.  Originally an island just off the coast of Clearwater Bay Country Park, over half of the island natural coastline has been destroyed with the creation of the adjoining reclamation.  The remaining coastline is unmodified and is of high quality looking out towards Devils Peak and Hong Kong Island.  With the exception of the modified coastline, the topography of the island is generally natural consisting of high quality hillslopes.  Vegetation is limited to grassland mosaic with sporadic plantings of small trees and shrubs. 

High

NA 2. Clearwater Bay Country Park

(see Figure 8-3B)

A small section of the Clearwater Bay Country Park is located within the study area.  The landform is a natural promontory to the east of Area 137, descending from Tin Ha Shan and forming the western edge to Tai Miu Wan (Joss House Bay).  The majority of the coastline of the Country Park is natural with high sensitivity with the exception of a small area of Area 137 which forms the coastline between the promontory and Tit Cham Chau.  Vegetation is limited to grassland mosaic within the study area with sporadic shrub plantings.  The western edge of the Park has been heavily modified with the construction of the reclamation replacing its natural coastline.

High

NA 3. Tit Cham Chau

(see Figure 8-3C)

Tit Cham Chau is located at the southern end of Area 137.  Originally an island, it has been attached to the mainland via the reclamation of Area 137 which have modified the island's northern coastline.  Approximately half of the island's original coastline still remains on the southern side of the island.  The remaining topography (natural hill slope) of the island is largely unmodified exhibiting a high sensitivity to change.  Vegetation is limited to grassland mosaic with sporadic shrub plantings

High

NA 4. Tathong Channel

(see Figure 8-3D)

Tathong Channel is located between Area 137 and East Hong Kong Island.  The channel includes the bays of Tseung Kwan O to the north and Tai Long Wan in the southern coast of the Hong Kong Island.  The landscape character of the channel varies depending on the amount of modification that has impacted upon the coastline.  The areas where unmodified coastline exists, such as parts of Tit Cham Chau and Fat Tong Chau as well as Tai Miu Wan, the quality is high.  The coastline forming the edge of 137 is corresponding low with little natural character remaining. The site is currently still undergoing reclamation with barges present in a small bay.

 

The channel does form an important entrance from the east to Victoria Harbour.

High to medium

Modified Areas (MA)

MA 1. Area 137

(see Figure 8-3E)

The character of Area 137 is heavily modified and is currently undergoing large amounts of change.  For this reason, this LCA has a low sensitivity to change.  The character area consists of a linear reclamation between three high quality landscape areas, being Tit Cham Chau, Fat Tong Chau and Clearwater Bay Country Park.  Rumble and earth is stockpiled on the reclamation in a seemingly random fashion with access roads between various parts of the site.  Very little, if any vegetation is present on the site.  Site buildings are located to the north of the site, beside the base of Fat Tong Chau.

 

The site is currently still undergoing reclamation with barges present in a small bay.

Low

MA 2. Tseung Kwan O Industrial Estate

(see Figure 8-3F)

The industrial estate is a reclamation located at the northern end of the site, wedged between Fat Tong Chau and the foothills of Tiu Yue Yung (High Junk Peak).  The estate is characterised by large-scale industrial and commercial buildings.  Of note in this area is the new Planned TVB Broadcast and Production centre which occurs a large portion of this LCA.  In terms of Landscape value, the area is heavily modified and only young plantation plantings provide any value.

Low

MA 3. SENT Landfill

(see Figure 8-3G)

The SENT Landfill is located in the eastern section of the study area.  The Landfill is still in use and is a highly modified site.  Attempts have been made to nestle the Landfill into the existing landscape with contouring, hydroseeding and plantation planting around the base.  However, the character of the area is such that it has a low sensitivity to change.  This may change as the plantings become more established.

Low

Key:   Landscape Sensitivity (Sens):       Low, Medium or High

 

8.5.2        The table below presents the existing Landscape Resources of the Study Area;

Table 82        Existing Landscape Resources (Refer to Figure 8-4)

 

Landscape Resource

Total Area of Resource

Description

Sensitivity

Plantation

8.6Ha

Plantation plantings are located on the slopes of the SENT Landfill.  Still relatively young in age, but will potentially develop into a Landscape Resource of high sensitivity.

Medium

Natural Unmodified Slopes

41.2Ha

The slopes of Clearwater Bay Country Park, Tit Cham Chau form an important landscape resource in the study area and are generally unmodified. Rock outcrops are present increasing the character of these areas

High

Natural Coastline

2.6km

Natural coastline still exists on half of both Tit Cham Chau and Fat Tong Chau as well in Tai Miu Wan.  This resource is an important interface between the harbour and the natural slopes.  Strongly contrasts with the artificial reclamation. 

High

Grassland Mosaic

41.2Ha

Located on the natural slopes within the study area, the grassland mosaic is of high landscape quality.  Intermittent shrub and tree plantings exist but are subservient to the grassland cover.

High

Key:   Sensitivity of Resource (Sens):      Low, Medium or High

 

8.6            Baseline Study - Tree Survey Methodology

8.6.1        A broadbrush tree survey was carried out of the survey area.  Trees were found to be limited to a few areas including the plantation species within the SENT Landfill.  No tree species were found occurring in Area 137.  Tree species were found to be located on both Fat Tong Chau and Tit Cham Chau but the Project will not impact on either of these resources.

 

8.7            Baseline Study - Visual

Visual Envelope (see Figure 8-5)

8.7.1        The visual envelope for Area 137 is largely defined by the ridgeline of the surrounding slopes.  To the east, glimpses of the site can be gained from parts Tai Miu Wan through the gap between Tit Cham Chau and the Country Park.  The envelope is then formed by the ridgeline of the Clearwater Bay Country Park promontory rising up to Tiu Yue Yung (High Junk Peak). 

8.7.2        The northern edge of the visual envelope is formed by the high rise buildings along the waterfront of Tseung Kwan O Bay.  Large parts of this area will not have views of the site however as these will be blocked by the existing buildings in the Tseung Kwan O industrial estate and Fat Tong Chau.  Views will be limited to the higher floors of the buildings.  On the western edge, the envelope is formed by the ridgeline along Devil's Peak with views possible of the site through Lei Yue Mun Channel running between the Peak and Hong Kong Island.

8.7.3        On Hong Kong Island, the visual envelope is generally formed by the high-rises located along the coastline.  Partial views are available from the slopes behind and the envelope follows the ridgeline formed by Pak Ka Shan.  This links with Mt Collinson to the east and then to Pottinger Peak before descending to the coastline at Tai Long Wan (Big Wave Bay).  Views are also possible from Shek O Peak and the Shek O Country Park down to Shek O village and Tai Tau Chau in the south.

 

Visually Sensitive Receivers

8.7.4        The following table represents the Visually Sensitive Receivers that have been identified for the assessment of the Fill Bank at Tseung Kwan O - Area 137. For the purposes of this assessment low rise was taken as 0-4 floors, medium rise as 5-10 floors and high-rise as 11+ floors. Locations of representative viewpoints, and vantage points (viewpoints selected for photomontages preparation) are shown in Figure 8-5.

Table 83          Summary of Visually Sensitive Receivers

VSR

Name / Type / Distance

Degree of Visibility

OV/PV/

GV/NV

Description

Sensitivity

VSR 1.

Clearwater Bay Country Club

 

 Recreation / 2200m

OV / PV

The Country club has partial views of the site looking across Tai Miu Wan to the east.  A segment of the site is visible through the gap between the Country Park and Tit Cham Chau.  However most of the site is blocked by the natural promontory of the Country Park.  Views from the country club extend past the site to East Hong Kong.  The existing views are of a high quality.

High to medium

VSR 2.

Clearwater Bay Country Park

 

 Recreational Walkers / 1100m

PV/OV

GV

Views from this VSR vary as the user moves through the Park.  Generally partial views can be gained of the site but are limited at times due to either vegetation or topography.  The quality of the views is generally high from the Park.

Medium

VSR 3.

Planned TVB Broadcast and Production Centre

 

 Commercial Workers / 100m

OV / PV

The development is immediately to the north of the site.  The upper floors of the proposed complex will enjoy open views across the site to Tathong Channel.  Views of the site are blocked at street level by screening.

 

Medium

VSR 4.

Planned residential developments at Area 85

 

Proposed High-rise Residents / 1600m

OV / PV / NV

Views to Fat Tong Chau (Junk Island) Area 137 and Hong Kong Island are blocked by SENT landfill and the industrial estate at low levels.  Views of Area 137 and across to Hong Kong Island will be possible from the higher levels.  The Tseung Kwan O Industrial Estate will be visible in the foreground.

Medium

VSR 5.

Planned residential developments at Area 86 (Dream City)

 

Proposed High-rise Residents / 1900m 

OV / PV / NV

The higher levels of this development will have views to the south overlooking the SENT landfill, Area 137, Clearwater Bay Country Park, Tseung Kwan O Industrial Estate and Fat tong Island.  Views will also be available of Tseung Kwan O Bay and Hong Kong Island.

Lower views of the site will be blocked by the industrial estate and Fat Tong Chau.

High

VSR 6.

Siu Sai Wan (Island Resort and Full view garden)

 

High rise residential / 1700m

 

 

 

OV

Open views along promenade of Siu Sai Wan Waterfront Park provide a direct view to the site across Tathong.  From this location, the site is viewed against the backdrop of the Clearwater Bay Country Park and the SENT Landfill.  Fat Tong Chau is visible in the foreground.  Most of the site is viewed against existing landform except for the tip between Tit Chau and Country Park making this area more sensitive to change.  High rise residents in north facing units will have expansive views looking out over the site.

High

VSR 7.

Pottinger Peak, Shek O Country Park

 

Recreational walkers / 2100m

GV/PV/OV

Partial and glimpsed views are available for recreational users in this Country Park through vegetation and past hillslopes. The view looks down across Tathong Channel to the site and the two islands along with SENT landfill.  Views are also possible of the Tseung Kwan O Industrial Estate and Clearwater Bay Country Park to east.

Medium to low

VSR 8.

Leisure boat traffic in Lam Tong Hoi Hap

 

Boat Users / 1500m

OV

Boat users have an open view of the site, wedged between Junk Island and Tit Cham Chau with the straight-edged reclamation jutting out into the harbour.  Clearwater Bay Country Park is visible behind as well SENT landfill.  Views extend passed the site to Tseung Kwan O, but partially blocked by Fat Tong Chau from some vantage points.  Sea barges are visible in the foreground.

Medium to Low

Key: OV: Open View; PV: Partial View; GV: Glimpsed View; NV: No View

Note:     -   The viewing distance is measured from the façade of the building or location that forms the Visually Sensitive Receiver to nearest visible part of the proposed scheme.

               -   For the Factors affecting the sensitivity of receivers for evaluation of visual impacts, see para 8.4.18

 

8.8            Review of Planning and Development Control Framework

Existing Planning Context and Impacts

8.8.1        A review of the existing planning studies and documents was undertaken to gain an insight into the planned role of the site, its context and to help determine the projects fit into the wider existing and future landscape context. This review considers areas that will be physically affected by the proposals that are where the implementation of the development proposals would lead to the actual loss of an area. The assessment also considers the potential degradation of the landscape setting of an area which might affect the viability of its landscape planning designation but not result in a loss of land area. A review of the existing planning and development control framework is presented as tabulated below.

8.8.2        The information shown in this table and that shown on Figure 8-6 has been obtained from Outline Zoning Plan number S/TKO/12 – Tseung Kwan O. The table presents the predicted unmitigated impacts arising from the proposed scheme during the construction and operational phases of the project.

Table 84          Review of Existing Planning and Development Control Framework (Refer to Figure 8-6)

Plan title / Number / Zoning / Location

Approx. area affected by the proposal

Sens.

Magnitude of Change

Planning Intention of Zoning / Source of Impact

Impact Significance Threshold (Unmitigated)

Oper

Decom

Oper

Decom

Tseung Kwan O Outline Zoning Plan No. S/TKO/12

CDA - Area 86

0.0Ha

High

Negligible

Negligible

Area 86 is intended to facilitate comprehensive development including a MTR depot, a MTR station, associated property development and supporting community facilities.

The Fill Bank will have a negligible impact on the proposed development at Area 86 as Stage 1 of the development will not be completed until 2006.  At this time, the Fill Bank will be in decommissioning and will be having beneficial impacts as the scale of the Fill Bank is reduced.

Negligible Impact

Negligible Impact

OU, R(E) and GIC - Area 85

0.0Ha

High

Negligible

Negligible

Sewage treatment works, residential and school developments would be developed.

The Fill bank will have a negligible impact on the proposed development at Area 85 as Stage 1 of the development will not be completed until 2006.  At this time, the Fill bank will be in decommissioning and will be having beneficial impacts as the scale of the Fill bank is reduced.

Negligible Impact

Negligible Impact

OU - Industrial Estate - Area 87

0.0Ha

Low

Negligible

Negligible

Industrial Estate which enjoys the advantage of marine frontage as well as proximity to the Hong Kong University of Science and Technology.

 

 

 

 

 

 

Negligible Impact

Negligible Impact

OU - Deep Waterfront Industry - Area 137

104 Ha

Low

Large

Large

To provide for deep-waterfront industry which require marine access.

The Fill bank will occupy this zone and will have an impact on its intention.  Given, however that it is proposed to deliver and transport 90% of the fill by barge, the use meets the intention of the zone.

Moderate Impact

Moderate Impact

O - Shek Miu Wan, SENT Landfill - Area 101

0.0Ha

Low

Negligible

Negligible

The landfill site will be developed into major open space upon completion.  Any development within the 250m Consultation Zone of these landfills will need to include a Landfill Gas Hazard Assessment to the satisfaction of EPD.  The development of this area into an open space will not occur during the operation of the Fill bank,

Negligible Impact

Negligible Impact

O - Area 105

0.0Ha

Medium to low

Negligible

Negligible

The landfill site will be developed into major open space upon completion.  Any development within the 250m Consultation Zone of these landfills will need to include a Landfill Gas Hazard Assessment to the satisfaction of EPD

Negligible Impact

Negligible Impact

GB - Fat Tong Chau - Area 135

0.0Ha

High

Negligible

Negligible

The main purposes of this zoning are to promote conservation of the natural environment, to safeguard it from encroachment of urban development, and to provide additional outlets for passive recreational uses.  There is a general presumption against development in this zone.

The proposed Fill bank will not impact on this zone.

Negligible Impact

Negligible Impact

GB - Area 104

0.0Ha

High

Negligible

Negligible

The main purposes of this zoning are to promote conservation of the natural environment, to safeguard it from encroachment of urban development, and to provide additional outlets for passive recreational uses.  There is a general presumption against development in this zone.

The proposed Fill bank will not impact on this zone.

Negligible Impact

Negligible Impact

Key: Landscape Sensitivity (Sens):         Low, Medium or High  

Note: -For the Factors affecting the sensitivity of receivers for evaluation of visual impacts, see para 8.4.18

 

Summary

8.8.3        The proposed Fill bank will have a negligible impact on the Planning and Development Plans for Tseung Kwan O with the exception of Area 137.  However, given the nature of the zoning and proposed use of barges for transport 90% of the Fill to and from the site, it could be argued that the Fill bank is within the intentions of the zoning.

 

8.9            Impact Assessment  - Landscape (unmitigated)

Table 85          Impact Assessment of Landscape Character Areas

LCA

Sens.

Magnitude of Change

Primary Source of Impact

Impact Significance Threshold (Unmitigated)

Oper

Decomm

Oper

Decomm

Natural Areas (NA)

NA 1. Fat Tong Chau

High

Intermediate

Small to Negligible

Operational: Indirect landscape impacts arising from the operation of the fill bank due to its close proximity on the southern side of this LCA. The form of the fill bank contrasts with the natural form and character of this area

 Decommissioning: Small to negligible impacts are envisaged for this LCA during decommissioning but these are likely to be beneficial.

Moderate / Significant Impact

Slight to Negligible Impact

NA 2. Clearwater Bay Country Park

High

Intermediate

Small to Negligible

Operational: Indirect landscape impacts arising from the operation of the fill bank due to its close proximity on the southern side of this LCA. The form of the fill bank contrasts with the natural shape of this character area. A 30m buffer is proposed between the fill bank and the Country Park.

Decommissioning:  Small to negligible impacts are envisaged for this LCA during decommissioning but these are likely to be beneficial.

Moderate / Significant Impact

Slight to Negligible Impact

NA 3. Tit Cham Chau

High

Intermediate

Small to Negligible

Operational: Indirect landscape impacts arising from the operation of the fill bank due to its close proximity on the southern side of this LCA.  The form of the fill bank contrasts with the natural shape of this character area

Decommissioning: Small to negligible impacts are envisaged for this LCA during decommissioning but these are likely to be beneficial.

Moderate / Significant Impact

Slight to Negligible Impact

NA 4. Tathong Channel

High to medium

Negligible

Small

Operational:  Direct impacts resulting from the barge handling and loading area to be located along the seawall.  However, given the small scale of the handling area, it is considered to have no more than a small impact on this landscape character.  Indirect impacts will result from the more enclosed nature of the channel created by the fill bank.

Decommissioning:  Given that it is proposed for 90% of the Fill bank to be transported via barge, it is envisaged that the impacts of the Project will last the length of the decommissioning.  Indirect impacts will decrease as the character of the channel becomes more open.

Moderate / Significant Impact

Moderate Impact

Modified Areas (MA)

MA 1. Area 137

Low

Large

Intermediate

Operational: The entire project will be located within this Character Area. The proposed Fill bank will contrast with the horizontal nature of the site. However, given the low quality of the existing landscape, it is not considered that the Project will have an adverse impact.

Decommissioning:  Impacts will decrease as the Fill bank reduces in size.

Moderate Impact

Slight / Moderate Impact

MA 2. Tseung Kwan O Industrial Estate

Low

Negligible

Negligible

The Project will not have an impact on this landscape character either during operation or decommissioning.  Indirect impacts are possible but are negligible given the highly modified nature of this LCA

Negligible Impact

Negligible Impact

MA 3. SENT Landfill

Low

Negligible Impact

Negligible Impact

The Project will not have an impact on this landscape character either during operation or decommissioning. Indirect impacts are possible but are negligible given the highly modified nature of this LCA

Negligible Impact

Negligible Impact

 


Table 86          Impact Assessment of Landscape Resources

 

Landscape Resources

Total Area of Resource / Total Area Loss / % Loss

Sens.

Magnitude of Change

Impact on Landscape Character resulting from the loss of the Existing Landscape Resource

Significance Threshold (unmitigated)

 

Oper

Decomm

Oper

Decomm

Plantation

8.6Ha/ 0Ha / 0%

Medium

Negligible

Negligible

There will be no loss of this resource during either Operation or decommissioning of the Fill bank

Negligible

Negligible

 

Natural Unmodified Slopes

41.2Ha/ 0Ha / 0%

High

Negligible

Negligible

There will be no loss of this resource during either Operation or decommissioning of the Fill bank

Negligible

Negligible

 

Natural Coastline

2.6km/ 0km/ 0%

High

Negligible

Negligible

There will be no loss of this resource during either Operation or decommissioning of the Fill bank

Negligible

Negligible

 

Grassland Mosaic

41.2Ha/ 0Ha / 0%

High

Negligible

Negligible

There will be no loss of this resource during either Operation or decommissioning of the Fill bank

Negligible

Negligible

 

 

Summary

8.9.1        Given the reclaimed nature of the site and lack of any existing landscape resources, it is not considered that the Proposal will have more than a slight adverse impact on the surrounding Landscape Character Areas.  The only impact arising on these LCA's will be indirect impacts resulting from the contrast of the fill bank with the surrounding, high quality, natural slopes.

 

8.10         Impact Assessment - Visual (unmitigated)

8.10.1     The following table identifies the impact anticipated to be received by each of the identified Visually Sensitive Receivers (VSR).  Figure 8-7 summarises the findings of the impact assessment taking into account the sensitivities of the VSRs at each of the representative viewpoints and vantage points.

 

Table 87          Significance of Visual Impact anticipated to be received by VSR.

VSR

Sens.

Magnitude of Change

Primary Source of Impact

Impact Significance Threshold (Unmitigated)

Oper

Decomm

Oper

Decomm

1. Clearwater Bay Country Club

 

 Recreation / 2200m

High to medium

Intermediate

Small

Operational: Impact from the stockpiling of fill and the loss of the visual corridor between Tit Cham Chau and the Country Park.  The pile will visually contrast with the natural form of the surrounding landform.

Decommissioning: Impacts will subside as the view between Tit Cham Chau and the Country Park is restored.   Reduction in the contrast between the fill bank and the natural landform, including the coastline

 

 

Moderate / Significant Impact

Moderate Impact

2. Clearwater Bay Country Park

 

 Recreational Walkers / 1100m

High to medium

Small

Negligible

Operational: Like the Country Club, impacts will arise from the loss of the channel between Tit Cham Chau  and the Country Park.  Impacts will be less obtrusive however given the angle that the site will be viewed from.

Decommissioning: Impacts will subside as the view between Tit Cham Chau and the Country Park is restored.   Reduction in the contrast between the fill bank and the natural landform, including the coastline

Moderate Impact

Negligible Impact

3. Planned TVB Broadcast and Production Centre

 

 Commercial Workers / 650m

Medium

Large

Intermediate

Operational:  Impacts will be due to the increased amount of fill being stored on the site.  Lower level views will be affected as the space and views become more enclosed.  Given the height of the tower block, higher levels will largely not be impacted upon as open views will be retained and given the existing visual quality is not high.

Decommissioning: Views from lower levels will return having a beneficial visual impact.

Moderate / Significant Impact

Moderate Impact

4. Planned residential development at Area 85

 

Proposed High-rise Residents / 1600m

 

 

 

 

 

Medium

Negligible

Small to negligible

Operational: During the operational phase of the Fill bank, the planned residential development will still be in the construction phase with no actual residents living there.  Therefore the change to the visual amenity will be negligible as views from ground level of the site are not possible.

Decommissioning: Impacts from this VSR will only be visible from the higher floors of this proposal as the SENT landfill, Tseung Kwan O Industrial Estate and Fat Tong Chau will block views from lower levels.  From this distance and height, the proposal will have s mall impact on the visual quality. Impacts will reduce to near negligible as the height of the stockpile subsides.

Negligible Impact

Slight / Moderate Impact

5. Planned residential developments at Area 86 (Dream City)

 

Proposed High-rise Residents / 1900m 

 

 

 

 

 

Medium

Negligible

Small

Operational: During the operational phase of the Fill bank, the planned residential development will still be in the construction phase with no actual residents living there.  Therefore the change to the visual amenity will be negligible as views from ground level of the site are not possible.

Decommissioning: Impacts from this VSR will only be visible from the higher floors of this proposal as the SENT landfill, Tseung Kwan O Industrial Estate and Fat Tong Chau will block views from lower levels.  From this distance and height, the proposal will have small impact on the visual quality. Impacts will reduce to near negligible as the height of the stockpile subsides.

 

 

 

 

Negligible Impact

Slight / Moderate Impact

6. Siu Sai Wan (Island Resort and Full view garden)

 

High rise residential / 1700m

 

 

 

 

 

High

Large

Large

Operational: The height and shape of the Fill bank will contrast against the backdrop of the

Country Park especially at the southern tip where it could appear to form the skyline.  At present the skyline is formed by the Country Park sloping down to Tit Cham Chau with high natural quality.  The formation of a straight edged fill bank would have a large impact on the visual quality if it forms the skyline at any point.

Decommissioning:  As the height of the Fill bank reduces, its visual impact will also reduce.  From higher elevations, the impact will lessen more as the difference in height is less able to be determined.

Sorting Facility: During both the operation and decommissioning of the Fill bank, this VSR will have open views of the sorting facility and the loading/unloading barges.  The operation is to be limited to daytime operations and one barge at the facility at a time.  This will reduce the potential for glare at night time.  The facility will have a moderate visual impact, but will be minimal in comparison to the entire project.

Significant Impact

Significant Impact

7. Pottinger Peak, Shek O Country Park

 

Recreational walkers / 2100m

 

 

 

 

 

 

Medium to Low

Small

Small

Operational: Partial views of the site will be impacted upon as the mass of the Fill bank increases.  However, given the increased elevation of this VSR, the proposed total height of the Fill will have little impact as it is looking down onto the site.

Decommissioning:  Little change in impact as from this VSR, the Fill bank will appear as part of the reclamation, and its additional height will not be determinable.

Sorting Facility: During both the operation and decommissioning of the Fill bank, this VSR will have open views of the sorting facility and the loading/unloading barges.  The operation is to be limited to daytime operations and one barge at the facility at a time.  This will reduce the potential for glare at night time.  The facility will have a moderate visual impact, but will be minimal in comparison to the entire project and the distance from the VSR.

 

 

 

 

 

 

 

 

 

Slight / Moderate Impact

Slight / Moderate Impact

8. Leisure boat traffic in Tathong Channel

 

Boat Users / 1500m

 

 

Medium to Low

Large

Intermediate

Operational: The increasing size of the Fill bank will be notable when looking up from the Channel and the Bank forms the skyline.  Loss of views from certain parts of the Country Park and Tit Cham Chau.  The design of the slopes facing the channel is important from this viewpoint.

Decommissioning:  As the overall height of the Project decreases, the overall form of the reclamation becomes more noticeable.  Views of the adjoining islands and Country Park return to form the entrance to Victoria Harbour.

Sorting Facility: During both the operation and decommissioning of the Fill bank, this VSR will have open views of the sorting facility and the loading/unloading barges.  The operation is to be limited to daytime operations and one barge at the facility at a time.  This will reduce the potential for glare at night time.  The facility will have a moderate visual impact from this VSR as it will protrude out into the Channel.

Moderate  / Significant Impact

Moderate Impact

        

Summary

8.10.2     Overall, the project will have a moderate to significant impact on the visual amenity from the identified Visually Sensitive Receivers during the operation phase. As the Fill bank is close to the coastline, its form is the most important determinant of visual amenity. In its present design, the Fill bank is graduated in height, with the maximum height of +35.2mPD being adopted near the Clearwater Country Park. This reduces any potential visual impact, as the Fill bank does not form the skyline at any location. However, the straight edged, engineered slopes of the Fill bank will contrast against the natural landform surrounding the site which provides the area with a high degree of existing natural quality.  When viewed from a distance, the Bank will not have more than a slight to moderate impact given its relative low stature in comparison with the surrounding landform.  During the operation phase, the Project will not have any impact on the residential areas of 85 and 86 as they will still be in the construction phase.

8.10.3     During the Decommissioning Phase the Fill bank's impact will reduce correspondingly to the amount that is removed, and the existing natural landform starts to dominate views again.  With the completion of the Planned Residential Areas of 85 and 86 in 2006, the decommissioning will have a moderate to slight impact on the visual amenity from this viewpoint.

 

8.11         Impact Assessment - Tree Survey

8.11.1     As identified in the broadbrush tree survey no trees will be impacted upon by the Project.  It should be noted that all care should be taken to ensure that no existing trees are damaged or threaten by the Project in the adjoining Country Park or on either of the two islands.

 


8.12         Mitigation Measures

Standards, Legislation and Guidelines

8.12.1     The landscape and visual mitigation design aspects of this project shall be undertaken in accordance with the following guidelines:

·          Hong Kong Planning Standards and Guidelines, particularly Chapter 4;

·          Planning Environment and Lands Branch Technical Circular No. 3/94 (WBTC No.24/94, Tree Preservation);

·          Management & Maintenance of both Natural Vegetation & Landscape Works (Works Branch), WBTC No. 18/94;

·          Control of Visual Impact of Slopes (Works Branch), WBTC 25/93;

·          Improvement to the Appearance of Slopes (Works Branch), WBTC no. 17/2000;

·          Technical Guidelines on Landscape Treatment and Bio-engineering for Manmade Slopes and Retaining Walls (GEO Publication No. 1/2000)

·          The Advisory Committee on the Appearance of Bridges and Associated Structures (ACABAS), WBTC No. 19/98;

·          Appearance of Structures. Lands and Works Branch Technical Circular No. 11/89.

 

Primary Mitigation Measures

8.12.2     In accordance with the EIAO TM, the hierarchy for landscape and visual impact mitigation is first avoidance of impact, then minimisation of impact and finally compensation of impact. Various siting options for the Fill bank were identified in the Draft Working Paper on Consideration of Alternatives (Ref: R1405-1.01).

 

Secondary Mitigation Measures

8.12.3     A series of mitigation measures designed to alleviate the impact and where possible compensate for loss of landscape resources or visual amenity for the operational and decommissioning phases of the project are described below.

 

Mitigation Measures -Visual Impact

Fill Bank Design

8.12.4     The design of the Fill bank is considered the primary mitigation measure for allowing the Project to blend into the surrounding landscape. 

 

(a)              Mitigation Measure - Design of Fill Bank

8.12.5     The design of the fill bank mirrors the surrounding landform, being constructed of irregularly shaped layers to reduce its visual impact.  The natural quality of the existing landform is strong and the proposed Fill bank would mimic this topography.  The topography of the study area consists of the ridgeline descending down from High Junk Peak to the coastline close to Tit Cham Chau.  At this point the quality of site's topography is high as it forms the skyline.  The Fill bank will not form the skyline at any point. The form of the Fill bank mimics the ridgeline of the Country Park and slopes down towards the coastline as occurs naturally.  By doing so the visual impact received by Country Club viewers is significantly reduced. 

8.12.6     The final form should fit into the general formation of the surrounding land so that, once completed, the modified form appears to be a natural extension of the original landform. Straight edged slopes should be avoided.

 

(b)              Mitigation Measure - Sequencing / Bunding

8.12.7     The fill bank should be operated using layering with bunding being formed around the edge of each layer. The outer slope of the bund would be hydroseeded once completed.  This would provide screening for operations carried out within the bunding as well as providing adequate time for the hydroseeding to become established. As each layer is decommissioned, fill should be removed from the centre before the bund slopes are removed as far as practicable. Using this technique, the visual impact of the fill bank will be reduced to the shortest possible period.

 

Slope Treatment

8.12.8     While not having the same mitigation potential as the design of the Fill bank, the finished land cover placed over the slopes of the Bank will mitigated the visual impact of the Project.

 

(c)              Mitigation Measure - Hydroseeding (see Figure 8-8A)

8.12.9     The process of hydroseeding the slopes of the fill banks will reduce the visual impact on the Project and allow the site to blend into the surrounding Country Park and islands.  This will be particularly noticeable when viewed from the Clear Water Bay Country Club as the reflectivity of the Fill bank will be reduced and the bank will blend with the existing land cover.  Hydroseeding should be implemented when each stage (or layer) of the fill bank is completed to ensure that the visual amenity enjoyed by the surrounding VSRs is maintained.  Hydroseeding would be the most preferable as the mitigation measure for the Fill Bank.

 

(d)              Mitigation Measure - Coloured Geo-textile Matting (see Figure 8-8B)

8.12.10  Using matt (not glossy) dark green / brown non-biodegradable geo-textile matting to cover the slopes in the same manner as the slope treatment option above.  This option can easily be removed once decommissioning of the site while retaining the purity of the fill.  If the correct colour is chosen, the matting will reduce the slope visibility greatly without increasing reflectivity.  As with the hydroseeding, the matting should be placed when each layer of the fill bank is completed.  Coloured Geo-textile Matting would be preferable as the mitigation measure for the Fill Bank.

 

(e)              Mitigation Measure - Coloured spray concrete (see Figure 8-8B)

8.12.11  While coloured spray concrete will retain the purity of the fill, the finished effect will have an increased reflectivity increasing its visual impact. This will be particularly notable from those sites that look down on to the site. For this reason, this treatment is not recommended on the most visible areas of the Fill bank.

 


Structures

(f)               Finish of Structures

8.12.12  The design, colour and finish of structures, notably the Construction and Demolition Material Sorting Facility (C&DMSF), within Area 137 should be such that they are visually recessive and in a style that fits with the surrounding landscape.  Materials used should be treated to reduce reflectivity and the form of the building should not detract from the form of Fill bank. The form should be compatible and sympathetic to the surrounding landscape, designed to blend in. The colour should be a light, earthy tone with strong natural qualities.  Details should not be highlighted through the use of bold colour schemes.

 

(g)              Operation and Design of Sorting and Handling Facility

8.12.13  The barging facility and the C&DMSF shall not be in operation after 7:00p.m. daily to avoid potential visual impact due to glare.

 

Mitigation Measures - Landscape Impact

Existing Vegetation

(h)              Protection of Existing Vegetation

8.12.14  It is not envisaged that there will be any direct impact on the landscape resources as a result of the Project.  However, the contractor shall ensure that the surrounding high quality areas shall not be disturbed by the workers or work activities in the project implementation.

 

Environmental Monitoring and Audit

8.12.15  The EIA has recommended the EM&A for landscape and visual resources to be undertaken during both the operational and decommissioning phases of the project.  Details of the EM&A programme are presented in the EM&A Manual under a separate cover.

 

Implementation, Management and Maintenance of the recommended Mitigation Measures

8.12.16  The objective of the implementation, management and maintenance regime for the mitigation measures described above will be to ensure that the measures fulfils its role in mitigating the predicted adverse landscape and visual impacts arising from the proposed scheme.  The table below outlines the implementation, management and maintenance responsibilities for the mitigation measures.  The mitigation items associated with the operational and decommissioning phases of the fill bank can be found in the Implementation Schedule presented in Appendix 10-1.

Table 88          Landscape Works Responsibilities

Landscape Item

Implementation Agent

Maintenance Agent

Funding and Management Department

All Landscape works within Area 137 – fill bank design and slope treatment

Contractor/ CED

Contractor/ CED

CED

 


Programming / Sequencing

 

Programme

Description / Location

Approximate Date

Operational Phase

Commencement of Fill bank at the South End

October 2002

 

South End Completed

December 2003

 

Fill Commencing at Northern end

January 2004

 

Fill Complete at Northern end

December 2004

Decommissioning Phase

Removal commencing at Northern end

January 2004

 

Removal complete at northern end

August 2005

 

Removal commencing at southern end

September 2005

 

Removal complete at southern end

December 2007

Project Completed

 

December 2007

 

8.13         Residual Impacts

Residual Impacts - Landscape

8.13.1     The residual impacts are those impacts that will remain once mitigation measures have been implemented. Photomontages (Figure 8-9 through Figure 8-11) have been prepared to show the existing view; the worst case scenario with no mitigation (operational); the worst case scenario with mitigation (operational); and the Fill bank during Decommissioning.

8.13.2     The table below outlines the residual impacts that will result from the proposal relation to the landscape of the study area.  The operation of the proposal is assessed at the worse case scenario, i.e. when the Fill bank is at its highest point and is completed.   The Decommission phase is assessed when half of the total amount of the fill has been removed, sometime between 2005 and 2007.  Once the decommissioning phase is complete it is assumed that the residual impacts will be negligible as the site will revert to its existing state.

Landscape Character Area

Significance Threshold without Recommended Mitigation Measures

Recommended Mitigation Measures

Significance Threshold with Recommended Mitigation Measures

Operation

Decommission

Operation

Decommission

Natural Areas (NA)

NA 1. Fat Tong Chau

Moderate / Significant Impact

Slight to negligible Impact

(a) Design of Fill bank

(g) Protection of Existing Vegetation

Slight to negligible Impact

Negligible Impact

NA 2. Clearwater Bay Country Park

Moderate / Significant Impact

Slight to negligible Impact

(a) Design of Fill bank

(g) Protection of Existing Vegetation

Slight to negligible Impact

Negligible Impact

NA 3. Tit Cham Chau

Moderate / Significant Impact

Slight to negligible Impact

(a) Design of Fill bank

(g) Protection of Existing Vegetation

 

Slight to negligible Impact

Negligible Impact

NA 4. Tathong Channel

Moderate Impact

Moderate Impact

(f)Finish of Structures

(g) Operation and Design of Sorting and Handling Facility

Slight Impact

Slight Impact

Modified Areas (MA)

MA 1. Area 137

Moderate Impact

Slight to moderate Impact

(a) Design of Fill bank

(c) Hydroseeding with grass

or

(e) Geotextile matting

and

(f) Finish of Structures

(g) Operation and design of Sorting and Handling Facility

Slight Impact (beneficial)

Slight Impact (beneficial)

MA 2. Tseung Kwan O Industrial Estate

Negligible Impact

Negligible Impact

No mitigation measures suggested for this LCA

Negligible Impact

Negligible Impact

MA 3. SENT Landfill

Negligible Impact

Negligible Impact

No mitigation measures suggested for this LCA

Negligible Impact

Negligible Impact

 

Summary of Residual Landscape Impacts

8.13.3     The existing quality of Landscape Character Area 137 is low, being a newly reclaimed area with no existing vegetation of landscape value.  With the implementation of the recommended mitigation measures in Area 137, the significance threshold of Landscape Impact will be reduced from Moderate to Slight - beneficial. In the surrounding high value Landscape Areas the recommended mitigation measures will be effective in reducing the operational impact from 'moderate / significant' to 'slight / negligible' and the decommissioning phase from ' slight negligible' to 'negligible'.

 

Residual Impacts - Visual

8.13.4     The residual impacts are those impacts that will remain once mitigation measures have been implemented. Photomontages (Figure 8-9 through Figure 8-11) have been prepared to show the existing view; the worst case scenario with no mitigation (operational); the worst case scenario with mitigation (operational); and the Fill bank during Decommissioning.

8.13.5     The table below outlines the residual impacts that will result from the proposal relation to the visual amenity of the outlined visual envelope area.  The operation of the proposal is assessed at the worse case scenario, i.e. when the Fill bank is at its highest point and is completed.   The Decommission phase is assessed when half of the total amount of the fill has been removed, sometime between 2005 and 2007.  Once the decommissioning phase is complete it is assumed that the residual impacts will be negligible as the site will revert to its existing state.

 

Table 89          Residual Visual Impact

VSR

Significance Threshold without Recommended Mitigation Measures

Recommended Mitigation Measures

Significance Threshold with Recommended Mitigation Measures

Operation

Decommission

Operation

Decommission

1. Clearwater Bay Country Club

 

 Recreation / 2200m

Moderate / Significant Impact

Moderate Impact

(a)     Design of fill bank

(c) Hydroseeding with grass

or

(e) Geotextile Matting

and

(h) Protection of Existing Vegetation

Slight Impact

Slight Impact

2. Clearwater Bay Country Park

 

 Recreational Walkers / 1100m

Moderate Impact

Negligible Impact

(a)Design of fill bank

(c) Hydroseeding with grass

or

(e) Geotextile Matting

and

(h) Protection of Existing Vegetation

Slight Impact

Slight Impact

3. Planned TVB Broadcast and Production Centre

 

 Commercial Workers / 650m

Moderate / Significant Impact

Moderate Impact

(a)Natural design of fill Bank

(c) Hydroseeding with grass

or

(e) Geotextile Matting

and

(h) Protection of Existing Vegetation

Slight Impact

Slight Impact

4. Planned residential development at Area 85

 

Proposed High-rise Residents / 1600m

Negligible Impact

Slight / Moderate Impact

(a) Design of fill bank

(c) Hydroseeding with grass

or

(e) Geotextile Matting

Negligible Impact

Slight to Negligible Impact

5. Planned residential developments at Area 86 (Dream City)

 

Proposed High-rise Residents / 1900m 

 

Negligible Impact

Slight / Moderate Impact

(a) Design of fill bank

(c) Hydroseeding with grass

or

(e) Geotextile Matting

Negligible Impact

Slight to Negligible Impact

6. Siu Sai Wan (Island Resort and Full view garden)

 

High rise residential / 1700m

 

 

 

 

 

Significant Impact

Significant Impact

(a) Design of Fill bank

(b)     Hydroseeding with grass

or

(e) Geotextile Matting

 

and

(f) Finish of Structures

(g) Operation and design of Sorting and Handling Facility

Moderate to Slight Impact

Slight Impact

7. Pottinger Peak, Shek O Country Park

 

Recreational walkers / 2100m

 

 

 

 

 

 

Slight / Moderate Impact

Slight / Moderate Impact

(a) Design of Fill bank

(c)     Hydroseeding with grass

or

(e) Geotextile Matting

and

(f) Finish of Structures

(g) Operation and design of Sorting and Handling Facility

Slight Impact

Slight  to negligible Impact

8. Leisure boat traffic in Tathong Channel

Boat Users / 1500m

 

 

Moderate / Significant Impact

Moderate Impact

(a) Design of Fill bank

(d)     Hydroseeding with grass

or

(e) Geotextile Matting

and

(f) Finish of Structures

(g) Operation and design of Sorting and Handling Facility

Slight Impact

Slight  to negligible Impact

 

Summary of Residual Visual Impacts

8.13.6     The residual visual impacts of the proposal will be reduced to 'Slight Impact' during the operational stage and 'Slight to Negligible Impact' during the decommissioning phase.  Photomontage (Figure 8-9) for Clear Water Bay Country Park shows that if the design of the Fill bank is shaped such that it does not block the view between the Country Park and Tit Cham Chau and is covered in an appropriate material, the visual impact will be significantly mitigated.

8.13.7     Photomontage (Figure 8-10) shows the proposed views from Area 86.  Given the timing of this development, operational impacts from the proposal will be 'Negligible' and decommissioning impacts will be 'Slight to Negligible'

8.13.8     With the mitigation measures, the appearance of the Fill bank when viewed from Siu Sai Wan (see Photomontage (Figure 8-11)) and Shek O Country Park will blend with the surrounding landscape character, reducing its visual impact to 'Moderate to Slight' during operation and 'Slight' during construction.

 

8.14         Conclusion

8.14.1     The Significant Threshold with Recommended Mitigation Measures of landscape character areas for operation stage varies from Negligible to Slight Impact, and that of VSRs varies from Negligible to Moderate to Slight Impact. The Significant Threshold with Recommended Mitigation Measures of landscape character areas for decommissioning stage varies from Negligible to Slight Impacts, and that of VSRs varies from Slight to Slight to Negligible Impact.  In conclusion it is considered that the Fill bank Project at Area 137 will be acceptable with mitigation in terms of residual landscape and visual impacts.  That is to say 'that there will be some adverse effects, but these can be mitigated, reduced or offset to a large extent by appropriate mitigation measures, please refer to para 8.12.8-10 (slope treatment)’.

8.14.2     This is due to the following reasons:

·          The existing low landscape quality of Area 137.  The Project will have a slight to negligible impact on the Landscape Character of the area if the design of the fill bank blends with the surrounding existing natural character.

·          The negligible impact that the proposed fill bank will have on Landscape Resources.

·          The ability for the visual impact of the proposal to be mitigated through fill bank design and slope treatment to form a visually unobtrusive element in the landscape.

 


9.               Summary of Environmental outcomes

9.1            Introduction

9.1.1        This section summarises the key environmental outcomes associated with the proposed fill bank at TKO Area 137 in accordance with the requirement as specified in Section 5 of the EIA Study Brief. 

 

9.2            Environmental Benefits

Key Environmental Problem Avoided

9.2.1        Implementation of the proposed fill bank at TKO Area 137 will provide an outlet for temporary storage of a total quantity of 6 Mm3 public fill for subsequent reuse in reclamation projects.  Without the proposed fill bank, the large quantity of reusable and inert public fill may inevitably need to be disposed of to landfills.  The landfill space is expensive and designed for disposal of municipal waste and has been used up far more rapidly than originally planned for.

9.2.2        Establishment of the fill bank to maximise the beneficial reuse of public fill in reclamation projects (and earth filling projects) will also reduce the demand of these projects on general fill and would help to conserve the natural resources through minimising earth borrowing activities and marine sand extraction.

9.2.3        Provision of stable outlets for public fill is also considered as an important measure to discourage generation of mixed C&D material at construction sites and illegal dumping, and encourage on-site sorting of C&D material and their reuse at public filling areas.

 

Environmental Friendly Designs Adopted

Sufficient Buffer incorporated into the Design

9.2.4        The reclamation site at TKO Area 137 has been serving as a public filling area.  Existing landuses located within 3 km of the site are all of industrial nature.  The nearest existing residential development is located at some 3.2km from the boundary of the site.  The nearest planned development in Area 86, which will not be occupied until 2006 when the fill bank is already under decommissioning, is also located at more than 1.5km from the site.  To fully protect the nearest air sensitive receiver, TVB Broadcast and Production Centre, a buffer zone of at least 100m would be maintained between the edge of the stockpiling area and the boundary of the production centre.  As stockpiling activity will proceed from the south to the northern side of the site, and the northern part of site will not be available for storage of public fill until January 2004, the buffer distance maintained between the stockpile and the ASR would be maximised and more than 100m for most of the time.  Quantitative assessments have demonstrated that with the sufficient buffer distance provided between the fill bank and the nearby air/ noise sensitive receivers, activities at the fill bank during the establishment, operation and decommissioning phases will unlikely pose any unacceptable air and noise impacts on the nearby sensitive receivers.

9.2.5        On the eastern and southern sides of the fill bank, based on the current preliminary fill bank design, a buffer distance of 100m would be provided between the edge of the stockpiling area and the waterfront.  A buffer distance of 10 metres will also be provided along the eastern boundary of the site to separate the fill bank from the adjacent Clearwater Bay Country Park boundary.  A minimum buffer distance of 20m will also be maintained between the C&DMSF and the waterfront.

 


Provision of Marine Access for Transportation of Public Fill

9.2.6        As a proactive approach to minimise potential traffic noise and vehicular emission impact associated with the public fill delivery trucks using the fill bank during the operational phase, a public filling barging facility will be established at TKO Area 137 and at the runway of the ex-Kai Tak airport to allow the use of barges to transport public fill to the site.  This measure will allow the Kai Tak barging point to share a truckload of 1,000 vehicles/day on Wan Po Road to minimise the traffic noise and vehicular emission impact associated with the trucks travelling to the fill bank.

 

Benefits of Recommended Environmental Protection Measures

9.2.7        Sufficient dust control measures have been recommended for implementation during the establishment, operation and decommissioning phases to control the Total Suspended Particulate (TSP) concentrations at the nearby ASRs to within acceptable levels.  Although construction/ fixed noise impacts are not identified to be key concern, good site practices and noise management measures have been recommended to minimise the generation of significant noise levels.  Noise impact during night-time is avoided as the fill bank will only be operational from 8:00a.m. to 9:00p.m.

9.2.8        Sufficient water pollution control measures have been recommended based on the guidelines in the Practice Note for Professional Persons (ProPECC PN 1/94) for handling and disposal of construction site discharges.  Precautionary landfill gas and leachate protection measures have been recommended to prevent any unacceptable risk.  

9.2.9        Potential traffic noise and vehicular emission impact from the public fill delivery trucks using the fill bank during the operational phase have been minimised and controlled through the provision of a barging facility onsite to allow the planned Kai Tak barging point to share a truckload of 1,000 vehicles/day in the operation of the fill bank.

9.2.10     Table 9-1 presents a summary on the Noise Sensitive Receivers along Wan Po Road that would be protected from potential truckload noise impact arising from the public fill delivery trucks using the fill bank in the presence of the proposed marine-based transportation route for public fill as an alternative.  

Table 91          Environmental Sensitive Areas and Population Protected

Environmental Nuisance

Environmental Sensitive Areas

No. of Residential Units/ Classroom Protected

Traffic Noise

Residential development along Wan Po Road (Nan Fung Plaza & Oscar by the Sea)

100

 

Institutional uses along Wan Po Road (Leung Sing Tak Primary School)

1

 

 

 


10.            EM&A Requirements and Implementation Schedule of Environmental Mitigation Measures

10.1         Introduction

10.1.1     An Environmental Monitoring and Audit (EM&A) Manual has been prepared under a separate cover as part of the EIA study.  The recommended EM&A programme is only discussed in brief here.  For further details on the EM&A, the Manual should be referred to.

10.1.2     In accordance with the requirements in Section 4.3 of the EIA Study Brief, an Implementation Schedule of the environmental mitigation measures recommended in the EIA study has been prepared in form of a checklist.  The Implementation Schedule is given Appendix 10-1.

  

10.2         EM&A Requirements

10.2.1     The EIA study has recommended a number of environmental control and mitigation measures. The recommended EM&A programme will allow the implementation and environmental performance of the environmental control/ mitigation measures to be checked. 

10.2.2     Monitoring can be defined, in brief, as the systematic collection of data through a series of repetitive measurements.  It will involve the measurement of specified environmental parameters before the commencement of the fill bank project, and subsequent impact monitoring during the establishment, operation and decommissioning phases of the fill bank.  Environmental audit involves verification of practice and certification of data.  As detailed in the EM&A Manual, the EM&A works shall be undertaken by a project Environmental Team (ET) and audited by an Independent Checker (Environment) (IC(E)).

10.2.3     Based on the findings of the EIA Study, recommendations have been made for implementation of an EM&A programme covering air quality, noise, water quality, as well as landscape and visual aspects.  The carrying out of landfill gas monitoring is also recommended periodically for ground works, in all excavation activities, and works in confined spaces, if any.  Details are summarised in the EM&A Manual.

10.2.4     The environmental factors to be monitored are summarised below for ease of reference.  For further details on the EM&A Programme, the EM&A Manual should be referred to. 

 

Fugitive Dust

10.2.5     The air quality impact assessment revealed that with the implementation of the recommended dust control measures, the mitigated dust levels would meet the relevant dust criteria. It is recommended to undertake monitoring of Total Suspended Particulate (TSP) concentrations during the establishment, operation and decommissioning phases of the fill bank for checking the implementation and environmental performance of the dust control/ mitigation measures implemented by the Contractor.  Event/ Action Plan should be triggered by exceedance of action/ limit levels.  Regular site audits shall also be carried out by the ET and independent audits carried out by the IC(E) to check for the implementation of the recommended air quality mitigation measures.

 


Noise

10.2.6     Given the vast distance separation between the site and the Noise Sensitive Receivers (NSRs), onsite activities at TKO Area 137 are not expected to generate any significant noise impact.  Nevertheless, noise management measures have been recommended in the EIA study as good site practices.  To check for the implementation of these measures, the EM&A programme will include regular site audits by the ET. 

 

Water Quality Monitoring

10.2.7     Currently, CED is implementing a water quality monitoring programme as part of the Contract (CV/97/01) “Tseung Kwan O Port Development at Area 137 Stage 2 - Construction of Seawalls and Reclamation”.  For the duration when the ongoing reclamation works is taking place in parallel with activities at the fill bank, it is considered that the water quality monitoring data obtained for SS, turbidity and D.O. under CV/97/01 can be adopted in establishing the baseline water quality, and for impact monitoring during the establishment and operational phases of the fill bank.  Water monitoring results shall be obtained through CED and reviewed by the Environmental Team (ET) such that the implementation and environmental performance of the mitigation measures implemented can be checked.  Upon completion of the ongoing EM&A programme under the Stage 2 reclamation at TKO Area 137, the Environmental Team shall implement its own water quality monitoring for the fill bank project as described in the EM&A Manual fill bank project.   

 

Landscape and Visual

10.2.8     The contractor appointed to implement the landscape works should have a competent Landscape Architect in the team who should supervise the formation of bunds, hydroseeding and subsequent maintenance operations.  To check for the implementation of the landscape and visual impact mitigation measures, the EM&A programme shall involve auditing on the implementation of the recommended measures during the operation and decommissioning phases of the fill bank by the ET and independently by the IC(E). 

 

Landfill Gas

10.2.9     In addition to the EM&A requirements recommended above, the study has recommended landfill gas monitoring to be undertaken by a Safety Officer/ Supervisor recruited by the site contractor who should be present onsite throughout the periods where there are any excavation activities or works within confined spaces undertaken within/ near the consultation zone of the SENT landfill.

 

10.3         Implementation Schedule of Environmental Mitigation Measures

10.3.1     An Implementation Schedule has been prepared for the environmental mitigation measures recommended in the EIA study in the form of a checklist.  The Implementation Schedule is as shown in Appendix 10-1.


11.            Overall conclusion

11.1         Introduction

11.1.1     An Environmental Impact Assessment (EIA) has been conducted to address all key environmental issues associated with the establishment, operation and decommissioning phases of the proposed fill bank development. The assessments were carried out based on the requirements of the EIA Study Brief (Brief No.: ESB-083/2001) issued by the Director of Environmental Protection (DEP).

11.1.2     The Government identified that there will be significant shortfall in public filling capacity from October 2002 to 2005, and proposed to establish and operate a temporary fill bank at Tseung Kwan O (TKO) Area 137 after a site selection process.  With consideration on site availability, minimum site area requirement, site accessibility, distance separation from nearby sensitive receivers, and surmountable extent of the potential environmental and traffic impact associated with the public fill delivery trucks using the fill bank, TKO Area 137 was identified to be the suitable site.  The ex-Kai Tak airport was considered as an alternative site in the comparison but cannot meet the site availability requirements as contaminated land remediation works have been taking place and construction/ demolition works have been planned to take place from 2003 for future developments under the South East Kowloon Development Scheme.

11.1.3     Without the proposed fill bank at TKO Area 137 to provide an outlet for temporary storage of public fill.  It may be inevitable that the reusable, inert material would have to be disposed of at landfills.  The three strategic landfills were carefully prepared and operated for disposal of degradable wastes and the landfills are provided with impermeable lining systems, leachate and gas control systems.  The landfill space is expensive and running out far more rapidly than originally planned.  The disposal of public fill at landfills should therefore be avoided as far as possible.   Increase in incidences on illegal dumping of C&D materials would also the concern in the absence of sufficient public filling facilities.

    

11.2         Key Environmental Issues

11.2.1     The key environmental issues studied in the EIA include air quality, noise, water quality, landfill gas hazard and landscape/ visual impact.  Quantitative assessments, and where appropriate semi-quantitative or qualitative assessments have been carried out to assess the extent of potential impact.  Mitigation measures have been recommended, where necessary, to alleviate all identified environmental impacts associated with the establishment, operation and/or decommissioning of the fill bank to acceptable levels.  The conclusions for each of the assessed environmental aspects are summarised below.


11.3         Air Quality Impact

Dust Emission Impact Assessment

11.3.1     Potential dust emission impact during the operation and decommissioning phases was identified to be the focus of the air quality study.  Truck movement on haul roads within the site was identified to be the key contributor to potential dust impact.  The contractor shall be required to strictly follow the dust control requirements as stipulated in the Air Pollution Control (Construction Dust) Regulation.

11.3.2     To protect the nearest Air Sensitive Receiver (ASR), TVB Broadcast and Production Centre from potential dust impact, a buffer zone of at least 100m will be maintained between the edge of the stockpiling area and the boundary of the production centre.  As stockpiling activity will proceed from the southern to the northern side of the site, and the northern part of site will not be available for storage of public fill until January 2004, the buffer distance maintained between the stockpile and the ASR would be maximised and more than 100m for most of the time.  

11.3.3     During the establishment of the fill bank, it is recommended that a site hoarding of 2.4m high (from ground level) shall be erected along the northern side of the site boundary except at the site entrance/ exit location.  All designated haul roads, especially those lying within 100m of the site boundary shall be paved with concrete, bituminous materials, hardcores or metal plates and regularly maintained.  Work areas where excavation or earthmoving activities are carried out shall be sprayed with water or a dust suppression chemical.  Any temporary stockpiling of excavated material generated from the establishment works shall be covered by impervious sheeting or sprayed with water or a dust suppression chemical.  With the dust control measures implemented, potential dust impact during the establishment phase is not expected to be a concern.

11.3.4     Any works that involve the stockpiling of dusty materials are regulated under the Air Pollution Control (Construction Dust) Regulation as regulatory work.  Sufficient dust control measures have been recommended for implementation during the operation through the decommissioning of the fill bank.  Truck speed should be limited to within 10km per hour.  Vehicle washing facilities should be provided.  Material transfer and stockpiling activities shall be monitored to ensure that fugitive dust emissions are minimised.  The portions of site allocated and maximum allowable stockpiling height designed by the project engineers in the daily operation of the fill bank shall be strictly followed.  Stockpiled material shall be compacted and shall not result in segregation, erosion or instability.  Surface protection measures recommended to minimise dust emission shall be implemented.  During the decommissioning phase, the public fill delivery trucks carrying dusty load leaving the fill bank shall be required to cover the vehicle load entirely by clean impervious sheeting before leaving the site to ensure that the dusty material would not leak from the vehicles which is a measure required under the regulation.

11.3.5     The air quality modelling results revealed that with the implementation of the recommended dust control measures required under the Regulation, the potential dust impact at all nearby Air Sensitive Receivers (ASRs) will be controlled to within acceptable levels.  The implementation of the recommended dust control measures during the establishment, operation and decommissioning phases of the fill bank will be checked through the recommended Environmental Monitoring and Audit (EM&A) programme.

 


Vehicular Emission Impact Assessment

11.3.6     The vehicular emission impact assessment covers the ASRs situated within 500m radius of the project site but have also been extended to include other ASRs along Wan Po Road covering a vast distance of more than 4.3km from the boundary of the fill bank site.  The vehicular emission impact assessment revealed that taking into consideration the cumulative effect from aerial industrial emissions in the area, vehicular pollutant emissions from the trucks using the fill bank will unlikely pose any significant air quality impact on the nearby ASRs along Wan Po Road.  The relevant Air Quality Objectives will be satisfied.

 

11.4         Noise Impact Assessment

Noise from trucks using the Fill Bank along Wan Po Road

11.4.1     In general, the noise impact assessment covers the NSRs situated within 300m radius of the project site but have also been extended to include NSRs located along Wan Po Road.

11.4.2     The fill bank will not be in operation during night-time so that potential truckload noise impact during this time period is not a concern. Potential daytime truckload noise impact on Noise Sensitive Receivers (NSRs) along the existing Wan Po Road arising from the public fill delivery trucks using the fill bank was identified to be the focus of the noise impact assessment. 

11.4.3     Truckloads using the proposed fill bank would only be high during the non-peak hours, and would peak at around 11:00a.m. - 12:00 based on the typical truck arrival pattern in the past operation of the public filling area at TKO Area 137.  As a proactive approach to further minimise the potential traffic noise impact arising from trucks on NSRs along Wan Po Road when they are travelling to/ from the fill bank, CED has planned to establish a barging facility onsite at TKO Area 137 to allow public fill to be transported from the temporary public filling barging point planned at the runway area of the ex-Kai Tak Airport. 

11.4.4     Operation of similar public filling barging facilities by CED in the past indicated that the maximum handling capacity of the barging point at the SEK and TKO Area 137 would be about 1,000 truckloads of material per day.  Making use of the trip-ticket system to divert 1,000 truckloads generated from Government/ public sectors’ work contracts in the Kowloon Districts and part of the New Territories to the South East Kowloon (SEK) barging point as a traffic noise mitigation measures will enable the average daily truckloads on Wan Po Road to be reduced from 2,000 vehicles per day to 1,000 vehicles per day. 

11.4.5     The traffic noise impact assessment assessed the worst-case mitigated maximum truckloads of 1,500 vehicles per day on Wan Po Road as a conservative approach taking into consideration possible daily variation in truckloads.  The assessment results revealed that during all three representative scenarios (i.e. A.M. peak hour, P.M. peak hour and fill bank peak hour), the mitigated overall noise levels at most NSRs would be within the traffic noise criteria of L10(1-hr) 70dB(A) and L10(1-hr) 65dB(A) for residential units and schools, respectively.  Where the overall noise levels were predicted to be above the relevant traffic noise criteria at a few NSRs that are located in close proximity to the existing Wan Po Road, the exceedance was identified to be a result of the dominant background noise from the existing traffic on Wan Po Road.  To these NSRs, the mitigated noise contribution attributable to the fill bank operation at TKO Area 137 was identified to be less than 1.0dB(A), which is considered insignificant.

11.4.6     Vehicles dispatch rate from the fill bank will be limited to a maximum of 200 vehicles/day during the decommissioning phase (from January 2005 to December 2007).  This limited traffic generated from the fill bank decommissioning will not generate any significant traffic noise contribution on the existing and planned NSRs along Wan Po Road.  

 


Construction/ Fixed Noise Impact

11.4.7     Quantitative assessments confirmed that construction noise impact during the establishment period of the fill bank, as well as fixed noise impact during the operation and decommissioning were not key concern due to the great distance separation.  Nevertheless, good site practices and noise management measures have been recommended for implementation during the establishment, operation and decommissioning phases. The implementation of these measures by the Contractor shall be checked by the recommended Environmental Monitoring and Audit Programme.

 

11.5         Water Quality Impact Assessment

11.5.1     The water quality impact assessment identified the sources and evaluated the extent of potential water pollution associated with the land-based activities during the establishment, operation and decommissioning of the fill bank.  Proper measures forming the Best Management Practices (BMPs) have been recommended for implementation.

11.5.2     Existing trapezoidal channels, sand/ de-silting traps and realigned drainage and water pollution control facilities shall be provided and used at the fill bank.  The recommended buffer distances between the stockpiling area or C&DMSF and the waterfront shall be maintained.  The slope surface protection measures recommended shall be followed. The temporary storage area for sorted C&D Material at the C&DMSF shall be at least enclosed on three sides.  Wheel washing facilities at the site exits shall be used and maintained.  Sewage from toilets should be discharged into foul sewer or chemical toilets should be provided.  Effluent discharge from the fill bank shall meet the requirements specified in the Technical Memorandum issued under the Water Pollution Control Ordinance.  Water pollution control measures recommended for activities associated with the transportation of public fill by barges should be followed.

11.5.3     With the implementation of the recommended water pollution control/ mitigation measures, the establishment, operation and decommissioning of the fill bank will unlikely pose any unacceptable marine water quality impact.

 

11.6         Landfill GAs Hazard Assessment

11.6.1     A site area of about 21 hectares in the north-eastern side of the site is lying within the 250m consultation zone of the South East New Territories (SENT) landfill.  A qualitative risk assessment has been carried out following the “Source-Pathway-Target” model presented in the Landfill Gas Hazard Assessment Guidance Note.

11.6.2     The site area situated within the SENT landfill consultation zone will be occupied by site haul road, public fill stockpiling area and buffer area and surface channels.  No underground structures, drainage and sewerage systems including underground pipelines and chambers are planned within this area.  Site offices will be located outside the SENT landfill consultation zone.  A container office at the entrance situated within the SENT landfill consultation zone will be supported by a raised hollow platform to avoid accumulation of landfill gas beneath the container.  Members of the general public will have restricted access to the site. Based on the “Source-Pathway-Target” model, the risk category was assessed to be Low.  Landfill gas (LFG) and leachate precautionary/ protection measures including an action plan triggered by LFG monitoring have been recommended.  

 


11.7         Landscape and Visual Impact Assessment

11.7.1     The existing quality of the Landscape Character Area at TKO Area 137 is low, being a newly reclaimed area with no landscape resources of value. With the implementation of the recommended mitigation measures in form of fill bank design and slope treatment, the Significance Threshold of Landscape Impact will be reduced during the operation phase from moderate/significant to slight/negligible and during the decommissioning phase from slight/negligible to negligible.

11.7.2     With the implementation of the recommended mitigation measures in form of fill bank design and slope treatment, the Significance Threshold of Visual Impact will be reduced during the operation phase from moderate/significant to slight/negligible impact. During the decommissioning phase, the Significance Threshold of Visual Impact will be reduced from slight/moderate to slight/negligible impact.

11.7.3     In conclusion, it is considered that the proposed fill bank at TKO Areas 137 will be acceptable with mitigation from a landscape and visual viewpoint.

 

11.8         Other Environmental Factors

11.8.1     As TKO Area 137 is a reclaimed land, there is no cultural heritage concern onsite.  Junk Island House Ruin on Fat Tong Chau is located to the north of the project site.  While there will not be any construction works offsite at Fat Tong Chau under the project, a 2.4m high site fencing will still be erected along the northern site boundary abutting Fat Tong Chau to avoid any accidental disturbance of the cultural heritage site by the workers.  Besides, a buffer zone of at least 10m will be provided along the eastern boundary of the site to separate the work areas of the fill bank from the western boundary of the adjacent Clearwater Bay Country Park.

 

11.9         Overall Conclusion

11.9.1     All key environmental issues associated with the establishment, operation and decommissioning of the proposed fill bank have been identified, assessed and mitigation measures, where required, recommended in accordance with the requirements of the EIA Study Brief and the EIAO-TM.   The impacts were identified to be either within acceptable levels, or where mitigation measures are necessary on specific environmental issues, the mitigated environmental impacts are within acceptable levels.