APPENDIX
A11.1
TEST PITS RESULTS AND
CROSS-SECTION DRAWINGS










Details of catalogued
buildings and structures in the Spur Line Study Area.
Pun
LMC-99-01 Horseshoe
shaped Fung Shui shrine. Concrete slabs and stone rubble construction. Bricks
set in concrete acting as incense holder.
LMC-99-02 Two
traditional style terraced village houses (one an end terrace). The front
portion of the structure has been covered by a flat roof. The rest of the interiors
are relatively unaltered. The main roof on the end terrace is traditional and
contains a decorative ridge. The canopies above the doors contain geometric and
floral patterns and are in moderate condition.
LMC-99-03 Two
traditional style terraced village houses (mid-terrace). The front portions of
the houses have been covered in flat roofs. The main pitched roofs have plain
concrete ridges. Interior access was not possible. Decorative canopies over main entrance
way and friezes are in moderate condition.
LMC-99-04 Four
traditional style terraced village houses. The front sections of the structures
are not roofed. There are traditional ridged roofs over the main living areas
of the houses. Each door retains its canopy in moderate condition. Friezes
along front wall faded and left side wall, plain.
LMC-99-05 Abandoned
house approximately eighty years old. Two storey detached structure with
extension on right. Pilasters on either side of façade with moulded capitals.
Family was not associated with the Pun village.
LMCC-99-06 Ruins of rectangular
structure, red brick, metal roof. It is attached to metal shed at eastern end.
LMC-99-07 Mud brick
and red brick building, covered in concrete. Wooden door and lintel, stone slab
at threshold.
LMC-99-08 Two
traditional style terraced village houses (end terrace). Small mud brick and
green brick extension on front left hand portion of structure. Rear traditional
style pitched roof on left hand structure with well preserved roof ridge.
Canopy and frieze have floral motifs, but are faded.
LMC-99-09 Traditional
style terraced village house (end terrace) doorway is located on the left hand
wall of structure, possibly an alteration to original layout. Structure is
abandoned and less modernised than many of the other structures in the village.
The front portion of the structure is partially covered by two roofs, leaving
an open area in the middle. There is a brick hearth in the kitchen. To the left
of the structure there is a concrete patio, incorporating a number of reused
cut stones.
LMC-99-10 Traditional
style terraced village house (end terrace) altered and incorporated into
neighbouring structures. Canopy over main entrance way. Rear portion of roof
traditional pitched roof.
LMC-99-11 Fung Shui
shrine (one of an associated pair). Large concrete enclosure with a natural
oblong stone and piece of coral set into the concrete. Brick covered in
concrete incense holder. Burner with grate at right front of enclosure.
LMC-99-12 Ancestral
Shrine to all Pun ancestors (one of an associated pair). Three sided concrete
structure with concrete incense holder and small brick water trough in front.
LMC-99-13 Earth god
shrine consisting of wooden and cloth placards braced up against bamboo trees.
LMC-99-14 Abandoned
temple/nunnery associated with Pun Uk Tsuen, but located to the west of the
village. The building is constructed of green brick with a front entrance way/
courtyard/side halls and a main hall behind. The structure is in very poor
condition and a close internal inspection was not possible for safety reasons.
The roof has collapsed and the ruins are covered in vegetation.
Chau
Tau (Figure
L12)
LMC-99-15 Rectangular
green brick structure, with replacement red bricks in places. Modern roof.
Interior divided into animal enclosures. Two double panel wooden doors. Dated
to pre-1950.
LMC-99-16 Ruin of a
two part structure, attached to the left hand side of a modern structure. Wall
fragments are a combination of green brick, red brick and mud brick. Usage and
age indeterminate.
LMC-99-17 Remains of
a rubble stone and mud brick structure, roof remnants present. Interior heavily
overgrown with vegetation.
LMC-99-18 Fung Shui
wall made of green bricks with stone slabs in front. There is a narrow shelf
running lengthways across the wall about half way up. There is a stone slab
directly in front of the wall and a stone container to the right of it.
LMC-99-19 A small
cannon. The barrel of the cannon has been filled with cement. A local informant
noted that the cannon was used against other villages over a century ago.
LMC-99-20 Shrine at
the base of a large tree. It consists of a stone incense holder placed on a
concrete slab. There are wooden slats with paper inscriptions nailed to the
tree base (to the right and left of the incense holder).
LMC-99-21 Modern
replacement of a study/ancestral hall.
LMC-99-22 Village
well and shrine. Cut stone well
with modern concrete enclosure and shrine.
LMC-99-23 Green brick
domestic structure, too heavily altered to detect original style. Pitched roof
to rear of structure covered in tar paper. Rear wall has brick and tile eaves.
LMC-99-24 Traditional
style terraced village house. Double panel wooden door with decorated canopy in
good cndition.
Rear section of structure covered by pitched roof with ornate ridge.
LMC-99-25 Traditional
style terraced village house (end terrace). Has been modernised. The roof is
pitched and has an ornate roof ridge. There is a decorated canopy over the
front door in moderate condition.
LMC-99-26 Traditional
style terraced village house (end terrace). Is currently being used as a
residence and has been modernised. The roof is pitched with no ridge. There is
a decorated canopy over the front entranceway in moderate condition.
LMC-99-27 Two
traditional style terraced village houses (left hand one an end terrace). The
pitched roofs over the main portion of the structures have ornate ridges. The
friezes and canopies are in very poor condition (the structures are located
next to a building site and are being used for storage).
LMC-99-28 Green brick
structure (traditional style terraced village house, modified) with red
replacement bricks in places. Pitched roof of concrete. Decorative canopy over
front doorway.
LMC-99-29 Traditional
style terraced village house (end terrace). Decorated roof ridge, pitched roof.
Decorative ridge on pitched roof. Stone lintel over front door and decorative
canopy. Structures LMC-99-29 through 32 are all due to be demolished in the
immediate future.
LMC-99-30 Traditional
style terraced village house. Decorative ridge on pitched roof. Stone lintel
over front door and decorative canopy.
LMC-99-31 Traditional
style terraced village house. Decorative ridge on pitched roof. Stone lintel
over front door and decorative canopy.
LMC-99-32 Traditional
style terraced village house. Decorative ridge on pitched roof. Stone lintel
over front door and decorative canopy.
LMC-99-33 Traditional
style terraced village house (end terrace). Decorative ridge on pitched roof.
Stone lintel over front door and decorative canopy.
LMC-99-34 Domestic
structure with extension. Brick has been whitewashed. Age is probably pre-1950,
questionable.
LMC-99-35 Green brick
structure, free-standing. Modified and currently used for storage. Age
indeterminate.
LMC-99-36 Row of four
terraced structures, overhanging roof supported by four pilasters with wooden
beams. Brick walls with concrete coating. Stone foundations.
LMC-99-37 Two sheds
currently used for storage. Brick and mud brick walls with modern roofs. Age
indeterminate.
LMC-99-53 Traditional
style terraced village house (end terrace). Traditional pitched roof with
decorative ridge. Canopy and frieze in poor condition. Large cut stone lintel
over doorway.
LMC-99-54 Rectangular
building constructed of various types of brick. Tile and metal roof. Wooden
door and lintel, pisé material above the door.
LMC-99-55 Two
traditional style terraced village houses. The front façade has mortar with
painted green brick pattern over real green bricks. Stone lintels and
thresholds and wooden doors. Decorative canopies over each door.
LMC-99-56 Modern Tse
Tong.
LMC-99-57 Traditional
style terraced village house (end terrace). The front façade has mortar with
painted green brick pattern over real green bricks. Stone lintel and threshold
and wooden door. Decorative canopy over the door.
LMC-99-58 Ruin of a
mud brick structure. It is heavily overgrown with vegetation. Roof has
collapsed, but rounded support timbers are still visible. Age is pre-1950.
LMC-99-59 Three traditional
style terraced village houses. Traditional pitched roofs with decorative ridges
over main portion of buildings and flat roofs over front. Decorative canopies
and friezes present. Stone lintels and doorsteps in main entrances.
LMC-99-60 Renovated (1969
on parapet) traditional terraced village house. Details of unrenovated portions were not
accessible.
Yin
Kong
(Figure L13)
LMC-99-61 Courtyard
terrace house with modernised façade. Rear wall original green brick. Modern
windows and front roof. Rear pitched roof is tile and concrete. Over 100 years
old.
LMC-99-62 Courtyard
terrace house, bricks covered with cement over a foundation of large stone
blocks. Stone frame, lintel and threshold. Decorated parapet on front. Over 100
years old.
LMC-99-63 Courtyard
terrace house, green bricks on cut stone block foundation (three courses).
Decorated frieze on front and rear walls. Small structure attached to left hand
side of building and adjoined to next terrace was used as a room for elderly
family members. Over 100 years old.
LMC-99-64 Courtyard
terrace house, green brick on large cut stone blocks (three courses). Frieze
under eaves, poor condition. Moulding under eaves, above frieze. Over 100 years
old
LMC-99-65 Courtyard
terrace house, green brick walls over large cut stone foundation (three
courses). Stone lintel, frame and threshold. Frieze in very poor condition.
Over 100 years old.
LMC-99-66 Courtyard
terrace house, renovated façade. Moulded frieze with paint. Over 100 years old.
LMC-99-67 Fung Shui
shrine. Concrete platform, set around a large tree. Stones set into the
concrete.
LMC-99-68 Inscribed
stone rectangular in shape and inscribed with a Buddhist Blessing.
LMC-99-69 Large earth
god shrine. Pebble concrete material with incense burner. Burner to the right
of the main shrine. Reused stone slabs set into circular concrete platform.
LMC-99-70 Remains of
village wall, a) north/south orientation, circa six metres in length, b) east
west running section, covered in concrete and associated with fung shui walls.
Originally eight to nine feet tall and built of pisé. Over 100 years old.
LMC-99-71 Terrace
house, single pitched roof. Green brick in corners and façade. The rest of the
walls are of coarse mud fabric, as family could not afford full brick
construction.
LMC-99-72 Highly
altered green brick structure, sheet metal on front. Original Portions over 100
years old.
LMC-99-73 Ruins of a
village house. Green brick façade with stone lintel and remains of canopy.
Interior overgrown. Age over 100 years old.
LMC-99-74 Courtyard
terrace house. Modernised, but following traditional patterns (geometric
motif). Over 100 years old.
LMC-99-75 Three
courtyard terrace houses. Modernised façade. Some original sections of green
brick on rear walls. Over 100 years old.
LMC-99-76 Courtyard
terrace house (end terrace). Modern façade. Sides have green brick walls with
stone corner slabs.
LMC-99-77 Fung shui
wall separating the area of the servants and workers quarters from the rest of
the village.
LMC-99-78 Ruin of a
village house, green brick façade set on stone foundation, (three layers of brick can be seen with
pisé layer as well). Orange sandstone foundation stone under doorway and carved
one at right hand corner (now unattached).
Over 100 years old.
LMC-99-79 Two
terraced courtyard houses (left end terrace). Renovated facades in traditional
style. Stone thresholds in both doorways.
Pitched roof has decorated ridge in poor condition. Over 100 years old.
LMC-99-80 Ruins of
courtyard terrace house, end terrace. Portions of green brick front and rear
walls. Orange sandstone at right hand corner foundation.
LMC-99-81 Two
courtyard terrace house, left end terrace.
Green brick walls, concrete covered in places. Canopies in very poor
condition. Pitched roof with decorated ridge.
LMC-99-82 Courtyard
terrace house. Green brick corners, remaining wall are made of a very strong
mud, egg and grain mixture that is known as 'gold wrap silver'. It can be
distinguished from the coarse mud fabric by its fineness and strength.
LMC-99-83 Three
courtyard terrace houses. Green brick walls. The left end wall and front right
hand wall have moulded fish shaped, drainage water spouts just below the
frieze. Very elaborate frieze design, painted and moulded.
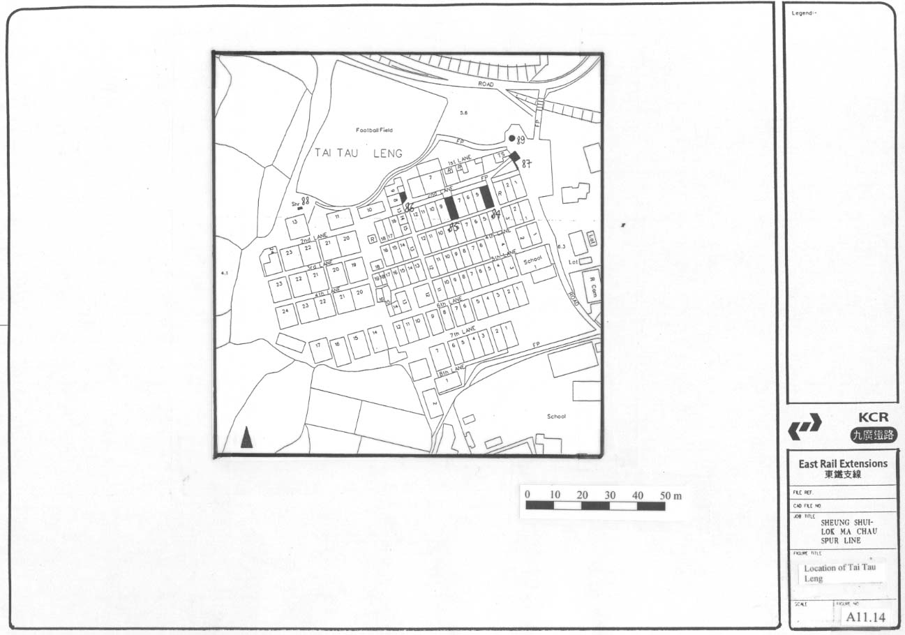
Tai
Tau Leng (Figure
L14)
LMC-99-84 Courtyard
village house. Green brick front and corners, coarse mud fabric on side walls.
Canopy over front entrance, birds and floral with inscription. Only historical house left in village.
Over one hundred years old.
LMC-99-85 Ruin of a
village house. Small portion of front green brick wall, only remaining feature.
Age not discernable, probably c. 1900.
LMC-99-86 Rear
extension on modern structure. Green brick walls, filled in window. Age not
discernible, probably c. 1900.
LMC-99-87 Village
gate and remnants of original village wall. The gate is completely modern. The
wall remnants are of green brick and are found on either side of the gate. Wall
remnants are over 100 years old.
LMC-99-88 Modern
Earth god shrine with fung shui wall behind. Concrete and mosaic tiled platform
with incense burner.
LMC-99-89 Eight sided
well with shrine. Shrine is of modern construction.
Tsung
Pak Long (Figure
L8)
LMC-99-90 Green brick
gate house. Pitched roof with plain ridge. Shrine inside. Wooden door frame and
loft inside. Pre-1900 in date.
LMC-99-91 Two
terraced village house with single pitched roof. Green brick walls on front and
back. Side walls are of coarse mud fabric with corners of brick. Flat plaster
decoration above front doorway, Frieze, indiscernible on front and gable.
Pre-1900 in date.
LMC-99-92 Two
terraced village houses with single pitched roof. Green brick front and rear
walls. Coarse mud fabric on side walls. Two very ornate canopies over doorways.
Frieze decorations on gable and front wall. Over 100 years old.
LMC-99-93 Terraced
village house with single pitched roof.
Green brick wall on front, coarse mud fabric on side and rear. Very well
preserved canopy over door with moulded animal figures in excellent condition.
Over 100 years old.
LMC-99-94 Terraced
village house, end terrace. Rear extension with balcony on first floor
(corbelled balustrade). Small remnant of canopy still evident over front
doorway. Over 100 years old.
LMC-99-95 Tse Tong of
village. There are five rooms, one for each of the clans of the village, Wong,
Kan, Lau, Kwong and Chan. Two rooms to the left of a gate entranceway and three
to the right. Building materials vary, second from the right is of original
green brick. Over 100 years old.
LMC-99-96 Small green
brick structure wedged in between two modern buildings. Modern roof and front
door.
LMC-99-97 Small
shrine, modern concrete walls and incense holder. At base of large tree.
LMC-99-98 Modern
concrete Earth god shrine. Large and ornate concrete (pebble work) enclosure
with burner and incense holder.
LMC-99-99 Two
terraced village houses. Single pitched roof, with modern repairs. Friezes
under eaves, front and side. Modern doors. Green brick and mud brick walls.
Over 100 tears old.
LMC-99-100 Ruin of a village house,
foundation and one wall corner remaining. Stone threshold and entrance slab
still visible.
LMC-99-101 Terraced village house
with single pitched roof. Painted friezes on front and side wall (very faded).
Canopy with floral motif over front door. Over 100 years old.
LMC-99-102 Ruin of village house,
mid terrace. Green brick front wall, coarse mud fabric on rear. Entrance way
bricked in. Remains of timber and tile roof.
LMC-99-103 Two terraced courtyard
houses, right end terrace. Left hand portion has canopy and frieze on front
wall, right hand one is modern. Very large cement like bricks on exterior side
walls, green brick on front. Pre-1950 in age.
LMC-99-104 Village house with
single pitched roof (tile and cement). Brick walls, lower course covered in
plaster. Left hand wall at back has a Buddhist blessing inscribed on black and
red plaque. Over 100 years old.
LMC-99-105 Long rectangular green
brick building with mud brick extension on the left side. There is a wooden
loft supported by timbers, running down the length of the interior from c. 1
metre back from entranceway. Three windows, two with built in brick grilles.
LMC-99-106 Five sided well with
shrine. The well is brick lined with indentations just below ground level. The
shrine has a stone set in concrete and an incense holder.
LMC-99-107 Reused cut stone blocks
(5), that have been set in concrete to form a shrine (altar), attached to the
side of a recent structure. There is an incense holder on top.
LMC-99-108 Remains of original
gate and paving stones (over 100 years old). Only the base of gate remains,
stone slabs now set in concrete and paving stones leading into village.
LMC-99-109 Courtyard terrace
house. Tile and concrete roof. Wooden door and gate. Decorative roof ridge.
Over 100 years old.
LMC-99-110 Courtyard terrace house
with decorative roof ridge. Moulded canopy and frieze on front wall. Over 100
years old.
LMC-99-111 Courtyard terrace house
(mid). Front wall is green brick (no access to rear). Canopy above wooden door,
Moulded decoration with eight-sided yin yan symbol as central motif. Over 100
years old.
LMC-99-112 Courtyard terrace house
(renovated, front panel with 1963 date). Right hand wall is green brick with
plain frieze. Over 100 years old.
LMC-99-113 Terraced village house.
Pitched roof, ridge style not visible. Friezes under eaves, faded and motif
indiscernible. Over 100 years old.
LMC-99-114 Courtyard terrace
house. Green brick front and rear walls with coarse mud fabric mortar. Interior
is relatively unaltered, red wooden partition in interior. Over 100 years old.
LMC-99-115 Chan's ancestral hall.
Large compound with entrance way section at front and two posterior rows of
buildings. Entrance is elaborate with very large cut stone door frame and
sliding wooden door gate in excellent condition. Gate house at entrance way has
shrine and decorative painted friezes in interior. Dates to late Qing dynasty.
LMC-99-116 Green brick shrine with
green brick burner block at front right. Elaborate sides in a wok yee gable
style. Modern cut stone enclosure around shrine.
LMC-99-296 Well. Circular concrete
enclosure. Square well aperture with cut stone slabs set into the concrete.
Ho
Sheung Heung (Figure
L5)
LMC-99-117 Yuen Lam Dai. Green
brick structure with yellow painted façade. Granite corner blocks and base on
side wall. Pre-1950.
LMC-99-118 Domestic residence
constructed of green bricks. Wooden door and frame, stone threshold. Moulded
frieze under eaves. Pre-1950.
LMC-99-119 Gate made of red and
green bricks. Entrance way has stone lintel and red sandstone blocks with
rounded corners. Round perforations above entranceway. In very poor condition.
Over 100 years old.
LMC-99-120 Courtyard house next to
Hau ancestral hall. Green brick walls with concrete around foundation courses.
Stone threshold and lintel. Wooden double panel door. Canopy, floral with
animal figures in poor condition. Over 100 years old.
LMC-99-121 Hau ancestral hall.
Green brick structure with inset entranceway. Painted panels under eaves at
front. There are substantial green brick ruins behind this structure and the
residence beside it (LMC-99-120). Over 100 years old.
LMC-99-122 Ruins of a red and
green brick structure. Interior overgrown with vegetation. Pre-1950 in age.
LMC-99-123 Ruins of a courtyard
house, in very poor condition, but with many original features still visible.
Pre-1950 in age.
LMC-99-124 Ruins of a single room
structure. Brick walls remaining, doorway elements still visible, remains of
plaster on interior walls. Pre-1950 in age.
LMC-99-125 Courtyard house. Modern
metal door with traditional canopy. Stone threshold and lintel. Blessing
inscription on back wall. Pre-1950 in age.
LMC-99-126 Courtyard house.
Renovated. Few original features. Pre-1950 in age.
LMC-99-127 Ruin of a group of
buildings. Mixed brickwork. Possible animal pens or storage. Pre-1950 in age.
LMC-99-128 Four courtyard terrace
houses. Right hand structure only one with original brick façade. Left hand and
third structure from the left have canopies. Pre-1950 in age.
LMC-99-129 Five courtyard terrace
houses. From left: green brick, green brick, modern façade, modern façade and
green brick. Pre-1950.
LMC-99-130 Village house. Beige
and grey bricks. Heavily altered from original form and in very poor condition.
LMC-99-131 Ruins of a courtyard
terrace house. Green brick façade. Interior totally overgrown and containing
collapsed building parts, i.e. door, roof timbers, etc. Pre-1950 in age.
LMC-99-132 Four courtyard terrace
houses with small extension on the right. Rough stone foundation with green
brick walls. The buildings are in very poor condition, but two are still
obviously still in use as ancestral shrines, i.e. they have altars and fresh
offerings. Pre-1950 in age.
LMC-99-133 Six courtyard terrace
houses. Left two, some original features, middle two, heavily altered and right
two, ruinous and abandoned.
LMC-99-134 Four courtyard terrace
houses. The brickwork has been painted and the exteriors modified. Pre-1950.
LMC-99-135 Two courtyard terrace
houses. Left hand one, green brick, right hand one, modern façade. Stone
threshold and pivots. Pre-1950.
LMC-99-136 Ruins of structure,
wall only remaining. Grey brick with coarse mud fabric.
LMC-99-137 Two green brick
courtyard houses. Left hand structure has moulded canopy and façade painted to
look like brick work. Right hand structure is green brick. Pre-1950 in age.
LMC-99-138 Village house,
renovated 1969 (on parapet). Painted frieze under eaves at sides. Walls are of
green brick. Pre-1950 in age.
LMC-99-139 Village house. Green
brick walls, pitched roof. Inset entranceway with pilasters on right and left
sides. Addition of reused materials on right hand side.
LMC-99-140 Courtyard terrace
house. Green brick walls with concrete in places. Canopy over front door. Rear
wall has attached incense burners.
LMC-99-141 Courtyard terrace
house with green brick walls, has
been modernised. Wooden door and frame, stone lintel. Over 100 years old.
LMC-99-142 Three courtyard terrace
houses. Stone foundations and green brick. Left hand two have moulded canopies
over doorways.
LMC-99-143 Ruins of courtyard
terrace houses. Walls of green brick with fragments of stone door frame,
canopies and wall frieze. Interior overgrown. Pre-1950.
LMC-99-144 Ruins of a gate. Two
stone slabs in inner doorway. Outer doorway absent. Shrine in north-west corner
with piece of red sandstone. Pre-1950 in age.
LMC-99-145 Ruins of two brick
buildings, probably animal pens. Incorporating reused materials, age uncertain.
LMC-99-146 Concrete modern shrine.
Piece of red sandstone in altar, incense holder in front. Burner to left of
shrine.
Kwu
Tong (Figure
L15)
LMC-99-147 Stone lined channel, c.
30 to 40 years old, but representing traditional construction methods (cut stone).
LMC-99-148 Village residence
dating from 1936 (Yuen family). Was formerly used as a school and is currently
a residence. Three attached structures. Fan shaped gable on right structure.
LMC-99-149 Two graves associated
with the Yuen family house (LMC-99-148) and of similar age.
Sheung
Shui Wai (Man Hau Tsuen) (Figure L1)
LMC-99-151 Courtyard terrace
house. Green brick with modern construction on back. Stone threshold and lintel
in front doorway. Moulded canopy above doorway. Over 100 years old.
LMC-99-152 Courtyard terrace
house. Green brick with canopy over front door and moulded friezes under eaves.
In poor condition, c. 120 years old.
LMC-99-153 Shrine. Stone base and
incense holder. Body painted to imitate bricks. Burner with round hole under
incense holder. Modern and historical building elements.
LMC-99-154 Two courtyard terrace
houses. Green brick with wooden doors and frames. Canopies above both doors,
floral and faunal motifs. Moulding under eaves at front.
LMC-99-155 Courtyard terrace house
(end terrace). Green brick structure approximately seventy years old. Frieze in
poor condition, many modern renovations.
LMC-99-156 Courtyard terrace house
(end terrace). Modern roof and windows. Traces of original decoration below
eaves. Pre-1950 in age.
LMC-99-157 Portion of former
courtyard house incorporated into modern structure. Some decorative features
remain, e.g. moulding under eaves. Pre-1950 in age.
LMC-99-158 Two courtyard houses,
green brick covered with a mud fabric and smoothed on left hand one and
concrete over brick on right hand one. Moulding and friezes present. Pre-1950
in age.
LMC-99-159 Front and rear walls of
green brick only remaining portion of structure. Interior overgrown.
LMC-99-160 Courtyard terrace
house, completely painted, pre-1950 in age. Moulded canopy over front doorway.
Stone threshold and courtyard floor.
LMC-99-161 Ruins of a green brick
and coarse mud fabric structure. Remnants of roof remaining. Pre-1950 in age.
LMC-99-162 Ruins of a coarse mud
fabric structure. Wooden door, frame and lintel. Possibly remains of courtyard
house. Pre-1950 in age.
LMC-99-163 Shrine under a large
Banyan tree. Six sided, red, concrete enclosure around tree. Incense burner and
shrine.
Sheung
Shui Wai (Tai Yuen Tsuen) (Figure L1)
LMC-99-167 Well set in a concrete
square. Shrine in western section, open rectangle in shape.
LMC-99-168 Two courtyard terrace
houses. Both houses have canopies and the left one has a painted frieze on the
front. Pre-1950 in age.
LMC-99-169 Courtyard terrace
house, pisé walls and painted façade to imitate brick work, some green bricks
present in walls. Canopy has been removed. Pre-1950 in age.
LMC-99-170 Two courtyard terrace
houses. Double panel wooden doors and stone thresholds. Green brick facades,
painted. Side wall is pisé. Pre-1950 in age.
LMC-99-171 Ying Lung Ancestral
Hall. Two halls with roofs and open central section. Painted murals under eaves
on the front. Pre-1950 in age.
LMC-99-172 Village house.
Rectangular in shape. Windows with moulded canopies. Single pitched roof of
tile and concrete.
LMC-99-173 Three courtyard terrace
houses. Green brick walls and canopies above the two right hand structures'
doors and friezes on the left hand structures' walls.
LMC-99-174 Three terrace village
houses. Central structure has one wok yee gable. Structures are all heavily
altered except for rear walls, where some original green brick and mouldings
under the eaves remain.
Sheung
Shui Wai (Hing Yan Tsuen) (Figure
L2)
LMC-99-175 Gate of modern
construction, upper storey used as a residence. It originally also incorporated
a study hall in a previous structure on the same site.
LMC-99-176 Two village buildings
of green brick, currently used as residence and for storage. Inset entranceways
with pilasters spaced evenly along the front. Frieze under gable on left hand
side wall. Upper storey has windows all along the front. Age pre-1950.
Sheung
Shui Wai (Po Sheung Tsuen) (Figure L2)
LMC-99-177 Green brick structure,
altered, e.g. door on side of structure, modern style parapet, frieze under
eaves.
LMC-99-178 Shrine, green brick
with stone shelf and an arched alcove. Trough of bricks at foot. Kwun yam
figures sitting on top.
LMC-99-179 Village house, heavily
altered. Green brick with stone threshold. Seventy to eighty years old.
LMC-99-180 Courtyard terrace
house, painted green brick. Wooden door and frame. Canopy above door and
painted frieze (floral and landscape). Seventy to eighty years old.
LMC-99-181 Courtyard terrace
house. Green brick walls, renovated. Frieze along facade.
LMC-99-182 Courtyard terrace
house. Brick painted white, façade altered. Pre-1950 in age.
LMC-99-183 Courtyard terrace style
house. Brick walls painted white. Stone threshold and lintel. Heavily modified.
Possibly of recent construction using older materials.
LMC-99-184 Courtyard terrace
house. Green brick walls. Wooden door and frame. Canopy above door, moulded and
painted (floral, faunal and geometric patterns). Seventy to eighty years old.
LMC-99-185 Courtyard terrace
house. Green brick walls. Wooden double panel door, stone threshold and wooden
lintel. Moulded canopy above door. Frieze on façade is now plain. Fish shaped brackets on the sides of the
canopy. Over 100 years old.
LMC-99-186 Well and fung shui
shrine. Semi-circular enclosure built into a wall. Shrine located in the
enclosure wall.
LMC-99-187 Shrine. Six-sided
enclosure around a large banyan tree. Incense burner built in and burner to the
side. Earth god shrine for the protection of the village nearby. The original
shrine is as old as the village.
LMC-99-188 Courtyard terrace
house. Green brick walls. Stone lintel and threshold. Moulded canopy above
modern front door (floral and faunal pattern). Fung shui mirror on front wall.
Frieze, moulded and painted, front and left walls. Inscribed blessing plaque on
left wall. Over 100 years old.
LMC-99-189 Courtyard house. Modern
façade, green brick side/ rear walls. Frieze under gables, blackened. Modern pitched roof. Extension to back
of side walls. Pre-1950 construction.
LMC-99-190 Two courtyard terrace
houses. Left, pounded earth with painted plaster to imitate brickwork. Stone
threshold. Two painted panels. Right, frieze along front wall, floral faunal
and landscape. Both doorways have canopies above them, flowers and mythical
animals. Seventy to eighty years old.
LMC-99-191 Courtyard terrace house
(end terrace). Cut stone on lower walls on façade. Painted plaster (imitation
brick) over real bricks. Moulded canopy over door with frieze. Over 100 years
old.
LMC-99-192 Shrine of brick and
concrete construction, rectangular in shape with incense holder and altar.
LMC-99-193 Courtyard terrace
house. Green brick walls. Stone threshold and lintel. Wooden door and frame.
Canopy with moulding and paint work. Seventy to eighty years old.
LMC-99-194 Two green brick
courtyard terrace houses. Moulded canopies over both doors and friezes on the
façade. Stone lintel and threshold on left structure, stone lintel on right
doorway. Over 100 years old.
LMC-99-195 Village building,
possibly former study hall. Moulded half pilasters with moulded capitals, under
both eaves. Pre-1950 in construction.
LMC-99-196 Courtyard house. Green
brick walls. Wooden door and frame. Moulded canopy and frieze on façade.
Moulding under eaves. Pre-1950 in date.
LMC-99-197 Two courtyard terrace
houses. Green brick walls, stone lintels and thresholds with modern doors. Fung
shui wall in front of house, green brick with cement and mud fabric. Pre-1950
in age.
LMC-99-198 Well, set in concrete
platform. Small shrine with piece of rock set into altar and incense burner set
into enclosure wall. There is an inscribed stone near entrance of enclosure for
protection of the water's purity.
LMC-99-199 Two to three metre
section of a fung shui wall, green brick, covered in places with plaster. There
are modern walls nearby.
LMC-99-200 Well next to modern
block of flats. Rectangular, concrete enclosure with shrine at far right rear
wall.
LMC-99-201 Shrine at edge of car
park. Six sided enclosure (pink/red in colour and concrete) around a large
banyan tree. Two grinding stones have been incorporated into the design.
Sheung
Shui Wai (Wai Loi Tsuen) (Figure
L16)
LMC-99-164 Two storey gate house.
Brickwork walls with red sandstone slabs around entranceway with arch. Wooden
door and metal gate. Interior is painted to imitate bricks.
LMC-99-165 Village house. 1948
date on parapet at front of structure. Two stories. Brick walls painted.
Extension, possibly modern on right hand side of the building.
LMC-99-166 Industrial building;
use unknown. Two storey building with covered patio. Green brick walls with
pillars and wooden beam under eaves at front. Tile and concrete roof. Pre-1950
in date.
LMC-99-202 Green brick two storey
structure. Ground floor entranceway has wooden door with stone lintel and
threshold and projecting canopy above. Rear is incorporated into village wall.
Pre-1950 in age.
LMC-99-203 Village house, brick
walls (greyish blue in colour). Renovation of façade with parapet and panel.
Age pre-1950.
LMC-99-204 Ruin of a courtyard
terrace house and village house. Green brick walls with stone foundation. Age
pre-1950.
LMC-99-205 Single storey village
building. Walls of coarse mud fabric with plaster. Age pre-1950.
LMC-99-206 Portion of a village
wall, c. 3 metres in height, green brick with apertures in upper section.
LMC-99-207 Ruins of a brick
structure (various colours and types of brick). Roof missing and interior
overgrown. Pre-1950 in age.
LMC-99-208 Village house and shed.
Tile and concrete roof. Wooden door and frame. Age pre-1950.
LMC-99-209 Ruin of a village
house. Green brick walls remaining with wooden beams and door frame fragments.
LMC-99-210 Ruins of a courtyard
terrace house. Green brick walls and heavy coarse mud fabric plaster. Doorway
altered, but moulded canopy intact.
LMC-99-211 Ruins of a courtyard
terrace house and attached shed. Brick walls (mixed types). House pre-1950 in
date.
LMC-99-212 Two courtyard terrace
houses. Canopies over entranceways in poor condition. Renovations on facades.
Pre-1950 in date.
LMC-99-213 Ruins of two structures
constructed of mixed brick types.
Modern alterations (doors and windows). Plain canopy over front doorway.
Age pre-1950.
LMC-99-214 Well. Circular concrete
enclosure around a square well opening. Wall of green brick covered in chu nam.
Shrine in southern section of enclosure.
LMC-99-215 Courtyard terrace house.
Heavily altered on façade with modern awning instead of canopy over front
doorway. Over 100 years in age.
LMC-99-216 Green brick walls.
Wooden door, frame and lintel. Canopy above front entranceway with moulded tile
and concrete canopy.
LMC-99-217 Gate in village wall.
Exterior brick wall is heavily plastered. Window above lintel and filled in
round holes.
LMC-99-218 Village house, two
stories. Decorative panels on façade. Modern additions. Pre-1950 in age.
LMC-99-219 Hung Shing temple.
Completely modern renovation. Two halls and a central courtyard.
LMC-99-220 Original Hung Shing
temple, dating to founding of the village. Green brick walls. Wooden doors
lintel and frame, stone threshold. Decorative ridge on roof, poor condition and
truncated by addition of attached modern structure.
LMC-99-221 Tin Hau temple.
Completely renovated to modern structure.
LMC-99-222 Two storey village
house. Pitched roof with plain ridge. Front doorway with canopy and painted
panels under eaves. Pre-1950 in age.
LMC-99-223 Ruin and village house.
Green brick structure, two stories in height. Ruins of a mixed brick shed.
Pre-1950 in date.
LMC-99-224 Courtyard terrace
house. Double panel wooden door, frame and lintel, stone threshold. Decorative
canopy above front doorway, moulded and painted (animals, tables and fruit).
LMC-99-225 Ruins of a courtyard
house. Green brick walls, remains of tile and concrete roof. Pre-1950 in age.
LMC-99-226 Village house. Façade
is totally renovated and modern. Back wall is green brick. Projecting bricks
under eaves on back wall. Pre-1950 in age.
LMC-99-227 Ruins of a green brick
wall. Mixed construction.
LMC-99-228 Kwun Yum temple.
Completely modern renovation.
LMC-99-229 Village moat. Original
location, but now with completely modern lining, concrete.
LMC-99-230 Reconstructed Qing
shrine and altar. Rectangular enclosure with burner unit.
LMC-99-231
Modern shrine, similar in design to (LMC-99-230).
Tung
Chan Wai (Figure
L17)
LMC-99-38 Shrine. Red
and green brick structure with granite slabs. Inscribed plaque with red
sandstone surrounds the incense burner.
LMC-99-39 Courtyard
terrace house. Green brick walls. Front section still functioning as kitchen.
Wooden door and frame, stone threshold. Pre-1950 in date.
LMC-99-40 Courtyard
terrace house. Green brick walls, wooden door, stone frame, lintel and
threshold. Decorative canopy over door and frieze decorations in poor
condition. Pre-1950 in date.
LMC-99-41 Courtyard
terrace house. Green /bluish bricks. Parapet with 1961 renovation date.
LMC-99-42 Courtyard
terrace house. Green brick stone lintel and threshold, wooden door and frame.
Canopy and panels above front door. Landscape patterns, painted and moulded.
Modernised interior. Pre-1950 in date.
LMC-99-43 Courtyard
terrace house. Green brick walls. Wooden door and frame. Stone lintel and
threshold. Decorative canopy over door in moderate condition. Pre-1950 in age.
LMC-99-44 Courtyard
terrace house. Green brick walls. Wooden door, frame and lintel, stone
threshold. Decorative canopy over front doorway. Pre-1950 in date.
LMC-99-45 Village
house. Single pitched roof with plain ridge. Green brick walls with cut slab
corner stones. Wooden door, frame and lintel, stone threshold. Pre-1950 in
date.
LMC-99-46 Ruins of four
structures, walls and some features remaining, i.e. door and window frames,
thresholds and lintels.
LMC-99-47 Two village houses with tile and
concrete pitched roofs. Green brick walls. Wooden doors and frames, stone
thresholds.
LMC-99-48 Ruins of
two terrace houses. Green brick walls, divided into three rooms.
LMC-99-49 Small green
brick structure with tile and concrete pitched roof. wooden door and frame,
stone lintel and threshold.
LMC-99-50 Three
terraced village houses, approximately seventy to eighty years old. Moulded
frieze under eaves. Doorway of rightmost structure has incense burner.
LMC-99-51 Green brick
village house with granite corner stones. Stone lintel and threshold. Modern
awning over doorway. Pre-1950 in age.
LMC-99-52 Small
structure of coarse mud bricks with sandy mud mixture mortar, thickly
plastered. Concrete pitched roof. Age over 50 years.
LMC-99-232 Ruins of two
structures, grey, green brick walls. Rough stone (rubble) pieces used in wall
footings and corners. Pre-1950 in date.
LMC-99-233 Ruins of pig pens.
Bluish grey bricks. A lot of cut stone pieces in vicinity. Pre-1950 in date.
LMC-99-234 Courtyard terrace
house. Stone in wall footings and at corners. Façade undecorated. Tile and
concrete roof with plain ridge. Pre-1950 in date.
LMC-99-235 Two village houses,
terraced. Over 100 years old. Green brick walls with wooden beams under front
eaves. Stone foundations. Decorative friezes.
LMC-99-236 Two green brick
terraced structures with stone foundations. Wooden doors and frames, stone
thresholds and lintels. Moulding
under eaves at rear of structures. Pre-1950 in age.
LMC-99-237 Two green brick
terraced structures with tall wooden doors. Stone lintels and thresholds.
Pitched tile and concrete roofs. Undecorated exteriors. Pre-1950 in age.
LMC-99-238 Village house, green
brick walls. Tile and concrete roof. Lower walls covered in coarse plaster.
Pre-1950 in date.
LMC-99-239 Two green brick houses.
Pitched roofs of tile and concrete. Façade undecorated. Pre-1950 in date.
LMC-99-240 Village house. Green
brick walls, roughly repaired with cement mixture. Tile and concrete roof with
projecting bricks under eaves. Pre-1950 in date.
LMC-99-241 Two terrace houses of
green brick. Wooden doors, frames and lintels, stone thresholds. Right hand
structure has been heavily repaired. Pre-1950 in date.
LMC-99-242 Two green brick houses.
Modern doors. Plain moulding under eaves. Tile and concrete roofs, pitched. No
other exterior decorations. Pre-1950 in date.
LMC-99-243 Village house with
pitched tile and concrete roof. Round wooden beam under front eaves. Moulded
bracket on right side. Frieze under gable.
LMC-99-244 House (partial ruin).
Green brick walls. Pitched roof, undecorated. Two green brick buildings in
state of collapse are attached to it. Numerous stone blocks in vicinity.
Pre-1950 in date.
LMC-99-245 Two terrace houses. Coarse
green brick walls. Moulding under eaves on left hand structure and projecting
bricks on right hand one. Pre-1950 in age.
LMC-99-246 Terrace courtyard
house. Green brick walls. Moulding under eaves at rear, painted and moulded
frieze at front. Decorative canopy over front entranceway. Sixty to seventy
years old.
LMC-99-247 Three courtyard terrace
houses within a walled compound of green bricks. Decorative roof ridges. Wooden
doors, frames and lintels, stone thresholds. Pre-1950 in date.
LMC-99-248 Tower. Stone foundation
and brick walls. Connected to village wall. Stone lintel and threshold. In a
ruinous state.
LMC-99-249 Ruin of an
indiscernible structure, green brick. Totally overgrown and filled with rubble.
LMC-99-250 An area containing the
ruins of a group of small structures. Only small number of brick wall sections
remaining.
LMC-99-251 Section of original
village wall. Green brick construction, c.1.5 m high and 35 cm thick. Open
sections were gun emplacements according to local informant.
LMC-99-252 Modernised gatehouse in
village wall (two stories). Large red sandstone blocks at inside of doorway.
Stone threshold with pivots. Wooden doors.
LMC-99-253 Village house
(terrace). Around forty to fifty years old. Modernised external features. Painted
plaster under gable.
LMC-99-254 Shed, mud brick
construction. Stone threshold with wooden frame, door and lintel. Pre-1950 in
date.
LMC-99-255 Courtyard terrace
house, over 100 years old. Green brick. Door, frame and lintel of wood.
Projecting bricks under eaves.
LMC-99-256 Double building of
green brick. Wooden door and frame, stone thresholds and step. Pitched roof
with plastered band under eaves.
LMC-99-257 Terrace of six sheds
and small structures in a ruinous state. Green brick walls, undecorated.
Pre-1950 in date.
Yan
Shau Wai (Figure
L17)
LMC-99-258 Green brick shed,
abandoned. Projecting bricks under eaves. Pre-1950 in date.
LMC-99-259 Ruins of four
structures. Mud and green brick mixture. Stone threshold, wooden, door, frame
and lintel. Divided back wall with round timber beam. Pre-1950 in date.
LMC-99-260 Village house and shed.
Green and red brick house, poorly repaired. Tile and concrete roof. Stone
threshold, wooden door, frame and lintel.
LMC-99-261 Two green brick
structures. Tile and concrete pitched roofs. Wooden doors and frames. Cut stone
lintels and frames.
LMC-99-262 Pair of green brick
structures. Pitched roofs of tile and cement. Cut stone lintels and thresholds.
No decorative features.
LMC-99-263 Terrace of ruined houses.
Mud brick and green brick construction. Window with wooden bars intact (second
from right). All abandoned. Pre-1950 in date.
LMC-99-264 Shed of mud brick
construction. Brick doorstep, wooden door. Ruinous state.
LMC-99-265 Small green brick
house, wooden door and frame. Stone threshold. Ceiling beam resting directly on
lintel. Pre-1950 in date.
LMC-99-266 Shed of green brick
construction. Sandstone foundation. Projecting bricks under eaves. Pre-1950 in
date.
LMC-99-267 Terrace of three small
brick houses. Tile and cement pitched roofs. Wooden doors and frames, stone
thresholds. Pre-1950 in date.
LMC-99-268 Village house. Green
brick, with moulding under eaves. Friezes under eaves with painted panels.
Pre-1950 in date.
LMC-99-269 Village house of green
brick construction, modern door and lintel. Projecting bricks under eaves. Tile
and concrete roof. Pre-1950 in date.
LMC-99-270 Green brick structure
with partially plastered walls. Tile and concrete pitched roof. Stone threshold
and two steps with modern door at entrance. Pre-1950 in date.
LMC-99-271 Village house. Green
bricks (greyish/ brown hue). Two stories. Ridged roof with decoration. Stone
threshold, wooden door and frame. Pre-1950 in date.
LMC-99-272 Shrine. Concrete
enclosure Platform with incense burner.
LMC-99-273 Two brick structures,
abandoned. Main structure has a pitched roof. Wooden door, frame and lintel.
Attached shed is in ruinous condition. Pre-1950 in date.
LMC-99-274 Three courtyard terrace
houses in very ruinous state. Green brick walls, with red bricks on interior.
Stone foundation. Decorative canopies above doors in very poor condition.
LMC-99-275 Ruin of a green brick
structure. Completely altered from original form.
LMC-99-276 Ruin of a building with
a green brick façade and mud brick side walls, no roof. Pre-1950 in date.
LMC-99-277 Courtyard terrace
house. Predominantly green brick, with patches of red. Moulded canopy above
modern door. Tile and concrete pitched roof.
LMC-99-278 Moat. Unlined, full of
rubble and debris.
LMC-99-279 Courtyard terrace
house. Ruinous state. Moulded canopy above front doorway. Moulding under eaves
at front.
LMC-99-280 Completely modern Tse
Tong.
Known historical
resources highlighted by the AMO as having particular heritage value and
requiring assessment of potential impacts.
LMC.99
- 282 Liu Man Shek Tong
Ancestral Hall (Man Hau Tsuen,
Sheung Shui)
Main hall of the Liu clan, built in 1751
in Sheung Shui Tsuen. Three hall and two courtyard plan. Original layout altered
in 1932 for use as school (Fung Kai School, 1932-1974). Gazetted; restored
in 1985. There is an open courtyard behind the hall with exit on right. On
corner there is a gatehouse with wok-yee gables. There is also an Earth God
shrine and a well with shrine in the village (Figure
L1).
LMC.99
- 283 Sheung Shui Old Police
Station (Hing Sheung Shui)
Located in Hing Yan Tsuen and currently
being used as the JPC club house. First occupied in 1902. It is a two-storey
structure painted white. There are covered walkways with columns and arches
along the front of the building on both floors. There are ornate mouldings
at the top of the arches and windows (Figure
L2).
LMC.99
- 284 Man Lun Fung Ancestral
Hall (San Tin)
Built in the late 17th c, in Fan Tin in
honour of Man Lung-Fung. Green-brick structure with intricately carved brackets,
granite columns and ornamental articles on the fascia boards. The building
contains three halls and two courtyards. Used formerly as a school and an
office for village patrol. Unusual because spirit tables are housed in the
centre of the hall. Gazetted; repairs in 1982 (Figure
L3).
LMC.99
- 285 Tai Fu Tai Mansion (near San Tin)
Located in Wing Ping Tsuen, San Tin. Built
in 1865 by Man Chung-Luen of the 12th generation. In front is a large courtyard
surrounded by a wall. The building is constructed of granite and green bricks
and is highly decorated. Original kitchen is connected to house by a circular
opening. It is the only remaining Mandarin's house in Hong Kong (Figure
L4).
LMC.99
- 286 Man Shui Yeh Ancestral
Hall (near San Tin)
"Lok To Tong" built to commemorate
Man Shui-yeh, grandson of Man Sai-gor, a Man ancestor. Green brick with 2
halls and a courtyard. Soul tablets in main hall. Fine roof decorations on
ridge including porcelain fish (Figure
L3).
LMC.99
- 287 Ming Yuen Tong Ancestral
Hall (near San Tin)
Located in Fan Tin Tsuen, San Tin to the
left of Lun Fung Man Ancestral Hall. Erected approximately 260 years ago;
renovated 1986. Rich ornaments, granite columns and green brick (Figure
L3).
LMC.99
- 288 Ming Tak Tong Ancestral
Hall (near San Tin)
Modern building erected in 1972 on site
of older structure. Same layout as other halls but all new materials. Only
the granite entrance gate-frame in position in new Hall is old from the original
(Figure L3).
LMC.99
-289 Hau Kui Shek
Ancestral Hall (Ho Sheung Heung)
Located at the northern end of Ho Sheung
Heung and built in honour of Hau Kui-shek in mid 18th c. Traditional pattern
of 3 halls and 2 courtyards. "The building has suffered badly from neglect
and poor maintenance" (Bard 1988) (Figure
L5).
LMC.99
- 290 Sin Wai Nunnery (Ho Sheung Heung)
Green brick complex near the Hung Shing
temple, currently used as a domestic residence. Four main structures, two
with plain pitched roofs and two with decorative ridges (Figure
L6).
LMC.99
- 291 Hung Shing Pui Fung
Temple (Ho Sheung Heung)
Original construction date is unknown. Contains
gong and bell from 18th century. Probably built by Hung clan, no longer in
the area. Most recently renovated in the 1960's. Courtyard contains original
green brick paving (Figure L5).
LMC.99
- 292 Lady Ho Tung Welfare
Centre (Opposite Dill's Corner)
Two structures, one functioning as a clinic
and dispensary, the other used for storage. The buildings are joined by a
roof. The roofs are dark brown in colour and have decorative ridges. The ground
floor has a porch with columns (Figure
L7).
LMC.99
- 293 Bok Man School (Tsung Pak Long)
Brick and concrete structure built in 1963.
Traditional style with class room buildings and offices. Walls are plastered
and painted pale yellow with red trim (Figure
L8).
LMC.99
- 294 Hakka Wai (Tsung Pak Long)
Granite stone foundations with village walls
of solid blue brick; walls could be 3-4 ft. thick and village doors of strong
wooden grilles or iron lattice gates. The layout is symmetrical and axial.
Built by combined efforts of 5 sworn brothers: Kan, Lau Wong, Kwong and Chan.
There is an ancestral hall built for each of them in the village (Figure
L9).
LMC.99
- 295 Lok Ma Chau Police
Station (Lok Ma Chau Hill)
Built in 1915 as replacement of older structure.
It is now a divisional station. Brick and concrete structure,
with original and renovated features. Entrance wall has brickwork in Flemish
bond (Figure L10).