Skip to main content

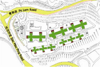
Po Tat Estate

Po Tat Estate 1
Po Tat Estate 2
Category Information
Target of Protection
Residents in Po Tat Estate, Sau Mau Ping
Total Number of Flats
7400
Major Noise Sources
Po Lam Road and Sau Mau Ping Road
Environmental Gain
About 6,150 flats comply with the road traffic noise criterion
Year of Completion
2003
Noise Mitigation Measures adopted:
Building layout/orientation
noise tolerant building
photo of noise tolerant building

Major Noise SourceMajor Noise Source

Target of ProtectionTarget of Protection

innovative layoutInnovative Layout

noise barrierNoise barrier

end wallEnd Wall

Innovative Layout: Noise tolerant portions ( corridors ) are arranged to face the noise source and act as noise shielding structure to protect residents at the back
Noise Reduction: About 10-15 dB(A)
Vertical Barrier
vertical barrier
photo of vertical barrier

Major Noise SourceMajor Noise Source

Target of ProtectionTarget of Protection

innovative layoutInnovative Layout

noise barrierNoise barrier

end wallEnd Wall

Dimension of Barrier: 7m high and 365 m in length
Materials Selection: Transparent panels
Noise Reduction: About 5-8 dB(A)
End Wall
end wall
photo of end wall

Major Noise SourceMajor Noise Source

Target of ProtectionTarget of Protection

innovative layoutInnovative Layout

noise barrierNoise barrier

end wallEnd Wall

End Wall: End wall is arranged to face the noise source
Noise Reduction: About 2-3 dB(A)