Annex 2
Environmental Protection Department, Professional Persons Environmental Consultative Committee Practice Note (ProPECC PN) 1/94
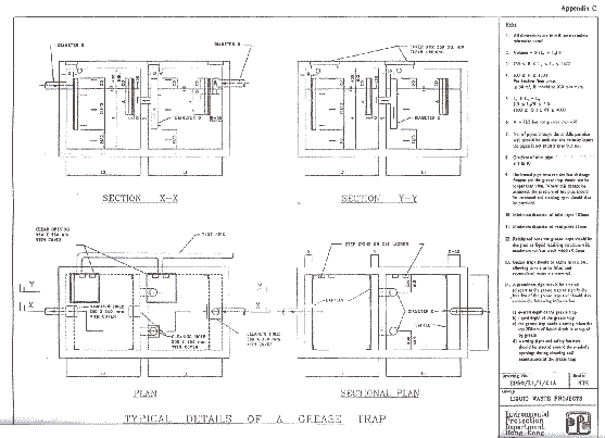
Appendix C - Grease Trap
Grease Traps
(see Drawing No. EP 50/L1/1/01A for typical details of a grease trap)
|
Kitchen Floor Area
|
Peaking Factor
|
Minimum Required Grease Trap Retention Volume
|
|---|---|---|
|
(m2)
|
|
(m2)
|
|
12
|
5.5
|
0.7
|
|
24
|
4.3
|
1.1
|
|
50
|
3.0
|
1.6
|
|
100
|
2.4
|
2.5
|
|
150
|
|
3.3
|
|
200 |
1.85
|
4.0
|
|
250
|
|
4.7
|
|
300
|
|
5.4
|
|
350
|
|
6.1
|
|
400
|
1.62
|
6.7
|
|
450
|
|
7.3
|
|
500
|
|
7.8
|
|
550
|
|
8.3
|
|
600
|
1.38
|
8.7
|
|
650
|
|
9.1
|
|
700
|
|
9.4
|
|
750
|
|
9.7
|
|
800
|
1.15
|
10.0
|
|
850
|
|
10.2
|
|
900
|
1.03
|
10.3
|
|
1000
|
1.0
|
10.4
|
Note:
- The minimum required grease trap retention volume tabulated above s based on an average water consumption of 0.5 m2 per day per m2 of kitchen floor area, and an average working day of 16 working hours. A larger grease trap should be provided if a higher water discharge intensity is anticipated.
- For kitchen floor areas in between the listed values, the minimum required grease trap retention volume can be calculated pro-rata.
- For kitchen floor areas smaller than 12 m2, a grease trap with reteation volume 0.7 m2 should be provided unless the adequancy of a smaller grease trap can be demonstrated.
- Depending on the actual operation of the proposed food premises, additional installations might be required to meet the standards given in the technical Memorandum issued under section 21 of the Water Polluction Control (Amendment) Ordinance 1990.
Click the above picture to zoom in

