Guidelines for the Design of Small Sewage Treatment Plants

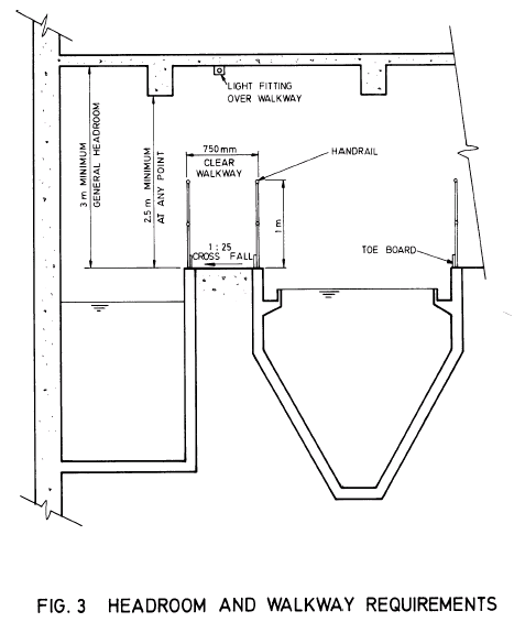
Image of Fig.3 Headroom and walkway requirements

 

Back to topdot_clear.gifBack