Grease Traps for Restaurants and Food Processors

Grease Trap Illustration

 
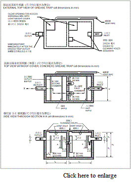
External top view of grease trap (all dimensions in mm)

Download PDF

 

Back to topdot_clear.gifBackTable of ContentNext