| 检 查 和 维 修 化 粪 池 系 统 , 并 经 常 清 除 淤 泥 |
| |
|
| 10. |
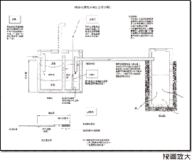
| 最 少 每 六 个 月 检 查 化 粪 池 系 统 和 量 度 淤 泥 的 厚 度 一 次 。 如 果 化 粪 池 的 负 荷 大 , 检 查 和 清 除 淤 泥 的 次 数 就 应 该 更 频 密 。 |
 |
|
| |
|
| |
| 尽 可 能 雇 用 熟 练 的 人 员 定 期 在 你 观 察 下 检 查 化 粪 池 系 统 , 以 及 在 需 要 时 清 除 化 粪 池 系 统 的 淤 泥 。 |
|
| |
|
| 11. |
遇 有 以 下 情 况 , 必 须 立 即 检 查 化 粪 池 系 统
- 化 粪 池 系 统 满 溢 。
- 化 粪 池 系 统 明 显 散 发 出 臭 气 。
- 屋 内 厕 所 冲 水 有 问 题 , 或 洗 手 盆 去 水 不 佳 。
|
| |
|
| 12. |
在 以 下 情 况 必 须 清 除 淤 泥 :
- 淤 泥 厚 度 超 过 3 0 厘 米 ( 1 呎 ) 或 总 水 深 的 四 分 一 。
- 怀 疑 化 粪 池 排 水 管 堵 塞 , 或 渗 水 池 或 泥 土 淤 塞 。
|
| |
|
| 13. |
| 化 粪 池 系 统 的 淤 泥 必 须 适 当 地 弃 置 。 淤 泥 应 交 由 专 业 承 办 商 运 往 污 水 处 理 厂 处 置 。 食 物 环 境 卫 生 署 , 如 资 源 许 可 , 也 会 为 私 人 化 粪 池 系 统 提 供 抽 除 淤 泥 的 收 费 服 务 。 查 询 详 情 可 参 阅第 十 二 页 的 图 表。 |
 |
|
| |
|
| 14. |
每 次 清 除 淤 泥 工 作 完 成 后 , 必 须 检 查 排 水 系 统 和 化 粪 池 系 统 是 否 有 毛 病 。 若 有 , 在 恢 复 排 放 污 水 入 化 粪 池 系 统 前 , 必 须 先 行 修 理 。

|
| |
|
| 15. |
必 须 把 对 化 粪 池 系 统 进 行 的 所 有 检 查 、 清 除 淤 泥 及 维 修 工 作 记 录 下 来 。 可 用 这 本 小 册 子 后 页 的 表 作 记 录 。 拍 照 可 省 却 部 份 文 字 记 录 。

|